ᐅ Grundriss-Check Neubau Einfamilienhaus mit Keller
Erstellt am: 14.11.24 01:51
Bebauungsplan/Einschränkungen
Baustufenplan Hamburg S1O (Eingeschossige Bauweise, in umliegende Bebauung einfügen)
Größe des Grundstücks: 712m2
Hang: nein
Grundflächenzahl: 0,3
Baufenster, Baulinie und -grenze: 5m im Norden müssen von jeglicher Bebauung frei sein
Randbebauung: nein, Garage/Carport ja
Anzahl Stellplatz: 2
Anforderungen der Bauherren
Geschossigkeit: 1,5
Dachform: Walmdach
Stilrichtung: Stadtvilla
Ausrichtung: Nord-Süd
voll unterkellert
Anzahl der Personen: 2 Erwachsene, 1 Kind, 1 Kleinkind
Schlafgäste pro Jahr: 5-10 Übernachtungen
Raumbedarf im EG, OG: 90/80
Büro: Homeoffice
Offene Raumgestaltung
eher moderne Bauweise
offene Küche, Kochinsel
Anzahl Essplätze: 8
Kamin: ja
Balkon, Dachterrasse: Dachterrasse zur Erreichung der eingeschossigen Bauweise (keine Dachschrägen)
Garage, Carport: Carport seitlich hinterm Haus
Hausentwurf
Von wem stammt die Planung: Architekt
Was gefällt besonders? Offene Gestaltung, großzügiger Eingangsbereich, Treppe, Haustyp
Was gefällt nicht? Küche (zu lang und schmal), Schlafzimmer/Ankleidezimmer (wirkt zu gedrungen, eventuell Ankleide gegen Schrankwand austauschen)
Preisschätzung laut Architekt/Planer: -
Persönliches Preislimit fürs Haus, inkl. Ausstattung: 700.000€ ohne Außenanlagen
favorisierte Heiztechnik: Luft-Wasser-Wärmepumpe
Wenn Ihr verzichten müsst, auf welche Details/Ausbauten
-könnt Ihr verzichten: Ankleidezimmer, Speisekammer
-könnt Ihr nicht verzichten: offene Wohnküche, großzügiger Eingangsbereich
Warum ist der Entwurf so geworden, wie er jetzt ist? Erster Entwurf auf Grundlage unserer Raumwünsche
Entsprechende/Welche Wünsche wurden vom Architekten umgesetzt? Größe, Zimmer, Offenheit, keine Dachschrägen, Hausform
Was ist die wichtigste/grundlegende Frage zum Grundriss in 130 Zeichen zusammengefasst?
Erstentwurf brauchbar? Ideen Küchenumgestaltung/Umpositionierung? Meinungen Badezimmer?
Hallo zusammen,
Wir haben den ersten Entwurf für unser Neubau Einfamilienhaus vom Architekten bekommen.
Uns persönlich gefällt der Haustyp optisch sehr gut, da er zwar eine Stadtvilla ohne Dachschrägen ist, aber trotzdem nicht klotzig wirkt und sich gut ins Hamburger Stadtbild einfügt.
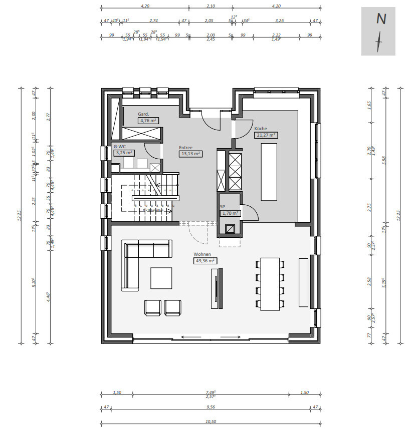
Der Architekt hat die meisten unserer Wünsche umgesetzt, problematisch ist aber auf jeden Fall noch der gesamte Küchenbereich, da er zu schmal und lang ist. Durch die Hausform ist eine Verbreiterung der Küche leider nicht möglich ohne den lichtdurchfluteten Eingangsbereich zu verändern, oder das Haus breiter zu machen(was wir würden, aber aufgrund des Grundstücks nicht möglich ist, da schon jeweils auf 2,75m an die Grenze geplant wurde. Eigentlich war unsere Idee eine Speisekammer durch die Küchenfront begehen zu können(ja ich weiß, neumodischer Schnickschnack) und diese dann im Norden der Küche anzusiedeln, das würde aber die Lichtachse in dem Bereich verhindern und die Fenster im Norden an der Seite unnütz machen.
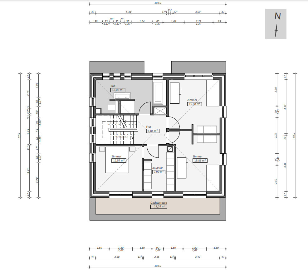
Ausserdem steht das Bad im OG zur Diskussion, da wir zwar die Idee mit der "abgetrennten" Toilette sympathisch finden, allerdings könnte durch den Dusch/Waschtischbereich der Raum insgesamt eher klein wirken, obwohl er sehr groß ist.
Das Schlafzimmer im OG ist auch noch nicht perfekt, da wir eigentlich ein separates Ankleidezimmer haben wollten, durch den begrenzten Platz im OG(eingeschossige Bauweise ohne Dachschrägen) ist aber das Schlafzimmer relativ klein und wir hätten es gerne etwas geräumiger. Kinderzimmer sind dagegen großzügig genug.
Das Haus hat relativ viele (auch schmale) Fenster und wir überlegen ob weniger, dafür breitere Sinn machen könnte.
Dies ist ein erster Entwurf der auf Grundlage unserer Raumwünsche entstanden ist, daher würden wir uns sehr freuen, wenn ihr uns euren ersten Eindruck mitteilen könnt um zu beurteilen, ob man darauf aufbauen kann, oder neu/anders anfängt.
Wenn ich oben etwas vergessen haben sollte, reiche ich dies gerne nach.
Vielen Dank.






Baustufenplan Hamburg S1O (Eingeschossige Bauweise, in umliegende Bebauung einfügen)
Größe des Grundstücks: 712m2
Hang: nein
Grundflächenzahl: 0,3
Baufenster, Baulinie und -grenze: 5m im Norden müssen von jeglicher Bebauung frei sein
Randbebauung: nein, Garage/Carport ja
Anzahl Stellplatz: 2
Anforderungen der Bauherren
Geschossigkeit: 1,5
Dachform: Walmdach
Stilrichtung: Stadtvilla
Ausrichtung: Nord-Süd
voll unterkellert
Anzahl der Personen: 2 Erwachsene, 1 Kind, 1 Kleinkind
Schlafgäste pro Jahr: 5-10 Übernachtungen
Raumbedarf im EG, OG: 90/80
Büro: Homeoffice
Offene Raumgestaltung
eher moderne Bauweise
offene Küche, Kochinsel
Anzahl Essplätze: 8
Kamin: ja
Balkon, Dachterrasse: Dachterrasse zur Erreichung der eingeschossigen Bauweise (keine Dachschrägen)
Garage, Carport: Carport seitlich hinterm Haus
Hausentwurf
Von wem stammt die Planung: Architekt
Was gefällt besonders? Offene Gestaltung, großzügiger Eingangsbereich, Treppe, Haustyp
Was gefällt nicht? Küche (zu lang und schmal), Schlafzimmer/Ankleidezimmer (wirkt zu gedrungen, eventuell Ankleide gegen Schrankwand austauschen)
Preisschätzung laut Architekt/Planer: -
Persönliches Preislimit fürs Haus, inkl. Ausstattung: 700.000€ ohne Außenanlagen
favorisierte Heiztechnik: Luft-Wasser-Wärmepumpe
Wenn Ihr verzichten müsst, auf welche Details/Ausbauten
-könnt Ihr verzichten: Ankleidezimmer, Speisekammer
-könnt Ihr nicht verzichten: offene Wohnküche, großzügiger Eingangsbereich
Warum ist der Entwurf so geworden, wie er jetzt ist? Erster Entwurf auf Grundlage unserer Raumwünsche
Entsprechende/Welche Wünsche wurden vom Architekten umgesetzt? Größe, Zimmer, Offenheit, keine Dachschrägen, Hausform
Was ist die wichtigste/grundlegende Frage zum Grundriss in 130 Zeichen zusammengefasst?
Erstentwurf brauchbar? Ideen Küchenumgestaltung/Umpositionierung? Meinungen Badezimmer?
Hallo zusammen,
Wir haben den ersten Entwurf für unser Neubau Einfamilienhaus vom Architekten bekommen.
Uns persönlich gefällt der Haustyp optisch sehr gut, da er zwar eine Stadtvilla ohne Dachschrägen ist, aber trotzdem nicht klotzig wirkt und sich gut ins Hamburger Stadtbild einfügt.
Der Architekt hat die meisten unserer Wünsche umgesetzt, problematisch ist aber auf jeden Fall noch der gesamte Küchenbereich, da er zu schmal und lang ist. Durch die Hausform ist eine Verbreiterung der Küche leider nicht möglich ohne den lichtdurchfluteten Eingangsbereich zu verändern, oder das Haus breiter zu machen(was wir würden, aber aufgrund des Grundstücks nicht möglich ist, da schon jeweils auf 2,75m an die Grenze geplant wurde. Eigentlich war unsere Idee eine Speisekammer durch die Küchenfront begehen zu können(ja ich weiß, neumodischer Schnickschnack) und diese dann im Norden der Küche anzusiedeln, das würde aber die Lichtachse in dem Bereich verhindern und die Fenster im Norden an der Seite unnütz machen.
Ausserdem steht das Bad im OG zur Diskussion, da wir zwar die Idee mit der "abgetrennten" Toilette sympathisch finden, allerdings könnte durch den Dusch/Waschtischbereich der Raum insgesamt eher klein wirken, obwohl er sehr groß ist.
Das Schlafzimmer im OG ist auch noch nicht perfekt, da wir eigentlich ein separates Ankleidezimmer haben wollten, durch den begrenzten Platz im OG(eingeschossige Bauweise ohne Dachschrägen) ist aber das Schlafzimmer relativ klein und wir hätten es gerne etwas geräumiger. Kinderzimmer sind dagegen großzügig genug.
Das Haus hat relativ viele (auch schmale) Fenster und wir überlegen ob weniger, dafür breitere Sinn machen könnte.
Dies ist ein erster Entwurf der auf Grundlage unserer Raumwünsche entstanden ist, daher würden wir uns sehr freuen, wenn ihr uns euren ersten Eindruck mitteilen könnt um zu beurteilen, ob man darauf aufbauen kann, oder neu/anders anfängt.
Wenn ich oben etwas vergessen haben sollte, reiche ich dies gerne nach.
Vielen Dank.
Ich hab mal kurz die Daten durchgerechnet, bevor ich das Haus/die Zeichnungen gesehen habe.
3000€/qm plus Nutzkeller. Da kommen die 700000€ gerade ohne Baunebenkosten so hin.
Aber dann sehe ich, dass der Keller ausgebaute Wohnfläche hat, also innerhalb der thermischen Hülle gehört, zudem Dachterrasse sehe/gelesen habe und dann die aufwändige Fassadengestaltung und glaube nicht, dass Ihr annähernd mit dem Budget zurecht kommt.
Zu den genannten Zweifeln:
Allerdings empfinde ich die Dachterrasse negativ, da sie Eltern und Kind verbindet (Fehlende Privatsphäre beiderseits).
Ich komme bei zaghaften und niedrigen norddeutschen Baukosten auf 3500€/qm, beinhaltet auch den Keller und somit sind es 260qm x 3500€ gerundete 900000€ ohne Baunebenkosten. Wenn man scharf und entspannt kalkuliert, dann mit 4000€!
Nach den Erfahrungen der letzten Jahre bekommst Du für 700000€ ein Standardhaus, verklinkert, 200qm ohne Keller ohne Firlefanz wie diese riesen Fensterfront, zig Fensterscharten und Dachterrasse.
3000€/qm plus Nutzkeller. Da kommen die 700000€ gerade ohne Baunebenkosten so hin.
Aber dann sehe ich, dass der Keller ausgebaute Wohnfläche hat, also innerhalb der thermischen Hülle gehört, zudem Dachterrasse sehe/gelesen habe und dann die aufwändige Fassadengestaltung und glaube nicht, dass Ihr annähernd mit dem Budget zurecht kommt.
Zu den genannten Zweifeln:
flymac schrieb:Ich würde bei der Küche nie auf eine Verbreiterung kommen, sondern eher auf eine Verkürzung. Optisch ist sie sehr gefällig, aber nach meiner Meinung ist sie eine Küche der langen Wege und somit nicht ergonomisch. Küchen plant man aber wie einen Arbeitsbereich, so dass man auf kurze notwendige Wegstrecken kommt.
problamtisch ist aber auf jeden Fall noch der gesamte Küchenbereich, da er zu schmal und lang ist. Durch die Hausform ist eine Verbreiterung der Küche leider nicht möglich
flymac schrieb:Ich denke nicht, dass es gedrungen sein wird. Eventuell einfach an der kurzen Seite Kommoden planen und die Seitenwand weglassen.
Schlafzimmer/Ankleidezimmer (wirkt zu gedrungen, eventuell Ankleide gegen Schrankwand austauschen)
Allerdings empfinde ich die Dachterrasse negativ, da sie Eltern und Kind verbindet (Fehlende Privatsphäre beiderseits).
Ich komme bei zaghaften und niedrigen norddeutschen Baukosten auf 3500€/qm, beinhaltet auch den Keller und somit sind es 260qm x 3500€ gerundete 900000€ ohne Baunebenkosten. Wenn man scharf und entspannt kalkuliert, dann mit 4000€!
Nach den Erfahrungen der letzten Jahre bekommst Du für 700000€ ein Standardhaus, verklinkert, 200qm ohne Keller ohne Firlefanz wie diese riesen Fensterfront, zig Fensterscharten und Dachterrasse.
Ich schließe mich @ypg an, dieses Haus bekommt ihr in Hamburg nicht schlüsselfertig für 700.000€ gebaut.
Weiterer Punkt: Seid Ihr sicher, dass das noch als eingeschossig gilt? Das 1. OG hat nach meinem Überschlag (94qm EG, 70 qm OG) mehr als 2/3 der EG Wohnfläche, oder gilt in Hamburg etwas anderes?
Weiterer Punkt: Seid Ihr sicher, dass das noch als eingeschossig gilt? Das 1. OG hat nach meinem Überschlag (94qm EG, 70 qm OG) mehr als 2/3 der EG Wohnfläche, oder gilt in Hamburg etwas anderes?
Ich muss leider auch sagen ... viel Fläche, aber teilweise mehr als unpraktisch.
Schlafzimmer im OG, ganz schlecht ist die Position des Bettes mit dem Kopfteil so neben dem Durchgang. Das Bad finde ich leider auch nicht gut geplant, insbesondere der Austritt der Dusche vor der Badeingangstür.
Küche sehe ich wie @ypg .. das wird schwer zu planen. Und Insel in 326 cm Breite wird schon mehr als knapp bzw. sehr fimschig für eine Inselbreite.
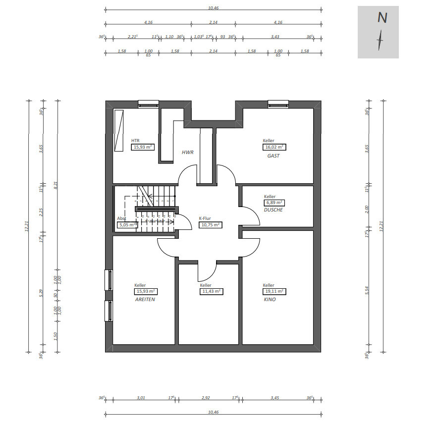
Homeoffice im Keller, da sind für den Kellerraum 100 cm hohe Fenster eingezeichnet. Soll da eine Art Lichthof davor? In den Ansichtszeichnungen sieht man nichts davon.
Und im Budget sehe ich das Projekt auch nicht. Denn Keller, Verklinkerung und die grundsätzlich viel Fläche ist schon aufwändig. Wenn ich zähle, komme ich im EG auf eher 98m² bzw. OG 76m² incl. der Treppenflächen. Da würde ich ohne Keller schon mind. 650000 Euro ansetzen.
Schlafzimmer im OG, ganz schlecht ist die Position des Bettes mit dem Kopfteil so neben dem Durchgang. Das Bad finde ich leider auch nicht gut geplant, insbesondere der Austritt der Dusche vor der Badeingangstür.
Küche sehe ich wie @ypg .. das wird schwer zu planen. Und Insel in 326 cm Breite wird schon mehr als knapp bzw. sehr fimschig für eine Inselbreite.
Homeoffice im Keller, da sind für den Kellerraum 100 cm hohe Fenster eingezeichnet. Soll da eine Art Lichthof davor? In den Ansichtszeichnungen sieht man nichts davon.
Und im Budget sehe ich das Projekt auch nicht. Denn Keller, Verklinkerung und die grundsätzlich viel Fläche ist schon aufwändig. Wenn ich zähle, komme ich im EG auf eher 98m² bzw. OG 76m² incl. der Treppenflächen. Da würde ich ohne Keller schon mind. 650000 Euro ansetzen.
H
hanghaus202314.11.24 10:36Gibt es einen Bebauungsplan? Der Architekt hat am Budget vorbei geplant.
Ähnliche Themen