Grundriss – Stadtvilla 160 qm

4,30 Stern(e) 4 Votes
Zuletzt aktualisiert 08.10.2025
Sie befinden sich auf der Seite 4 der Diskussion zum Thema: Grundriss – Stadtvilla 160 qm
>> Zum 1. Beitrag <<

Anmerkungenn zum Grundriss

  • -

    Stimmen: 0 0,0%
  • -

    Stimmen: 0 0,0%

  • Anzahl der Umfrageteilnehmer
    0
S

sven0924

Ich auch! Allerdings fürchte ich nicht das, was kbt09 fürchtet, ich glaube, dass man den Raum nicht zufriedenstellend einrichten kann (Sofa/TV-Situation) mit Kamin


Grüsse

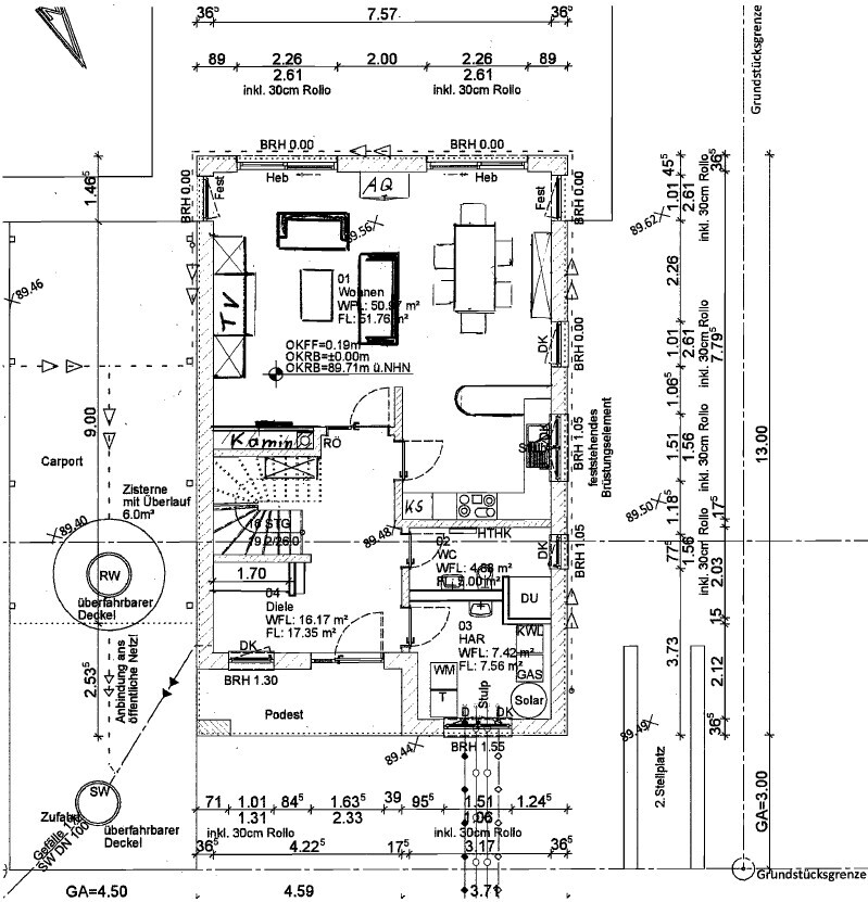
Hier unsere Vorstellungen zur Möblierung (teilweise schon vorhandene Möbel). Der Kamin soll in eine Wand integriert werden, welche auch ein Regal für das Holz beinhaltet.

Grundriss eines Wohnhauses mit Wohnzimmer, Küche, Essbereich, Carport und Kamin.


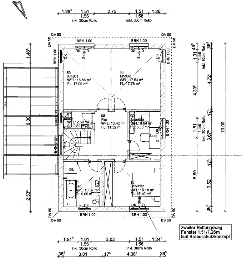
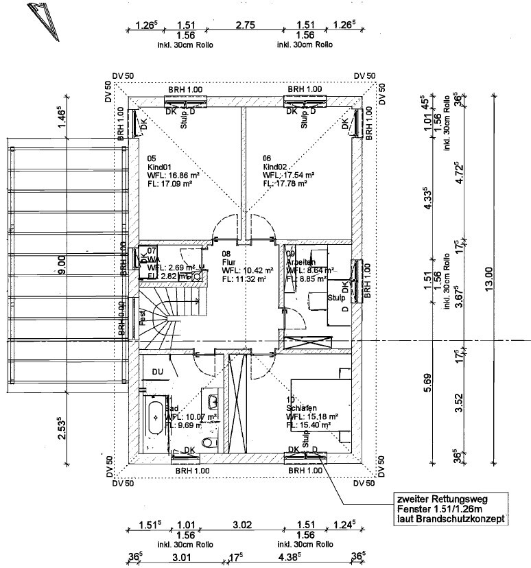
Grundriss eines Hauses mit Zimmern, Treppe, Flur, Bad, Schlafen, Kind, Arbeiten; Maßangaben.
 
kbt09

kbt09

Sind die Sofas so klein? Und ja, bezüglich Wohnraum ist es das, was ich irgendwie befürchtet habe. Wenn man hinsieht, dann sieht man eigentlich 3 Räume, schön säuberlich getrennt. Wohnen, Essen und Kochen. Relativ enge Durchgänge, z. B. von Küche zwischen Esstisch und Sofa zur Terrasse. Planlinks könnte hinter dem Sofa gleich eine Festverglasung sein, denn dort kommt man ja zu einer teuren Schiebetür gar nicht mehr richtig durch. Persönlich würde mich stören, dass der Hauptplatz auf dem Sofa voll im Blick von der Haustür aus ist.

Türanschlag Küche sieht irgendwie falsch aus .. wie gesagt, da würde ich eine Schiebetür setzen, die im Flur läuft. Nur ein Hochschrank in der Küche?

Und, ich denke auch, dass die Treppe für lichte Raumhöhe 270, also Geschosshöhe von ca. 309 cm lt. Schnitt, sehr knapp und recht steil kalkuliert ist.
 
G

Grym

Die Frage mit Entwässerung, etc. hatte ich doch auch gehabt:

https://www.hausbau-forum.de/threads/Entwässerung-Bad-og-bezüglich-wc-und-dusche.17234/

Da hieß es noch, mehrere Meter bis zum Fallrohr sind kein Problem?

Und Gefälle laut DIN: 0,5 cm je Meter = 0,5 Prozent.
(Gut, das war von mir. Aber da hat ja auch keiner widersprochen )

Das Abwasser würde ich Richtung HAR führen und dann per Fallrohr unter die Bodenplatte und dann vom Haus weg!? Ein Fallrohr im HAR, evtl. verkleidet, stört doch nicht wirklich!?

Kaffeemühlen sind quadratisch oder annähernd quadratisch.

Die Treppe ist angegeben mit 19,2 als Steigung.

3,52m als Rohbaubreite Schlafzimmer ist evtl. oder evtl. auch nicht etwas knapp. Bleiben etwa 3,49m nach Putz, wenn alles passt und bei einem Bett 2,10m Breite (inkl. Rahmen) 69,5cm je Seite.

Den Platz für einen Durchgang planrechts neben dem Esstisch und dann dahinter noch Platz für einen Schrank (wie viel Platz braucht man da davor bis zu den Stühlen? 1 Meter mindestens um den Schrank zu öffnen und dabei auch noch weit genug vom Schrank entfernt zu stehen, damit man den Schrank öffnen kann).

Ich sehe im Moment wirklich gar kein Abstellflächen. Es gibt keinen Keller. OK. Es gibt Carport, keine Garage. OK. Aber der HAR ist natürlich sehr klein und der Hauswirtschaftsraum oben => !?

Wo wird die Wäsche gesammelt, wo wird die Wäsche sortiert, wo wird die Wäsche aufgehangen (oder soll ALLES in den Trockner zu jeder Jahreszeit? Gerade mit der Kontrollierte-Wohnraumlüftung kann man ganzjährig drinnen die Wäsche aufhängen. Und m.W. darf nicht mal alles in den Trockner, wenn es schön bleiben soll...).

Fahrräder, Gartenmöbel, Grill, Sonnenschirme, Vorräte, Bierkästen, Wasserkästen, Weinflaschen, Sonstige Getränke, Bobbycar, Saisonware (Ostern, Weihnachten, Fasching, Halloween genauso wie Sommer- und Winterklamotten, Schlitten, Badespielzeug für den Sommer, ...). Wäscheständer für Sachen, welche nicht in den Trockner kommen/dürfen. Puppenhaus, Gartengeräte, Platz zum Bügeln, Platz zum Wäsche sortieren, Werkzeugkoffer, Bohrmaschine, alte Schulsachen der Kinder. Nicht eingezeichnet ist der Sicherungskasten. Auch verlaufen ja noch viele Rohre im HAR. Wasseranschluss (Druckminderer, Feinfilter, Zähler), Gas, Strom und Telekom brauchen Platz. Media-Server? Patchfeld? Sporadisch genutzte Küchengeräte. Inline-Skates. Ski-Sachen.

Nicht dass jetzt alles davon zutreffen würde, aber man weiß doch, wie heutzutage Garagen in Nebaugebieten aussehen oder dass dann irgendwann die zweite Gartenhütte angebaut wird...

Gerade gartenmäßig kommt doch noch eine Menge dazu, wenn ihr vorher keinen Garten hattet. Sicher auch vieles Gartenspielzeug der Kinder, welches nicht draußen bleiben soll bei Sturm, Hagel oder Frost und Schnee.

Damit meine ich jetzt nicht: Baut keinen Keller. Sondern, macht eine Stauraumplanung für die Sachen, welche ihr habt und evtl. in Zukunft haben könntet.
 
P

Painkiller

Sind Bodenebene Duschen ohne Duschkabine geplant? Wenn Ja sind die Wände für den Spritzschutz zu kurz.

@Grym: viele der Sachen werden wohl auf dem Speicher landen Die Gartensachen dann in der Hütte.
 
Zuletzt aktualisiert 08.10.2025
Im Forum Grundrissplanung / Grundstücksplanung gibt es 2513 Themen mit insgesamt 87213 Beiträgen


Ähnliche Themen zu Grundriss – Stadtvilla 160 qm
Nr.ErgebnisBeiträge
1Öffnungsrichtung der Schiebetür zur Terrasse 16
2Grundrissplanung Einfamilienhaus 145qm bitte um Feedback - Seite 245
3Esstisch in einer kleinen Küche 49
4Waschmaschine und Trockner im Keller oder OG? 14
5Wohnzimmer: Wie Sofa, TV und Schränke stellen? - Seite 432
6Einteilung Grundriss Allraum Küche Wohnen Essen - Seite 358
7Finanzierung Bauvorhaben Einfamilienhaus 140qm + Keller (Bayern) - Seite 234
8Grundriss, Hausanordnung EFW 150m2, Keller + Einliegerwohnung - Feedback erwünscht - Seite 467
9Geschlossene oder offene Küche ? 11
10Einfamilienhaus 2 Stockwerke ohne Keller -Grundriss -Kosten -Umsetzbarkeit? 24
11Planung Wohnraum & Küche eines Doppelhaushälfte in Nürnberg 13
12Häuser ohne Keller: Stauraum Hobby-Keller? 49
13Grundriss Einfamilienhaus, ca. 200qm ohne Keller - Einschätzung - Seite 19172
14Grundrissfrage, Treppe, Fenster, Ausrichtung 12
15 2 Vollgeschosse, Durchgang Garage, Hauswirtschaftsraum unter Treppe - Seite 225
16Einfamilienhaus mit kleiner Grundfläche, DG und Keller, Zustimmung Nachbar - Seite 531
17Grundrissplanung Keller, EG + DG 12
18Grundriss 180qm plus Keller - 12,40mx9,04m 21
19Planung/Grundriss Einfamilienhaus (ca. 140 qm, Keller, EG, DG) - Seite 230
20Jetzt der finale Grundriss - 189qm ohne Keller; Stadtvilla - Seite 424

Oben