Grundriss – Stadtvilla 160 qm

4,30 Stern(e) 4 Votes

Anmerkungenn zum Grundriss

  • -

    Stimmen: 0 0,0%
  • -

    Stimmen: 0 0,0%

  • Anzahl der Umfrageteilnehmer
    0
S

sven0924

Wir bitten um Eure Meinungen zum vorgelegten Grundriss.

Wir sind mit der Ausarbeitung zufrieden, dennoch dankbar für gute Anregungen.

Vielen Dank!

Bebauungsplan/Einschränkungen
Größe des Grundstücks: 476 qm (16,75 m x 28,43 m)
Hang: nein
Anzahl Stellplatz: 2
Geschossigkeit: 2 Vollgeschosse
Dachform: Walmdach
Stilrichtung: Stadtvilla

Anforderungen der Bauherren
Geschossigkeit: 2 Vollgeschosse
Dachform: Walmdach - 30 Grad
Stilrichtung: Stadtvilla

Keller: nein
Anzahl der Personen: noch 3
Wohnfläche: ca. 160 qm


offene Küche: ja - Kochinsel: nein
Kamin: ja
Carport: ja

Was gefällt uns gut?: Garderobenbereich in der Diele

Fensteranordnung in allen Zimmern

Waschmaschine & Trockner im OG separater Raum

Alle notwendigen Räume berücksichtigt



Was ist nicht optimal?: eventuell enger Hauswirtschaftsraum

Bad OG



Hausentwurf
Von wem stammt die Planung: Architekt – RESTA mit vielen eigenen Ideen

favorisierte Heiztechnik: Gasbrennwerttherme und Solar für WW, Kontrollierte-Wohnraumlüftung mit Wärmerückgewinnung

Architektenzeichnung eines zweistöckigen Hauses: Nord- und Westansicht mit Fenstern, Eingang, Garten.


Süd- und Ostansicht eines zweistöckigen Hauses mit Dach, Fenstern und Türen.


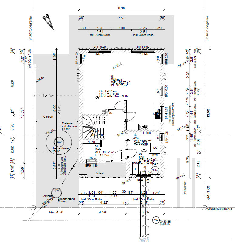
Grundriss eines Einfamilienhauses mit Carport, Wohnbereich, Küche, Bad und Maßen.


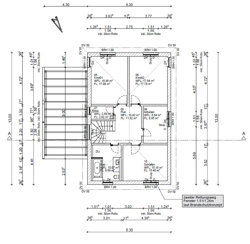
Grundriss eines Hauses mit Treppenhaus, Flur, Schlafzimmer, zwei Kinderzimmer, Bad, Dusche.


Schnitt A-A durch ein zweigeschossiges Haus mit Spitzboden, Treppe, Fenstern und Dachneigung.
 
L

Legurit

Ich bin mir nicht sicher, ob der Wohnbereich etwas Hallenartig wirkt.
Ansonsten ist es stellenweise sicherlich etwas dunkel und die Ansichten hauen mich nicht so vom Hocker.
 
Y

ypg

Wohin entwässern Toilette und Waschbecken im OG?
In den Abwasserschacht?!

@BeHaElJa
Das ist die erste Stadtvilla, die ich hier sehe, die mir von den Außenansichten gefällt!
Die Anlehnung an eine Kaffeemühle ist nicht übersehbar

@TE: wer ist denn bei Euch der Po-Fetischist, der dem Kochenden ständig auf den Allerwertesten schauen möchte?
Wenn offene Küche, dann zumindest geschützter Bereich


Grüsse
 
Zuletzt aktualisiert 07.11.2025
Im Forum Grundrissplanung / Grundstücksplanung gibt es 2526 Themen mit insgesamt 87661 Beiträgen


Ähnliche Themen zu Grundriss – Stadtvilla 160 qm
Nr.ErgebnisBeiträge
1Entwurf Einfamilienhaus 250 m^2, 2 Vollgeschosse mit Walmdach 70
2Grundrissplanung 130qm Stadtvilla mit zwei Vollgeschossen 37
3Hausentwurf Stadtvilla, 2 Vollgeschosse, Doppelgarage 30
4Grundriss Stadtvilla - Bitte um Anregungen 60
5Stadtvilla 190m² mit Einfahrt & Garten zur Südseite 30
6Grundriss Stadtvilla - Kinderzimmern mit Bodentiefen Fenstern 25
7Stadtvilla Einfamilienhaus Grundriss nach 6 Monaten Planungsphase... 17
8Grundriss für 200qm Stadtvilla - Wünsche umsetzbar? 98
9Frontansicht Stadtvilla Walmdach oder Zeltdach? 16
10Eine weitere Walmdach Stadtvilla (240qm) - Seite 21164
11Neubau 220 qm Stadtvilla Walmdach, 2 Vollgeschosse 53
12Kosten für Bauvorhaben Stadtvilla, 1 Vollgeschoss 33
13Grundrisse Stadtvilla mit Garagen-/Büroanbau 14
14Neubau Stadtvilla mit Einliegerwohnung und Doppelgarage 72
15Grundrissplanung Einfamilienhaus 150qm Stadtvilla - Seite 265
16Grundrissplanung Stadtvilla 130 qm 41
17Stadtvilla 200qm + großzügige Doppelgarage im Saarland geplant 74
18Stadtvilla 170m² auf 567 m² Grundstück 77
19150qm Stadtvilla erster Entwurf - Anregungen 23
20Baukosten Stadtvilla - Satteldach - Seite 217

Oben