Hausbau - Ratgeber
Bauherrenhilfe
- Bauherrenhilfe vor Vertragsabschluss
-- Warum einen unabhängigen Baubetreuer?
-- Vertragsgrundlagen
-- Bausumme
-- Zahlungsplan zur Kostenkontrolle
-- Pflichten des Bauherren vor Vertragsabschluss
-- Unterlagen beim Hausbau vor Vertragsabschluss
- Bauherrenhilfe nach Vertragsabschluss
-- Bauantrag bei Behörden
-- Bau-Genehmigungsverfahren bei Baubehörden
-- Bauspezifische Versicherungen
-- Bauzeitenplan
-- Baubeginn - die Letzten Pflichten der Bauherrschaft
- Bauherrenhilfe während der Bauzeit
- Gewährleistungsansprüche
- Bauabnahme
Baufinanzierung
- Baufinanzierung - Allgemeine Fragen
- Kreditarten
- Kredit-Konditionen
- Bausparen
- Staatliche Förderungen
- Verkehrswert
- Haushaltsrechnung und Bonität
Hausbau Planung
- Haustypen
- Hausbau Vorbereitungsarbeiten
- Das Baugrundstück
- Baugrund beim Hausbau
- Baurecht
- Gebäudeschutz
- Erdarbeiten und Wasserhaltung
- Stützmauern
- Einfriedung
- Untergeschoss
- Kanalisation
- Tragende Elemente
- Nichttragende Innenwände
- Fundation / Fundament
- Deckenkonstruktionen
- Dächer
- Kaminanlagen
- Treppen Rampen Leitern
- Dachbeläge und Spengler
- Fenster
- Sonnen und Wetterschutz
- Aussenputze
- Einbauten, Küchen, Türen
- Bodenbeläge und Unterlagsböden
- Parkett
- Gips, Wand, Decke
Haustechnik und Energie
- Heiztechnik
- Lüftung und Klimatechnik
- Sanitärtechnik
- Elektrotechnik
- Erneuerbare Energie
Whirlpools / Jacuzzi
Hausbau Magazin
- Baufinanzierung trotz Krise?
- Das Blockhaus
- Moderne Dämmstoffe im Vergleich
- Erker Vor- und Nachteile
- Glasflächen beim Hausbau
- Günstig ein Haus Bauen
- Mediterraner Hausbaustil
- Mehrgenerationenhaus
- Moderne Architektur
- Gartengestaltung leicht gemacht
- Traditioneller Ziegelbau
- Villa als höchster Traum
- Im Eigenheim Ruhestand geniessen
- Altbau sanieren
- Kauf einer Holzgarage
- Immobilienmakler
- Arbeitshandschuhe für den Winter
- Zuhause verschönern
- Outdoor-Plissees
- Schlafzimmer planen
- Terrassenüberdachung
- Wohngebäudeversicherung
- Zaunarten und Eigenschaften
- Hauseingang gestalten
- Der perfekte Grundriss
- Sparsamer heizen im Altbau
- Einfamilienhaus smart finanzieren
- Planung einer PV-Anlage
- Neues Haus
- Immobilienfinanzierung
- Installation einer Photovoltaikanlage
- Asbest erkennen und entfernen
- Sauna im Fokus - Wellness zuhause
- Erfolgreich vermieten
- Die perfekte Winterbekleidung
- Das Niedrigenergiehaus
- Der April und seine Stürme
- Architektonische Vielfalt
- Ökologisch und nachhaltig bauen
- Das perfekte Schlafzimmer
- Nachhaltige Energieversorgung
- Zukunftsorientiert bauen
- Nachhaltigkeit beim Hausbau
- Tiny Houses
- Wärmepumpen als nachhaltige Heizvariante
- Maßgeschneiderten Kleiderschrank
- Der richtige Baukredit
- Ratgeber für erfolgreichen Hausbau
- Haus als Altersvorsorge
Do-it-yourself Anleitungen
- Verlegeanleitung für Bodenbeläge und Parkett
- Bodenbeläge und Parkett reinigen und pflegen
- Malerarbeiten am Haus
- Garten Tipps
- Umzug und Reinigung

ᐅ Wohnzimmer: Wie Sofa, TV und Schränke stellen?


Erstellt am: 30.07.16 16:00

B
bluminger
30.07.16 16:00
Hallo.

Nachdem wir uns nun auf eine offene Küche einigen konnten, bereitet mir und meiner Frau die Wohnzimmergestaltung doch ziemliche Kopfschmerzen seit einiger Zeit.

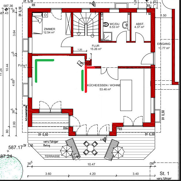
Unser Grundriss im EG:

Grundriss: Offene Küche/Essen/Wohnen, Flur, Zimmer, WC, Abstellraum und Terrasse.

Rechts (Osten) ist der Küchenbereich, mittig im Erker der Esstisch und links (Westen) soll das Wohnzimmer sein. Auf dem Plan ist das ungefähre Aussehen der Küche eingezeichnet sowie ein Kamin mit Schwedenofen.

In unseren Ideen unten habe ich Sofa grün und TV blau gemalt.

Meine Vorstellung war zunächst Sofa Süd-ost und TV und Schränke an der Nordwand des Wohnzimmers:
Grundriss eines Hauses: Zimmer, Flur, Küche/Essen/Wohnen, WC/DU, Abstellraum, Eingang, Terrasse.

Mir gefällt hier, dass der Raum auf diese Art offen ist und unsere beiden kleinen Kinder Platz zum Spielen haben. Schränke hätte ich links und rechts vom TV aufgestellt.

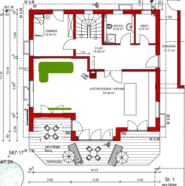
Meiner Frau gefällt das ganze leider überhaupt nicht, sie möchte unbedingt nach Süden zum Fenster hinaus schauen, ihr Vorschlag sieht so aus:
Grundriss eines Hauses: Küche/Ess/Wohnen, Flur, Zimmer, WC/DU, Abstellraum, Eingang, Terrasse.

Hinter dem TV würde sie gerne eine halbhohe Trockenwand erstellen. Für mich ist es hier etwas schade, dass der Raum dadurch geteilt und meiner Meinung nach (?) schwer zugänglich. Außerdem frage ich mich, wie der ganze Kabelsalat zum TV kommen soll (Loch im Boden finde ich fragwürdig, falls die Trockenwand später weg soll). Schränke wären auch hier an der Nordwand.

Eine weitere Idee ist ähnlich der zweiten, aber mit dem TV an der Westwand, hier wäre zumindest die Kabelführung einfacher, allerdings finde ich auch hier den Raum nicht mehr schön offen:
Grundriss eines Hauses: Küche/Wohnen, Flur, Zimmer, Terrasse, Eingang; grün/blau markiert



Wäre toll, wenn Ihr noch eine Idee hättet, wie wir das besser lösen können, momentan ist das grade eine der größten Unklarheiten beim Projekt.
K
kbt09
30.07.16 16:07
Was hat das Fenster links denn für eine Brüstungshöhe? Und planunten sind Terrassentüren? Da wäre ein Fenster ja auch praktisch, dann könnte man auf der Terrasse sehr schön geschützt eine Bank unter das Fenster stellen. Wo ist Süden?


Und, muss es unbedingt ein L-Sofa sein?
K
kbt09
30.07.16 16:09
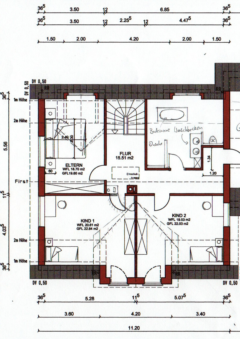
Ich finde übrigens die Treppe immer noch sehr eng geplant.
L
Legurit
30.07.16 16:11
Ich würde die letzte Variante machen... auch wenn das eher ungewohnt ist - dann kann man aber zumindest mal in den Garten schauen. Wir haben bei uns festgestellt dass wir gern lesen und dann es schön finden in die Ferne schauen zu können.
Kommt glaub ich etwas auf den Stellenwert des TVs an.
B
bluminger
30.07.16 16:32
Süden ist Richtung Erker.

Das Fenster links ist noch nicht fest, da wir ja nicht wissen, wie wir das Wohnzimmer machen sollen. Wenn wir hier Klarheit haben, wird das Fenster passend gemacht. Vorschläge willkommen.

Planunten sind bodentiefe Fenster/Terrassentüren geplant.

Es muss nicht unbedingt ein L-Sofa sein (ohne jetzt die bessere Hälfte gefragt zu haben).
K
kbt09
30.07.16 16:38
Dann würde ich es so machen und auch Richtung Süden überlegen, die beiden Fenster in die geschützte Ecke nur so mit Brüstungshöhe = 50 zu setzen. Dann kann im Wohnbereich ein Flachboard gestellt werden .. neben dem Sofa gleich Abstellfläche.

Und TV dann an das 100 cm breite Stück Wand.

Wohnwand wie gedacht planoben, aber eben einen schneller beweglichen Sessel davor.

Esstisch auch mal angezeichnet. Hauptausgang zur Terrasse wird an der Küche sein.

Sofaecke und Tisch sind so auch jeweils weit genug vom Kamin entfernt, so dass sich keiner den Popo ankokelt

Grundriss eines Hauses mit Küche, Essen/Wohnen, Zimmer, Flur, Bad, Terrasse und Eingang.
fenstersofaterrassentürenkücheschränkeerkeresstischwohnzimmerkamintrockenwand