Grundriss-Planung Einfamilienhaus ca. 230qm mit L-Form

4,70 Stern(e) 6 Votes
Zuletzt aktualisiert 22.11.2025
Sie befinden sich auf der Seite 7 der Diskussion zum Thema: Grundriss-Planung Einfamilienhaus ca. 230qm mit L-Form
>> Zum 1. Beitrag <<

Tannenwald

Tannenwald

Für uns ist die Küche auch sehr wichtig. Wir treffen uns bald mit einem Küchenplaner, den wir gutkennen damit die Grobplanung der Küche gleichzeitig läuft. Der Architekt hat auch gemeint, die Küche kann man ohne Problem länger machen.
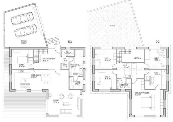
Hier ist auch ein Grundriss in L-Form. An diesem Grundriss ist zu sehen, dass ihr Küche und Wohnzimmer lieber tauschen solltet. In der Küche ist eine große Küchen Insel und die Schränke rechts, sind in die Wand versetzt worden. Das sieht klasse aus, da man nicht auf eine Schankwand vom Esszimmer schaut. Die Kinderzimmer im OG ohne langen Schlauchflur, könnte man auch wie auf dem beiliegendem Grundriss ändern. Natürlich würde ich auch das Kinder Bad größer machen. Das Bett könnte man auch drehen und dahinter ein offenes Ankleidezimmer gestalten. Waschmaschine würde ich definitiv bei 3 Kinder im OG aufstellen. Man geht doch nicht ständig 2 Stockwerke in den Keller (außer man hat eine Wäschedame).

Zweistöckiger Haus-Grundriss: EG mit Garage, Eingang, Küche, Wohnen; DG mit Schlafzimmern und Bad.


Helles Wohnzimmer mit Holzfußboden, großen Fenstern und Blick ins Grüne


Großer offener Wohn- und Essbereich mit Esstisch, Küche im Hintergrund, Treppe und Terrasse.


Heller Flur mit Holzfußboden und Holzdach; Türen zu zwei Räumen mit bunten Sitzsäcken.


Offener moderner Wohnraum mit Kamin links, TV-Schrank rechts und großer Pflanzkübel


Helles, modernes Wohnzimmer mit Kamin, großen Fenstern, Sofa, zwei Kinder und Hund auf dem Boden.
 
S

soneva2012

Hier ist auch ein Grundriss in L-Form. An diesem Grundriss ist zu sehen, dass ihr Küche und Wohnzimmer lieber tauschen solltet. In der Küche ist eine große Küchen Insel und die Schränke rechts, sind in die Wand versetzt worden. Das sieht klasse aus, da man nicht auf eine Schankwand vom Esszimmer schaut. Die Kinderzimmer im OG ohne langen Schlauchflur, könnte man auch wie auf dem beiliegendem Grundriss ändern. Natürlich würde ich auch das Kinder Bad größer machen. Das Bett könnte man auch drehen und dahinter ein offenes Ankleidezimmer gestalten.
Danke für die Grundrisse und Fotos, sehr hilfreich! Überhaupt da man so eine bessere Vorstellung hat, wie alles tatsächlich ausschauen wird.

Ja ich kann mir schon vorstellen, WZ und Küche zu tauschen. So hat man die Essbereiche innen und außen nebeneinander. Die Schränke in die Wand zu versetzen ist auch eine tolle Idee.

Der Grundriss im OG finde ich auch gut gelungen. Ich muss mal schauen, ob es auch so gut klappt, wenn wir Badezimmer und Ankleide im Norden platzieren. Bei uns hat die Nord-Ost Ecke die schlechteste Aussicht also da möchte ich kein Schlafzimmer haben.
 
S

soneva2012

Waschmaschine würde ich definitiv bei 3 Kinder im OG aufstellen. Man geht doch nicht ständig 2 Stockwerke in den Keller (außer man hat eine Wäschedame).
Ich bin die Wäschedame Ich verstehe schon, dass viele es praktisch finden, die Waschmaschine im OG aufzustellen aber das ist mir total unsympathisch! Mit 3 Kindern läuft sie ständig - ich schalte sie meistens abends mit Timer an, damit alles bis 7:00 fertig zum Aufhängen/ Trocknen ist. Das will in dann nicht hören wenn ich im Bett bin! Und zur Zeit haben wir 4 Etagen also eine weniger wird auch helfen! Eine Wäscheschacht wäre aber keine schlechte Idee!
 
S

soneva2012

Jetzt für die 2. Runde in der Hölle der Löwen

Wir haben uns in den letzten Wochen ein Paar Alternativen überlegt – nämlich ein Rechteck, entweder in N-S Richtung oder im O-W Richtung – sind aber wieder beim ursprünglichen L-Form gelandet. Es schafft eine private Zone im Süd-Westen (die Nachbaren sind im Norden und einer im Osten). So hat man auch eine Trennung im EG zwischen WZ und Küche/EZ und im OG zwischen Eltern und Kinder, was wir unbedingt haben möchten.

Einige Änderungen gibt es aber.

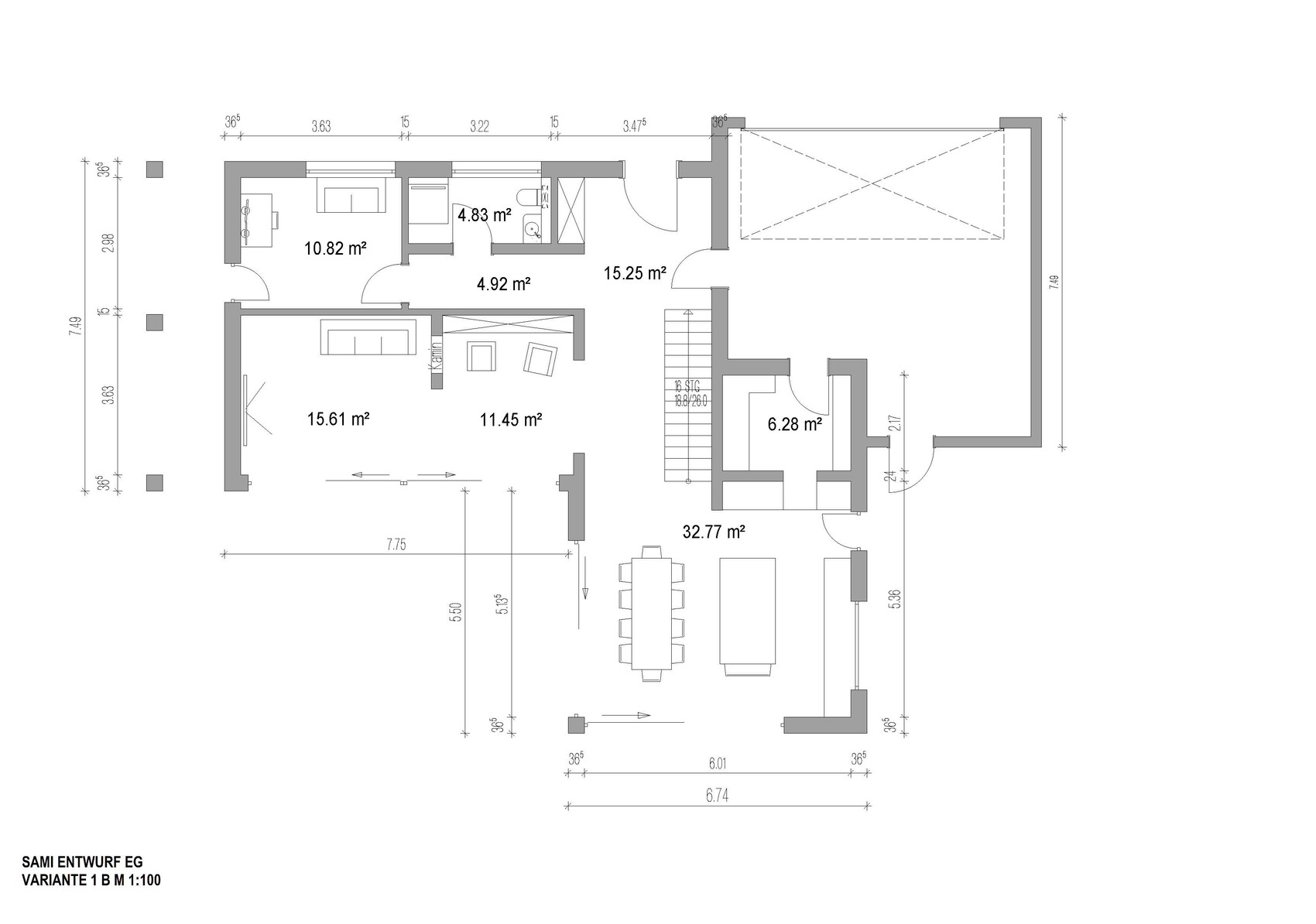
Im EG sind die Küche/Esszimmer jetzt größer. Da ich unbedingt ein Fenster im WC wollte, ist die Nordseite auch umgeplant worden. Im NW ist jetzt ein Gästezimmer/Büro. Wir haben uns überlegt, ob wir lieber 2 getrennten Zimmer einplanen sollten, finden aber ein größeres Zimmer flexibler. (Ein zweites Gästezimmer gibt es auch im KG). Das WZ wird durch einen Kamin getrennt, so gibt es ein Fernsehzimmer und ein kleines Bibliothek/Sitzecke. Wir möchten auch mehr Stauraum im Eingangsbereich (3 Kinder) und werden dann die Wand zwischen Bibliothek und Flur evtl. verschieben (das sieht man beim Grundriss EG mit Grundstück). Neben der Haustür würden wir dann eine Sitzbank/kleine Garderoben haben.

Im OG ist das Kinderbad jetzt größer, wobei ich glaube wir könnten immer noch was vom Elternbad schenken. Es gibt auch jetzt neben der Ankleide ein zweites Mini-Büro im Osten. Es ist ja sehr klein, aber ich brauche eigentlich nur Platz für ein Laptop und ein grosses Bildschirm, dank Corona arbeiten wir jetzt ohne Papierakten.

Dir Grundrisse sind nicht ganz aktuell, aber diese sind etwas detaillierter. Im OG fehlen z.B. die Fenster im Osten.

Die Fassade braucht mehr Arbeit, aber ich habe die Ansichten beigefügt, damit man die Fenster usw. sieht. Eine überdachte Terrasse kommt im „L“ im Süd-Westen. Mit der Nordseite werden wir noch spielen, um zu schauen, ob vertikale oder horizontale Fenster besser wären.

Für Ideen und Verbesserungsvorschläge wäre ich dankbar!

Grundriss eines Obergeschosses mit mehreren Zimmern, Treppenhaus, Bad, Küche und Flächenangaben.


Grundriss eines Hauses mit Wohnzimmer, Essbereich, Küche, Bad, Schlafzimmer und Garage.


Grundriss Erdgeschoss mit Wohnbereich, Schlafzimmer, Technik, Hauswirtschaft, Lager und Pool/Heizung.


Anhang anzeigen architektonischer-grundriss-hausbau-zeichnung.jpg
 
Zuletzt aktualisiert 22.11.2025
Im Forum Grundrissplanung / Grundstücksplanung gibt es 2535 Themen mit insgesamt 87989 Beiträgen


Ähnliche Themen zu Grundriss-Planung Einfamilienhaus ca. 230qm mit L-Form
Nr.ErgebnisBeiträge
1Tipps und Ideen zum Grundriss Einfamilienhaus 136qm 11
2Waschmaschine und Trockner in Ankleide? 16
3Wohnen/Essen/Küche: Wie wohnt ihr oder werdet ihr wohnen? - Seite 552
4Wohnzimmer: Wie Sofa, TV und Schränke stellen? 32
5Waschmaschine und Geschirrspüler in Ikea Metod Hochschrank? - Seite 532
6Planungsbeginn neue Küche - Seite 222
7Grundriss Stadtvilla / Anordnung Fenster, Feedback erwünscht - Seite 216
8Grobe Schnitzer im Grundriss? Küche zu klein? 39
9Grundriss Neubau Einfamilienhaus: Fenster/Türen/Innenwände Größe/Anordnung ok? - Seite 220
10auf welchen dieser Grundrisse können wir weiter aufbauen? - Seite 37287
11Grundriss Bungalow 150qm geschlossene Küche, überdachte Terrasse 40
12Standort Küche und Wohnzimmer - Seite 255
13OG Stadtville optimieren. Fenster Bodentief - Seite 16104
14Wohn-/Essbereich und Küche - Sinnvolle Aufteilung - Seite 336
15Küchenplanung Umbau: Frage zu Fenster und Elektrogeräten - Seite 241
16Nicht-bodentiefe Fenster im Wohnzimmer unmodern? Welche Vorhänge? - Seite 217
17Pfiffige Schlafzimmer Idee mit Ankleide gesucht - Seite 219
18Geschlossene oder offene Küche ? 11
19Hilfe bei der Anordnung der Fenster benötigt! 32
20Riesiges Problem mit dem Kondenswasser am Fenster 34

Oben