So, weiter gehts

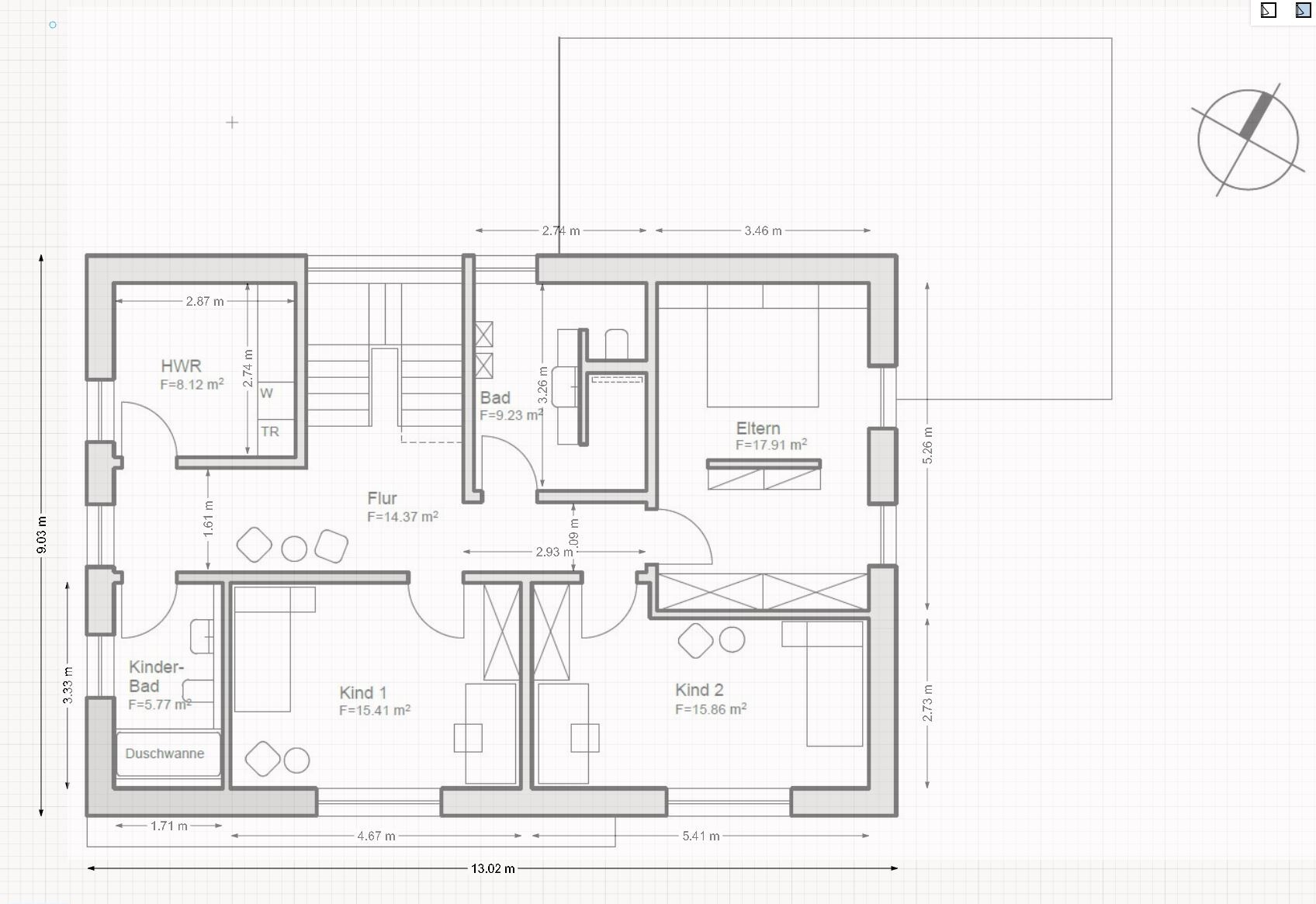
Unser Architekt hat sich unsere Variante mit einem dann notwendigen zweiten Treppenlauf im OG geprüft und (wie hier schon angemerkt) für nicht umsetzbar befunden.
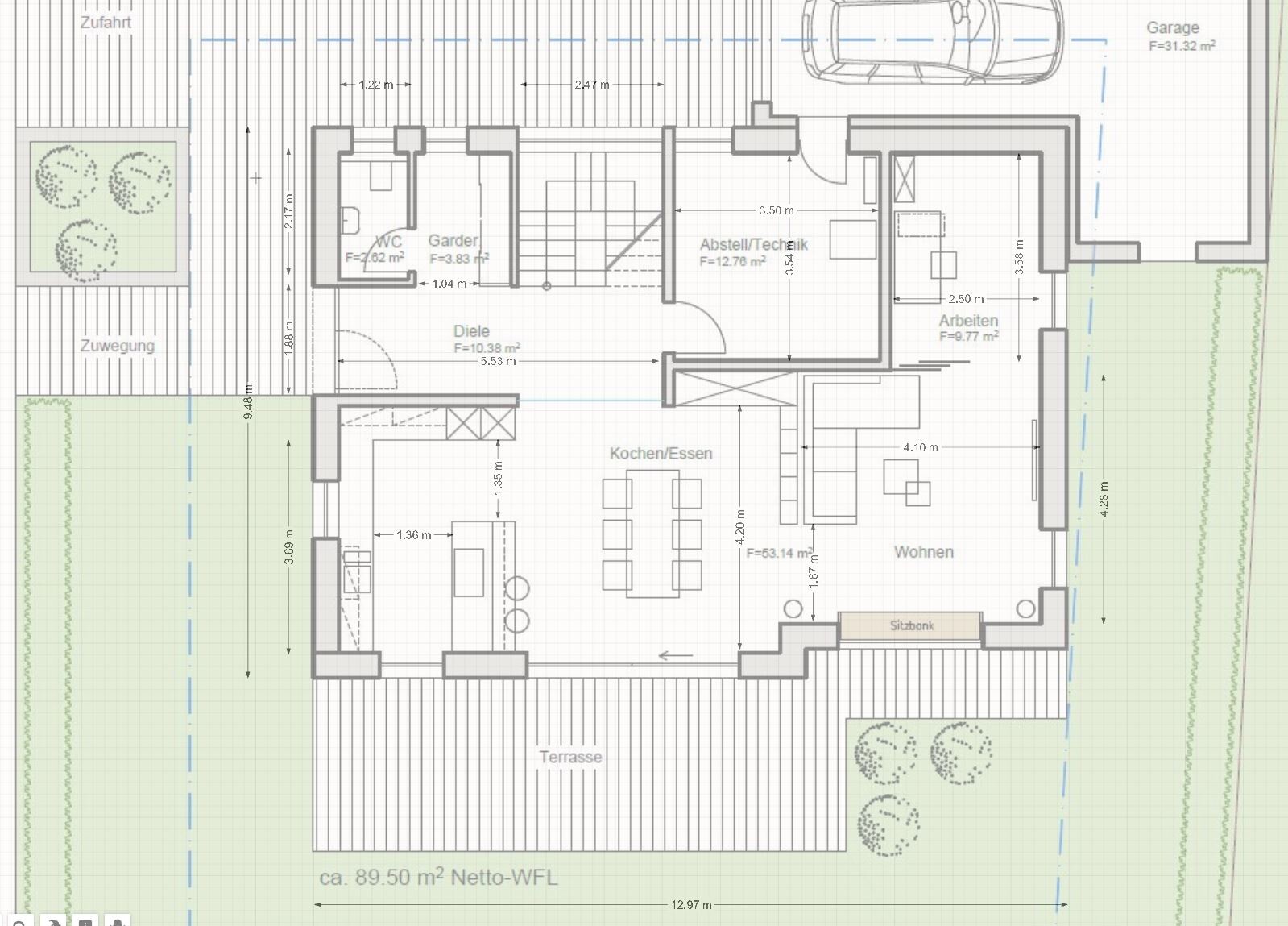
Neuer Vorschlag für das EG liegt vor, die Podesttreppe ist jetzt einer... Podesttreppe mit Stufen im Podest gewichen (hier gibts sicherlich einen Fachbegriff für). Führt dazu, dass die Treppe nicht mehr so weit in den Flur ragt.
Besonders gefällt uns hier die Lösung mit der leicht versteckten Garderobe im Flur. Hier würden wir vermutlich das Gäste-WC ein wenig kleiner machen, damit der Flur an der Stelle breiter ist. Den Anschlag der Haustür würden wir glaube ich auch noch auf die andere Seite legen.
Der gedrehte Tisch im Essbereich ist zwar auf den ersten Blick nur ein gedrehter Tisch, aber für uns im Kopf erschließen sich so die möglichen Laufwege deutlich besser und es tut der Raumstruktur gut. So würde ich auch vermutlich das Sofaeck ein wenig nach links rücken, damit dort ein wenig mehr Großzügigkeit herrscht (gell
@Würfel* 
)
OG hat so immer noch einen recht großen Flur. Hauswirtschaftsraum ist gefühlt sehr groß, Elternbad fehlt die Badewanne. Die Situation im Elternschlafzimmer können wir uns so ganz gut vorstellen, ist allerdings für unser Gefühl schon luxuriös groß.
Wir glauben, dass wir wieder (in unseren Augen) einen guten Schritt weiter gekommen sind und freuen uns über eure Kritik.