
K a t j a
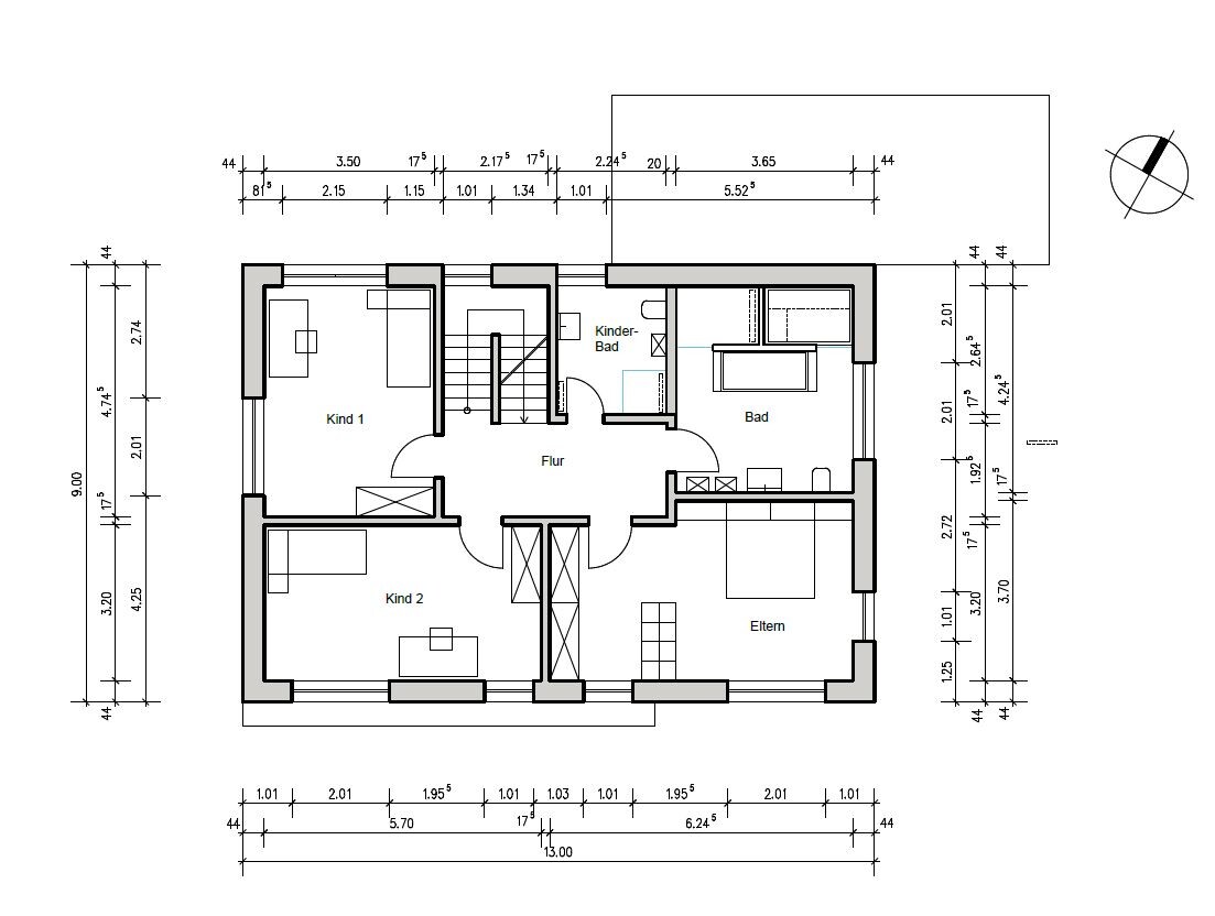
Das klingt ja nicht so schön. Das Dachgeschoss - was macht das preislich aus? Ich seh das in den Plänen nicht einmal. Kannst Du die letzten Entwürfe vielleicht noch mal einstellen mit allen Etagen?
3000 ist schon - naja nicht billig. Ist der die einzige Option? Hast Du alternative Anbieter gefragt?
3000 ist schon - naja nicht billig. Ist der die einzige Option? Hast Du alternative Anbieter gefragt?