V
Varrader
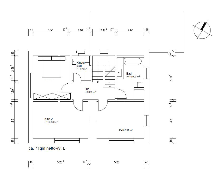
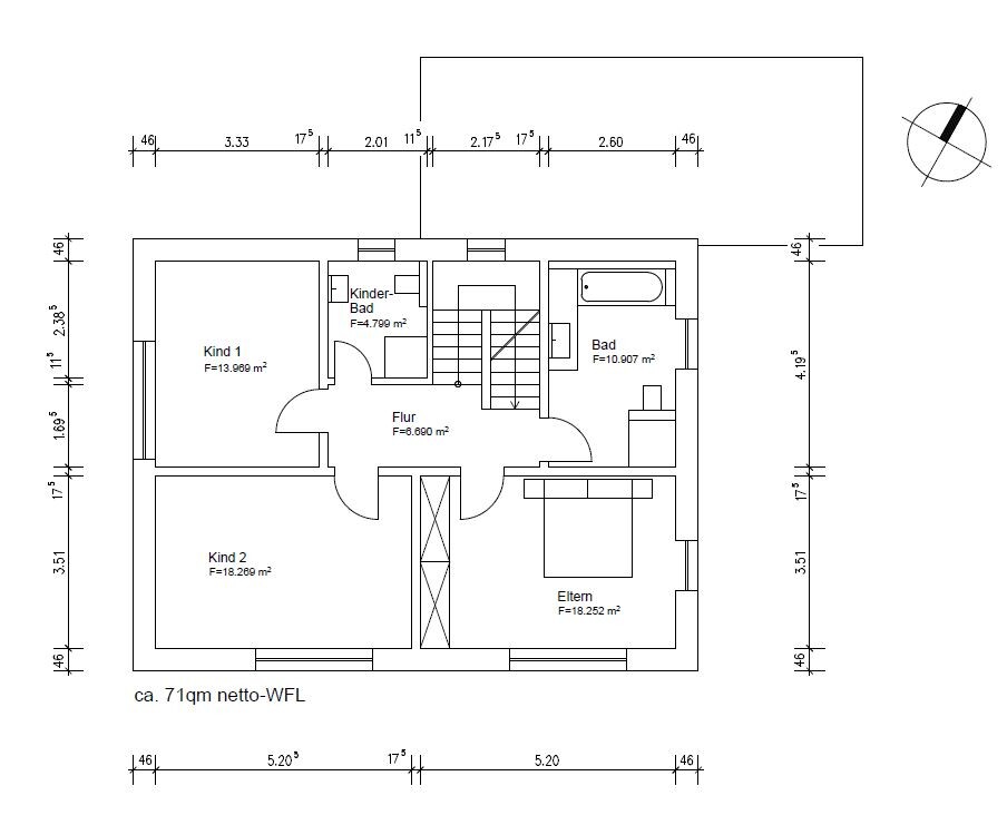
Mmh, also die Stufentiefe und Höhe ist mir eigentlich relativ klar. Spannend ists natürlich, wie die Treppe da drunter von der Höhe her aufbaut, vermutlich würde man ja eine vorgefertigte Betontreppe verbauen.
Wir haben gerade 2,96m von OKF zu OKF, bei 16 Stufen macht das 18,5cm höhe pro Stufe. Die Tür wäre unter Stufe Nr. 12, macht also 2,22m. An der Stelle kann man denke ich gut mit einer 1,98m Standardtür leben (ansonsten hätte ich schon gerne 2,11m), aber ist ja dennoch knapp.
Aber abseits von der Detailfrage interessiert mich natürlich deine Meinung zu dem Konzept
Wir haben gerade 2,96m von OKF zu OKF, bei 16 Stufen macht das 18,5cm höhe pro Stufe. Die Tür wäre unter Stufe Nr. 12, macht also 2,22m. An der Stelle kann man denke ich gut mit einer 1,98m Standardtür leben (ansonsten hätte ich schon gerne 2,11m), aber ist ja dennoch knapp.
Aber abseits von der Detailfrage interessiert mich natürlich deine Meinung zu dem Konzept