Grundriss-Planung Einfamilienhaus ca. 170m² + DG als modernes Klinkerhaus

4,80 Stern(e) 16 Votes
Zuletzt aktualisiert 18.11.2025
Sie befinden sich auf der Seite 11 der Diskussion zum Thema: Grundriss-Planung Einfamilienhaus ca. 170m² + DG als modernes Klinkerhaus
>> Zum 1. Beitrag <<

V

Varrader

Der Esstisch ist normalerweise der beste Teil des Allraums, um selbigen zu betreten. [...]
Das heißt du hättest damit kein Problem oder verstehe ich dich falsch?

Bzgl. DG, ich denke das könnte man mit Dachfenster über dem treppenlauf entschärfen damit man nicht krabbeln muss.

Was meinst du mit Spitze?
 
V

Varrader

Naja, der Tisch steht ja in dem Fall quer vor der Tür...

DG haben wir bislang nur grob skizziert. Nach Westen hin ein Kinderzimmer, nach Osten Arbeitszimmer, dazwischen ein kleiner Abstell-/Technikraum mit der Kontrollierte-Wohnraumlüftung.
 
askforafriend

askforafriend

Den esstisch würde ich persönlich niemals an die Insel schieben - es sei denn, man hat wirklich Platzprobleme! Mangelnde Zugänglichkeit der Insel (Schubladen etc) gepaart mit einem Stirn-Sitzplatz weniger sind kein guter Deal, sondern allenfalls ein Kompromiss aufgrund fehlenden Platzes.
 
V

Varrader

@askforafriend Ich würde das eher so sehen, dass mir die Position einen länger ausziehbaren Tisch ermöglicht. Mit den Schubladen hast du recht, falls der Platz benötigt wird.
Letztendlich treibt mich der Gedanke der Laufwege um, dass man immer um den Tisch rennen muss. Vielleicht ist das aber auch einfach zu verkopft...
Dadurch würde sich festlegen, ob man die Schiebetür links oder rechts öffnen kann. Hat natürlich auch wiederum Einfluss darauf, wie man seine Sitzgruppe auf der Terrasse stellen kann/möchte.

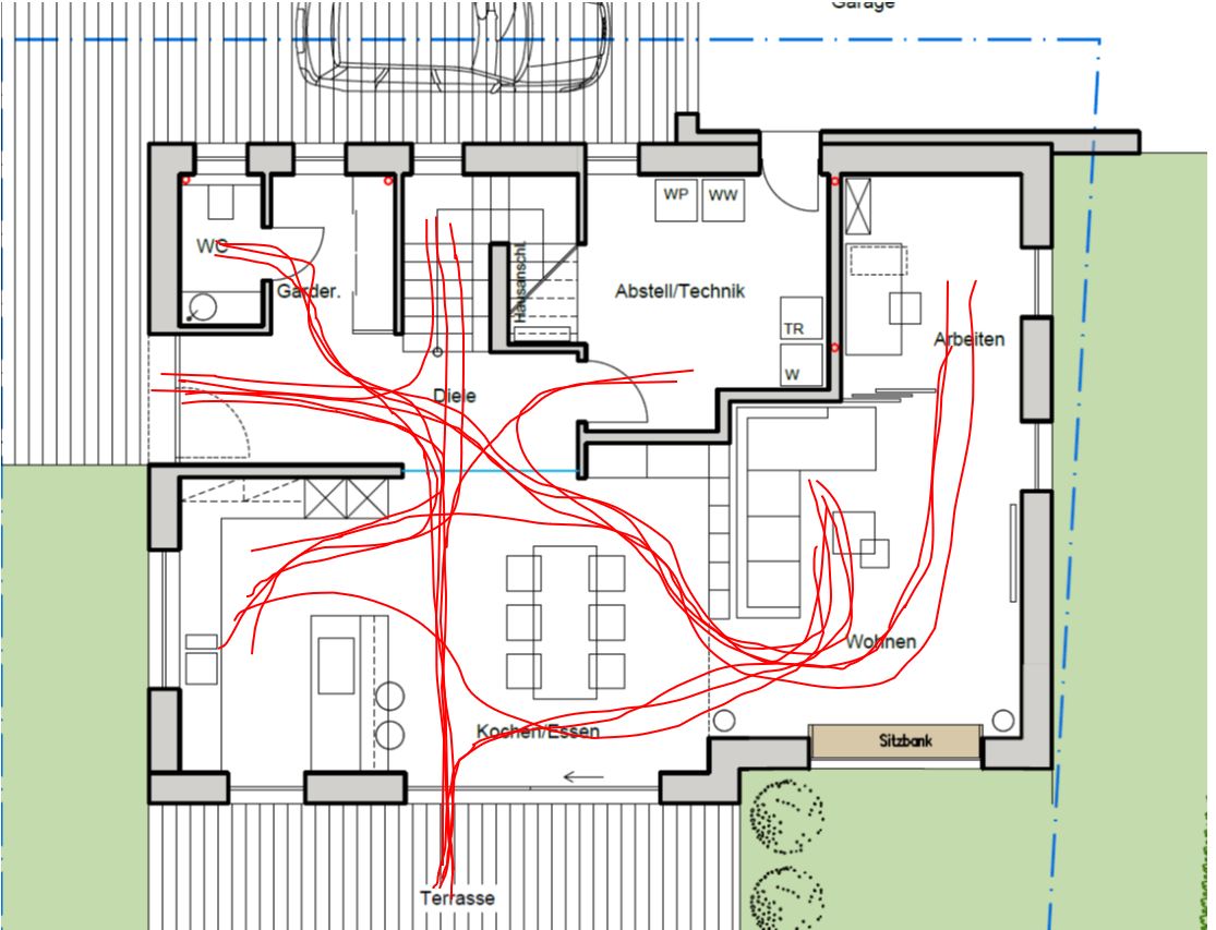
Grundriss eines Hauses mit Küche/Essen, Wohnen, Terrasse und Technikraum; rote Kabelwege markiert.


Grundriss: Wohnzimmer Essbereich, Diele, WC, Abstell/Technik, Arbeiten, Terrasse, Garten, Sitzbank.
 
K a t j a

K a t j a

Sehe hier kein Problem mit den Laufwegen. Wichtig ist bei denen eher, dass sie überhaupt da sind und nicht verstellt. Ich persönlich würde den Esstisch nicht andocken, wenn es nicht wesentliche Platzvorteile bietet. Man verliert den Arbeitsbereich auf der anderen Seite der Insel. Ok, andere schwören drauf, dass man quasi neben dem Koch sitzt und Mutti die Frühstücksteller direkt von vorne befüllen kann. Ist alles Geschmackssache, denke ich.
 
Zuletzt aktualisiert 18.11.2025
Im Forum Grundrissplanung / Grundstücksplanung gibt es 2536 Themen mit insgesamt 87971 Beiträgen


Ähnliche Themen zu Grundriss-Planung Einfamilienhaus ca. 170m² + DG als modernes Klinkerhaus
Nr.ErgebnisBeiträge
1Niedrige oder Mittlere Schubladen - Seite 214
2Schalter für Rollläden am Fenster oder an der Tür? 38
3Ausbesserung der Tür machte es noch "schlimmer" - Seite 225
4Tür Schiebeeinrichtung falschherum - Seite 221
5Suche Gartenhaus 3x3 Meter mit hoher Tür 15
6Kann eine Hebeschiebetür so dicht sein wie eine normale Tür? - Seite 319
7Abdichtung Terrassenaustritt / -Tür bei zweischaligem Mauerwerk - Seite 210
8Anschlagrichtung und Position Tür im Bad OG - Seite 314
9Walk-In Dusche, Spritzwasser, brauche ich eine Tür? 35
10Einrichtung Ankleidezimmer Tür zum Badezimmer - Seite 334
11Duschwanne 140+ cm lang: Tür dadurch einsparen? 24
12Pflastern bis an die Tür - wie Abschluss? 15
13Badplanung - Dusche ohne Tür - Seite 210
14Ikea Faktum Eckhängeschrank - Tür / Scharniere - Seite 210
15Tür Haus/Garage: Nebeneingangstür als Brandschutztür? - Seite 327
16Tür nach innen oder außen aufgehend? Was ist normal? - Seite 432
17Besta-Regal mit Tür und Schublade Inreda/IKEA, brauche Hilfe 11
18Hörmann T30 Tür zwischen Wohnhaus & Garage - U-Wert - Seite 211
19Pendelleuchte und ausgezogener Esstisch - Seite 325
20Kücheninsel und Esstisch - Welchen Grundriss wählen? - Seite 421

Oben