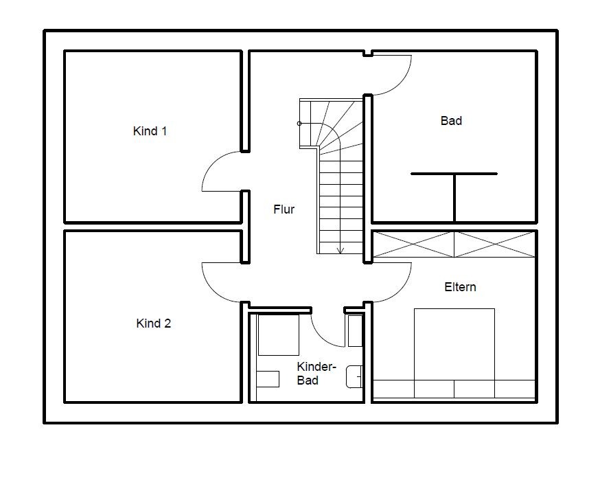
Tja, egal wie man sich dreht und wendet, die gerade Treppe holt einen immer wieder ein, wenn man das OG plant. Die gerade Treppe zerschneidet das OG immer. Wenn man sich mal das Schneider von Baufritz im Anhang ansieht fällt da das Kinderbad weg wenn man aufs DG möchte.

Hat da jemand eine Idee zu?
Das Problem ist bei einer Podesttreppe nicht vorhanden, hier mal das (unserer Meinung nach) Optimum was Flurgröße, Laufwege und Raumnutzung angeht.
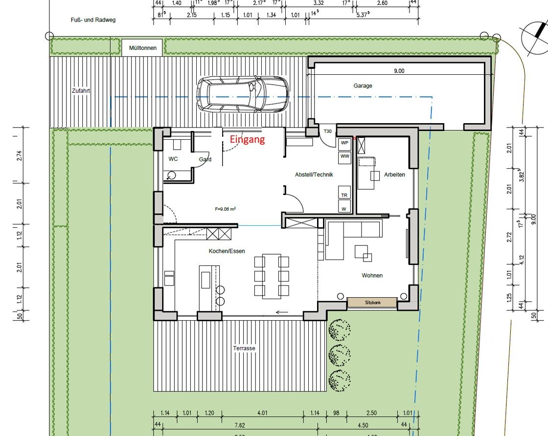
Da fehlt uns wiederum ein wenig die Fantasie, wie mit der Treppe ein EG ohne Arbeitszimmer aussehen könnte, eine Idee ebenfalls im Anhang.
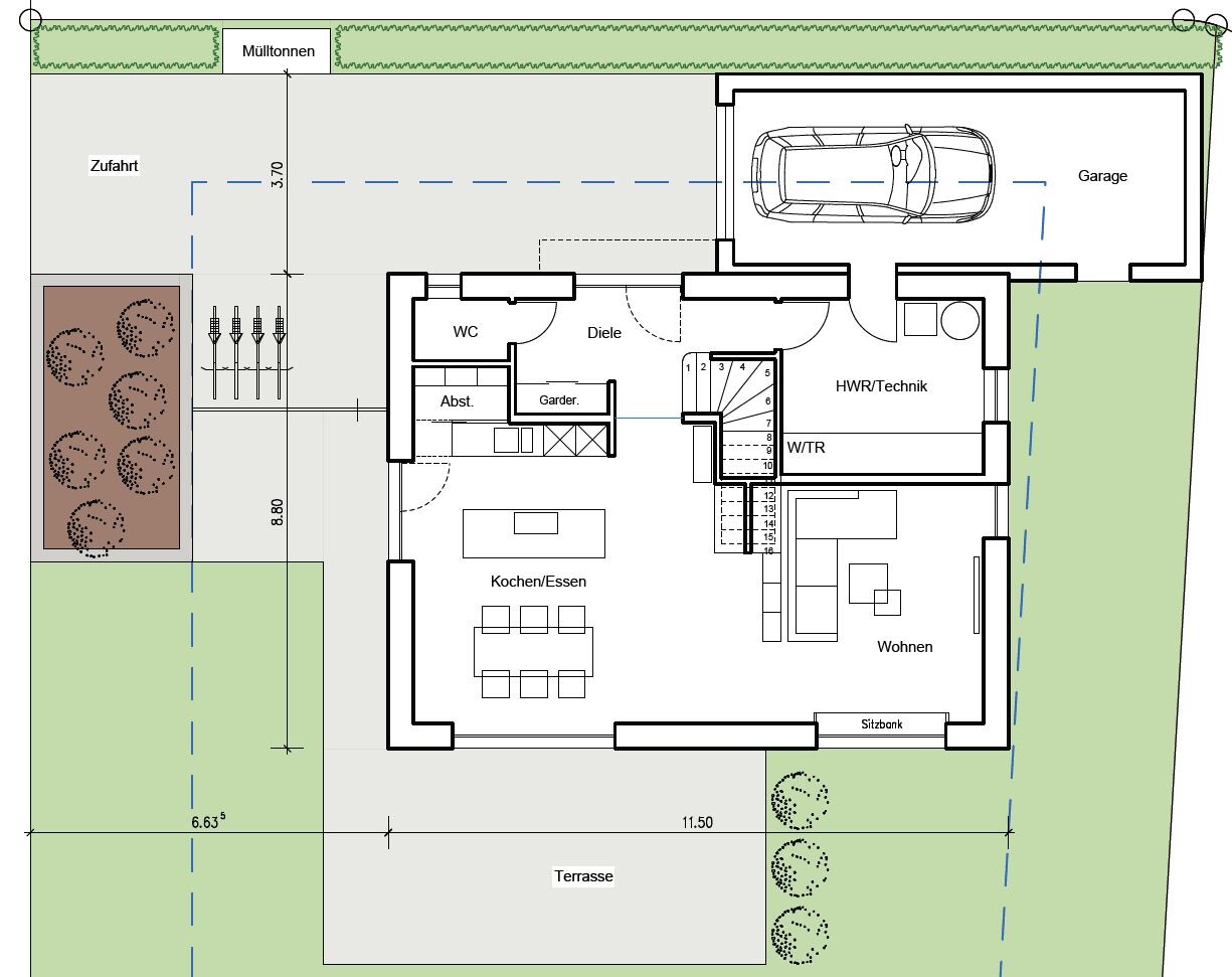
Die im Nachbarthread von
@K a t j a genannten Grundrisse gehen ja in eine ähnliche Richtung, allerdings alle mit Arbeitszimmer im Erdgeschoss.