ᐅ Entwurf Einfamilienhaus 250 m^2, 2 Vollgeschosse mit Walmdach
Erstellt am: 19.10.18 20:28
M
moejoe89Fragenkatalog/nähere Infos:
Bebauungsplan/Einschränkungen: keine
Größe des Grundstücks: 1200 m^2
ebenes Grundstück
Randbebauung: Wohnhäuser mit Satteldach
Anzahl Stellplatz: 2
Geschossigkeit: 2 Vollgeschosse
Dachform: Walmdach
Stilrichtung: Neoklassisch/modern
Ausrichtung: Süden
Maximale Höhen: 7,2 m bis Dachtraufe
weitere Vorgaben: keine
Anforderungen der Bauherren
Stilrichtung: modern Dachform: Walmdach Gebäudetyp: Stadtvilla
Keller: nein Geschosse: 2 Vollgeschosse
Anzahl der Personen: 2 (vorerst, Familie geplant), Alter: 28 und 26
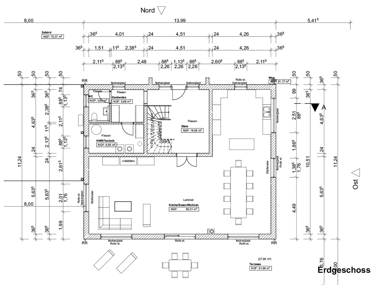
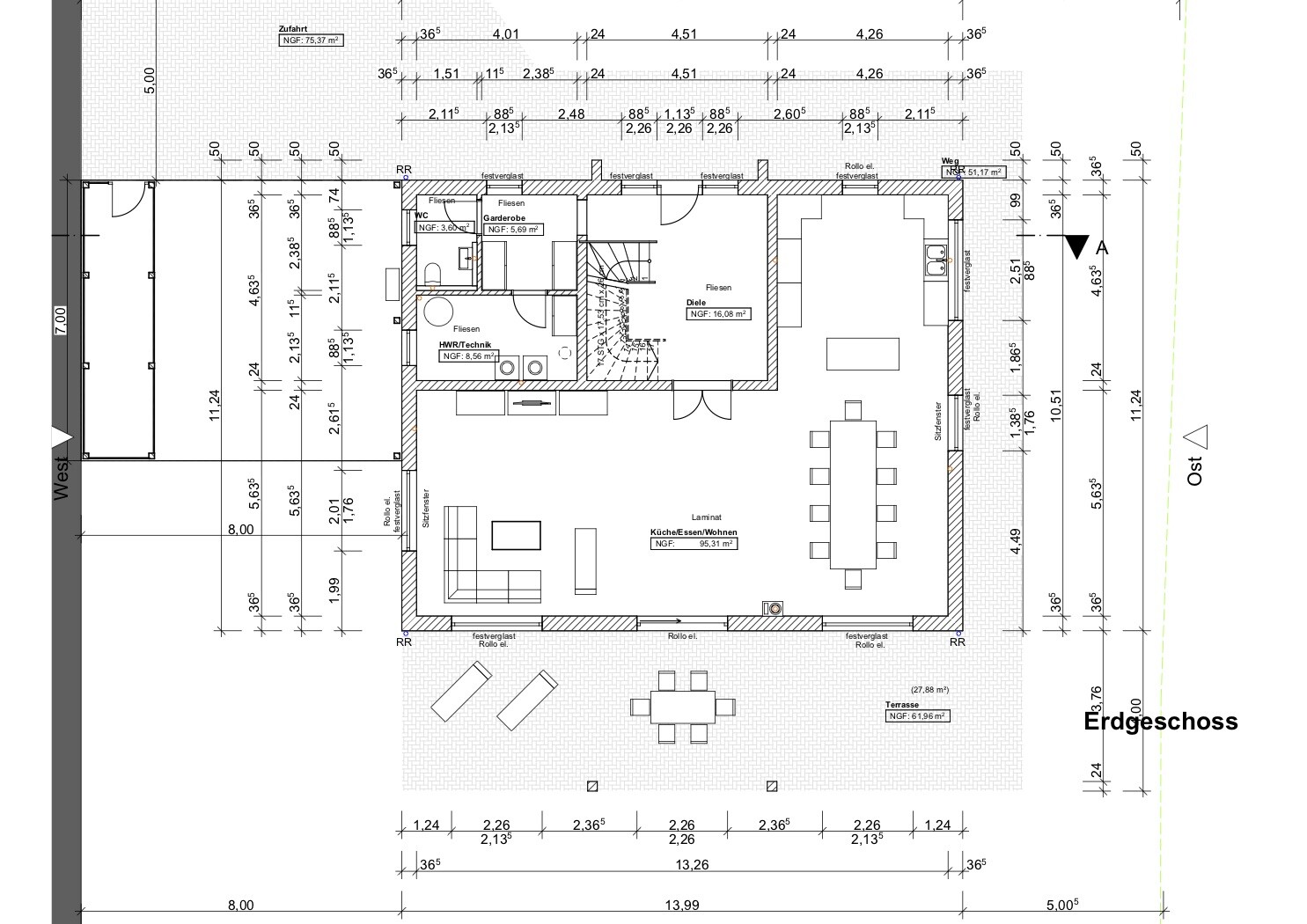
Raumbedarf im EG: 130m^2, OG: 120m^2
Schlafgäste pro Jahr: ka
geschlossene Architektur
konservativ/moderne Bauweise
offene Küche, Kochinsel
Anzahl Essplätze: 10
Kamin: ja
Musik/Stereowand: ja
Balkon, Dachterrasse: ja
Garage, Carport: ja
Nutzgarten, Treibhaus
Hausentwurf
Von wem stammt die Planung:
Fertighaus-Grundriss abgeändert
Besonders gefällt uns die Galerie und harmonische, symmetrische äußere Gestalt
Preisschätzung: 360k Euro (inkl. Küche, Bad, Böden Elektrik, Heizung... Schlüsselfertig)
Persönliches Preislimit fürs Haus, inkl Ausstattung: 400k Euro
favorisierte Heiztechnik: Luftwasser-Wärmepumpe + dezentrales Lüftungssystem
Wenn Ihr verzichten müsst, auf welche Details/Ausbauten
-könnt Ihr verzichten: Sauna
-könnt Ihr nicht verzichten: Kachel-Pelletofen
Warum ist der Entwurf so geworden, wie er jetzt ist?
- Ein Gemisch aus vielen Beispielen aus div. Magazinen und in erster Linie einem Fertighaus-Grundriss
Was macht ihn in Euren Augen besonders gut oder schlecht?
offenes Wohnen, Geräumigkeit mit der Möglichkeit für gehobene Inneneinrichtung

Bebauungsplan/Einschränkungen: keine
Größe des Grundstücks: 1200 m^2
ebenes Grundstück
Randbebauung: Wohnhäuser mit Satteldach
Anzahl Stellplatz: 2
Geschossigkeit: 2 Vollgeschosse
Dachform: Walmdach
Stilrichtung: Neoklassisch/modern
Ausrichtung: Süden
Maximale Höhen: 7,2 m bis Dachtraufe
weitere Vorgaben: keine
Anforderungen der Bauherren
Stilrichtung: modern Dachform: Walmdach Gebäudetyp: Stadtvilla
Keller: nein Geschosse: 2 Vollgeschosse
Anzahl der Personen: 2 (vorerst, Familie geplant), Alter: 28 und 26
Raumbedarf im EG: 130m^2, OG: 120m^2
Schlafgäste pro Jahr: ka
geschlossene Architektur
konservativ/moderne Bauweise
offene Küche, Kochinsel
Anzahl Essplätze: 10
Kamin: ja
Musik/Stereowand: ja
Balkon, Dachterrasse: ja
Garage, Carport: ja
Nutzgarten, Treibhaus
Hausentwurf
Von wem stammt die Planung:
Fertighaus-Grundriss abgeändert
Besonders gefällt uns die Galerie und harmonische, symmetrische äußere Gestalt
Preisschätzung: 360k Euro (inkl. Küche, Bad, Böden Elektrik, Heizung... Schlüsselfertig)
Persönliches Preislimit fürs Haus, inkl Ausstattung: 400k Euro
favorisierte Heiztechnik: Luftwasser-Wärmepumpe + dezentrales Lüftungssystem
Wenn Ihr verzichten müsst, auf welche Details/Ausbauten
-könnt Ihr verzichten: Sauna
-könnt Ihr nicht verzichten: Kachel-Pelletofen
Warum ist der Entwurf so geworden, wie er jetzt ist?
- Ein Gemisch aus vielen Beispielen aus div. Magazinen und in erster Linie einem Fertighaus-Grundriss
Was macht ihn in Euren Augen besonders gut oder schlecht?
offenes Wohnen, Geräumigkeit mit der Möglichkeit für gehobene Inneneinrichtung
JPG nicht lesbar bei mir
Dieses große Haus mit dem Budget nicht machbar. Wenn du günstig baust 500.000 + Baunebenkosten
Dann warst du wirklich sparsam. Allerdings hat der Grundriss genug Luft einzusparen ohne das es Weh tut.
Es wirkt aufgepumpt
Diele viel zu groß, Küche finde ich ungünstig geschnitten. Die beiden Küchenzeilen zu weit auseinander
Tisch gefällt mir
Zwischen Wohnen und Essen kommt da noch ein Billardtisch rein?
zu viel Platz
Haustechnik/Hauswirtschaft viel zu klein
Zeichne mal Lüftungsanlage, Sicherungskasten, Hausanschlüsse, Waschmaschine, Wäschetrockner, Wäscheständer, Wäschesammler ein.
Jetzt ist noch nicht ein Regal für Weihnachtsdekoration, Werkzeug etc drinnen.
Ankleide riesig
Schlafzimmer fehlt da eine Wand?
Nur 1 Kinderzimmer?
Keine Badewanne?
Würde im OG einen Hauswirtschaftsraum einplanen
Dieses große Haus mit dem Budget nicht machbar. Wenn du günstig baust 500.000 + Baunebenkosten
Dann warst du wirklich sparsam. Allerdings hat der Grundriss genug Luft einzusparen ohne das es Weh tut.
Es wirkt aufgepumpt
Diele viel zu groß, Küche finde ich ungünstig geschnitten. Die beiden Küchenzeilen zu weit auseinander
Tisch gefällt mir
Zwischen Wohnen und Essen kommt da noch ein Billardtisch rein?
zu viel Platz
Haustechnik/Hauswirtschaft viel zu klein
Zeichne mal Lüftungsanlage, Sicherungskasten, Hausanschlüsse, Waschmaschine, Wäschetrockner, Wäscheständer, Wäschesammler ein.
Jetzt ist noch nicht ein Regal für Weihnachtsdekoration, Werkzeug etc drinnen.
Ankleide riesig
Schlafzimmer fehlt da eine Wand?
Nur 1 Kinderzimmer?
Keine Badewanne?
Würde im OG einen Hauswirtschaftsraum einplanen
Ähnliche Themen