Grundriss - Planung Einfamilienhaus 2 Vollgeschosse - Stadtvilla

4,80 Stern(e) 9 Votes
Zuletzt aktualisiert 05.10.2025
Sie befinden sich auf der Seite 12 der Diskussion zum Thema: Grundriss - Planung Einfamilienhaus 2 Vollgeschosse - Stadtvilla
>> Zum 1. Beitrag <<

W

Würfel*

Sind euch eure Autos bzw. die Doppelgarage so wichtig? Ich habe mal einen Vergleich zu einer breiten Einzelgarage gemacht, da hättet ihr deutlich mehr von eurem Südgarten. Auto 2 müsste dann im Vorgarten auf einem extra Stellplatz oder vor der Garage stehen. Ist ja irre, was ihr da für eine Fläche pflastert, nur um die 90 Grad-Wendung zu vollführen... Wir haben auch 550 qm Grundstück und da bleibt jetzt nicht so viel übrig, wenn man da vorne so viel wegnimmt.


Grundriss eines Hauses mit Küche, Essbereich, Wohnzimmer, Arbeitszimmer und Terrasse

Grundriss eines Hauses mit Küche, Essbereich, Wohnzimmer, Diele, Treppe, Arbeitszimmer und Terrasse.


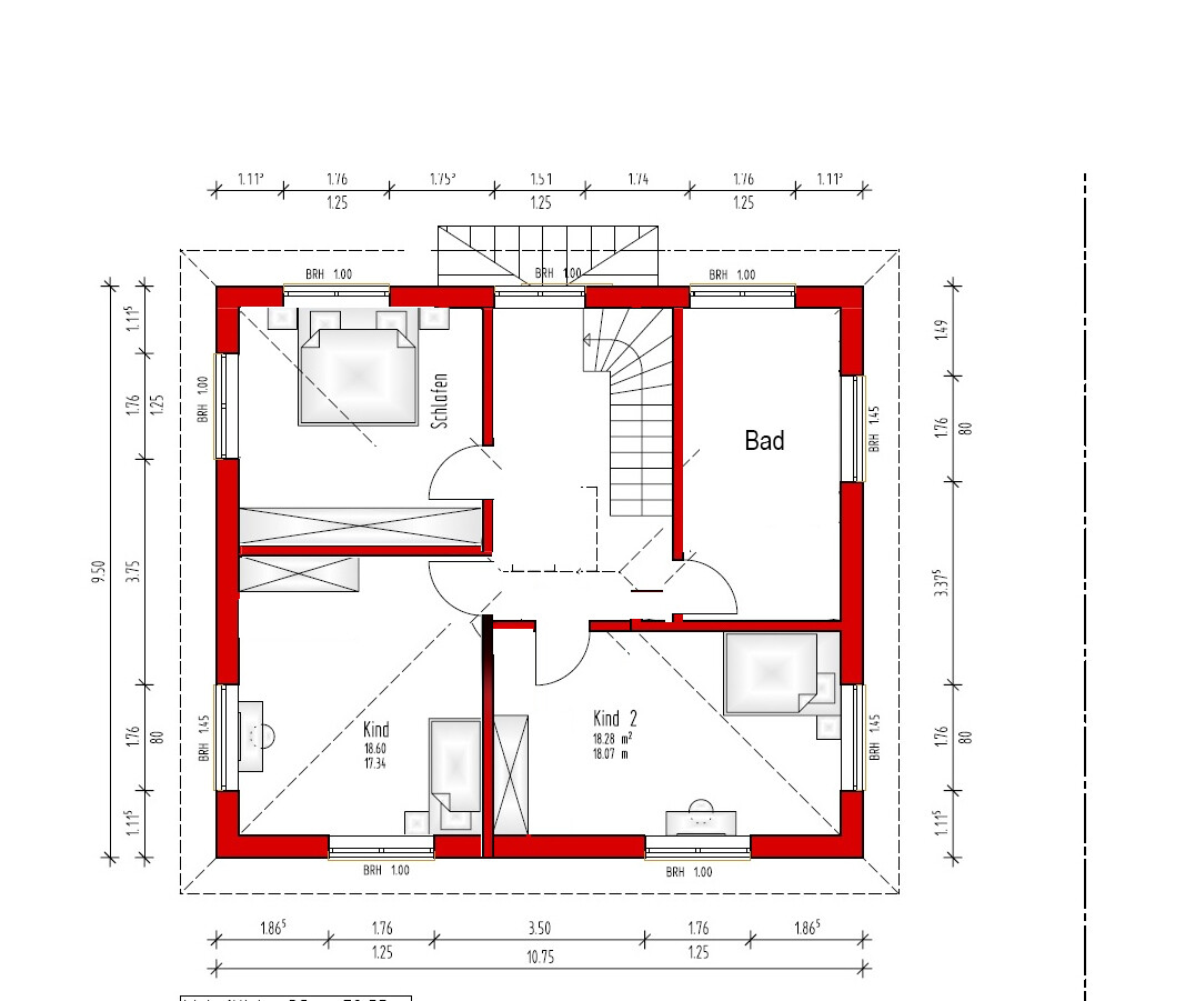
Das OG gefällt mir gut, auch wenn über 20 qm Bad nicht unbedingt notwendig sind. Beim EG habe ich die gleichen Kritikpunkte wie die anderen. Es ist zwar das typische L, aber es ist mit sehr dünnem Stift geschrieben, sprich die Schenkel sind sehr schmal und lang. Ich würde mal versuchen die Treppe etwas nach rechts zu schieben, um das besser zu verteilen. Bei meiner Idee hier im Anhang habe ich mich bei meinem eigenen Grundriss bedient. Wir haben auch ein "L" als Allraum und Küche, WC und Garderobe so angeordnet wie hier gezeigt. Der Eingangsbereich würde bei Dir so auch schöner und symmetrischer aussehen. Fenster OG Galerie könnte genau über der Haustüre sitzen.

Die Terrasse würde ich vor das Wohnzimmerfenster verlagern, das ja nicht bodentief ist. Sonst schaust du vom esstisch aus nur in die Stuhlbeine deiner Gartenmöbel anstatt in den Garten. Austritt mit kleinem Weg zur Terrasse kann ja trotzdem im Esszimmer sein.


Grundriss EG: Offene Küche mit Insel, Essbereich, Wohnzimmer, Arbeitsraum, Treppe, Terrasse.

Grundriss eines Hauses: zentrale Treppe, Schlafzimmer, Bad, zwei Kinderzimmer, rote Außenwände.
 
P

pagoni2020

Sind euch eure Autos bzw. die Doppelgarage so wichtig? Ich habe mal einen Vergleich zu einer breiten Einzelgarage gemacht, da hättet ihr deutlich mehr von eurem Südgarten. Auto 2 müsste dann im Vorgarten auf einem extra Stellplatz oder vor der Garage stehen. Ist ja irre, was ihr da für eine Fläche pflastert, nur um die 90 Grad-Wendung zu vollführen... Wir haben auch 550 qm Grundstück und da bleibt jetzt nicht so viel übrig, wenn man da vorne so viel wegnimmt.

Anhang anzeigen 53524 Anhang anzeigen 53525

Das OG gefällt mir gut, auch wenn über 20 qm Bad nicht unbedingt notwendig sind. Beim EG habe ich die gleichen Kritikpunkte wie die anderen. Es ist zwar das typische L, aber es ist mit sehr dünnem Stift geschrieben, sprich die Schenkel sind sehr schmal und lang. Ich würde mal versuchen die Treppe etwas nach rechts zu schieben, um das besser zu verteilen. Bei meiner Idee hier im Anhang habe ich mich bei meinem eigenen Grundriss bedient. Wir haben auch ein "L" als Allraum und Küche, WC und Garderobe so angeordnet wie hier gezeigt. Der Eingangsbereich würde bei Dir so auch schöner und symmetrischer aussehen. Fenster OG Galerie könnte genau über der Haustüre sitzen.

Die Terrasse würde ich vor das Wohnzimmerfenster verlagern, das ja nicht bodentief ist. Sonst schaust du vom Esstisch aus nur in die Stuhlbeine deiner Gartenmöbel anstatt in den Garten. Austritt mit kleinem Weg zur Terrasse kann ja trotzdem im Esszimmer sein.

Anhang anzeigen 53526 Anhang anzeigen 53527
Supertolle Lösung auch bzgl. der Schränke in Küche und Flur. Küche sowieso. Das wäre MEIN Grundrsiss !
 
E

exto1791

Sind euch eure Autos bzw. die Doppelgarage so wichtig? Ich habe mal einen Vergleich zu einer breiten Einzelgarage gemacht, da hättet ihr deutlich mehr von eurem Südgarten. Auto 2 müsste dann im Vorgarten auf einem extra Stellplatz oder vor der Garage stehen. Ist ja irre, was ihr da für eine Fläche pflastert, nur um die 90 Grad-Wendung zu vollführen... Wir haben auch 550 qm Grundstück und da bleibt jetzt nicht so viel übrig, wenn man da vorne so viel wegnimmt.

Anhang anzeigen 53524 Anhang anzeigen 53525

Das OG gefällt mir gut, auch wenn über 20 qm Bad nicht unbedingt notwendig sind. Beim EG habe ich die gleichen Kritikpunkte wie die anderen. Es ist zwar das typische L, aber es ist mit sehr dünnem Stift geschrieben, sprich die Schenkel sind sehr schmal und lang. Ich würde mal versuchen die Treppe etwas nach rechts zu schieben, um das besser zu verteilen. Bei meiner Idee hier im Anhang habe ich mich bei meinem eigenen Grundriss bedient. Wir haben auch ein "L" als Allraum und Küche, WC und Garderobe so angeordnet wie hier gezeigt. Der Eingangsbereich würde bei Dir so auch schöner und symmetrischer aussehen. Fenster OG Galerie könnte genau über der Haustüre sitzen.

Die Terrasse würde ich vor das Wohnzimmerfenster verlagern, das ja nicht bodentief ist. Sonst schaust du vom Esstisch aus nur in die Stuhlbeine deiner Gartenmöbel anstatt in den Garten. Austritt mit kleinem Weg zur Terrasse kann ja trotzdem im Esszimmer sein.

Anhang anzeigen 53526 Anhang anzeigen 53527
Danke für den Input.

Doppelgarage definitiv ein Muss, ja. Sonst hätten wir auch überlegt die Garage sogar ans Haus anzuschließen, allerdings ist dies größentechnisch nur mit einer Einzelgarage realisierbar.
Finde unseren Hof ziemlich cool groß (ich stehe auf einen großen Hof ehrlich gesagt) - außerdem haben dann auch später die Kinder noch einen Stellplatz, genau so wie der Besuch (Straßensituation im Neubaugebiet nicht wirklich so toll...). Wie ich finde haben wir auch einen Garten der für unsere Verhältnisse mehr als nur groß genug ist.. Umso mehr Garten umso mehr Arbeit - finde, dass der in einer super Relation steht.

Bad hat keine 20qm, sondern 15.

Die Idee ist echt ganz gut mit dem Grundriss - allerdings wollen wir nicht diese typische Kochinsel haben. Der Herd soll an der Wand sein - dadurch kommt keine richtige Insel-Lösung in Frage.
Außerdem werden wir jetzt eine Türe einbauen zur Küche - dies wird mit diesem Grundriss auch sehr schwierig.
Die Türe lockert dann unseren Grundriss extrem auf. Die Küche wird dann genau so wie wir es uns vorstellen - mit einer sehr langen großen Arbeitsfläche in der Westseite. Haben schon ziemlich genaue Vorstellungen, die wir dann mal mit unserem Küchenbauer durch gehen werden :)
 
11ant

11ant

Doppelgarage definitiv ein Muss, ja. Sonst hätten wir auch überlegt die Garage sogar ans Haus anzuschließen, allerdings ist dies größentechnisch nur mit einer Einzelgarage realisierbar.
Finde unseren Hof ziemlich cool groß (ich stehe auf einen großen Hof ehrlich gesagt)
Ich freue mich ja über jede Garage ohne Verbindungstürdogma, vollziehe die Aussage mit der größentechnisch sonst nicht realisierbaren Ankoppelung aber abstrakt gerade nicht nach. Seiner Herzdame den Hof zu machen, darf gerne eine Renaissance erleben (meint aber nicht das Kehren der Verkehrsfläche gleichen Namens).
 
E

exto1791

Ich freue mich ja über jede Garage ohne Verbindungstürdogma, vollziehe die Aussage mit der größentechnisch sonst nicht realisierbaren Ankoppelung abstrakt gerade nicht nach. Seiner Herzdame den Hof zu machen, darf gerne eine Renaissance erleben (meint aber nicht das Kehren der Verkehrsfläche gleichen Namens).
Grenzabstände können mit einer 6m Garage nicht eingehalten werden --> sprich: nicht erlaubt.
 
P

Pinkiponk

- Auch wenn Ihr bei Übernachtungsgäste "-" angegeben habt, wird sich das vermutlich mit Kindern ändern. So lange die Kinder klein sind, wird vielleicht doch hin und wieder mal ein Babysitter übernachten, später dann Freunde/Freundinnen. Insofern wäre es evtl. vorteilhaft, das Gäste-WC mit einer Dusche zu planen. Außerdem scheint 1 (ein) Badezimmer für einen Vier-Personen-Haushalt nicht mehr zeitgemäß zu sein, wie wir von unserem Hausverkauf d.J. wissen.

- Obwohl ich selbst nicht koche, bin ich ein großer Fan davon, wenn der Koch/die Köchin mit einem Schritt im Garten, an einem Kräuter-Hochbeet steht. Vielleicht könnt Ihr aus der "Fenster-Kipp-Ecke" doch noch eine Terrassentür extrahieren. Grundsätzlich gefällt es mir nicht, wenn Fenster nicht frei zugänglich sind, aber da gehen die Meinungen auseinander.

- Die Fernsehwand könnte vielleicht mit einem Schwenkarm in die gegenüberliegende Ecke, damit Ihr vom Sofa aus nach draußen blicken könnt.

- Wäre im Arbeitszimmer Tageslicht von zwei Seiten nicht schöner? Außer der Arbeitende entwickelt Computerspiele, dann ist der Raum sowieso immer dunkel. ;-)
 
Zuletzt aktualisiert 05.10.2025
Im Forum Grundrissplanung / Grundstücksplanung gibt es 2510 Themen mit insgesamt 87152 Beiträgen


Ähnliche Themen zu Grundriss - Planung Einfamilienhaus 2 Vollgeschosse - Stadtvilla
Nr.ErgebnisBeiträge
1Grundriss-Planung und Platzierung - Einfamilienhaus ca. 200qm auf 900qm Grundstück 55
2Meinung zum Grundriss eines geplanten Bauhauses - Seite 323
3Erster Grundriss-Versuch für Kettenhaus auf kleinem Grundstück - Seite 494
4Grundriss Einfamilienhaus mit Doppelgarage und Terrasse - Seite 219
5Grundriss Halboffene Küche mit großem Essbereich - Detailfragen - Seite 212
6Grundriss Neubau Einfamilienhaus: Fenster/Türen/Innenwände Größe/Anordnung ok? 20
7Bungalow 135qm: Grundriss + Fenster - Seite 7104
8Grundriss Bungalow 140 qm 26
9Bungalow 130qm in L-Form inklusive Doppelgarage 35
10Grundriss-Planung Einfamilienhaus ca. 240qm mit Doppelgarage und Einliegerwohnung im Keller 16
11Grundriss Einfamilienhaus mit 2 Vollgeschossen mit ca. 185m² auf 575m² 11
12Grundriss-Idee 180 QM + Doppelgarage. 24
13Grundriss-Hilfe für Bungalow benötigt 33
14 Küchenplanung mit tiefen Fenster 43
15Grundriss mit KG auf Hanggrundstück 32
16Mal wieder Grundriss - Fertighaus kurz vor Bauantrag - Seite 322
17Unser Grundriss steht zur Diskussion - Seite 539
18Meinungen zu unserem Grundriss? 19
19Grundriss Bungalow - Was gibt es zu beachten? - Seite 5164
20Grundriss für 150qm Einfamilienhaus mit Wohnzimmer nach Norden 21

Oben