Grundriss Neubau Mehrfamilienhaus mit 3 Wohneinheiten, Wohnfläche ca. 350m²

4,60 Stern(e) 10 Votes
Zuletzt aktualisiert 22.11.2025
Sie befinden sich auf der Seite 4 der Diskussion zum Thema: Grundriss Neubau Mehrfamilienhaus mit 3 Wohneinheiten, Wohnfläche ca. 350m²
>> Zum 1. Beitrag <<

Y

ypg

Du irrst Dich, hier die Vorgaben aus dem Bebauungsplan.
Ja prima. Es ist immer sehr hilfreich, wenn man den Lageplan hier mit einstellt. Allerdings zählt ein Lageplan in Gänze (Legende und Zeichnung) Es ist vom Fragebogen her gefordert und ich habe ihn in #6 eingefordert. Da kam nichts. Dann schaut man sich den Entwurf an, fragt nach, wo Du die 5 Stellplätze lässt, und da kommt von Dir nichts.
Es ist schade, dass sich ein großer Teil der Diskussion um das Budget dreht, wenn das überhaupt nicht das Thema ist..
Weil hier keiner Lust und Zeit hat, jede Schnapsidee, Luftschloss oder Simshaus ernsthaft zu diskutieren. Du wärest nicht der erste. Und sorry: zum Budget sage ich einfach mal: Willkommen in 2024!
Dir werden ja auch andere Fragen gestellt, wo Du eben nicht drauf eingehst. Ich frage nach der Ver- und Entsorgung, nach den Stellplätzen, darauf kommt nichts von Dir. Man diskutiert hier, und wenn der TE nicht mitmacht, mit Falschinfos kommt oder sich rar macht oder stumm stellt, dann stimmt halt die Diskussion nicht.
Wer selbst plant, sollte sich vorab informieren.
Die Grundbedingungen müssen stimmen, dann geht es ins Detail!
Die Garage wird nicht gebaut, stattdessen wird ein Art "Schuppen" auf jeder Hausseite gebaut für Fahrräder und Gartenzeug.
Ich nehme mal an, die sind dann auch für den Müll?!
Aber nochmal: wo sind die 4,5 Stellplätze? Wenn Du auf jeder Seite Deinen Schuppen auf Grenze setzt, hast Du nicht mehr viel Platz.
Und deshalb bewegen wir uns derzeit bei einer Schnapsidee - Wohnraum wird oft ohne Stellplatzverpflichtung geplant
Wo ist die Barrierefreiheit?
Wo ist der Technikraum?
 
N

nevzatc21

Hallo YPG,

Uups, der Anbau von Wohneinheit EG dient als Technikraum?!
Also hat W1 keinen Abstellraum.
Sorry für die Verwirrung,
Die Garage mit Abstellraum kommt weg. Stattdessen kommt je Hausseite ein Geräteschuppen, hier gab es Planänderungen.
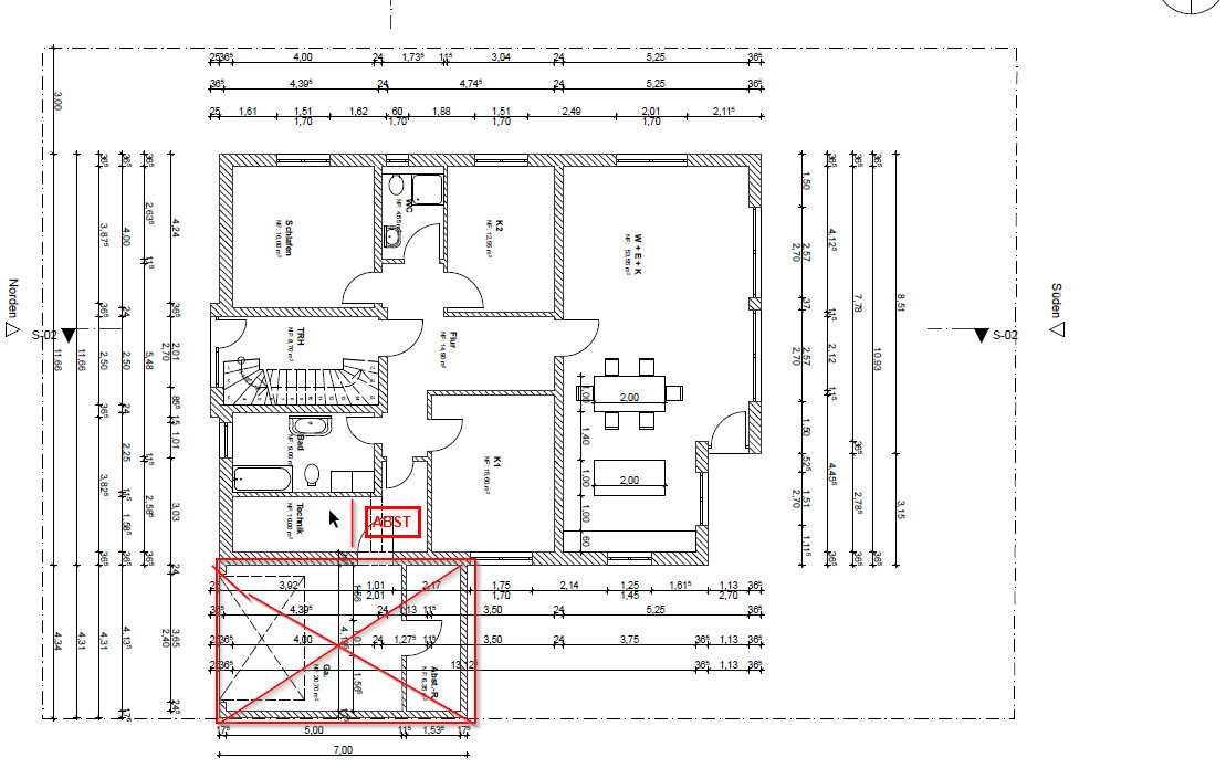
Für W1 ist der Plan, den Raum "Technik" zu teilen und den vorderen Bereich als Abstellraum und den Hinteren als Technik raum zu nutzen. hier die Skizze.


Grundrissplan eines Hauses mit Zimmern, Treppe und Esstischbereich; roter Bereich unten links.


Es gibt quasi noch keinen separaten Bereich für Technik, Waschmaschine und Fahrräder. Gibt es den Bauingenieur oder ist das hier eine Laienplanung?
Gebaut wird in Hessen? Dann verweise ich auf die HBO, wo zudem steht, dass eine Wohneinheit barrierefrei zu planen ist.
Das ist hier nicht der Fall Und kann auch nur W1 betreffen, da kein Fahrstuhl geplant ist.
Korrekt, im aktuellen Plan ist vorgesehen, dass die Wäsche in der Wohnung gewaschen wird. Dafür sollte dann genug Platz für Waschmaschine und Trockner im Bad sein. Ansonsten kann im Balkon aufgehangen werden. Die Haustechnik befindet sich im EG raum "Technik" (Mehrspartenhausanschluss, Fernwärmestation, Zählerschrank etc.). Für Fahrradstellplätze wird mit Geräteschuppen gesorgt.
Wohnung im EG ist barrierefrei. 1 barrierefreie Wohnung ist bei einem 3-FH ausreichen.

Wenn ich mir das Dusch-WC anschaue, sind es im RBM 173cm Breite. Da passt dann eine 80er Dusche rein, wenn daneben eine Toilette steht.
In einem Familiengrundriss sollte zudem im Schlafzimmer ein 3-Meter-Schrank Platz finden. Könnte an der Außenwand, was man ja als Eigentümer wegen des Schimmels vermeiden will. Und dann müsste das Bett unter das Fenster.
Danke für diese Hinweise, es macht sinn das Dusch-WC zu erweitern auf 2m breite. der Verlust für die Nebenliegenden Räume ist vernachlässigbar. Sind 2m ausreichend?
Bezüglich Schlafzimmer gebe ich Dir recht. Hier muss ich entweder das Fenster umpositionieren oder das Bett an die Wand zum Dusch-WC stellen.

Zum optischen Eindruck: ein Staffel macht natürlich immer etwas her, mehr als ein Satteldach. Es wirkt moderner.
Dennoch finde ich die Front-Fassade völlig misslungen. Mit gerade mal einem Badfenster ist die einladende Optik nicht getroffen.
Ein Architekt achtet auf eine ansprechende Optik. Aber auf dem wird hier verzichtet?!
Auch ein guter Punkt, das Ziel war Fenster auf der Straßenseite zu vermeiden, da hier auch die Stellplätze teilweise sein werden. Welche Räume kann man am geeignetsten auf die Straßenseite setzen?


Mehrstöckiges Gebäudemodell mit mehreren Fenstern; rechts Garage im roten Rahmen mit Kreuzmarkierung.


Die Frage an Dich bleibt ja bestehen, für wen die Doppelgarage sein soll. Es kann ja nur sein, dass Du Deinen Wunsch hier ausleben möchtest und ein Haus von der Miete bezahlen lässt. Nur dann man es Sinn, wenn Du sagst, dass Dir der Terrassenzugang im EG nicht zusagt.
Dass man seine Immobilie möglichst lukrativ macht, in der man selbst wohnen möchte, sei ja erlaubt. Aber hier wird halt nicht fachmännisch geplant, sodass man eigentlich die runde Ablage erwähnen muss.
Es war mal gedacht selbst einzuziehen, aber dies ist vom Tisch. Daher kommt die Garage weg. Was meinst du mit "runder Ablage"?
 
Y

ypg

Es ist schade, dass sich ein großer Teil der Diskussion um das Budget dreht, wenn das überhaupt nicht das Thema ist..
Zu den Grundrissen:
So wirklich durchdacht ist er nicht. Es scheint, dass der Entwurf erst einmal nur dazu da ist, ob sich Wohnungen eignen und wieviel Qm man herausbekommt.
Bedeutet: Nicht effektiver Wohnungsbau! Viele Qm für wenig Nutzen: kein nutzbarer AB, kein Einbauschrank oder Nische für Garderobe, willkürliche Lage der Feuchträume sowie Ver- und Entsorgung, zu breiter Wohnraum, fehlendes Zimmer, keine Familienfreundlichkeit.
Wohnung im EG ist barrierefrei.
Nein, ist sie nicht!
Für W1 ist der Plan, den Raum "Technik" zu teilen und den vorderen Bereich als Abstellraum und den Hinteren als Technik raum zu nutzen. hier die Skizze.
Soll das ein Witz sein? Wird die Technik im Rohbau eingemauert und dann nie wieder betreten?
Welche Räume kann man am geeignetsten auf die Straßenseite setzen?
Sorry, aber damit fängt man doch bei einer Hausplanung an, oder?
Was meinst du mit "runder Ablage"?
Den Mülleimer!

Zeige einen Entwurf mit den nötigen Stellplätzen, dann sehen wir weiter.
 
N

nevzatc21

Das muss doch irgendwo an den unteren Wohnungen durchgeführt werden. Du hast „selbst“ an gar keine Technik gedacht.
Wahrscheinlich ist auch deshalb die Kalkulation so - ich nenne es mal „schwerfällig“. Da ist überhaupt nichts rund.
Auch die 4,5 Stellplätze bekommst Du nur mit Müh und Not an vordere Seite.
Ist denn überhaupt ein Mehrfamilienhaus erlaubt?
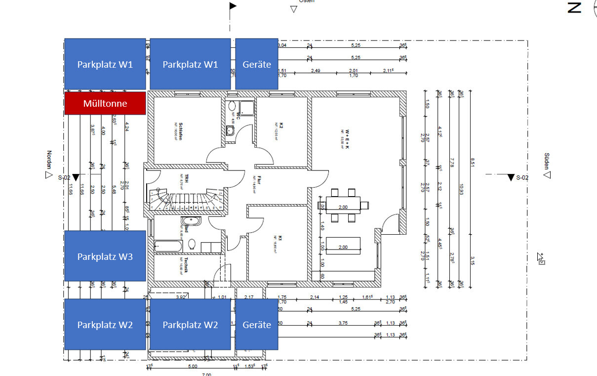
Hallo, Ja. Mehrfamilienhaus ist erlaubt. Die Stellplätze werden so angelegt (siehe Skizze).

Grundriss eines Gebäudes mit Parkplätzen W1, W2, W3, Gerätebereich und Mülltonne.

Nach meinem Verständnis ist das so zulässig. Muss natürlich noch genehmigt werden.

Ich habe noch einmal nachgeschaut: der andere hatte zumindest eine Vorstellung, dass es ihm knapp eine Mio kosten wird.
Leider wurde mein Satz dahingehend wohl gelöscht. Ich habe erst vor drei Tagen meine Planung für das Mehrfamilienhaus gelöscht.
Weil du es budgetmäßig nicht schaffst?

Ein Raum, der sich selbst in Funktionen einordnet, damit man in seinen eigenen 4 Wänden noch Privatsphäre hat und sich nicht gegenseitig stört. Wenn man also einen Kinderhaushalt plant, dann ist ein offener Designraum kontraproduktiv, weil man gern die Küche zb versteckt um über Eck hat, damit ein anderer Wohnungsbewohner auch seine Ruhe bekommt. Parallel beim Kindererziehen oder Babybrei stampfen funktioniert nämlich das Sportschau-Schauen ganz schlecht. Und Besuch will man auch getrennt voneinander erwarten und bewirten, ohne dass sich der Partner hinter Kopfhörer auf der Couch verstecken muss. Deshalb plant man über Eck, zumindest ist das eine Methode.
Ja, das ist ein guter punkt. Ich bin am Überlegen die Küche im EG und OG räumlich zu trennen. Dafür müsste das Kinderzimmer rüberwandern zur Seite vom Dusch-WC und die Küche Rückt in den freigewordenen Bereich..

Idee ist folgende:


Grundriss eines Hauses: roter Elternbereich neben blauem Koch/Essen/Wohnbereich.

Grundriss eines Gebäudes mit Innenräumen, Treppenhaus; blaue Parkplätze W1, W2, W3; rote Mülltonne
 
N

nevzatc21

Ab in die Tonne.

Wie ist denn nun die Definition der Traufhöhe im Bebauungsplan? Gibt es diese nicht explizit, kannst Du eh nicht bauen, wie gewünscht. Muss man Punkte 3x ansprechen, bis Du antwortest?
Ich weiß nicht warum ich ständige Sachen beantworten soll die nichts mit meiner Problemstellung zu tun haben. Sei Dir sicher, dass unsere Planung 100% den Vorgaben des Bebauungsplanes entspricht.


Tabelle mit WA-Gebiet WA 1/WA 2, Vollgeschosse und Höchstmaße nach Dachformen SD/WD/FD/PD/PDv.
 
Zuletzt aktualisiert 22.11.2025
Im Forum Grundrissplanung / Grundstücksplanung gibt es 2535 Themen mit insgesamt 87992 Beiträgen


Ähnliche Themen zu Grundriss Neubau Mehrfamilienhaus mit 3 Wohneinheiten, Wohnfläche ca. 350m²
Nr.ErgebnisBeiträge
1Entwurf Einfamilienhaus mit Garage/Carport - bitte um Bewertung 22
2Grundriss-Entwurf: Einfamilienhaus mit Keller; 560qm Grundstück - Seite 365
3Grundriss, längliches Einfamilienhaus, integrierte Garage kein Keller 16
4Kostenschätzung m2 Wohnfläche Hanghaus mit Keller und Garage - Seite 1487
5Grundriss Einfamilienhaus 1 Vollgeschoss Technik und Tageslicht - Seite 3194
6Grundriss-Entwurf für Einfamilienhaus 135 qm - Ideen und Ratschläge gesucht 29
71. Entwurf Grundriss Einfamilienhaus 150 qm 50
8Einfamilienhaus, ca 140 m², 2 Kinderzimmer - Was haltet ihr vom Grundriss? - Seite 267
9Geplanter Bau einer Garage an Grundstücksgrenze erlaubt? - Seite 318
10Garage zu hoch - Welche Lösungen gibt es? - Seite 859
11Garage im Haus oder Carport daneben 10
12Platzierung Stellplätze / Carport auf dem Grundstück - Seite 342
13Alle erforderlichen Stellplätze bauen, auch wenn diese nicht benötigt? 56
14Anordnung Haus und Stellplätze - Kleines Grundstück - Haus mit Einliegerwohnung 27
15Bungalow mit 140qm und Garage im Grundriss - Seite 213
16Grundriss Entwurf Neubau Einfamilienhaus - Grundstück 610qm - Meinungen erwünscht - Seite 850
17Grundriss: 150qm Einfamilienhaus+Einliegerwohnung - Carport / Garage + Schuppen / Werkstatt - Seite 545
18Grundriss Zweifamilienhaus Wohnung EG und DG 25
19Grundriss Penthouse Wohnung anders planen 18
20Küche und Abstellraum Etagenwohnung Grundriss optimieren 34

Oben