Grundriss Neubau Mehrfamilienhaus mit 3 Wohneinheiten, Wohnfläche ca. 350m²

4,60 Stern(e) 10 Votes
Zuletzt aktualisiert 08.01.2026
Sie befinden sich auf der Seite 8 der Diskussion zum Thema: Grundriss Neubau Mehrfamilienhaus mit 3 Wohneinheiten, Wohnfläche ca. 350m²
>> Zum 1. Beitrag <<

N

nevzatc21

Deine Stellplatzsituation ist mMn Murks. Geräteschuppen vor den Fenstern?

Mein Vorschlag.

Anhang anzeigen 87484

Technik bei Fernwärme ist mMn nicht so gross nötig.
Da gebe ich dir Recht die Lage und Größe des Schuppens müssten angepasst werden. Finde deinen vorschlag interessant, wenn man den zweiten PP von unten etwas nach oben schiebt hätte man auch einen Gang zum Durchlaufen.


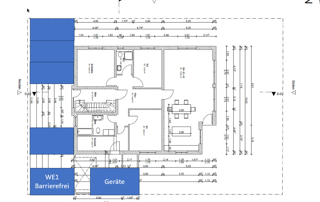
Grundriss eines Hauses mit Zimmern, Türen, Treppe; blaue Bereiche zeigen Barrierefreiheit.


Die Parkplätze auf der OST Seite wäre etwas schmaler 2,5m dafür würde es aber passen.
GGF kann man die Hauseingangstür auch etwas in der Position verschieben, sodass 2 Parkplätze rechts vom Eingang an die Hauswand kommen können.
 
N

nevzatc21

aber ein 150 cm breiter kleiner Schlauch könnte auch knapp werden.

Stellplätze finde ich so auch besser, Geräte werden aber wohl auch die Fahrräder beinhalten und da sollte noch eine Art Gang zur Straße bleiben, sonst kommt man mit den Fahrrädern da wohl nicht gescheit raus. Mir erschließt sich auch nicht ganz, warum es dieser Minimal-Erker sein muss.
Hmm... das mit dem Technikraum ist ne nervige Angelegenheit. Wenn ich die anderen Beitragenden korrekt verstehe müsste man mindestns eine Breite von 1,8m einhalten also 30cm mehr als jetzt.

Danke für den Hinweis bezüglich Durchgang und Schuppengröße.
 
N

nevzatc21

Gibt es da keinen Stromanschluss mit Verteilerkasten, Wasseranschluss etc, von wo die Wohnungen dann separat gespeist werden?

Ich hatte gestern mal diese Version ausprobiert. Carports allerdings nur 5 Meter oder so, Haus leicht nach hinten verschoben.
Grundriss finde ich jetzt nicht so gelungen, aber effektiver Ausnutzung trotz langem Flur, zwei Versorgungsschächte zw TK und WC (oben links) sowie Kü und Bad (planunten).
Alles etwas versetzen, Schuppen nach vorn bringen... vielleicht kommt man dann unterhalb der Grundflächenzahl-Grenze.
Hallo ypg,

danke für deinen Entwurf. Den Technikraum im TRH Bereich anzusiedeln finde ich eine gute Idee, in diesem Fall würde ich aber dazu eine Waschraum ansiedeln und Fahrradschuppen draußen beibehalten. Dann können die Bäder in den Wohnungen etwas kleiner ausfallen.
Ansonsten finde ich super, dass du ein Büro integriert hast, würde aber wahrscheinlich K2 und Schlafzimmer vertauschen, damit das Elternbett auf der Gartenseite ist.

du hast allerdings nur 4 Stellplätze eingezeichnet, war das Absicht? Wie breit sind die Stellplätze jeweils?

Es gestaltet sich als schwierig nicht zu viel raum durch den Flur zu verlieren.
 
N

nevzatc21

Hier noch schlichter: TK im Haus inkl. Fahrradraum... dann kommt es auch irgendwann mit der Grundflächenzahl hin
Die Carports sind je 3,20 x 6,00, ein Stellplatz vor dem Carport an dem TK-Raum. das Gelbe ist eine Müllbox
Anhang anzeigen 87491
Das ist interessant, wenn das mit dem Stellplatz vor dem Carport klappt, dann würde ich das Gleiche auch auf der anderen Seite machen.
Würde aber den Fahrradraum weiterhin draußen belassen (Schuppen) und den Raum im TRH als Waschraum nuzen... was denkst du darüber?

Kannst du mir auch sagen mit welchem Programm du das entworfen hast?
 
Y

ypg

Der Technikraum in der Größe ist ausreichend. Da hat eine Fernwärmestation, ein Zählerschrank sowie die Wasseranschlussleitungen ausreichend platz.
Du willst Dir gar nicht helfen lassen, oder?
Man schreibt Dir die DIN mit den Maßen und es interessiert Dich nicht.
Naja, zumindest bist Du auf den Beitrag eingegangen, wo der TK innerhalb des EG gut sortiert angesiedelt ist.

Zu dem Wäscheraum: irgendwo habe ich auch gelesen, dass Waschmaschinenanschlüsse Pflicht sind. Und Hand aufs Herz: jeder nimmt wohl lieber seinen innerhalb seiner Wohnung als im Terrain zu waschen, wo auch andere waschen. Allerdings wäre es eine gute Trockenoption für denjenigen, der keinen Trockner besitzt.

du hast allerdings nur 4 Stellplätze eingezeichnet, war das Absicht? Wie breit sind die Stellplätze jeweils?
Vor dem einen Carport (bei uns werden sehr oft bei kleinen Mehrfamilienhaus Carports gebaut) ist eben ein solcher Stellplatz als 5. Stellplatz.
Das ist interessant, wenn das mit dem Stellplatz vor dem Carport klappt, dann würde ich das Gleiche auch auf der anderen Seite machen.
Ich bin jetzt bewusst bei einer Version, wo ich die Westseite von Stellflächen frei halte, weil man vom EG auf die Fahrzeuge schaut, und das ist nicht nett. Im Osten liegt ja noch der TK und des Weiteren eher Nutzräume. Im Norden ist das allerdings eben nicht so schön und stört das EG.
2,5 m sind zwar in der Norm, aber leider nicht mehr Zeitgerecht. Eventuell hilft es ja den Vorschlag von @ypg aufzugreifen und das Haus 1 m nach Süden zu verschieben.
Unbehagen würde ich dennoch noch an Deiner Stelle hier haben:
"Mind. 30 % der Grundstücksfreiflächen sind mit einheimischen, standortgerechten Laubgehölzen zu bepflanzen".
Daher bezieht sich das nicht auf die Gesamtgrundstücksfläche sondern
Google ist da nicht eindeutig.
Eindeutiger eine Gestaltungssatzung der Stadt Frankfurt, die recht streng mit dem Klimathema umgeht.
Das mag auch der Grund zu der Pflanz-Pflicht bei Dir sein.
Die Satzung sagt uA:

§ 1 Ziel der Satzung
Die Satzung verfolgt das Ziel, die Nutzung, Gestaltung und Bepfanzung von Grundstücksfreiflächen und die Begrünung baulicher Anlagen in klimaangepasster Form sicher zu stellen, um gesunde Lebensverhältnisse zu gewährleisten und die natürlichen Lebensgrundlagen zu bewahren.

§ 2 Räumlicher und sachlicher Geltungsbereich


  1. (1) Die Satzung gilt im gesamten Stadtgebiet für die nicht überbauten Flächen der bebauten Grundstücke einschließlich der unterbauten Freiflächen (Grundstücksfreiflächen) und für die äußere Gestaltung baulicher Anlagen.

Da würde ich beim Bauamt nochmal hinterhaken, denn wenn die Stellplätze dazugehören, dann ist der Vorgarten so, wie er jetzt abgebildet ist, nicht gerade gewünscht.

Also: es kann sein, dass Du zwar nach Bebauungsplan 3 Wohneinheiten bauen darfst, aber so ohne Weiteres eben nicht genehmigt werden wird. Durch einen Bebauungsplan wird so einiges erlaubt, was aber durch einen anderen Passus wieder zunichte gemacht wird.
 
Zuletzt aktualisiert 08.01.2026
Im Forum Grundrissplanung / Grundstücksplanung gibt es 2565 Themen mit insgesamt 88781 Beiträgen


Ähnliche Themen zu Grundriss Neubau Mehrfamilienhaus mit 3 Wohneinheiten, Wohnfläche ca. 350m²
Nr.ErgebnisBeiträge
1Platzierung Stellplätze / Carport auf dem Grundstück 42
2Ausnahme vom Bebauungsplan für einen Carport? 16
3Ausgewiesener Stellplatz als Garten nutzen - Seite 213
4Stellplatz Baden Württemberg - Seite 313
5Anordnung Haus und Stellplätze - Kleines Grundstück - Haus mit Einliegerwohnung 27
6Garage im Haus oder Carport daneben 10
7Grundriss ca. 170 m² Einfamilienhaus, ohne Keller mit Carport - Seite 489
8Planung 130 qm Einfamilienhaus auf 500 qm Grundstück 24
9Bebauungsplan und daraus folgender Hausplan 44
10Öffentliche Parkplätze vor Grundstück 13
11Bebauungsplan mit Vorstellungen kombinieren - Brainstorming 23
126 Stellplätze auf einem Grundstück Anordnen - Seite 220
13Eure Wünsche für einen Bebauungsplan 69
14Stellplatz am Haus sein, der von drei Seiten einegezäunt ist?? - Seite 856
15Verpflichtung Parkplätze zu schaffen? 13
16Alle erforderlichen Stellplätze bauen, auch wenn diese nicht benötigt? - Seite 656
17Zu Wenig Stellplätze für Baugenehmigung 20
18Grundstück - Ideen und Anregungen zu Ausrichtung und Bebauungsplan 33
19Carport der kein Carport sein darf 22
20Carport, Grundriss, Auslegung 2 Autos, Erfahrungen? 11

Oben