Grundriss, Bauen mit Baum, Einliegerwohnung und Altbestand

4,60 Stern(e) 7 Votes
Zuletzt aktualisiert 18.11.2025
Sie befinden sich auf der Seite 7 der Diskussion zum Thema: Grundriss, Bauen mit Baum, Einliegerwohnung und Altbestand
>> Zum 1. Beitrag <<

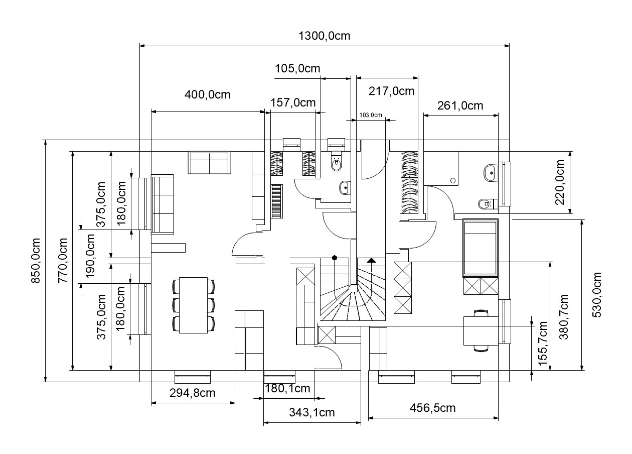
B

BucheOnBoard

so, es dauert ja doch immer alles etwas länger als man es sich vornimmt, aber ich habe viele von @K a t j a s Ideen einfließen lassen - habe aber bisher nur das EG geschafft. Vor allem bin ich immer noch eine Ecke kleiner (13mx8,5m), was man natürlich schon auch merkt, da "zwickt" es sicherlich noch hier und da. Aber das ganze ist ja auch erstmal ein Entwurf für uns, um Wünsche und Bedürfnisse etwas besser abwägen zu können. Da ich bei der Dachneigung über einen Kniestock von 1,3m nicht hinauskomme (außer man versucht eben Ausnahmen vom Bebauungsplan zu erwirken) wird der Dachboden nach wie vor sehr eng, das OG funktioniert aber denke ich soweit. Vielleicht kommt es doch wie von @K a t j a gesagt und wir verzichten auf das DG und haben dafür einen Raum mehr im OG, aber das denke ich morgen weiter.
Grundriss eines Wohnhauses mit Möbeln, Türen, Treppen und Maßangaben in cm
 
B

BucheOnBoard

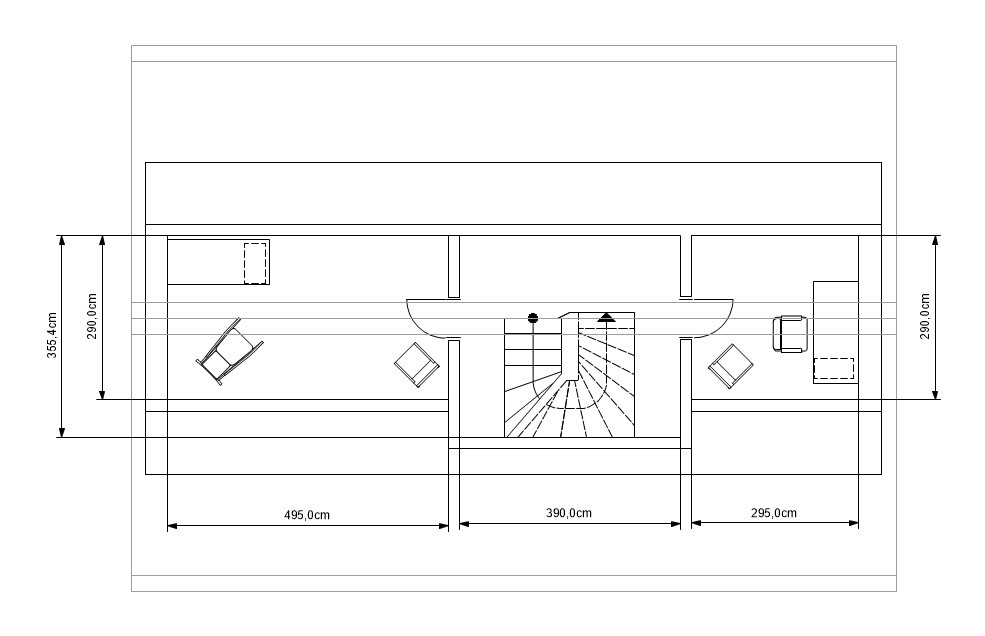
Ich habe jetzt auch das Ober- und Dachgeschoss mal skizziert - bei der Treppenposition ist logischerweise auch kein Höhenproblem im OG zu finden und auch im Dachgeschoss würden sich zwei kuschelige Räume ergeben, da bräuchte man aber über der Treppe auf jeden Fall ein Dachflächenfenster. Ich habe auch mal einen Schnitt und eine 3D-Ansicht exportiert - da ich keine schrägen Wände im Dachbereich zeichnen "darf" (falsches Modul im Programm) schauen ein paar Dinge aus der Dachhaut, das bitte ich zu ignorieren ;)

Die Möblierung ist noch recht großzügig, so viele Schränke im OG werden wir wohl nicht brauchen und vor allem mit dem Badezimmer habe ich mich auch noch nicht im Detail beschäftigt.

Trotz alledem - Sorgen, Anmerkungen, Vorschläge? Nach Ostern würden wir dann mal (mit der Textform dieser Zeichnungen) zu ein paar Hausbaufirmen gehen...
Grundriss eines Innenraums von oben mit zentraler Treppe und Sitzgruppen links und rechts.

Grundriss eines Hauses mit Treppenhaus in Mitte, Zimmern und Maßlinien in cm.

Schnitt durch mehrstöckiges Hausgrundriss mit Treppenhäusern, Türen und Dachstuhl.

3D-Ansicht eines zweistöckigen Hauses mit braunem Dach, Garten und weißem Lieferwagen.
 
B

BucheOnBoard

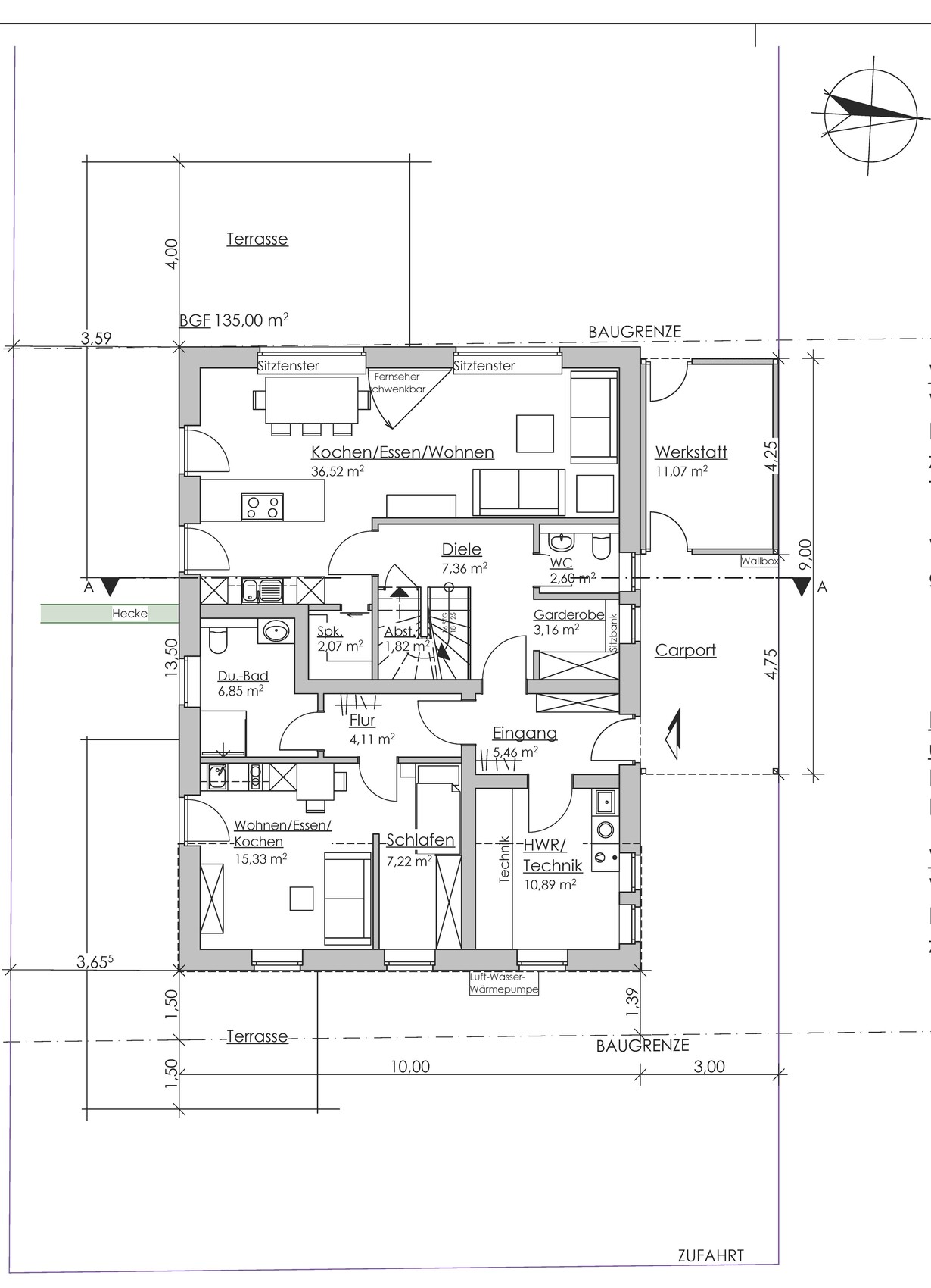
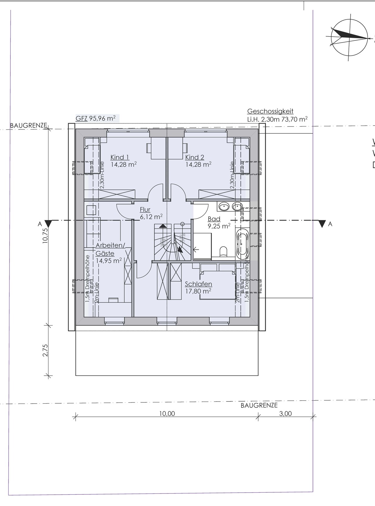
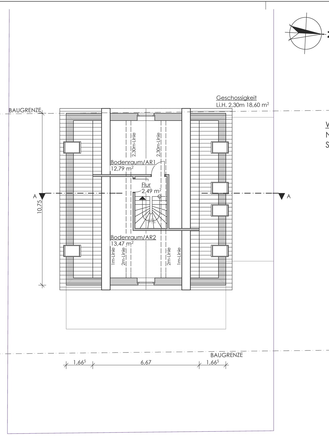
Ich melde mich hier nochmal, es ist einiges passiert. Das Bodengutachten mit sehr viel Torf und sehr hohem Grundwasserspiegel machen den Keller unangenehm teuer, wir haben zwei Schätzungen über mehr als 200k dafür bekommen und das wäre dann auch nur der Keller im Rohbau. Daher verzichten wir auf den Keller und haben den Hauswirtschaftsraum noch in das Raumprogramm des Erdgeschosses aufgenommen und der Dachboden wird dann eher Lagerraum als Arbeitszimmer. Darüber haben wir jetzt einen Entwurf bekommen, den ich hier mal zur Diskussion stellen würde - die grundsätzliche Raumaufteilung finden wir gut, es wäre aber gut gerade im Erdgeschoss noch etwas "kleiner" zu werden um von der Buche im Süd-Osten noch ein bisschen mehr Abstand zu bekommen - ansonsten ist uns bisher aufgefallen (kein Anspruch auf Vollständigkeit):
-Gäste-WC und Garderobe in der Hauptwohnung tauschen, Anschlag der Tür zum Hauptflur tauschen
-Wand zwischen Einliegerwohnung-Bad und HW-Küche nach Osten um ein bisschen mehr Platz um den Esstisch zu bekommen
-Nordfenster im Hauswirtschaftsraum weglassen
-Trennwand zwischen "Schlafen" und "Wohnen" in der HLW weglassen und lieber nach Bedarf flexibel mit Regal/schrank eine Raumtrennung erreichen
Ansonsten sind wir glaube ich nicht unzufrieden, aber es ist halt auch der erste Entwurf und wir haben noch kein Haus gebaut...Von daher hoffe ich hier noch auf ein paar gute Ideen und Ratschläge, alle weiteren Informationen stehen noch im ersten Beitrag.
Ich bedanke mich schon einmal ganz doll!
Anhang anzeigen grundriss-obergeschoss-kinderzimmer-schlafzimmer-bad-plan.jpg
Anhang anzeigen grundriss-hausbau-wohnraum-kochen-essen-schlafen-diele-terrasse-zufahrt.jpg
Grundstücksplan mit Gartenhaus, Laub- und Nadelbäumen, rotem Gebäudebereich PL und Maßangaben.

Schnitt durch ein Mehrfamilienhaus mit Dachstuhl: Bad, WC, Kochen, Flur, Treppe, Arbeiten/Gäste

Anhang anzeigen obergeschoss-grundriss-hausbau-bodenraum-ar1-ar2-treppen-aufgang.jpg
 
Y

ypg

wir haben zwei Schätzungen über mehr als 200k dafür bekommen und das wäre dann auch nur der Keller im Rohbau.
Oha! :eek:
die grundsätzliche Raumaufteilung finden wir gut,
Die ist auch annähernd das, was Du in #17 gezeichnet hast, nur dass die Treppe jetzt eine bessere Position bekommen hat.
aber es ist halt auch der erste Entwurf und wir haben noch kein Haus gebaut...
Hat der Architekt jetzt alle Möglichkeiten, die Hamburg von der Bauordnung anbietet, in Erwägung gezogen?
Gerade weil die Raumaufteilung schon sehr ähnlich ist, habe ich das Gefühl, dass er mehr oder weniger abgezeichnet hat.
Über das Problem Schlafzimmer und fehlender Stellfläche für einen Schrank würde ich, wenn sich nicht noch eine spontane bessere Idee für die Treppe oder Grundentwurf bietet (sie nimmt Dir quasi die Stellfläche im Schlafzimmer wegen der Türposition), würde ich den Schrank unter die Schräge im DIY- oder Schreinerdesign sehen, also eher die 90cm nach vorn mit Schiebetüren versehen und das Bett dann näher an die Tür schieben.
Mein zweiter Blick sagte mir persönlich „ganz schön eng da unten“, damit meinte ich den Allraum und nicht das Schlafzimmer des alten Herrn.
Du hast geschrieben, dass Ihr jetzt noch auf gemeinsamen 61qm lebt… deshalb werden Euch die 36qm wie ein Palast vorkommen.
Ich würde aber eventuell so bauen, dass man später, wenn Papa doch in die Pflege geht oder nochmal seinen zweiten Frühling erlebt (wie alt ist denn Papa?), den Wohnbereich öffnen kann zur Einliegerwohnung. Insofern würde ich das Bad aus der Mitte des Hauses herausnehmen, auch Küche und Speis der Hauptwohnung mit dem Wohnbereich tauschen, damit man später das WZ erweitern kann. Vielleicht kann ich nachher mal eine Zeichnung machen (Bad Einliegerwohnung beim Hauswirtschaftsraum, davor zum Flur die Garderobe, WC wird zur Speis usf. (Ich schreibe das jetzt, ohne die Entwürfe vor mir liegen zu haben), kann mir dann aber für später mehr befriedigende Optionen vorstellen, als wenn man mit Technik in der Mitte des Hauses sich viel verbaut.
Ich finde persönlich eh besser, wenn die Küche an der Terrasse liegt.
Ansonsten finde ich es gut, wenn Ihr mit der Dachneigung alles herausholt.
Näheres ist jetzt schwer zu sagen, da man die Raummaße nicht so gut greifen kann.
 
K a t j a

K a t j a

Mein zweiter Blick sagte mir persönlich „ganz schön eng da unten“, damit meinte ich den Allraum und nicht das Schlafzimmer des alten Herrn.
Du hast geschrieben, dass Ihr jetzt noch auf gemeinsamen 61qm lebt… deshalb werden Euch die 36qm wie ein Palast vorkommen.
Ich würde aber eventuell so bauen, dass man später, wenn Papa doch in die Pflege geht oder nochmal seinen zweiten Frühling erlebt (wie alt ist denn Papa?), den Wohnbereich öffnen kann zur Einliegerwohnung.
Der schmale enge Allraum hat mich auch sofort angesprungen und wäre das KO für den Entwurf. Außerdem muss man immer durch die Küche, um ins WZ zu kommen. Nicht schön. Sorry, aber darauf warten, dass Papa ins Heim kommt, wäre für mich keine Option.

Der Extraflur in der Einliegerwohnung ist imho zu viel Platz verschwendet. Insgesamt sind das 20qm Flur im EG - schon reichlich. Die zentrale Treppenposition verhindert, dass Tiefe und Freiheit ins Wohnzimmer kommt. Man würde am liebsten den Flur öffnen aber das beißt sich mit Garderobe und WC. Ihr bezahlt einen riesen Batzen Geld für dieses Schlauchwohnzimmer - überlegt Euch das gut! Schwenkbarer Fernseher - das ist ja wie im Hotel - gruselig.

Die Idee, den Boden zu erschließen bei gleichzeitigem Rücksprung im OG würde ich mal sehr kritisch zur Diskussion stellen. Hat das einen tieferen Sinn von wegen Eingeschossigkeit oder ist das nur zufällig irgendwo abgemalt? Wer soll denn auf dem Rücksprung dann dauernd die Blätter weg fegen? Oder kommt da sowieso ein Gründach drauf?
Im EG noch kleiner zu werden ist ein absurder Wunsch. Jetzt ist auch noch der HAR da unten rein gekommen. Wie soll das gehen?

Vielleicht verzichtet man besser auf die Dachspitze und überbaut dafür das EG komplett mit einer günstigeren Treppenlage.
Wie sind jetzt eigentlich die Außenmaße? 13x9?
 
Zuletzt aktualisiert 18.11.2025
Im Forum Grundrissplanung / Grundstücksplanung gibt es 2536 Themen mit insgesamt 87965 Beiträgen


Ähnliche Themen zu Grundriss, Bauen mit Baum, Einliegerwohnung und Altbestand
Nr.ErgebnisBeiträge
1Grundriss, Hausanordnung EFW 150m2, Keller + Einliegerwohnung - Feedback erwünscht - Seite 667
2Grundriss Haus mit Einliegerwohnung - Verbesserungsvorschläge? - Seite 34221
3Erster Entwurf Einfamilienhaus 150m² mit Keller 38
4Ankleide/Schlafzimmer Problem - Grundrissdiskussion 25
5Haus-Entwurf Einfamilienhaus - Zukünftig als Zweifamilienhaus trennbar - Seite 572
6Erster Entwurf Grundriss Einfamilienhaus (ca. 200qm) - Bitte um Feedback - Seite 646
7Neubau Einfamilienhaus ca.220qm, 2. Entwurf Stadtvilla - Seite 259
8Grundrissplanung Stadtvilla Doppelgarage | Keller | KFW40+ | 205m² 26
9Grundriss Entwurf Neubau Einfamilienhaus - Grundstück 610qm - Meinungen erwünscht - Seite 850
10Neubauplanung - Einfamilienhaus 160 qm ohne Keller - Grundriss, Kosten usw.. 29
11Finanzierung Bauvorhaben Einfamilienhaus 140qm + Keller (Bayern) - Seite 234
12Grundrissoptimierung Einfamilienhaus in Hanglage Eingeschossig + Keller - Seite 232
13Entwurf / Verbesserung Einfamilienhaus 150-175m² mit Walmdach und Keller 39
14Entwurf EFH, 2 Vollgeschosse, Satteldach, kein Keller, Doppelgarage - Seite 231
15Grundriss-Entwurf: Einfamilienhaus; mit Keller; 800qm Grundstück - Seite 210
16Grundriss-Entwurf Einfamilienhaus in Hanglage, Einliegerwohnung, Doppelgarage - Seite 271
17Detailplanung Grundriss Einfamilienhaus mit Keller und Einliegerwohnung 28
18Grundriss für Einfamilienhaus mit 200m² mit Einliegerwohnung 75 +Keller 140m² +Garage 56m² 59
19Grundriss EG + OG für Doppelhaushälfte - Seite 429
20Speisekammer vs. größere Küche vs. Hauswirtschaftsraum 13

Oben