Grundriss - Haus mit Einliegerwohnung

4,30 Stern(e) 3 Votes
Zuletzt aktualisiert 25.11.2025
Sie befinden sich auf der Seite 4 der Diskussion zum Thema: Grundriss - Haus mit Einliegerwohnung
>> Zum 1. Beitrag <<

S

soleifly

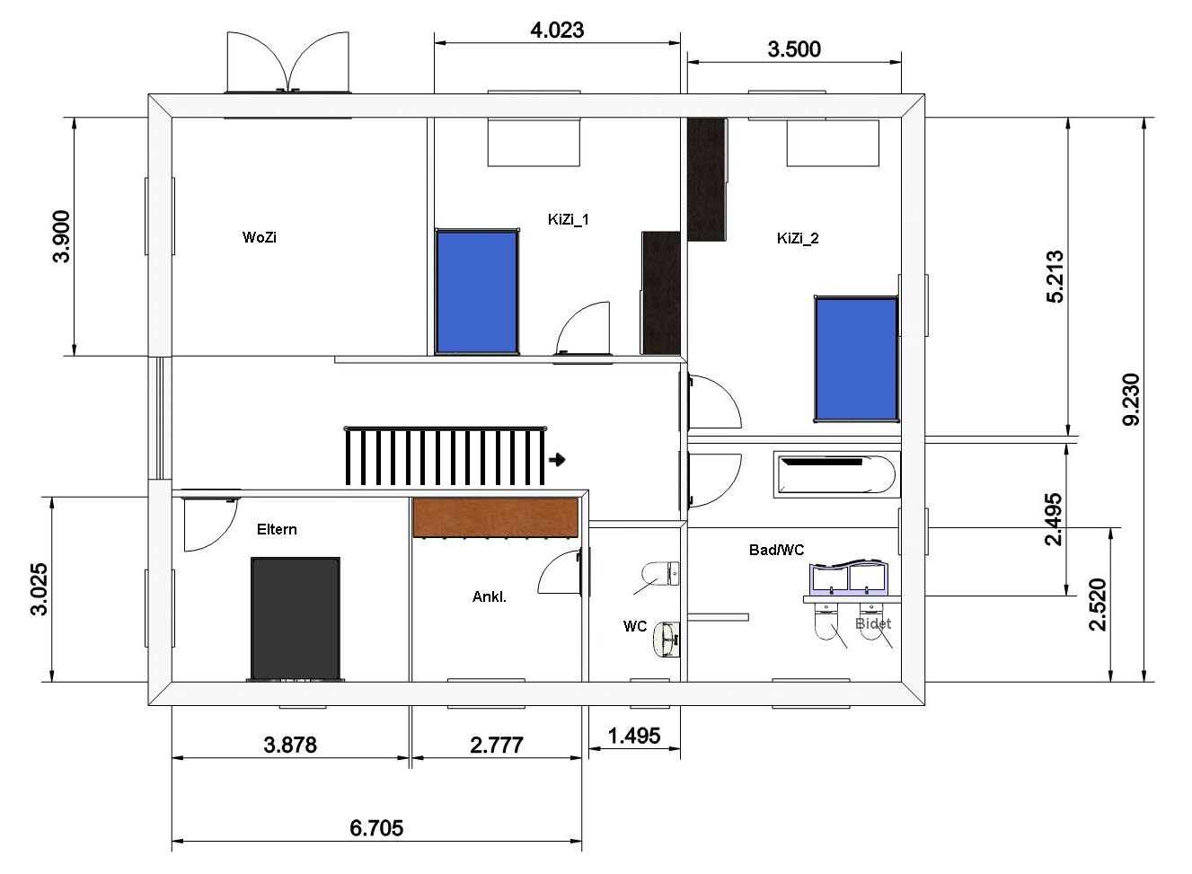
Vielen Dank für die Anmerkungen und die Kommentare.

Leider hält sich die Kritik überwiegend sehr allgemein (warum sind die Skizzen denn so schlecht?), die Vorschläge zur Verbesserung nehme ich gerne an und bringe diese zu "Papier" - siehe Anhang.

Die Möbel und die Zimmer zuhause habe ich natürlich durchgemessen.

Bei den Zeichnungen sind die meisten Zimmer möbliert und es scheint alles zu passen (was hab ich nicht bedacht?).

Grundriss eines Hauses: Wohnzimmer, zwei Kinderzimmer, Elternschlafzimmer, Bad/WC, WC, Ankleide Treppe
 
K

kritik

Vielen Dank für die Anmerkungen und die Kommentare.

Leider hält sich die Kritik überwiegend sehr allgemein (warum sind die Skizzen denn so schlecht?), die Vorschläge zur Verbesserung nehme ich gerne an und bringe diese zu "Papier" - siehe Anhang.

Die Möbel und die Zimmer zuhause habe ich natürlich durchgemessen.

Bei den Zeichnungen sind die meisten Zimmer möbliert und es scheint alles zu passen (was hab ich nicht bedacht?).
ich schaue heute Abend mal darauf... und werde konkreter...
 
P

perlenmann

Na gut, dann Pkt für Pkt.

Bidet war zu einer zeit wo man noch nicht jeden Tag duschen konnte. Aber Wer es mag.

Schlafen: 1,4m Bett? Ansonsten ist es OK
Ankl. 8m² für 2,7m laufenden Schrank?
Eltern WC finde ich unnütz und komisch durch die Ankleide zu begehen.
Bad: Ich hoffe der Ausblick vom Klo ist schön richtig stimmig finde ich es aber auch nicht...
Kinderzimmer an sich OK, nur gibts Streit wer welches bekommt?
Einziges MEGA NOGO (für mich) das Mini Wohnzimmer.

Aber schön finde ich es trotzdem alles nicht. Da ich sowas aber nicht studiert habe, kann ich da auch nicht allzu viele Tipps geben. Habe bei meiner Planung aber festgestellt, das die Treppe alles entscheidet. Also da mal überlegen ob evtl eine U Treppe nicht mehr Raum bringt. Da kann Dir aber jemand der es gelernt hat, sicher etwas tolles aus den Maßen zaubern.

Und noch etwas. Irgendwo müßten auch tragende Wände rein, die sind dann dicker... Könnte bei den WC´s Probleme geben?!
 
T

Traumhaus2013

Ach ja, ich würde auch sehr auf die Ausrichtung der Räume achten. Orientiert an der Himmelsrichtung und auch an der Lage von Strassen usw. evtl. sogar Aussicht?
 
T

Traumhaus2013

Hallo,

habe mir gerade noch mal Gedanken über Deinen Grundriss gemacht, vor allem, wie man im EG doch noch Platz für ein Wohnzimmer schaffen könnte, falls die Einliegerwohnung nicht hoch darf.
Habe dazu noch Fragen:
Wie viel Platz braucht ihr mindestens im Hauswirtschaftsraum?
Wie groß muss Küche/Esszimmer denn sein?
Muss das Bad im EG eine Dusche haben?

Gruß,
Traumhaus2013
 
Zuletzt aktualisiert 25.11.2025
Im Forum Grundrissplanung / Grundstücksplanung gibt es 2536 Themen mit insgesamt 88016 Beiträgen


Ähnliche Themen zu Grundriss - Haus mit Einliegerwohnung
Nr.ErgebnisBeiträge
1Treppe im Wohnzimmer als Hype - Pro & Contra? - Seite 426
2Wohin mit der Treppe? Dachausbau Walmdachbungalow - Seite 319
3Wohnzimmer Grundrissplanungs-Ideen? - Seite 239
4Treppe im Flur, Grundriss steht eigentlich schon :o( 20
5Grundrissfrage, Treppe, Fenster, Ausrichtung 12
6Grundriss für 150qm Einfamilienhaus mit Wohnzimmer nach Norden 21
7Grundrissplanung Wohnzimmer und Flur zu schmal? 21
8Standort Küche und Wohnzimmer - Seite 355
9Grundriss-Änderung Einfamilienhaus 150 m² aufgrund von Treppe 36
10Grundrissfrage: Tausch gerader Treppe durch L-Treppe - Seite 331
11Wohnzimmer Heimkino separat ? 21
12Planung Podest im Wohnzimmer 12
13Doppelflügeltür / Pendeltür zum Wohnzimmer 13
14Wohnzimmer: Wie Sofa, TV und Schränke stellen? 32
15Kombination Fliesen und Parkett im Wohnzimmer mit offener Küche - Seite 330
16Grundrissplanung Wohnzimmer-Küche 18
17Einfamilienhaus - Stadtvilla: Wohnzimmer L oder I Form? 25
183. Zimmer im 40qm Wohnzimmer unterkriegen. Ideen 74
19Wohnzimmer / Esszimmer gestalten. Ideen gesucht 10
20Verschattung der Dachfenster im Wohnzimmer - Erfahrungen / Tipps? 28

Oben