Grundriss - Haus mit 2WE zur Vermietung

4,00 Stern(e) 3 Votes
S

smartsurfer

Hallo Zusammen,
auch ich möchte nun unseren Grundriss hier zur Diskussion veröffentlichen. Es handelt sich um zwei Entwürfe unterschiedlicher GU, auf Basis eines Entwurfs von uns.

---------------------------------------------

Bebauungsplan/Einschränkungen
Größe des Grundstücks: 708 m²
Lage, Ausrichtung: Die Grundstückssituation habe ich bereits in diesem Thread vorgestellt.

Zwischenzeitlich haben sich folgende Prämissen ergeben: Es sollen erst mal ein Haus mit zwei Wohneinheit zur Vermietung gebaut werden. Das zweite Haus wollen wir zwar genehmigen lassen, aber erstmal nicht realisieren.
Angaben aus dem Bebauungsplan: Grundflächenzahl 0,4, Dachform: SD, FD, Dachneigung: 28-32 oder 0-5, Stellplätze: Landesbauordnung BW=1 KFZ-Stellplatz pro Wohneinheit und 2 Fahrradstellplätze pro Wohneinheit

Anforderungen der Bauherren
Stilrichtung, Dachform, Gebäudetyp: 1 Haus mit 2 getrennten Wohneinheiten zur Vermietung also 2-geschossige Bauweise ohne Dachschrägen, Satteldach
Keller, Geschosse: kein Keller, Dachgeschoss-Nutzung als Lagerraum
Balkon, Dachterrasse: ja, Balkon für die Wohneinheit im OG

Allgemein: Da das Objekt rein zur Vermietung gedacht ist, soll sich der Grundriss auf die wesentlichen Mindestanforderungen bzgl. Raumgröße, Fenster, Technik etc. beschränken. Aber natürlich soll das Haus dennoch modern und attraktiv sein, damit eine gute Vermietbarkeit erreicht wird.

Hausentwurf
Von wem stammt die Planung: GUs
Was gefällt/gefällt nicht? Entwurf2 gefällt uns besser, da der Raum für Wohnen/Essen/Kochen eine gut nutzbare Größe einnimmt und in beiden Wohneinheiten einen Abstellraum gibt. Dafür gibt es kaum Stellmöglichkeiten im Flur für Garderobe o.ä. und nur eine Dusche im Bad. Bei Entwurf1 haben wir bedenken, dass der Raum für Wohnen/Essen/Kochen tatsächlich praktisch nutzbar ist.

Wie ist eure Meinung zu den Entwürfen? Was würdet ihr besser machen?
Entwurf1

Zweistöckiges weisses Haus mit Satteldach, Balkon und gruenem Garten vor blauem Himmel.

2D-Grundriss eines Hauses mit Schlafzimmer, Bad, Diele, Küche und Terrasse

Grundriss eines Hauses mit Schlafzimmer, Bad, Küche, Essbereich, Diele und Balkon.


Entwurf2

Moderne weiße Hausfassade mit Balkon, große Fensterfront, Gehweg und Kinderwagen.

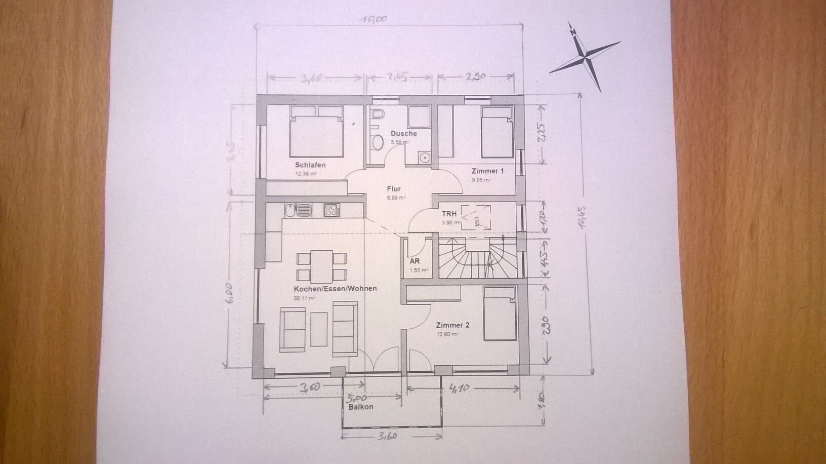
Grundrissplan eines Hauses mit Küche, Wohnzimmer, Schlafzimmer und Bad

Grundriss eines Wohnhauses mit Schlafzimmer, Dusche, Flur, Küche und Wohnzimmer
 
Zuletzt bearbeitet von einem Moderator:
Y

ypg

Für wen oder was sollen denn die Wohnungen sein? Welche Zielgruppe?
Im ersten Vorschlag sehe ich einen Single oder ein Pärchen, im zweiten bin ich ungewiss wegen des schlichten Wohn/Ess- Bereich (Essen ist ja nicht wirklich vorhanden)
 
kbt09

kbt09

In der zweiten Variante läßt sich aber wenigstens Kochen/Essen und Wohnen in dem Großraum realisieren. Wobei Wohnen mit Einschränkungen ;)

In der ersten Variante sehe ich da echt keine guten Möglichkeiten. Küche wird da 2x2 m sein, der Raum selber hat im Grunde 5x5 m .. finde ich z. B. für TV etc. als Entfernung schon zu weit, was anderes geht aber nicht. Idealer sind 25 qm mit ca. 4x6,2 m oder so aufteilbar.

Variante 2 müsste auch überarbeitet werden, da kaum Stellmöglichkeiten im Großraum sind (TV oder so)

Variante 2 OG hat wirklich keine echten Garderobenmöglichkeiten.
 
Y

ypg

Ja, eben... In meiner ersten Wohnung, ich war zufällig letzte Woche mal wieder drin, war das WZ 6 Meter lang: vorn Esstisch, hinten Fernsehecke.
Hier sehe ich nichts ausreichendes. Zumindest nicht für ein Familienleben mit einem Kind.
 
S

smartsurfer

Hallo Zusammen,

ja, die Zielgruppe wäre schon so ein Paar oder Paar mit 1 kl. Kind.
Natürlich würde ich, wenn ich für mich selbst bauen würde etwas anders bauen. Aber die ~30qm im Entwurf2 sind ja schon nicht so schlecht - ich habe mal in mir vorliegende Exposés geschaut und da ist der Raum auch nicht wirklich größer.

Grundrissplan von Wohnung 1 mit Wohnzimmer, Küche, Schlafzimmer, Bad und Terrasse

Grundriss Wohnung 3 zeigt offene Küche, Schlafzimmer, Bad, Flur und Balkon

2D-Grundriss der Wohnung 5 mit Wohnzimmer, Schlafzimmer, Küche und Bad
 
S

smartsurfer

Auf Basis des zweiten Entwurfs habe ich die Fenster und Wände im Wohnzimmer etwas verschoben und modifiziert, damit unten links jetzt ein Bereich für TV entsteht. Im Zimmer daneben habe ich die Tür entfernt damit ein wirklicher Platz für einen Schreibtisch entsteht. Und im AR würde es sich anbieten die Tür zu drehen, damit dieser auch besser genutzt werden kann (die Kollisionsgefahr mit der Haustüre besteht dann natürlich.)
Habt ihr weitere konkrete Verbesserungsvorschläge?

Grundriss eines Hauses mit Küche, Essbereich, Wohnzimmer, Schlafzimmer und Terrasse.

Grundriss eines Hauses mit Schlafzimmer, Küche, Flur und Balkon
 
Zuletzt aktualisiert 10.11.2025
Im Forum Grundrissplanung / Grundstücksplanung gibt es 2529 Themen mit insgesamt 87689 Beiträgen


Ähnliche Themen zu Grundriss - Haus mit 2WE zur Vermietung
Nr.ErgebnisBeiträge
1Grundriss Einfamilienhaus mit Keller und Garage 50
2Einfamilienhaus ohne Keller - Diskussion Grundriss 19
3Grundriss Neubau Einfamilienhaus: Fenster/Türen/Innenwände Größe/Anordnung ok? 20
4Erster Grundriss Einfamilienhaus - Eure Ideen auch zum Grundstück - Seite 333
5Grundriss für Einfamilienhaus 210 m² + Keller - Eure Meinungen 16
6Einfamilienhaus 220qm mit Keller auf 700qm Grundstück 41
7Kritik an Einfamilienhaus-Grundriss erwünscht (~175m2/0,9m Kniestock/Keller) 16
8Grundriss-Planung und Platzierung - Einfamilienhaus ca. 200qm auf 900qm Grundstück - Seite 255
9Grundriss Einfamilienhaus 133qm Grundstück 850qm 16
10Grundriss Einfamilienhaus ~165m² plus Keller - Seite 6165
11Grundriss Einfamilienhaus in Hanglage mit Keller - Seite 351
12Grundriss 2-Familienhaus mit Staffelgeschoss - zu kompakt? 27
13Grundriss 160qm Einfamilienhaus - Verbesserungsideen? - Seite 767
14Neubau Einfamilienhaus ~160m² + Keller - Erster Entwurf 46
15Grundflächenzahl/Geschossflächenzahl bei Grundstück ohne Bebauungsplan: Wie kalkulieren? Erfahrungen? - Seite 318
16Grundriss Einfamilienhaus 2 Vollgeschoss ~180m² Wohnfläche - 760m² Grundstück - Seite 344
17Trotz im Bebauungsplan festgesetzter Wohneinheiten/Mehrfamilienhaus bauen - Seite 320
18Grundriss mit Garage auf Grundstück realisierbar? - Seite 429
19Grundriss Einfamilienhaus mit Keller 19
20Projekt Eigenheim - Keller, Grundriss EG - Tipps 76

Oben