ᐅ Grundriss HAUS FÜR ZWEI" auf etwa 150qm stellt sich vor
Erstellt am: 03.07.20 13:23
pagoni202003.07.20 13:23
So – nun stelle ich unser „Hausprojekt Für Zwei“ vor in der Erwartung Eurer niederschmetternden Kommentare. Haltet Euch nicht zurück, denn ich kann ja nur profitieren.
Der Bauantrag wird gerade eingereicht, nach Vorabauskunft sollte es jedoch so genehmigt werden. Bewusst haben wir deswegen auch nicht zu viele Abweichungen vom uralten Bebauungsplan.
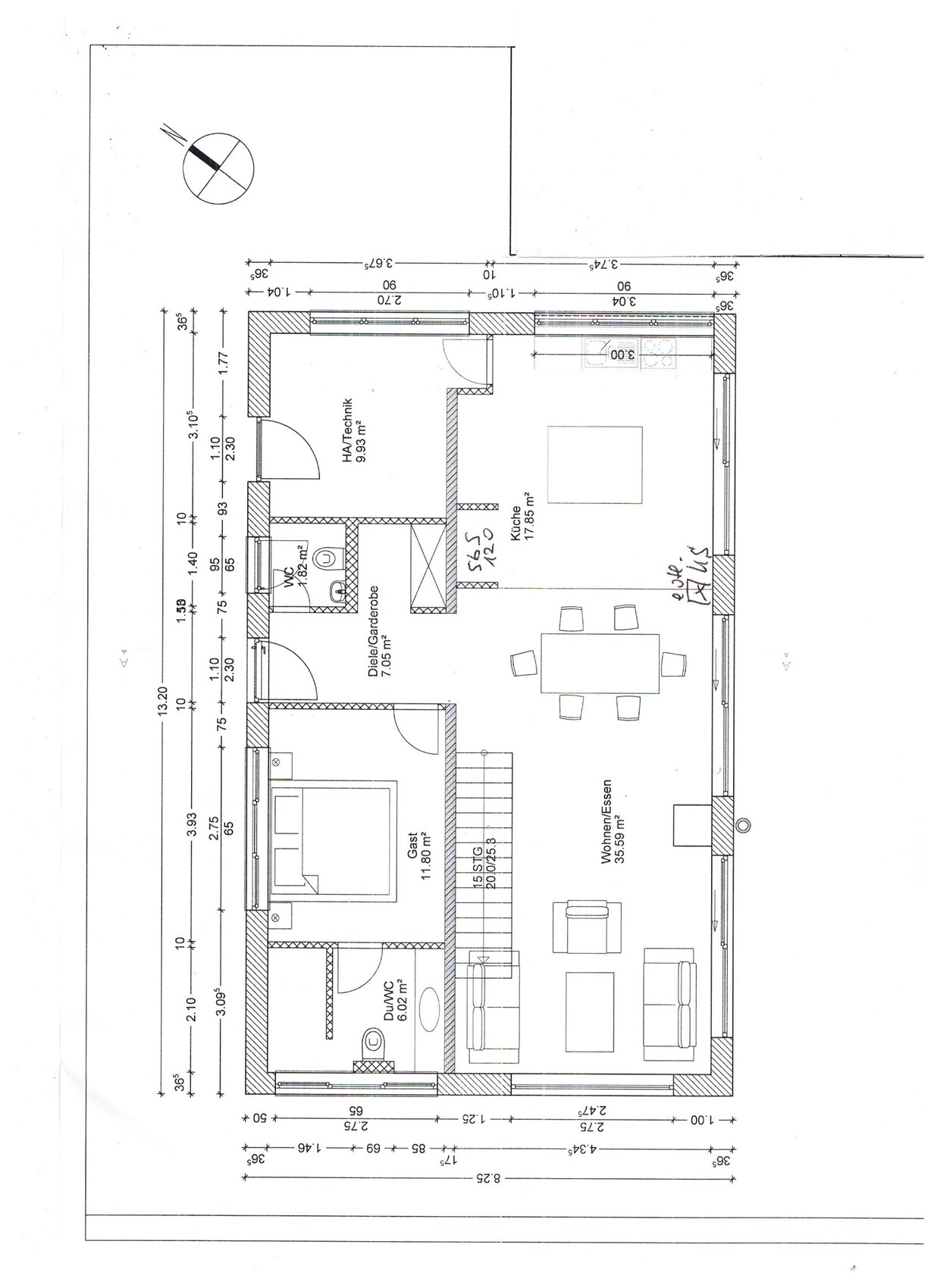
Wir mögen den modernen, schlichten Baustil. Der Grundriss ist eine Mischung aus eigenen Lebensgewohnheiten, unseren mitgebrachten Möbeln incl. Küche sowie dem Geldbeutel, da wir uns lebensphasenbedingt nicht mehr riskant verschulden möchten.
Unsere derzeitige ETW ist zwar superschick und gerade erst selbst erst gestaltet aber das Leben ändert sich eben manchmal; zudem möchten wir auch wieder einmal ein Feuerchen auf dem eigenen Rasen machen-
Wir bauen nun mit einem GU mit gutem Ruf, der uns schon zigmal hat Alles ändern lassen und bisher noch immer entspannt ist... bisher- . Lieber hätten wir mit einem freien Architekten gebaut bzw. unserem befreundeten Innenarchitekten und hätten dadurch freiere Auswahl der Gewerke aber wir wollen uns diesmal viel mehr mit Details beschäftigen und Rennerei vermeiden, wie es beim 1. Mal vor 30 Jahren war.
Nein, diesmal werde ich keine Fundamente selbst graben oder den Keller betonieren usw. bis meine Familie mich nicht mehr kennt.
Ob es Garage, Carport oder Stellplatz hängt genauso von den Kosten ab wie der eingezeichnete Balkon, der dann ein sog. Stehbalkon werden würde; zunächst soll das genehmigt werden. Dazu kommt noch ein größeres Gartenhaus mit Außensauna.
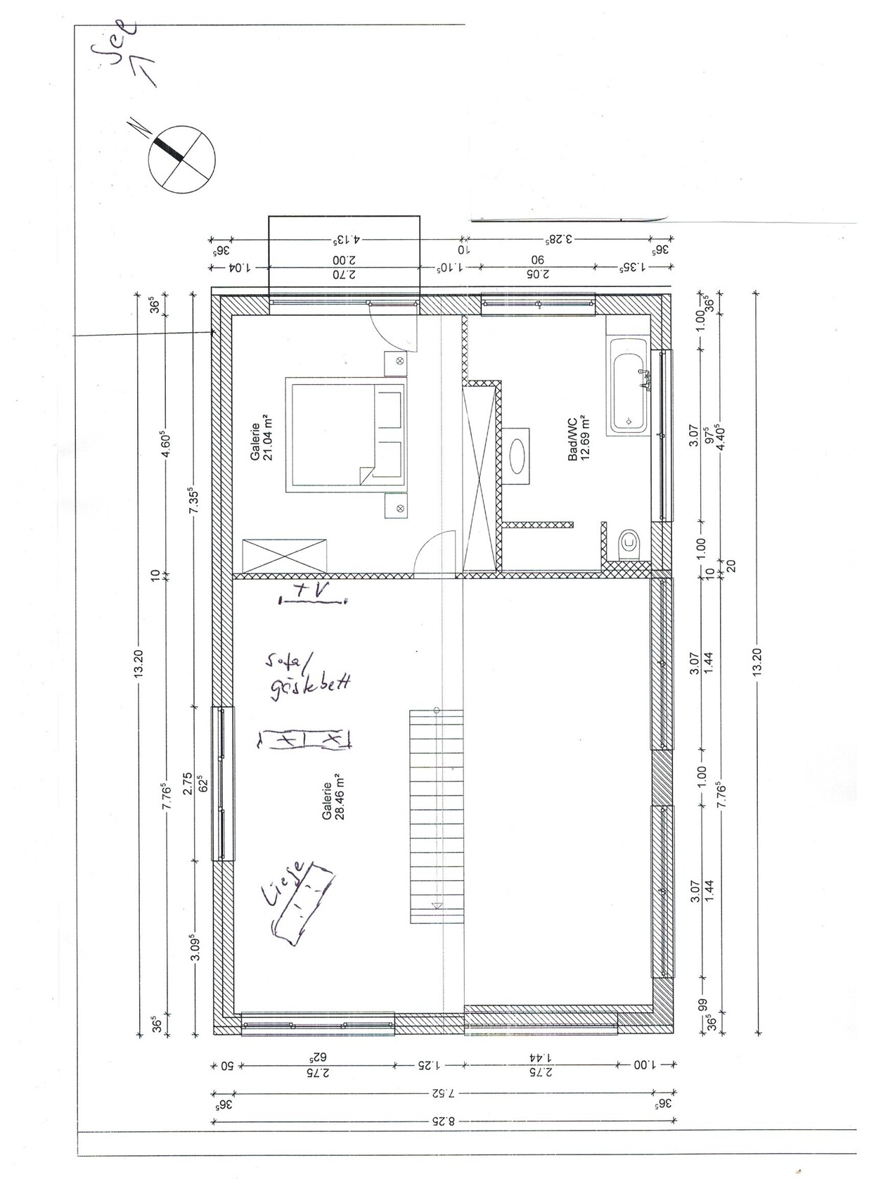
Das Grundstück ist recht groß und schöner Sicht ins Grüne. Leider ist nur in Richtung Norden 500m entfernt und tiefergelegen ein wunderschöner See. Alleine aus diesem Grunde haben wir uns gegen einen Bungalow entschieden, weil Seeblick haben können und nicht nutzen kam nicht in Frage (daher auch der „Notbalkon“ am Schlafzimmer). Ursprünglich war daher ein Haus mit Knick geplant, was letztlich aber immer scheußlich aussah.
HAUS FÜR ZWEI
Größe des Grundstücks: 1400qm
Hang: Nein
Anzahl Stellplatz: 2
Geschossigkeit: 1,5
Dachform: Satteldach
Stilrichtung: modern-puristisch
Anforderungen der Bauherren
Stilrichtung, Dachform, Gebäudetyp: klare Linien
Keller, Geschosse: kein Keller
Anzahl der Personen, Alter: 2 (einer von Beiden arbeitet noch etwas mehr…..)
Schlafgäste pro Jahr: öfter mal, abwechselnd
konservativ oder moderne Bauweise: modern, offen
offene Küche, Kochinsel: Ja
Anzahl Essplätze: 4
Kamin: Ja/Nein/Weiß nicht, evtl. auch Gaskamin
Balkon, Dachterrasse: Evtl. Balkon an Schlafzimmer wg. Aussicht See
Garage, Carport: Ja, je nach Preis
weitere Wünsche etc.:
Gästebereich separat, notfalls im noch höheren Alter als Schlafzimmer, dann Gäste oben
Eigene Möbelstücke und Küche eingepasst
Separater TV-Bereich aus Galerie, daneben sep. Bereich für Relaxliege
Küche mit 120cm Side By Side Kühlschrank bzw. 70cm Kühlschrank an Fensterseite
Kaminofen Monolith Rock XL1 vorhanden, Kamnin außen geplant wg. Geringerer Kosten, Optik und weniger Platzbedarf innen
Fensterflächen EG durch Mauerscheiben getrennt wg. Kamin, evtl. Kühlschrank aber insbes. auch wg. Begrenzter Breite des Herstellers (Aussage GU)
Ursprüngliche Idee von durchgehenden Fensterflächen bis unter Traufe im WZ/Esszimmer, aktuell auf Geschossdeckenhöhe durch Mauerstreifen getrennt.
Teile im Plan/Grundriss noch nicht korrekt benannt (Entwurfumsetzung GU)
Hausentwurf, von wem stammt die Planung: Von Bauherren + teilweise Abstimmung mit Innenarchitekt, inzwischen umgesetzt vom Planer eines Bauunternehmens
Was gefällt besonders? Warum?
schlichter Baustil, Galerie, großzügige, Fensterfläche, Raffstores, offene Bauweise,
Was gefällt nicht? Warum? Das werde ich hier bestimmt zu lesen bekommen
Preisschätzung lt Architekt/Planer: -
Ausstattung: Zielrichtung ist es, punktuell und sinnvoll zu investieren aber unnötigen, kostentreibenden Schnickschnack (uMn) konsequent wegzulassen
favorisierte Heiztechnik: noch unschlüssig, leider kein Gasanschluss vorhanden
Wenn Ihr verzichten müsst, auf welche Details/Ausbauten -könnt Ihr verzichten: evtl. Kamin….irgendwie bin ich noch unsicher wg. Standort, schön fände ich einen eingebauten Gaskamin unter der Treppe aber nur deswegen Flüssiggastank anschaffen?
Warum ist der Entwurf so geworden, wie er jetzt ist? ZB
Eigene Lebensumstände, mitgebrachte Möbelstücke, aus individuellen Lebensgewohnheiten
Was ist die wichtigste/grundlegende Frage zum Grundriss in 130 Zeichen zusammengefasst?
Gerne bekomme ich direkte und konstruktive Einschätzungen dazu. Der Baukörper ist fix, auch die Lage von Carport/Garage. Schwerpunkt der Fragen liegt in den Details des Grundrisses bzw. Gestaltung-/Nutzungsdetails.
Vor dem Küchenbereich wird es eine Glasüberdachung geben bzw. Lamellen o.ä.
Grundstück ist nahezu flach und Außenanlage wird schlicht und bedienerfreundlich sein, dazu ein größeres Gartenhaus mit Außensauna, Lagerung von Gedöns, Handwerkszeug etc.





Der Bauantrag wird gerade eingereicht, nach Vorabauskunft sollte es jedoch so genehmigt werden. Bewusst haben wir deswegen auch nicht zu viele Abweichungen vom uralten Bebauungsplan.
Wir mögen den modernen, schlichten Baustil. Der Grundriss ist eine Mischung aus eigenen Lebensgewohnheiten, unseren mitgebrachten Möbeln incl. Küche sowie dem Geldbeutel, da wir uns lebensphasenbedingt nicht mehr riskant verschulden möchten.
Unsere derzeitige ETW ist zwar superschick und gerade erst selbst erst gestaltet aber das Leben ändert sich eben manchmal; zudem möchten wir auch wieder einmal ein Feuerchen auf dem eigenen Rasen machen-
Wir bauen nun mit einem GU mit gutem Ruf, der uns schon zigmal hat Alles ändern lassen und bisher noch immer entspannt ist... bisher- . Lieber hätten wir mit einem freien Architekten gebaut bzw. unserem befreundeten Innenarchitekten und hätten dadurch freiere Auswahl der Gewerke aber wir wollen uns diesmal viel mehr mit Details beschäftigen und Rennerei vermeiden, wie es beim 1. Mal vor 30 Jahren war.
Nein, diesmal werde ich keine Fundamente selbst graben oder den Keller betonieren usw. bis meine Familie mich nicht mehr kennt.
Ob es Garage, Carport oder Stellplatz hängt genauso von den Kosten ab wie der eingezeichnete Balkon, der dann ein sog. Stehbalkon werden würde; zunächst soll das genehmigt werden. Dazu kommt noch ein größeres Gartenhaus mit Außensauna.
Das Grundstück ist recht groß und schöner Sicht ins Grüne. Leider ist nur in Richtung Norden 500m entfernt und tiefergelegen ein wunderschöner See. Alleine aus diesem Grunde haben wir uns gegen einen Bungalow entschieden, weil Seeblick haben können und nicht nutzen kam nicht in Frage (daher auch der „Notbalkon“ am Schlafzimmer). Ursprünglich war daher ein Haus mit Knick geplant, was letztlich aber immer scheußlich aussah.
HAUS FÜR ZWEI
Größe des Grundstücks: 1400qm
Hang: Nein
Anzahl Stellplatz: 2
Geschossigkeit: 1,5
Dachform: Satteldach
Stilrichtung: modern-puristisch
Anforderungen der Bauherren
Stilrichtung, Dachform, Gebäudetyp: klare Linien
Keller, Geschosse: kein Keller
Anzahl der Personen, Alter: 2 (einer von Beiden arbeitet noch etwas mehr…..)
Schlafgäste pro Jahr: öfter mal, abwechselnd
konservativ oder moderne Bauweise: modern, offen
offene Küche, Kochinsel: Ja
Anzahl Essplätze: 4
Kamin: Ja/Nein/Weiß nicht, evtl. auch Gaskamin
Balkon, Dachterrasse: Evtl. Balkon an Schlafzimmer wg. Aussicht See
Garage, Carport: Ja, je nach Preis
weitere Wünsche etc.:
Gästebereich separat, notfalls im noch höheren Alter als Schlafzimmer, dann Gäste oben
Eigene Möbelstücke und Küche eingepasst
Separater TV-Bereich aus Galerie, daneben sep. Bereich für Relaxliege
Küche mit 120cm Side By Side Kühlschrank bzw. 70cm Kühlschrank an Fensterseite
Kaminofen Monolith Rock XL1 vorhanden, Kamnin außen geplant wg. Geringerer Kosten, Optik und weniger Platzbedarf innen
Fensterflächen EG durch Mauerscheiben getrennt wg. Kamin, evtl. Kühlschrank aber insbes. auch wg. Begrenzter Breite des Herstellers (Aussage GU)
Ursprüngliche Idee von durchgehenden Fensterflächen bis unter Traufe im WZ/Esszimmer, aktuell auf Geschossdeckenhöhe durch Mauerstreifen getrennt.
Teile im Plan/Grundriss noch nicht korrekt benannt (Entwurfumsetzung GU)
Hausentwurf, von wem stammt die Planung: Von Bauherren + teilweise Abstimmung mit Innenarchitekt, inzwischen umgesetzt vom Planer eines Bauunternehmens
Was gefällt besonders? Warum?
schlichter Baustil, Galerie, großzügige, Fensterfläche, Raffstores, offene Bauweise,
Was gefällt nicht? Warum? Das werde ich hier bestimmt zu lesen bekommen
Preisschätzung lt Architekt/Planer: -
Ausstattung: Zielrichtung ist es, punktuell und sinnvoll zu investieren aber unnötigen, kostentreibenden Schnickschnack (uMn) konsequent wegzulassen
favorisierte Heiztechnik: noch unschlüssig, leider kein Gasanschluss vorhanden
Wenn Ihr verzichten müsst, auf welche Details/Ausbauten -könnt Ihr verzichten: evtl. Kamin….irgendwie bin ich noch unsicher wg. Standort, schön fände ich einen eingebauten Gaskamin unter der Treppe aber nur deswegen Flüssiggastank anschaffen?
Warum ist der Entwurf so geworden, wie er jetzt ist? ZB
Eigene Lebensumstände, mitgebrachte Möbelstücke, aus individuellen Lebensgewohnheiten
Was ist die wichtigste/grundlegende Frage zum Grundriss in 130 Zeichen zusammengefasst?
Gerne bekomme ich direkte und konstruktive Einschätzungen dazu. Der Baukörper ist fix, auch die Lage von Carport/Garage. Schwerpunkt der Fragen liegt in den Details des Grundrisses bzw. Gestaltung-/Nutzungsdetails.
Vor dem Küchenbereich wird es eine Glasüberdachung geben bzw. Lamellen o.ä.
Grundstück ist nahezu flach und Außenanlage wird schlicht und bedienerfreundlich sein, dazu ein größeres Gartenhaus mit Außensauna, Lagerung von Gedöns, Handwerkszeug etc.
tomtom7903.07.20 13:33
Von außen sehr hübsch.
Innen sehe ich auf die schnelle das sehr lange Wohnzimmer das einfach zu schmal ist.
Innen sehe ich auf die schnelle das sehr lange Wohnzimmer das einfach zu schmal ist.
Pinky030103.07.20 13:50
Verstehe ich das richtig? Ihr habt die Möglichkeit auf Seeblick, aber wollt sie nicht nutzen?
pagoni202003.07.20 13:53
Pinky0301 schrieb:
Verstehe ich das richtig? Ihr habt die Möglichkeit auf Seeblick, aber wollt sie nicht nutzen?Ups...doch. Man sieht den See nur aus dem 1.OG. Daher bauen wir das OG, ansonsten wäre es ein wohl Bungalow geworden. Aus dem EG schaut man quasi obendrüber, weil er See im Tal liegt.Ursprünglich sollte es ein Knick im Gebäude sehen, dass man kerzengerade vom Bett aus auf den See schaut. Nun gibts den seitlichen Meerblick- und wir behalten uns den Vorbau eines Stehbalkons vor.
Pinky030103.07.20 13:53
Ah, jetzt hab ich es verstanden! Ich bezog das "nicht nutzen können" darauf, dass ihr keinen Seezugang habt und ihn deshalb nicht sehen wollt
pagoni202003.07.20 14:00
Ich hasse Seeblick.......früher hatte ich mal in der Gegend eines Atomkraftwerks gewohnt. Leider habe ich das auch nicht aus dem Fenster sehen können.
Naja....jetzt wenigstens nen langweiligen Tümpel-
Naja....jetzt wenigstens nen langweiligen Tümpel-
Ähnliche Themen