ᐅ Grundriss Bungalow 150qm mit Garage
Erstellt am: 30.10.21 21:56
Bebauungsplan/Einschränkungen
Größe des Grundstücks : 870 qm
Hang :3% über 22,9m
Anzahl Stellplatz: min. 4 + Garage
Geschossigkeit: 1
Dachform: Walmdach 28 Grad
Stilrichtung: noch Unsicher
Ausrichtung: Terrasse Süd/West
Anforderungen der Bauherren
Anzahl der Personen, Alter: 2 Personen, Kinder in Planung, 28 und 29 Jahre alt
Schlafgäste pro Jahr
Anzahl Essplätze: 2 in die Küche kommt noch eine kleine sitzecke
Kamin: Ja mit externer Luftzufuhr (KG-Rohr unterhalb der Bodenplatte).
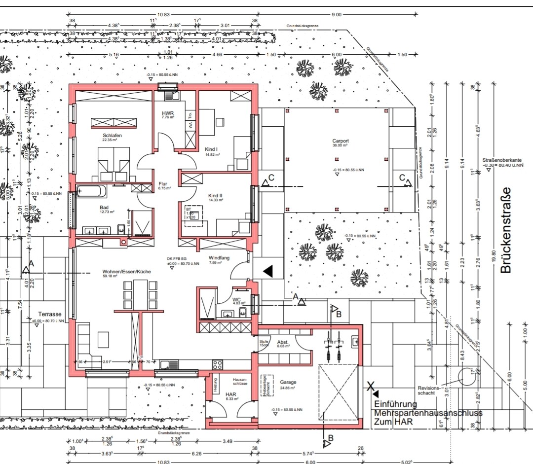
Garage, Carport: Garage mit HAR ca. 37qm, Carport 36qm
Hausentwurf
Von wem stammt die Planung: Do it yourself mit Umsetzung vom Architekten
Was gefällt besonders? Warum?: Die langen mit lichtdurchfluteten Sichtachsen.
Was gefällt nicht? Warum? Bodentreppe im Kinderzimmer, aber irgendwo muss die ja hin. Im Flur wäre diese zu present.
Preisschätzung lt Architekt/Planer: 330000€ ohne Küche, Kamin, Carport und Außenanlage
favorisierte Heiztechnik: Luft/ Wasser Wärmepumpe
Wenn Ihr verzichten müsst, auf welche Details/Ausbauten
-könnt Ihr verzichten: Carport
-könnt Ihr nicht verzichten: Garage
Was ist die wichtigste/grundlegende Frage zum Grundriss in 130 Zeichen zusammengefasst?
Gibt es Erfahrungen zur Vaillant flexotherm exclusive mit uniSTOR 300l?
Vinylboden oder doch Parkett?
Deckenspotts in der Fligrandecke vom Werkaus oder lieber selber machen?
Über Tipps und eure Meinungen zum Grundriss würde ich mich sehr freuen!
LG Eckert



Größe des Grundstücks : 870 qm
Hang :3% über 22,9m
Anzahl Stellplatz: min. 4 + Garage
Geschossigkeit: 1
Dachform: Walmdach 28 Grad
Stilrichtung: noch Unsicher
Ausrichtung: Terrasse Süd/West
Anforderungen der Bauherren
Anzahl der Personen, Alter: 2 Personen, Kinder in Planung, 28 und 29 Jahre alt
Schlafgäste pro Jahr
Anzahl Essplätze: 2 in die Küche kommt noch eine kleine sitzecke
Kamin: Ja mit externer Luftzufuhr (KG-Rohr unterhalb der Bodenplatte).
Garage, Carport: Garage mit HAR ca. 37qm, Carport 36qm
Hausentwurf
Von wem stammt die Planung: Do it yourself mit Umsetzung vom Architekten
Was gefällt besonders? Warum?: Die langen mit lichtdurchfluteten Sichtachsen.
Was gefällt nicht? Warum? Bodentreppe im Kinderzimmer, aber irgendwo muss die ja hin. Im Flur wäre diese zu present.
Preisschätzung lt Architekt/Planer: 330000€ ohne Küche, Kamin, Carport und Außenanlage
favorisierte Heiztechnik: Luft/ Wasser Wärmepumpe
Wenn Ihr verzichten müsst, auf welche Details/Ausbauten
-könnt Ihr verzichten: Carport
-könnt Ihr nicht verzichten: Garage
Was ist die wichtigste/grundlegende Frage zum Grundriss in 130 Zeichen zusammengefasst?
Gibt es Erfahrungen zur Vaillant flexotherm exclusive mit uniSTOR 300l?
Vinylboden oder doch Parkett?
Deckenspotts in der Fligrandecke vom Werkaus oder lieber selber machen?
Über Tipps und eure Meinungen zum Grundriss würde ich mich sehr freuen!
LG Eckert
Warum plant ihr das Haus so herum? Ich würde schon mal um 90° drehen. Die schöne Südecke ist von der Garage verdeckt. Osten durch den Carport verschattet.
Küche finde ich ein Laufwunder und wo soll da noch eine Sitzecke hin?
Schlafzimmerplanung finde ich ungemütlich, da würde ich erst den Schrankbereich beim Reinkommen planen, damit man nicht beim Hereinkommen über das Bett stolpert. Ich auch praktischer, wenn einer mal länger schläft oder mal krank ist. Dann sind Schränke immer noch zugänglich.
Küche finde ich ein Laufwunder und wo soll da noch eine Sitzecke hin?
Schlafzimmerplanung finde ich ungemütlich, da würde ich erst den Schrankbereich beim Reinkommen planen, damit man nicht beim Hereinkommen über das Bett stolpert. Ich auch praktischer, wenn einer mal länger schläft oder mal krank ist. Dann sind Schränke immer noch zugänglich.
kbt09 schrieb:
Warum plant ihr das Haus so herum? Ich würde schon mal um 90° drehen. Die schöne Südecke ist von der Garage verdeckt. Osten durch den Carport verschattet.
Küche finde ich ein Laufwunder und wo soll da noch eine Sitzecke hin?
Schlafzimmerplanung finde ich ungemütlich, da würde ich erst den Schrankbereich beim Reinkommen planen, damit man nicht beim Hereinkommen über das Bett stolpert. Ich auch praktischer, wenn einer mal länger schläft oder mal krank ist. Dann sind Schränke immer noch zugänglich.Wen wir um 90 Grad drehen hab wir aber ziemlich viele Fenster Richtung Norden. Ja das Carport ist aktuell auch nur optional, so ganz glücklich mit dem möglichen Schattenwurf bin ich auch nicht. Die Küche hat nur eine Zeile und die gegenüberliegende Einbaunische, das L Stück entfällt, dort könnte man eine Sitzecke mit kleinem Tisch planen.
Beim Drehen muss man natürlich die Räume anders planen ... Eingang Hauswirtschaftsraum, Bäder, Eltern mehr Richtung Norden.
Wenn du das mit der Küche so planst, hast du quasi 2 Essplätze fast unmittelbar nebeneinander. Den "Essraum"-Essplatz finde ich auch recht ungemütlich im Durchgang gelegen.
Wenn du das mit der Küche so planst, hast du quasi 2 Essplätze fast unmittelbar nebeneinander. Den "Essraum"-Essplatz finde ich auch recht ungemütlich im Durchgang gelegen.
Ähnliche Themen