Grundriss Flachdachhaus am Hang

4,30 Stern(e) 4 Votes
Zuletzt aktualisiert 21.11.2025
Sie befinden sich auf der Seite 2 der Diskussion zum Thema: Grundriss Flachdachhaus am Hang
>> Zum 1. Beitrag <<

M

matte

- Mir gefällt die Eingangssituation nicht so recht.
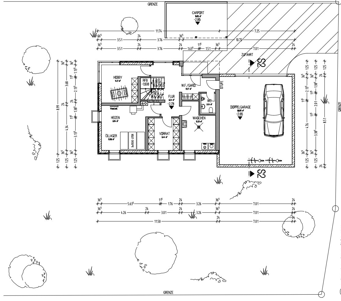
Muss die Waschküche so ein Palast sein? Ich würde wohl die Wasküche kleiner, den Eingang dafür größer machen.

- Wie kommt es, das ihr mit Öl heizt? Ungewöhnlich in der heutigen Zeit.

- Den Zugang zum Heizkeller finde ich auch ungünstig, die Engstelle am Kessel ist nicht so prickelnd.

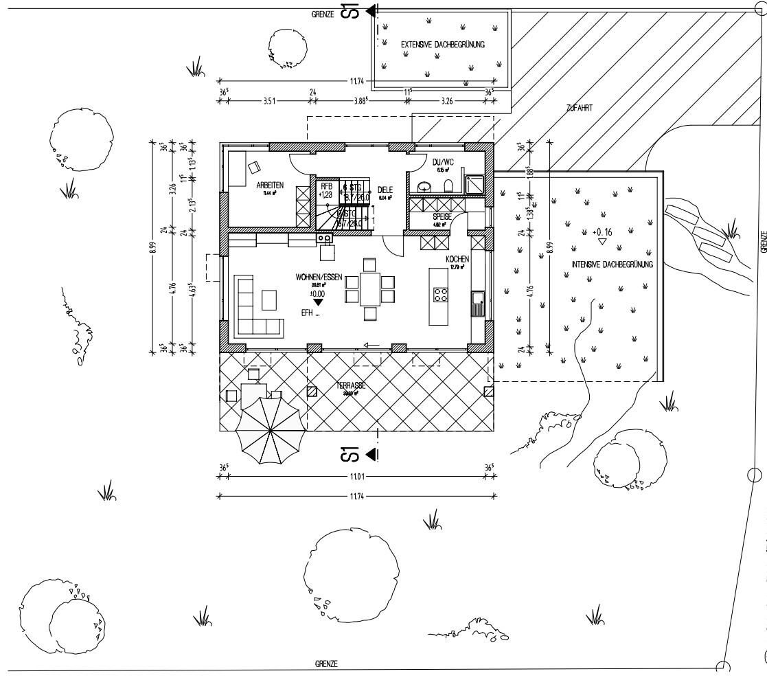
- Wozu ein Breites bodentiefes Fenster zur Terrasse, wenn dann die Couch davor steht?
Noch dazu ist das genau die Stelle, an der man auf der Terrasse sitzt. Man sieht also immer den Staub hinter der Couch...

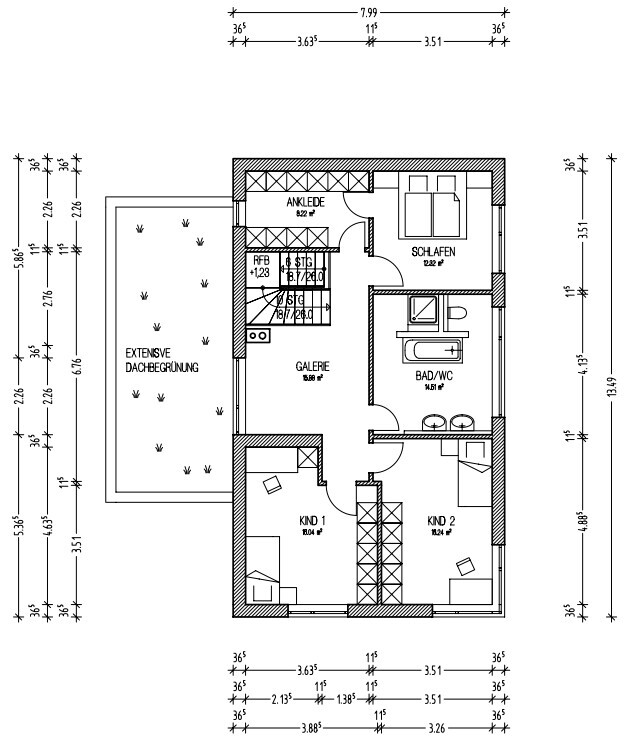
- Wozu 2 Türen im Schlafzimmer? Ich würde wohl die Türe zum Flur wegmachen und nur über die Ankleide ins Schlafzimmer gehen.
Dafür würde ich die Kopfseite des Bettes dann an die planuntere Wand legen, dann muss derjenige, der am Fenster schläft, nicht immer ums komplette Bett laufen.
 
11ant

11ant

... und mecker´ dann auch gleich ´mal:

Den Lichtschacht-Gitterrost hätte ich mindestens lieber vor dem festen Teil der Schiebetür als vor dem Austritt. Eigentlich wäre mir das sogar Anlaß zum wohlwollenden Nachdenken, ob das nicht eleganter lösbar ist.

Ibs. im Bad mißfällt mir, daß die Tür so an die Wand geklatscht ist. Das Verhältnis Badfläche zu Kinder- bzw. Schlafzimmerfläche hängt m.E. schief. Die Ankleide würde ich auf 2,51 m Breite aufbohren.

Warum soll die Speisekammer weg ?

Das Garagentor scheint mir den zweiten Wagen als Stiefkind zu behandeln. Auch um ihn nicht mit den Fahrrädern und Mülltonnen (oder für was auch immer der Meter daneben ist) zu verschrammen, zöge ich die Toröffnung nach rechts (= planlinks) breiter. Und wie immer rege ich Einzeltore an.

Im OG hege ich leichte Statik-Zweifel.
 
Zuletzt bearbeitet:
Y

ypg

Mir fehlt jetzt schon der Wille am Erhalt einiger Meinungen.
Wegen @11ant können wir zumindest die Grundrisse sehen,
Aber der TE @al3x_ bleibt uns Erklärungen des WWW schuldig: wer, was, warum.
 
kaho674

kaho674

Also ich find die Bude nicht schlecht. Die Einwände von 11ant sind berechtigt und bestimmt noch zu beheben. 2 Dinge, die mich stören würden:
1. Wenn ich das richtig lese ist da eine Ölheizung geplant und wenn ich mich nicht verguckt habe ist der Raum für den Tank am entferntesten Punkt zur Straße. Falls dem so wäre, ist das Betanken des selben später jedes mal mit einer Schlauchleitung durch das gesamte Haus verbunden. An der Geruchsbelästigung hat man dann noch ne Woche Spaß. Da das aber meist nur 1x jährlich ist, was soll's.
2. Ich persönlich finde es überhaupt nicht gemütlich, schön oder erholsam unter einem solchen Klotz auf der Terrasse zu sitzen. Das ist eher erdrückend und bedrohlich. Zuhause wollte ich das nicht haben. Ist aber Geschmackssache. Wenn dann noch "einer" an der Statik zweifelt, wird es noch mulmiger.
 
A

Alex85

Heizungsraum ist ungünstig posititioniert und zudem massiv überdimensioniert. Sowohl die Größe des Raums, als auch die Bevorratung. 3x1500l dürfte für das Haus >4 Jahre reichen. 1000l pro Jahr reichen.
Wenn du schon in einen solchen Neubau eine Ölheizung stecken willst, dann such dir jemanden, der das auch nach heutigen Maßstäben kann und nicht wie vor 50 Jahren bauen will.

Hast du eine zentrale Lüftungsanlage geplant? Dann würde ich die Kellerschächte streichen. Sehen von außen schlecht aus, stellen potenzielle Undichtigkeiten dar und Licht bringen sie eh nicht.
So vor den Hebeschiebetüren sind sie eh sehr unglücklich positioniert.

KFW55? Die Wanddicken lassen darauf fast schließen, aber bei der Menge an Wärmebrücken durch die Versprünge und Überstände, wird das vielleicht schwierig. Der Energieberater wird jedenfalls ein paar Euro teurer werden, weil er mehr zu rechnen hat.

An den Ansichten lässt sich noch arbeiten, z.B. im Osten OG passen die Fensterformate nicht zueinander und OG/EG lassen sich auch besser übereinander bringen (auch wenn dies nicht höchste Prio sein muss).

Im Wohnzimmer stört mich (das trifft aber auf 99% der Grundrisse zu), dass das Sofa mit dem Rücken zur Terrasse steht. Wenn ich da sitze, will ich raussehen können. Aber wie gesagt, das ist bei sehr vielen Grundrissen "heutzutage" so, anscheinend gibts da Konsens, dass man Sofas vor teure bodentiefe Fenster stellt, um dann gegen ne Wand zu schauen.

Gibts für das Haus schon eine Preisindikation? Grundsätzlich gefällt mir das schon.
 
Zuletzt aktualisiert 21.11.2025
Im Forum Grundrissplanung / Grundstücksplanung gibt es 2535 Themen mit insgesamt 87981 Beiträgen


Ähnliche Themen zu Grundriss Flachdachhaus am Hang
Nr.ErgebnisBeiträge
1Fenster Brüstungshöhe 130 im Schlafzimmer / Arbeitszimmer? - Seite 493
2Pfiffige Schlafzimmer Idee mit Ankleide gesucht 19
3Grundriss Schlafzimmer, Ankleide und Bad en Suite - Seite 336
4Grundriss Schlafzimmer mit Bad und Ankleide 62
5Grundriss Einfamilienhaus mit Doppelgarage und Terrasse - Seite 219
6Neubau einer ca. 8x11 Doppelhaushälfte, Einschätzung Grundriss und Fenster - Seite 235
7Winkelbungalow, Terrasse ganz oder halb überdachen? - Seite 857
8 Küchenplanung mit tiefen Fenster - Seite 643
9auf welchen dieser Grundrisse können wir weiter aufbauen? - Seite 36287
10OG Stadtville optimieren. Fenster Bodentief - Seite 16104
11Durchbruch Bad und Ankleide ohne Türe? - Seite 212
12Grundriss Stadtvilla / Feedback Statik, Anordnung 28
13Grundrissplanung Stadtvilla - Was meint Ihr dazu? - Seite 428
14Welche Rollläden bei verschlossenem Fenster, nur Verglasung? - Seite 213
15Grundriss Einfamilienhaus geplant, Fenster gefallen uns - Seite 243
16Fenster / Türen / Garderobe 13
17Einfamilienhaus, Eingeschossigkeit, Kniestock, Fenster OG - Seite 230
18Bodentiefe Fenster - Warum bodentiefe Fenster? Vor- Nachteile? - Seite 5112
19Öffnungsmöglichkeit der Fenster mit Kontrollierte-Wohnraumlüftung - Ideen zur Planung - Seite 860
20Überdachte Terrasse als Wohnfläche anrechnen lassen? - Seite 651

Oben