ᐅ Grundriss Einfamilienhaus ca. 190m² - Optimierungen
Erstellt am: 23.06.19 18:33
T
TraumvHaus23.06.19 18:33Hallo zusammen,
unser Traum vom Eigenheim wird endlich wahr und wir konnten ein Grundstück in einem Neubaugebiet erwerben.
Aktuell haben wir bereits die ersten Entwürfe. Grundsätzlich gefällt uns die Richtung sehr, jedoch einige Details sind noch nicht so wie wir es uns wünschen
Daher hoffen wir hier auf einige Anregungen zur Verbesserung.
Bebauungsplan/Einschränkungen
Größe des Grundstücks: 680m2
Hang: nein - Grundstück fällt über die Länge von 30m ca 2-2,5m ab
Grundflächenzahl: 0,4
Geschossflächenzahl: -
Baufenster, Baulinie und -grenze: im Anhang ersichtlich
Randbebauung: Ja gemäß Baugesetz - maximal 9 m Länge (Die Garage soll auf die Grenze)
Anzahl Stellplatz: 2
Geschossigkeit: 2
Dachform: Pultdach, Flachdach, Satteldach, Walmdach, Zeltdach
Stilrichtung: -
Ausrichtung: Süden
Maximale Höhen/Begrenzungen: maximale Wandhöhe: 6,5m / maximale Firsthöhe: 12,5m
weitere Vorgaben -
Anforderungen der Bauherren
Stilrichtung, Dachform, Gebäudetyp: modern, schlicht / Walmdach (kein Zeltdach) oder ggf.. Satteldach
Keller, Geschosse: Keller + 2 Vollgeschosse
Anzahl der Personen, Alter: 3 Personen (32,31,13)
Raumbedarf im EG, OG: je ca 90-100m²
Büro: Familiennutzung oder Homeoffice? Sowohl als auch - später evtl als Schlafzimmer nutzbar
Schlafgäste pro Jahr: 3-5
offene oder geschlossene Architektur: offen
konservativ oder moderne Bauweise: konservativ
offene Küche, Kochinsel: Ja Küchenzeile ohne Oberschränke + Kochinsel
Anzahl Essplätze: 6 (erweiterbar auf 8)
Kamin: ja
Musik/Stereowand
Balkon, Dachterrasse: ggf.. Dachterrasse auf der Garage
Garage, Carport: Garage
Nutzgarten, Treibhaus: Nein
weitere Wünsche/Besonderheiten/Tagesablauf, gern auch Begründungen, warum dieses oder das nicht sein soll: offene Wohnküche mit Speisekammer und "Glasfront" zum Garten / Podesttreppe / Ankleide im Schlafzimmer / 2 annähernd gleich große Zimmer im OG / Büro soll später evtl als Schlafzimmer nutzbar sein, daher auch das Duschbad im EG
Hausentwurf
Von wem stammt die Planung:
-Architekt + unsere Vorstellungen / Anpassungen
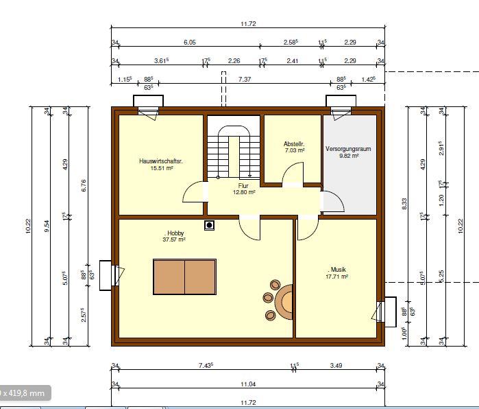
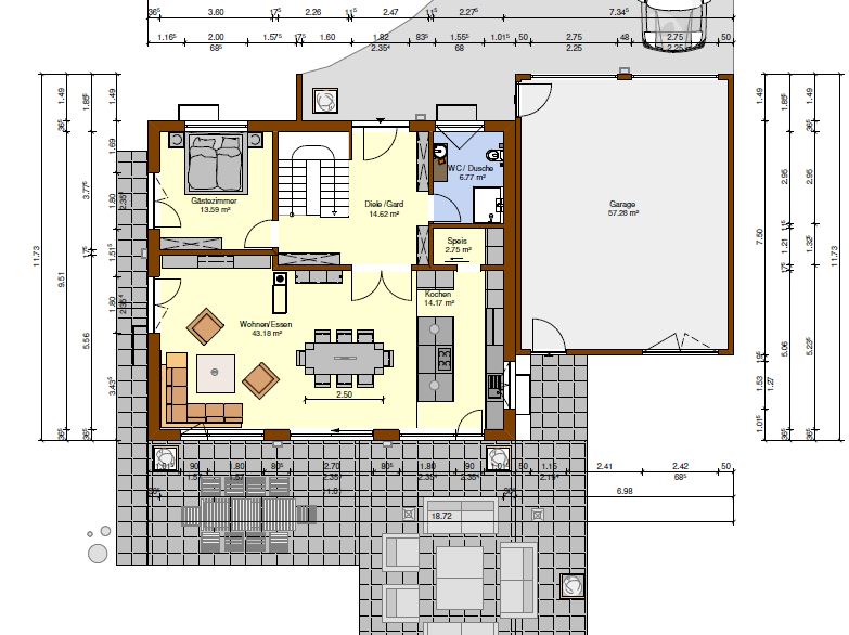
Was gefällt besonders? Warum? - Der offene Wohnbereich inkl. Zugang zu der im Süden liegenden Terrasse - gerade die Anordnung / Aufteilung der Küche plus Zugang zur Speisekammer. Das Kellergeschoss würden wir so 1 zu 1 übernehmen. Ggfs noch einen direkten Zugang von außen über eine Treppe ergänzen. Die Größe der Kinderzimmer im OG gefällt uns ebenfalls. Hier sollen die Kinderzimmer in den Süden kommen.
Was gefällt nicht? Warum? - Eingangsbereich im EG - wir hätten gerne eine Nische etc. für Schuhe, Jacke etc, damit man nicht direkt darüber "stolpert" bzw. alles gleich sichtbar ist. Ggfs. fänden wir eine "Schmutzschleuse" noch sehr praktisch.
Am OG würden wir aus heutiger Sicht am meisten ändern wollen: Der Zugang zum Schlafzimmer über den "Ankleidebereich" gefällt uns leider nicht. Die Dachterrasse mit Blick ins Bad ist unserer Meinung nach nur suboptimal gelöst. Wobei die Dachterrasse kein Muss ist und wenn dann auch nicht vorne über den Eingang gehen wird.
Preisschätzung lt Architekt/Planer: 500.000€
favorisierte Heiztechnik: Wärmepumpe
Wenn Ihr verzichten müsst, auf welche Details/Ausbauten
-könnt Ihr verzichten: Dachterrasse
-könnt Ihr nicht verzichten: große Garage, Duschbad im EG, Gästezimmer / Büro im EG
Wie bereits geschrieben geht der Entwurf schon genau in die Richtung, die uns gefällt. Aktuell überlegen wir, ob wir das Haus nochmals drehen sollen und den Eingang ggf.. zwischen Garage und Haus legen. Hierdurch würde sich jedoch alles komplett verschieben.
Wir sind für alle Vorschläge dankbar und freuen uns auf alle Anmerkungen.





unser Traum vom Eigenheim wird endlich wahr und wir konnten ein Grundstück in einem Neubaugebiet erwerben.
Aktuell haben wir bereits die ersten Entwürfe. Grundsätzlich gefällt uns die Richtung sehr, jedoch einige Details sind noch nicht so wie wir es uns wünschen
Daher hoffen wir hier auf einige Anregungen zur Verbesserung.
Bebauungsplan/Einschränkungen
Größe des Grundstücks: 680m2
Hang: nein - Grundstück fällt über die Länge von 30m ca 2-2,5m ab
Grundflächenzahl: 0,4
Geschossflächenzahl: -
Baufenster, Baulinie und -grenze: im Anhang ersichtlich
Randbebauung: Ja gemäß Baugesetz - maximal 9 m Länge (Die Garage soll auf die Grenze)
Anzahl Stellplatz: 2
Geschossigkeit: 2
Dachform: Pultdach, Flachdach, Satteldach, Walmdach, Zeltdach
Stilrichtung: -
Ausrichtung: Süden
Maximale Höhen/Begrenzungen: maximale Wandhöhe: 6,5m / maximale Firsthöhe: 12,5m
weitere Vorgaben -
Anforderungen der Bauherren
Stilrichtung, Dachform, Gebäudetyp: modern, schlicht / Walmdach (kein Zeltdach) oder ggf.. Satteldach
Keller, Geschosse: Keller + 2 Vollgeschosse
Anzahl der Personen, Alter: 3 Personen (32,31,13)
Raumbedarf im EG, OG: je ca 90-100m²
Büro: Familiennutzung oder Homeoffice? Sowohl als auch - später evtl als Schlafzimmer nutzbar
Schlafgäste pro Jahr: 3-5
offene oder geschlossene Architektur: offen
konservativ oder moderne Bauweise: konservativ
offene Küche, Kochinsel: Ja Küchenzeile ohne Oberschränke + Kochinsel
Anzahl Essplätze: 6 (erweiterbar auf 8)
Kamin: ja
Musik/Stereowand
Balkon, Dachterrasse: ggf.. Dachterrasse auf der Garage
Garage, Carport: Garage
Nutzgarten, Treibhaus: Nein
weitere Wünsche/Besonderheiten/Tagesablauf, gern auch Begründungen, warum dieses oder das nicht sein soll: offene Wohnküche mit Speisekammer und "Glasfront" zum Garten / Podesttreppe / Ankleide im Schlafzimmer / 2 annähernd gleich große Zimmer im OG / Büro soll später evtl als Schlafzimmer nutzbar sein, daher auch das Duschbad im EG
Hausentwurf
Von wem stammt die Planung:
-Architekt + unsere Vorstellungen / Anpassungen
Was gefällt besonders? Warum? - Der offene Wohnbereich inkl. Zugang zu der im Süden liegenden Terrasse - gerade die Anordnung / Aufteilung der Küche plus Zugang zur Speisekammer. Das Kellergeschoss würden wir so 1 zu 1 übernehmen. Ggfs noch einen direkten Zugang von außen über eine Treppe ergänzen. Die Größe der Kinderzimmer im OG gefällt uns ebenfalls. Hier sollen die Kinderzimmer in den Süden kommen.
Was gefällt nicht? Warum? - Eingangsbereich im EG - wir hätten gerne eine Nische etc. für Schuhe, Jacke etc, damit man nicht direkt darüber "stolpert" bzw. alles gleich sichtbar ist. Ggfs. fänden wir eine "Schmutzschleuse" noch sehr praktisch.
Am OG würden wir aus heutiger Sicht am meisten ändern wollen: Der Zugang zum Schlafzimmer über den "Ankleidebereich" gefällt uns leider nicht. Die Dachterrasse mit Blick ins Bad ist unserer Meinung nach nur suboptimal gelöst. Wobei die Dachterrasse kein Muss ist und wenn dann auch nicht vorne über den Eingang gehen wird.
Preisschätzung lt Architekt/Planer: 500.000€
favorisierte Heiztechnik: Wärmepumpe
Wenn Ihr verzichten müsst, auf welche Details/Ausbauten
-könnt Ihr verzichten: Dachterrasse
-könnt Ihr nicht verzichten: große Garage, Duschbad im EG, Gästezimmer / Büro im EG
Wie bereits geschrieben geht der Entwurf schon genau in die Richtung, die uns gefällt. Aktuell überlegen wir, ob wir das Haus nochmals drehen sollen und den Eingang ggf.. zwischen Garage und Haus legen. Hierdurch würde sich jedoch alles komplett verschieben.
Wir sind für alle Vorschläge dankbar und freuen uns auf alle Anmerkungen.
Ich mag den Grundriss im EG sehr. Würde ich noch mal bauen, wäre es sehr ähnlich.
Der Wunsch nach der Nische für Schuhe wird schwierig. Ich sehe keinen Platz, der irgendwie verschwendet wäre. Wenn Ihr nicht auf die Speis verzichtet, müsste man dafür m.E. ein Vorhäusschen anbauen. Wäre es das Wert?
Das OG ist jetzt nicht gerade geschmeidig. Wie genau soll das mit der Ankleide gelöst sein? Soll sie neben dem Schlafzimmer Separat sein? Oder nur über das Schlafzimmer erreichbar? Letzteres ist hier ein viel diskutierter Nachteil, wenn 1 Person schon aufsteht und die andere noch schlafen möchte.
Sehe spontan keinen Vorteil, den Eingang zu versetzen. Was versprecht Ihr Euch davon?
Der Wunsch nach der Nische für Schuhe wird schwierig. Ich sehe keinen Platz, der irgendwie verschwendet wäre. Wenn Ihr nicht auf die Speis verzichtet, müsste man dafür m.E. ein Vorhäusschen anbauen. Wäre es das Wert?
Das OG ist jetzt nicht gerade geschmeidig. Wie genau soll das mit der Ankleide gelöst sein? Soll sie neben dem Schlafzimmer Separat sein? Oder nur über das Schlafzimmer erreichbar? Letzteres ist hier ein viel diskutierter Nachteil, wenn 1 Person schon aufsteht und die andere noch schlafen möchte.
Sehe spontan keinen Vorteil, den Eingang zu versetzen. Was versprecht Ihr Euch davon?
TraumvHaus schrieb:
jedoch einige Details sind noch nicht so wie wir es uns wünschenEine Treppenseite mit Wand über dem Antritt, die andere Seite mit Galerie: das sieht schief aus.TraumvHaus schrieb:
Grundstück fällt über die Länge von 30m ca 2-2,5m abAlso mehr als einen halben Meter über die Garagenlänge, und auch die Terrasse würde aufgebockt.https://www.instagram.com/11antgmxde/
https://www.linkedin.com/company/bauen-jetzt/
T
TraumvHaus24.06.19 20:34Hallo,
Vielen Dank für die Anmerkungen.
Ggfs. würde uns einen Vorsprung für die Küche vorstellen, wenn wir das Haus drehen...
Das Problem mit den unterschiedlichen Zeiten haben wir glücklicherweise nicht und selbst wenn würde es uns nicht allzu sehr stören.
Insgesamt ist das OG ok, aber finde nicht besonders „toll“.
Haben Sie noch ein paar gute Ideen / Vorschläge?
Vielen Dank für die Anmerkungen.
kaho674 schrieb:deshalb die Überlegung das Haus zu drehen, um die Nische unterzubringen. Speise weglassen ist keine Option und ein Vorhäuschen passt glaube ich nicht in das ganze Bild vom Haus, da es ja sonst sehr geradlinig ist.
Der Wunsch nach der Nische für Schuhe wird schwierig. Ich sehe keinen Platz, der irgendwie verschwendet wäre. Wenn Ihr nicht auf die Speis verzichtet, müsste man dafür m.E. ein Vorhäusschen anbauen. Wäre es das Wert?
Ggfs. würde uns einen Vorsprung für die Küche vorstellen, wenn wir das Haus drehen...
kaho674 schrieb:Wir möchten nicht direkt in die Ankleide kommen, wenn man ins Schlafzimmer kommt - so kann man evtl auch mal etwas getragenes „liegen lassen“.
Das OG ist jetzt nicht gerade geschmeidig. Wie genau soll das mit der Ankleide gelöst sein? Soll sie neben dem Schlafzimmer Separat sein? Oder nur über das Schlafzimmer erreichbar? Letzteres ist hier ein viel diskutierter Nachteil, wenn 1 Person schon aufsteht und die andere noch schlafen möchte.
Sehe spontan keinen Vorteil, den Eingang zu versetzen. Was versprecht Ihr Euch davon?
Das Problem mit den unterschiedlichen Zeiten haben wir glücklicherweise nicht und selbst wenn würde es uns nicht allzu sehr stören.
Insgesamt ist das OG ok, aber finde nicht besonders „toll“.
Haben Sie noch ein paar gute Ideen / Vorschläge?
T
TraumvHaus24.06.19 20:3811ant schrieb:
Eine Treppenseite mit Wand über dem Antritt, die andere Seite mit Galerie: das sieht schief aus.Wie meinen Sie das bzw was sollten wir verbessern? An beide Seiten eine Wand? Ich glaube dann wirkt der Eingangsbereich sehr „wuchtig“ oder?
11ant schrieb:
Also mehr als einen halben Meter über die Garagenlänge, und auch die Terrasse würde aufgebockt.Ja die Terrasse würde vermutlich erhöht liegen, evtl. würden wir diese mit einer Bruchsteinmauer „absichern“. Ändern können wir die Begebenheiten leider nicht.TraumvHaus schrieb:
Wie meinen Sie das bzw was sollten wir verbessern?TraumvHaus schrieb:
Aber wenn beide Seiten eingerahmt werden sollten, müsste die Treppe wohl verschoben werden.Ich wollte das nur angemerkt haben, weil es nach meiner Erfahrung nicht jeder Bauherr selbst "sieht". Man muß aber nicht alles (objektiv) "verbessern" wollen, was ich (subjektiv) "anders" planen würde. Anderen darf Anderes gefallen, ich soll das Haus ja nicht mieten wollen.TraumvHaus schrieb:
Ja die Terrasse würde vermutlich erhöht liegen, evtl. würden wir diese mit einer Bruchsteinmauer „absichern“Auch hier: nur ein Hinweis - da nicht Jeder diese Konsequenz aus der Planung herausliest. In dieser Höhe ist eine Geländemodellierung nicht problematisch.https://www.instagram.com/11antgmxde/
https://www.linkedin.com/company/bauen-jetzt/
Ähnliche Themen