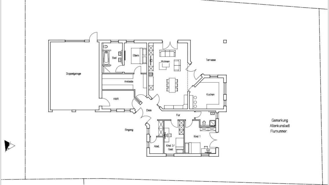
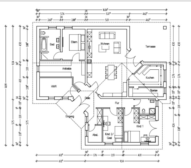
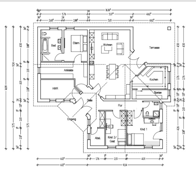
ᐅ Grundriss Bungalow 150qm geschlossene Küche, überdachte Terrasse
Erstellt am: 30.06.19 07:05
I
illvisionzI
illvisionz30.06.19 07:05Hallo,
wir sind gerade noch in der Planungsphase und kommen gerade nicht so richtig weiter. Es ist zwar zum größten Teil schon echt gut geworden aber eben noch nicht genau das was wir uns vor stellen.
Geplant ist ein Bungalow mit ungefähr 150qm. Ein getrennter Eltern / Kind Bereich war uns wichtig. Die Küche sollte geschlossen sein und es sollte eine überdachte Terrasse geben.
Bebauungsplan/Einschränkungen
899qm
leichter Hang
Bungalow
Anforderungen der Bauherren
Eher mediterran
Kein Keller, Bungalow
3 Personen, 36 / 29 / 3
150qm
Kein Büro
Gästezimmer/Bügelzimmer
konservativ oder moderne Bauweise: Wir kombinieren gerne alt und neu
offene Küche, Kochinsel: geschlossen
Anzahl Essplätze: Küche 3, Essbereich gerne 8-10
Kamin: Ja
Balkon
Garage: Doppelgarage mit Platz
Hausentwurf
Von wem stammt die Planung: Grundplan von uns der durch einen Planer umgesetzt wurde
Was gefällt besonders? Warum?
Was gefällt nicht? Warum? Mit dem Kinderzimmer sind wir nicht ganz zufrieden da das Bett an der falschen Stelle steht und wir denken das später schon ein 1,40x2,00 Meter Bett rein passen sollte.
Größtes Problem ist im Moment der Küche/Wohnzimmer/Essbereich, da kommen wir mit der Position des Esstisches nicht klar. Irgendwie Stört der Tisch egal wie ich ihn drehe. Tausche ich jedoch Wohn und Esszimmer habe ich Probleme mit der Couch und Wohnwand.
Preisschätzung lt Architekt/Planer: 300.000
Persönliches Preislimit fürs Haus, inkl Ausstattung:350.000
favorisierte Heiztechnik: Gasheizung mit Collectoren auf dem Dach für Warmwasser
Grundstück Nummer 18 ist unseres.
Gerne könnt ihr uns auch auf andere Fehler etc aufmerksam machen die wir eventuell gemacht/eingebaut haben. Gruß Alex








wir sind gerade noch in der Planungsphase und kommen gerade nicht so richtig weiter. Es ist zwar zum größten Teil schon echt gut geworden aber eben noch nicht genau das was wir uns vor stellen.
Geplant ist ein Bungalow mit ungefähr 150qm. Ein getrennter Eltern / Kind Bereich war uns wichtig. Die Küche sollte geschlossen sein und es sollte eine überdachte Terrasse geben.
Bebauungsplan/Einschränkungen
899qm
leichter Hang
Bungalow
Anforderungen der Bauherren
Eher mediterran
Kein Keller, Bungalow
3 Personen, 36 / 29 / 3
150qm
Kein Büro
Gästezimmer/Bügelzimmer
konservativ oder moderne Bauweise: Wir kombinieren gerne alt und neu
offene Küche, Kochinsel: geschlossen
Anzahl Essplätze: Küche 3, Essbereich gerne 8-10
Kamin: Ja
Balkon
Garage: Doppelgarage mit Platz
Hausentwurf
Von wem stammt die Planung: Grundplan von uns der durch einen Planer umgesetzt wurde
Was gefällt besonders? Warum?
Was gefällt nicht? Warum? Mit dem Kinderzimmer sind wir nicht ganz zufrieden da das Bett an der falschen Stelle steht und wir denken das später schon ein 1,40x2,00 Meter Bett rein passen sollte.
Größtes Problem ist im Moment der Küche/Wohnzimmer/Essbereich, da kommen wir mit der Position des Esstisches nicht klar. Irgendwie Stört der Tisch egal wie ich ihn drehe. Tausche ich jedoch Wohn und Esszimmer habe ich Probleme mit der Couch und Wohnwand.
Preisschätzung lt Architekt/Planer: 300.000
Persönliches Preislimit fürs Haus, inkl Ausstattung:350.000
favorisierte Heiztechnik: Gasheizung mit Collectoren auf dem Dach für Warmwasser
Grundstück Nummer 18 ist unseres.
Gerne könnt ihr uns auch auf andere Fehler etc aufmerksam machen die wir eventuell gemacht/eingebaut haben. Gruß Alex
Zeichnet einmal eure Möbel im Maßstab ein
Z.b Schlafzimmer 2,88 m im Rohbaumaß
2,88 abzüglich Sockelleiste, Bettgestell (2,m + x für Kopfteil und Rahmen) bleiben ca. 60 bis 70 cm für TV und durchlaufen. Ist wie im Wohnwagen
Speisekammer sehr schmal könnte schwierig werden mit einem Gefrierschrank
Kinderzimmer würde ich den Wandstummel bei den Schränken entfernen
Hauswirtschaftsraum ist voll mit HT und WA/Trockner wird übereinander stehen. Zugang Garage falls geplant streichen für etwas mehr Stellfläche
Z.b Schlafzimmer 2,88 m im Rohbaumaß
2,88 abzüglich Sockelleiste, Bettgestell (2,m + x für Kopfteil und Rahmen) bleiben ca. 60 bis 70 cm für TV und durchlaufen. Ist wie im Wohnwagen
Speisekammer sehr schmal könnte schwierig werden mit einem Gefrierschrank
Kinderzimmer würde ich den Wandstummel bei den Schränken entfernen
Hauswirtschaftsraum ist voll mit HT und WA/Trockner wird übereinander stehen. Zugang Garage falls geplant streichen für etwas mehr Stellfläche
I
illvisionz30.06.19 08:18haydee schrieb:
Zeichnet einmal eure Möbel im Maßstab ein
Z.b Schlafzimmer 2,88 m im Rohbaumaß
2,88 abzüglich Sockelleiste, Bettgestell (2,m + x für Kopfteil und Rahmen) bleiben ca. 60 bis 70 cm für TV und durchlaufen. Ist wie im Wohnwagen
Speisekammer sehr schmal könnte schwierig werden mit einem Gefrierschrank
Kinderzimmer würde ich den Wandstummel bei den Schränken entfernen
Hauswirtschaftsraum ist voll mit HT und WA/Trockner wird übereinander stehen. Zugang Garage falls geplant streichen für etwas mehr StellflächeJa im Schlafzimmer Eltern kommen noch ein paar cm dazu Speisekammer entfällt.
Kinderzimmer wird der Wandstummel noch entfernt.
Beim Hauswirtschaftsraum sind wir noch im Konflikt, der eine sagt es reicht so der andere es reicht nicht.
H
hampshire30.06.19 08:50Das Haus wirkt wie eine geschrumpfte Version eines großzügigeren Bungalows. Die Proportionen der meisten Räume sind eigenartig schmal oder kurz. Die Ankleide ist beispielsweise viel zu eng - konsequenterweise kann man da einen begehbaren Schrank draus machen und Platz für den Schlafbereich finden.
Ein Raum mit diagonalem Laufweg braucht Platz damit nichts im Weg steht. Es ist nicht die Positionierung des Eßtisches, sondern die Umsetzung eines Prinzips auf zu kleinem Raum.
Ein Haus in drei Wohntrakte zu gliedern ist eine gute Idee, funktioniert aber in der kompakten Größe nicht wirklich. 2 Trakte in L-Form gingen besser, wäre aber ein ganz anderes Haus.
Die grösste Entfernung, die man im Haus zurücklegen kann ist die von Eltern zu Kind. Das Leben im Abseits taugt erst im Teenageralter.
Ich verstehe den Charme der Grundidee. Diese braucht aber mehr Grundfläche.
Ein Raum mit diagonalem Laufweg braucht Platz damit nichts im Weg steht. Es ist nicht die Positionierung des Eßtisches, sondern die Umsetzung eines Prinzips auf zu kleinem Raum.
Ein Haus in drei Wohntrakte zu gliedern ist eine gute Idee, funktioniert aber in der kompakten Größe nicht wirklich. 2 Trakte in L-Form gingen besser, wäre aber ein ganz anderes Haus.
Die grösste Entfernung, die man im Haus zurücklegen kann ist die von Eltern zu Kind. Das Leben im Abseits taugt erst im Teenageralter.
Ich verstehe den Charme der Grundidee. Diese braucht aber mehr Grundfläche.
Ich finde, das Bett im Kinderzimmer steht schon ganz gut, Problem sind eher die Schränke. Ich hab mal die Türen von WC und Kinderzimmer versetzt, das find ich schon gefälliger. Ob das Kind sich über die Doppeltür nach draußen freut, wage ich mal zu bezweifeln. Eine einfache tuts auch. Was aber wirklich stört, ist das Gegenlicht vom Fenster gegen den Bildschrim. Also einmal kräftig umgeräumt und eine Tür festverglast. Aus dem raumhohen Regal wird ein Sideboard:

Letztendlich sind es nicht viel mehr als 12 / 13m² Nutzfläche im Kinderzimmer. Man darf keine Wunder erwarten. Eine kleine Wohnung wird das m.E. nie.
Den Esstisch finde ich jetzt nicht dramatisch. Was viel schlimmer ist, sind die fehlenden Fenster im WZ. Was soll das werden? Ne Höhle? Also ich würde gleich die ganze Ecke verglasen.
Die Ankleide ist auch nicht meins. Jeden Früh in diesen Tunnel zwängen- das wär mir nichts. Na vielleicht ist ja nur 1 Schrank-Seite raumhoch, dann geht es noch.
Ich mag es ja auch gar nicht, wenn das Bad direkt ans Schlafzimmer angeschlossen ist. Dann hört der Partner jeden Pups i.w.S.d.W.
Über die Dachform könnte man auch noch mal nachdenken. Satteldach will irgendwie nicht so richtig wirken. Ansonsten find ich die Sache aber ganz nett.
Letztendlich sind es nicht viel mehr als 12 / 13m² Nutzfläche im Kinderzimmer. Man darf keine Wunder erwarten. Eine kleine Wohnung wird das m.E. nie.
Den Esstisch finde ich jetzt nicht dramatisch. Was viel schlimmer ist, sind die fehlenden Fenster im WZ. Was soll das werden? Ne Höhle? Also ich würde gleich die ganze Ecke verglasen.
Die Ankleide ist auch nicht meins. Jeden Früh in diesen Tunnel zwängen- das wär mir nichts. Na vielleicht ist ja nur 1 Schrank-Seite raumhoch, dann geht es noch.
Ich mag es ja auch gar nicht, wenn das Bad direkt ans Schlafzimmer angeschlossen ist. Dann hört der Partner jeden Pups i.w.S.d.W.
Über die Dachform könnte man auch noch mal nachdenken. Satteldach will irgendwie nicht so richtig wirken. Ansonsten find ich die Sache aber ganz nett.
illvisionz schrieb:
Ja im Schlafzimmer Eltern kommen noch ein paar cm dazu
Speisekammer entfällt.
Kinderzimmer wird der Wandstummel noch entfernt.
Beim Hauswirtschaftsraum sind wir noch im Konflikt, der eine sagt es reicht so der andere es reicht nicht.Wo kommen die dazu?
Ich würde mir den extra Kindertrakt überlegen. Er erzeugt ein Korsett das den Rest klein wirken lässt.
Jetzt ist er unpraktisch und wer weiß wie lange die Kinder da sind. 18 Jahre und weg sind sie.
Schaut euch mal Bungalows an mit Treppe die unter dem Dach noch ein Studio haben. Da lässt sich dann was machen wenn die Kinder größer sind.
Und Stauraum ist auch vorhanden bequem zugänglich
HT was muss rein
WA/Trockner, Wäscheständer, Schmutzwäsche, Handwaschbecken,
Hausanschlüsse, Sicherung, Heiz- und Lüftungstechnik
Werkzeug, Getränkekisten, Sportausrüstung
Ja es geht mit wenig Platz. Dann stapelt sich die Schmutzwäsche im Bad, Bügelwäsche in der Ankleide, Fleckenwäsche im Waschbecken Bad, Wäscheständer im Wohnzimmer
Werkzeug, Koffer etc in der Garage
Ähnliche Themen