Hallo zusammen,
wir sind ein junges Ehepaar (26 und 28) und planen aktuell den Bau unseres Einfamilienhauses. Zwei Kinder sind für die Zukunft geplant. Das passende Grundstück haben wir bereits erworben – es liegt am Feldrand in einem kleinen Dorf, also in absolut ruhiger Lage.
Aktuell stehen wir kurz davor, uns an ein Bauunternehmen zu binden, das sowohl den Bauantrag als auch den Großteil des Baus als Generalunternehmer übernehmen soll. Einige Gewerke möchten wir jedoch in Eigenleistung erbringen.
Die Grundrissplanung haben wir gemeinsam mit einer Freundin entworfen, die im Master Architektur studiert. Derzeit handelt es sich noch um Entwurfszeichnungen, die wir nun in genehmigungsfähige Pläne überführen möchten. Dabei sind wir allerdings an einem Punkt angekommen, an dem wir uns "festgefahren" fühlen – wir sehen sprichwörtlich den Wald vor lauter Bäumen nicht mehr. Der Grundriss gefällt uns leider nicht zu 100 % bzw. es fehlen noch Räume und wir wissen nicht weiter.
Daher freuen wir uns über Input, Ideen oder Verbesserungsvorschläge – vorher aber gerne erstmal ein Überblick nach dem Fragenkatalog:
Grundstück & Bebauung
Baustil & Konstruktion
Was uns am Entwurf gefällt:
Was uns aktuell noch stört:
Wir versuchen, ein modernes, durchdachtes und für unsere Bedürfnisse passendes Zuhause zu schaffen – mit einem realistischen Budget und Eigenleistung, wo es sinnvoll ist. Uns ist wichtig, dass das Haus zwar besonders, aber nicht übertrieben oder "überdimensioniert" wird.
Wir freuen uns sehr über jede Rückmeldung – egal ob zu Raumaufteilung, Technik, Fassadengestaltung, Dachterrasse oder Details.
Vielen Dank im Voraus!



wir sind ein junges Ehepaar (26 und 28) und planen aktuell den Bau unseres Einfamilienhauses. Zwei Kinder sind für die Zukunft geplant. Das passende Grundstück haben wir bereits erworben – es liegt am Feldrand in einem kleinen Dorf, also in absolut ruhiger Lage.
Aktuell stehen wir kurz davor, uns an ein Bauunternehmen zu binden, das sowohl den Bauantrag als auch den Großteil des Baus als Generalunternehmer übernehmen soll. Einige Gewerke möchten wir jedoch in Eigenleistung erbringen.
Die Grundrissplanung haben wir gemeinsam mit einer Freundin entworfen, die im Master Architektur studiert. Derzeit handelt es sich noch um Entwurfszeichnungen, die wir nun in genehmigungsfähige Pläne überführen möchten. Dabei sind wir allerdings an einem Punkt angekommen, an dem wir uns "festgefahren" fühlen – wir sehen sprichwörtlich den Wald vor lauter Bäumen nicht mehr. Der Grundriss gefällt uns leider nicht zu 100 % bzw. es fehlen noch Räume und wir wissen nicht weiter.
Daher freuen wir uns über Input, Ideen oder Verbesserungsvorschläge – vorher aber gerne erstmal ein Überblick nach dem Fragenkatalog:
Grundstück & Bebauung
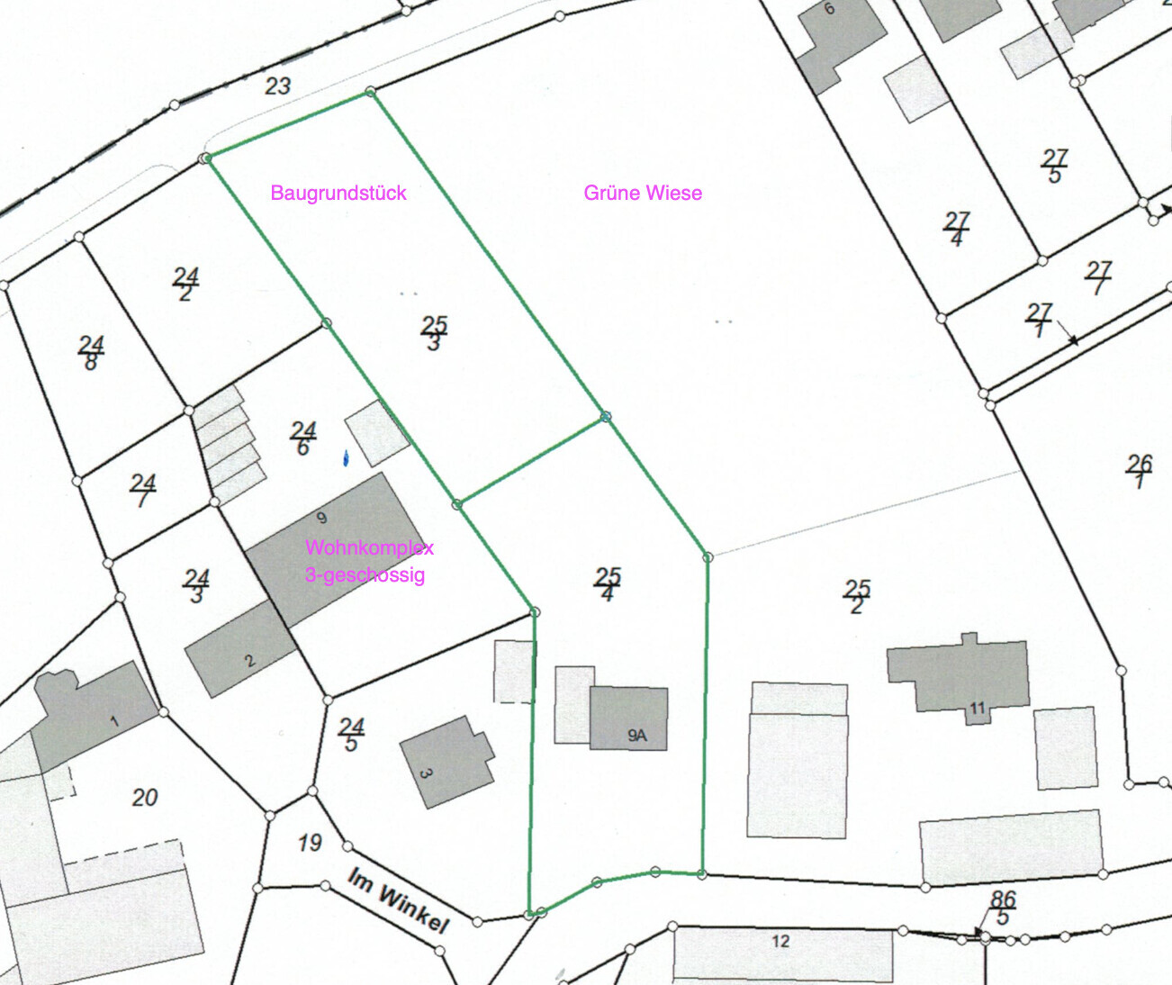
- Größe: ca. 1.600 m²
- Maße: ca. 26 m Breite × 60 m Tiefe
- Topografie: Ebenes Grundstück, keine Hanglage
- Lage: Feldrandlage im kleinen Dorf
- Nachbarbebauung:
- Nordwestlich: Wohnkomplex mit zwei Vollgeschossen + ausgebautem Dachgeschoss
- Nordöstlich: große, offene Wiese
- Bebauungsplan: Nicht vorhanden
- Vorgaben aus Bauvoranfrage:
- Keine expliziten Einschränkungen
- Empfehlung, im vorderen Bereich (zur Straße hin) zu bauen
Baustil & Konstruktion
- Zwei Vollgeschosse
- Spitzboden als Lagerfläche
- Satteldach
- Holzrahmenbauweise
- Fassade: Kombination aus Holzverkleidung und Klinker
- Stil: Modern, „clean“, klare Linien – lieber schlicht als verspielt
- Keller: Nicht vorgesehen
- Küche:
- Offen, jedoch durch Glasschiebetür abtrennbar
- Speisekammer direkt an Küche, möglichst integriert in die Küchenschrankfront
- Ess-/Wohnbereich:
- Offen und großzügig
- Esstisch für 6 Personen, erweiterbar auf 10–12 Personen
- Elternbereich:
- Schlafzimmer mit direktem Zugang zu Ankleide und eigenem Bad
- Kinderzimmer:
- Zwei gleichwertige Kinderzimmer
- Bäder:
- Kinderbad im OG
- Gäste-WC im EG, idealerweise mit Dusche
- Büro/Gästezimmer (derzeit im Entwurf noch nicht enthalten)
- Hauswirtschaftsraum:
- Zum Waschen, Trocknen und Aufhängen der Wäsche
- Technikraum:
- Unterbringung der Haustechnik, ggf. in Garage integriert
- Garage:
- Einfach gehalten
- Technikraum + separates WC als „Außen-WC“ integrierbar (als Idee, im Plan noch nicht abgebildet)
- Dachterrasse über der Garage gewünscht (wegen freier Aussicht auf den Sonnenuntergang und auf das Feld)
- Wärmepumpe
- Photovoltaikanlage
- Lüftungsanlage
- Smart Home
- KfW-40-Standard
Was uns am Entwurf gefällt:
- Gute Ausrichtung der Räume nach Himmelsrichtungen
- Schlichte, moderne Gestaltung ohne Erker oder Vor-/Rücksprünge
- Längsseite des Hauses Richtung Garten = mehr Offenheit nach Süden
Was uns aktuell noch stört:
- Das Büro/Gästezimmer fehlt komplett
- Der Wäschebereich ist noch nicht ideal geplant – wo genau trocknen wir z. B. im Winter?
- Eingangsbereich überdacht – aber: Wird es dort zu dunkel?
- Kinderbad vs. Büro/Wäscheraum: Wir überlegen, auf das separate Kinderbad zu verzichten, um stattdessen das Büro oder einen Wäsche-/Bügelraum dort unterzubringen. Unten könnte man das Gäste-WC etwas größer planen und dort zusätzlich eine Dusche integrieren – falls es morgens mal eng wird oder Gäste im EG duschen möchten.
- Relativ einfach gehaltene Garage, lediglich der Technikbereich soll gedämmt und mit Bodenplatte versehen sein
- Rest der Garage könnte gepflastert und ungedämmt bleiben
- Auf der Garage: Dachterrasse mit Blick über die Felder – unser Herzenswunsch
- Gesamtkosten Haus inkl. Garage: 550.000–600.000 € (ohne Außenanlage)
- Eigenleistungen:
- Erdarbeiten
- Dachdeckung
- Bodenbeläge
- Elektrik
- Malerarbeiten
- Außenanlage: Aktuell ca. 15.000 € für grundlegende Pflasterarbeiten eingeplant
- Gesamtes Budget inkl. Ausstattung: 650.000–700.000 €
- Wenn nötig, könnten wir ggf. auf das separate Kinderbad verzichten – auch wenn das natürlich ein Komfortfaktor wäre.
- Stattdessen ein größeres Gäste-WC mit Dusche im EG, und oben der Raum dann als Wäscheraum.
- Großzügige, gut ausgestattete Küche – wir kochen leidenschaftlich gern.
- Die Dachterrasse auf der Garage – der Ausblick ist wirklich einzigartig und uns sehr wichtig.
- Aktuell sind wir bestimmt schon beim vierten Entwurf
- Ursprünglich war das Haus größer und mit Galerie sowie offener Treppe – aber das war nicht finanzierbar
- Auch die Garage war anfangs direkt ans Haus angeschlossen – inzwischen ist sie abgesetzt mit überdachtem Zugang
- Habt ihr Ideen, wie wir das fehlende Büro sinnvoll integrieren können, ohne die Großzügigkeit des Entwurfs zu verlieren?
- Könnte der Eingangsbereich zu dunkel werden durch die überdachte Lösung?
- Was haltet ihr von der Entscheidung, die Traufseite zur Feldseite zu orientieren statt dem Giebel?
- Gibt es sinnvolle Alternativen, wie wir den Wasch-/Trockenbereich besser unterbringen können?
- Seht ihr Möglichkeiten, wie wir das Raumprogramm besser auf unsere Bedürfnisse zuschneiden können, ohne das Budget zu sprengen?
Wir versuchen, ein modernes, durchdachtes und für unsere Bedürfnisse passendes Zuhause zu schaffen – mit einem realistischen Budget und Eigenleistung, wo es sinnvoll ist. Uns ist wichtig, dass das Haus zwar besonders, aber nicht übertrieben oder "überdimensioniert" wird.
Wir freuen uns sehr über jede Rückmeldung – egal ob zu Raumaufteilung, Technik, Fassadengestaltung, Dachterrasse oder Details.
Vielen Dank im Voraus!
Unser Architekt, Vater von 3 Kindern, zum Thema Kinderbad. „Putzen sie so gerne, dass sie dafür Geld ausgeben?“ Erst sind sie zu klein und das Bad staubt jahrelang vor sich hin. Dann benutzen sie es vielleicht 3,4 Jahre und dann ziehen sie aus.
Ist was dran. Wir würden bisher 10 Jahre putzen für nichts. Eine Waschmaschine auf der Schlaf-Etage ist schön und goldwert. Windel läuft Nachts aus, Durchfall oder Erbrechen alles kurz über den Flur. Selbst die normale Wäsche fällt oben an und kann mit kurzen Wegen gewaschen werden.
Ist was dran. Wir würden bisher 10 Jahre putzen für nichts. Eine Waschmaschine auf der Schlaf-Etage ist schön und goldwert. Windel läuft Nachts aus, Durchfall oder Erbrechen alles kurz über den Flur. Selbst die normale Wäsche fällt oben an und kann mit kurzen Wegen gewaschen werden.
P
Papierturm08.10.25 21:56Erst einmal zum Grundriss, unsortierte Gedanken.
Erdgeschoss:
Man kommt rein, und muss aufpassen die Haustür nicht gegen die Wand zu schlagen. Das wird im Alltag oft ein Problem.
Entweder da wird kein Lichtelement neben der Tür sein, dann wird das ein echt dunkler Flur.
Oder es gibt keinen Platz für einen gut erreichbaren Lichtschalter. Der müsste dann hinter die Tür.
Tür einfach umdrehen ist auch schlecht, weil man dann die Tür in die Garderobe knallt.
Die Speisekammer hat zwei Zugänge. Bedeutet, man baut hier für sehr teures Geld reine Verkehrsfläche. Etwa 1/3 der Fläche der Speisekammer ist nicht nutzbar, sondern nur "Schlauch".
Der Hauswirtschaftsraum ist sehr groß mit viel leerer Fläche in der Mitte. Das ist mehr, als man brauchen wird.
Wie wird der Platz unter der Treppe genutzt?
Ich würde:
- Den Technikraum kleiner machen, um den Flur etwas lichter gestalten zu können.
- Lagerraum unter die Treppe.
- die ganze Anordnung aus WC, Speisekammer und Küche überdenken. Da wird echt viel Platz für eine Planung investiert, die bei der Speisekammer hauptsächlich zu Verkehrsfläche wird.
Obergeschoss:
- Zugang zur Dachgaragenterrasse über Bad ist ungünstig.
- im Alltag: man steht auf, geht ins Bad, geht zurück am Bett vorbei in den Schrankbereich, geht wieder ins Bad... das wird die meisten noch schlafenden Partner wecken.
- das Schlafzimmer hat sehr viel "Tanzfläche" im Garderobenbereich.
- eine ca. 2,3m tiefe Dusche muss man auch mögen.
...
Um hier mal abzubrechen:
Ich halte das Obergeschoss so für eher ungünstig geplant, sowohl von den Laufwegen als auch den Nutzflächen und der Wirkung im Alltag. Das würde ich komplett überarbeiten. Zugang zur Dachterrasse über Diele, davon ausgehend die Räume planen und auch sinnvoll verkleinern. 23m² Schlafzimmer und 15m² Elternbadezimmer sind ein solcher Luxus, dass man allein da locker vernünftige Wegeflächen und mit ein paar weiteren Tweaks sicher noch ein kleines Büro/Gästeraum abzwacken könnte.
Neutral gefragt: Gibt es Gründe für die Holzrahmenbauweise?
Und für die Fassadenkombination?
Gäste-WC: Unser ist nur marginal größer, und hat eine eingeplant. Ist eine Frage auch von Raumproportionen und Türposition.
Büro: Entweder Räume werden kleiner, oder umgewidmet/umgeformt (Raumänderungen Speisekammer... braucht aber größere Umplanungen), oder das Haus wird noch erheblich größer. Ich würde wie oben geschrieben schauen, das Büro im OG unterzubringen.
Smarthome zudem Kostentreiber.
Wäschebereich: Im Hauswirtschaftsraum. Den kann man kleiner machen und hat immer noch einiges an Platz dort.
Eingangsbereich wird ohnehin dunkel, s.o., liegt an der Flurgestaltung.
Kinderbad: Ich finde eine zweite Dusche sinnvoll. Ob das Kinderbad sinnvoll ist, weiß ich nicht.
Grundlegend, auch um auf die Fragen einzugehen:
Rein im Sinne der Optimierung im Hinblick auf den Finanzrahmen und den Alltag sehe ich diverse Optimierungsmöglichkeiten.
Ich würde:
- Bad im EG vergrößern, samt Dusche.
- Kinderbad streichen.
- Raumprogramm im OG überarbeiten, siehe oben. In dem Zuge auch das Elternbad für die Kinder mit nutzbar machen.
- Zugang zur Dachterrasse für alle ermöglichen.
- Speisekammer, wenn unbedingt notwendig, komplett versteckt und viereckig (die Kante ist nur unnötige Wegefläche.
- dabei schauen, ob man irgendwie den Flur soweit verbreitert bekommt, dass ein Lichtelement "oben" neben der Tür möglich wird und eine vernünftige Schalterpositionierung.
- Kammer unter die Treppe integrieren.
Erdgeschoss:
Man kommt rein, und muss aufpassen die Haustür nicht gegen die Wand zu schlagen. Das wird im Alltag oft ein Problem.
Entweder da wird kein Lichtelement neben der Tür sein, dann wird das ein echt dunkler Flur.
Oder es gibt keinen Platz für einen gut erreichbaren Lichtschalter. Der müsste dann hinter die Tür.
Tür einfach umdrehen ist auch schlecht, weil man dann die Tür in die Garderobe knallt.
Die Speisekammer hat zwei Zugänge. Bedeutet, man baut hier für sehr teures Geld reine Verkehrsfläche. Etwa 1/3 der Fläche der Speisekammer ist nicht nutzbar, sondern nur "Schlauch".
Der Hauswirtschaftsraum ist sehr groß mit viel leerer Fläche in der Mitte. Das ist mehr, als man brauchen wird.
Wie wird der Platz unter der Treppe genutzt?
Ich würde:
- Den Technikraum kleiner machen, um den Flur etwas lichter gestalten zu können.
- Lagerraum unter die Treppe.
- die ganze Anordnung aus WC, Speisekammer und Küche überdenken. Da wird echt viel Platz für eine Planung investiert, die bei der Speisekammer hauptsächlich zu Verkehrsfläche wird.
Obergeschoss:
- Zugang zur Dachgaragenterrasse über Bad ist ungünstig.
- im Alltag: man steht auf, geht ins Bad, geht zurück am Bett vorbei in den Schrankbereich, geht wieder ins Bad... das wird die meisten noch schlafenden Partner wecken.
- das Schlafzimmer hat sehr viel "Tanzfläche" im Garderobenbereich.
- eine ca. 2,3m tiefe Dusche muss man auch mögen.
...
Um hier mal abzubrechen:
Ich halte das Obergeschoss so für eher ungünstig geplant, sowohl von den Laufwegen als auch den Nutzflächen und der Wirkung im Alltag. Das würde ich komplett überarbeiten. Zugang zur Dachterrasse über Diele, davon ausgehend die Räume planen und auch sinnvoll verkleinern. 23m² Schlafzimmer und 15m² Elternbadezimmer sind ein solcher Luxus, dass man allein da locker vernünftige Wegeflächen und mit ein paar weiteren Tweaks sicher noch ein kleines Büro/Gästeraum abzwacken könnte.
leah1003 schrieb:
- Holzrahmenbauweise
- Fassade: Kombination aus Holzverkleidung und Klinker
Neutral gefragt: Gibt es Gründe für die Holzrahmenbauweise?
Und für die Fassadenkombination?
leah1003 schrieb:
- Gäste-WC im EG, idealerweise mit Dusche
- Büro/Gästezimmer (derzeit im Entwurf noch nicht enthalten)
Gäste-WC: Unser ist nur marginal größer, und hat eine eingeplant. Ist eine Frage auch von Raumproportionen und Türposition.
Büro: Entweder Räume werden kleiner, oder umgewidmet/umgeformt (Raumänderungen Speisekammer... braucht aber größere Umplanungen), oder das Haus wird noch erheblich größer. Ich würde wie oben geschrieben schauen, das Büro im OG unterzubringen.
leah1003 schrieb:Wärmepumpe: Luft-Wasser-Wärmepumpe? Luft-Luftwärmepumpe? Sole?
Haustechnik (geplant)
- Wärmepumpe
- Photovoltaikanlage
- Lüftungsanlage
- Smart Home
- KfW-40-Standard
Smarthome zudem Kostentreiber.
leah1003 schrieb:
- Der Wäschebereich ist noch nicht ideal geplant – wo genau trocknen wir z. B. im Winter?
- Eingangsbereich überdacht – aber: Wird es dort zu dunkel?
- Kinderbad vs. Büro/Wäscheraum:
Wäschebereich: Im Hauswirtschaftsraum. Den kann man kleiner machen und hat immer noch einiges an Platz dort.
Eingangsbereich wird ohnehin dunkel, s.o., liegt an der Flurgestaltung.
Kinderbad: Ich finde eine zweite Dusche sinnvoll. Ob das Kinderbad sinnvoll ist, weiß ich nicht.
Grundlegend, auch um auf die Fragen einzugehen:
Rein im Sinne der Optimierung im Hinblick auf den Finanzrahmen und den Alltag sehe ich diverse Optimierungsmöglichkeiten.
Ich würde:
- Bad im EG vergrößern, samt Dusche.
- Kinderbad streichen.
- Raumprogramm im OG überarbeiten, siehe oben. In dem Zuge auch das Elternbad für die Kinder mit nutzbar machen.
- Zugang zur Dachterrasse für alle ermöglichen.
- Speisekammer, wenn unbedingt notwendig, komplett versteckt und viereckig (die Kante ist nur unnötige Wegefläche.
- dabei schauen, ob man irgendwie den Flur soweit verbreitert bekommt, dass ein Lichtelement "oben" neben der Tür möglich wird und eine vernünftige Schalterpositionierung.
- Kammer unter die Treppe integrieren.
Hallo, die Fenster im Treppenhaus passen nicht. Die sind falsch gezeichnet.
Das ganze Konstrukt inkl. Garage ist knapp 22 Meter breit. Je nach Bundesland habt ihr den Grenzabstand von 2,5 oder 3 Meter einzuhalten. (Je höher das Haus, desto mehr, das schreiben einige LBOs vor)
Nehmen wir den kleinsten Wert von 2,5 im Westen, dann wird die Garage zur Grenzbebauung und darf aus Gründen des Brandschutzes seitlich kein Fenster und keine Dachterrasse zum Nachbargrundstück haben.
Ich verstehe ehrlich gesagt nicht (Dachterrasse mal ausgenommen), warum sich das Haus nicht Richtung Osten zur grünen Wiese öffnet, also dort eine Fensterfront ist.
Kurze Haus-Seite zum Osten ohne Blick auf die einzigartige Wiese. Ihr stellt Euch doch nicht im Herbst oder Winter auf die hochgelegene kalte Ost-Dachterrasse, um den Ausblick zu genießen. Meiner Meinung gehört dort das Sitzfenster hin.
Es gibt hier vierköpfige Familien, die kommen gut mit 140qm aus. Ich glaube, @roteweste hat 150qm mit 3 Kindern.
Zum Entwurf: Ich persönlich würde das Haus mit dem Grundstück längs legen, damit man den Osten etwas öffnen kann.
Garage, wenn sie nicht den Rotstift unterliegen muss, in den NW.
Ich finde die Diele zu üppig von der Fläche und auch die Speis. Die Speis verliert 2qm wegen der Tür zum Flur. Dann gibt es diese lange Wand, die zu umkreisen wäre, um in die Küche zu gelangen. Mach zb in die Küche eine Tür, dann gewinnt das Gäste-WC Fläche. Ich kenne keinen, der es vorzieht, durch die Speis die Küche zu erreichen.
Allraum hat eine gute Größe, auch die Küche, obwohl ich sagen muss, dass dieses G eher einengend als großzügig wirkt. Flächenmässig ist sie top!
Schlafzimmer ist mega unpraktisch: der Partner, der schon schläft (oder noch), der wird nicht nur vom Licht ständig genervt, sondern auch von den Badschiebetüren. Auch eine Ankleide sollte eher vorgelagert werden, sodass das Schlafzimmer nicht zur Durchgangshölle wird.
Bei vier Personen finde ich auch ein Kinderbad für obsolet.
Baunebenkosten von ca. 50000€ sowie Garage sind auch noch abzuziehen.
Ob Ihr einen GU findet, der Elektrik und Dachdeckerarbeiten zulässt, ist fraglich. Erdarbeiten sollte kein Problem sein.
Fassade wäre nicht meins. Irgendwie zu fad. Müsste man mit reellen Materialien sehen. Günstig ist allerdings Verklinkerung und oben
...Ich habe noch vergessen, es war gleich mein erster Gedanke: eine Trage vom RTW kommt nicht um die Ecke bei 1,80 Breite.
Wir haben einen offenen Gang von 2 Metern, aber nicht den Eingang im Gang. Wir haben Weissputz, insofern hell, aber wie gesagt: keine Überdachung. Für mal ne Leiter oder Möbel schleppen ist das auf Dauer zu eng. Auch gerade für fremde Leute oder Familien, die sich vorm Eingang treffen oder stehen und auf Einlass warten. Auch Getränkekisten oder Kinderwagen will mal um die Ecke gebracht werden. Schön ist etwas anderes.
leah1003 schrieb:Aber dann passt doch die Planung gar nicht auf das Grundstück?!
Maße: ca. 26 m Breite × 60 m Tiefe
Das ganze Konstrukt inkl. Garage ist knapp 22 Meter breit. Je nach Bundesland habt ihr den Grenzabstand von 2,5 oder 3 Meter einzuhalten. (Je höher das Haus, desto mehr, das schreiben einige LBOs vor)
Nehmen wir den kleinsten Wert von 2,5 im Westen, dann wird die Garage zur Grenzbebauung und darf aus Gründen des Brandschutzes seitlich kein Fenster und keine Dachterrasse zum Nachbargrundstück haben.
leah1003 schrieb:Wie kann man sich das vorstellen? Flurstück 24/2 ist die Auffahrt zum Mehrgeschosser?
Nachbarbebauung:
- Nordwestlich: Wohnkomplex mit zwei Vollgeschossen + ausgebautem Dachgeschoss
- Nordöstlich: große, offene Wiese
leah1003 schrieb:Ist der schöne Ausblick Richtung grüne Wiese oder auch über die Straße rüber? Sitzfenster im Norden suggeriert auch einen Ausblick nach Norden?
Die Dachterrasse auf der Garage – der Ausblick ist wirklich einzigartig und uns sehr wichtig.
Ich verstehe ehrlich gesagt nicht (Dachterrasse mal ausgenommen), warum sich das Haus nicht Richtung Osten zur grünen Wiese öffnet, also dort eine Fensterfront ist.
leah1003 schrieb:Ich sag es mal so: Ihr setzt das Haus quer zum Grundstück. In meinen Augen bewirkt es genau das Gegenteil von Großzügigkeit. Ja, man hat vom Grundstück hinten mehr Gartenfläche. Aber das Grundstück ist ja eh groß. Gross bedeutet aber nicht gleich großzügig, wenn der Rest so knapp ist. Im Westen ist quasi nichts an Grundstück vorhanden. Und gerade auf dieser Seite kommt ja die Sonne rum, dass man sich da auch irgendwie finden will.
Was haltet ihr von der Entscheidung, die Traufseite zur Feldseite zu orientieren statt dem Giebel?
Kurze Haus-Seite zum Osten ohne Blick auf die einzigartige Wiese. Ihr stellt Euch doch nicht im Herbst oder Winter auf die hochgelegene kalte Ost-Dachterrasse, um den Ausblick zu genießen. Meiner Meinung gehört dort das Sitzfenster hin.
leah1003 schrieb:Die (nur) vier Laufmeter Fenster kann man auch giebelseitig setzen.
Längsseite des Hauses Richtung Garten = mehr Offenheit nach Süden
leah1003 schrieb:Ja.
Könnte der Eingangsbereich zu dunkel werden durch die überdachte Lösung?
leah1003 schrieb:Mit einem Trockner oder/und draußen. Kälte trocknet sehr gut. Zur Not nimmt man die Garage.
Der Wäschebereich ist noch nicht ideal geplant – wo genau trocknen wir z. B. im Winter?
leah1003 schrieb:Die einfach gehaltene Garage kommt meiner Meinung nicht mit einer Dachterrasse zusammen.
Garage:
- Einfach gehalten
leah1003 schrieb:Oje. Technisch sind es Mehrkosten. Zudem, ich sag nur „einfache Garage“. Ich würde mir allerdings an Eurer Stelle Gedanken machen, warum Ihr mit 190qm nicht auskommt und sogar noch die Technik auslagern wollt, weil Ihr die gängige Zimmeranzahl nicht in die mega Fläche bekommt!
Technikraum + separates WC als „Außen-WC“ integrierbar (als Idee, im Plan noch nicht abgebildet)
Es gibt hier vierköpfige Familien, die kommen gut mit 140qm aus. Ich glaube, @roteweste hat 150qm mit 3 Kindern.
leah1003 schrieb:Das macht nichts. Das können auch noch mehr werden.
Aktuell sind wir bestimmt schon beim vierten Entwurf
Zum Entwurf: Ich persönlich würde das Haus mit dem Grundstück längs legen, damit man den Osten etwas öffnen kann.
Garage, wenn sie nicht den Rotstift unterliegen muss, in den NW.
Ich finde die Diele zu üppig von der Fläche und auch die Speis. Die Speis verliert 2qm wegen der Tür zum Flur. Dann gibt es diese lange Wand, die zu umkreisen wäre, um in die Küche zu gelangen. Mach zb in die Küche eine Tür, dann gewinnt das Gäste-WC Fläche. Ich kenne keinen, der es vorzieht, durch die Speis die Küche zu erreichen.
Allraum hat eine gute Größe, auch die Küche, obwohl ich sagen muss, dass dieses G eher einengend als großzügig wirkt. Flächenmässig ist sie top!
Schlafzimmer ist mega unpraktisch: der Partner, der schon schläft (oder noch), der wird nicht nur vom Licht ständig genervt, sondern auch von den Badschiebetüren. Auch eine Ankleide sollte eher vorgelagert werden, sodass das Schlafzimmer nicht zur Durchgangshölle wird.
Bei vier Personen finde ich auch ein Kinderbad für obsolet.
leah1003 schrieb:15000€ zur Pflasterung von 6 Meter Auffahrt, Längsseite des Hauses und Terrasse wird wohl bei Eurem Anspruch nicht ausreichen.
Gesamtes Budget inkl. Ausstattung: 650.000–700.000 €
Baunebenkosten von ca. 50000€ sowie Garage sind auch noch abzuziehen.
Ob Ihr einen GU findet, der Elektrik und Dachdeckerarbeiten zulässt, ist fraglich. Erdarbeiten sollte kein Problem sein.
leah1003 schrieb:Plant das gängige Raumprogramm mit normalen Maßen auf 160qm, dann seid Ihr finanziell safe. Das geht auch mit Büro, Technik, Ankleide und Speis.
Habt ihr Ideen, wie wir das fehlende Büro sinnvoll integrieren können, ohne die Großzügigkeit des Entwurfs zu verlieren?
Fassade wäre nicht meins. Irgendwie zu fad. Müsste man mit reellen Materialien sehen. Günstig ist allerdings Verklinkerung und oben
...Ich habe noch vergessen, es war gleich mein erster Gedanke: eine Trage vom RTW kommt nicht um die Ecke bei 1,80 Breite.
Wir haben einen offenen Gang von 2 Metern, aber nicht den Eingang im Gang. Wir haben Weissputz, insofern hell, aber wie gesagt: keine Überdachung. Für mal ne Leiter oder Möbel schleppen ist das auf Dauer zu eng. Auch gerade für fremde Leute oder Familien, die sich vorm Eingang treffen oder stehen und auf Einlass warten. Auch Getränkekisten oder Kinderwagen will mal um die Ecke gebracht werden. Schön ist etwas anderes.
R
roteweste08.10.25 22:52ypg schrieb:
Ich glaube, @roteweste hat 150qm mit 3 Kindern.Ne, nicht ganz. 174 Quadratmeter. Update kommt wieder, wenn der Rohbau steht. ;-)K
K a t j a08.10.25 23:12Ihr baut nach §34? Was steht denn in der Umgebung und vor allem wie hoch sind die Nachbarhäuser?
Euren Herzenswunsch halte ich für Käse. Dachterrasse und Balkone braucht man nur bei Mehrfamilienhäusern. Bei einem Einfamilienhaus sitzt niemand auf dem Balkon bzw. der Dachterrasse. Man geht lieber in den Garten.
Schon gar nicht geht man über das Bad nach draußen. Da versenkt Ihr viel Geld für nix.
Der Rest wurde schon gesagt. Der Entwurf ist für Euch unbrauchbar, also nicht lange rumheulen und in die Tonne damit. Passt sowieso nicht aufs Land.
Euren Herzenswunsch halte ich für Käse. Dachterrasse und Balkone braucht man nur bei Mehrfamilienhäusern. Bei einem Einfamilienhaus sitzt niemand auf dem Balkon bzw. der Dachterrasse. Man geht lieber in den Garten.
Schon gar nicht geht man über das Bad nach draußen. Da versenkt Ihr viel Geld für nix.
Der Rest wurde schon gesagt. Der Entwurf ist für Euch unbrauchbar, also nicht lange rumheulen und in die Tonne damit. Passt sowieso nicht aufs Land.
Ähnliche Themen