Grundriss 200qm mit integriertem Wintergarten und Galerie

4,30 Stern(e) 4 Votes
Zuletzt aktualisiert 22.11.2025
Sie befinden sich auf der Seite 2 der Diskussion zum Thema: Grundriss 200qm mit integriertem Wintergarten und Galerie
>> Zum 1. Beitrag <<

Y

ypg

so viel Wohnfläche... Aber wenn das 5te Kind da ist (also, wenn es gut läuft ), dann muss man Büro zum Kinderzimmer machen. Für Räume, die man braucht, wird es im Haus eng, dafür hat man (Re-)Präsentationsfläche im Überfluss. Galerie ist nett, aber ihr habt zu viel Ecken, die im normalen Leben mit gängigem Tagesablauf einfach nur verstauben. Bei so großer Wohnfläche könnte man eine funktionellere Küche planen und Flächen einplanen, die man ggf mit Trennwand umfunktionieren kann.
 
M

merlin83

so viel Wohnfläche... Aber wenn das 5te Kind da ist (also, wenn es gut läuft ), dann muss man Büro zum Kinderzimmer machen. Für Räume, die man braucht, wird es im Haus eng, dafür hat man (Re-)Präsentationsfläche im Überfluss. Galerie ist nett, aber ihr habt zu viel Ecken, die im normalen Leben mit gängigem Tagesablauf einfach nur verstauben. Bei so großer Wohnfläche könnte man eine funktionellere Küche planen und Flächen einplanen, die man ggf mit Trennwand umfunktionieren kann.
Hallo ypg,

vielen Dank für Deinen Rat.

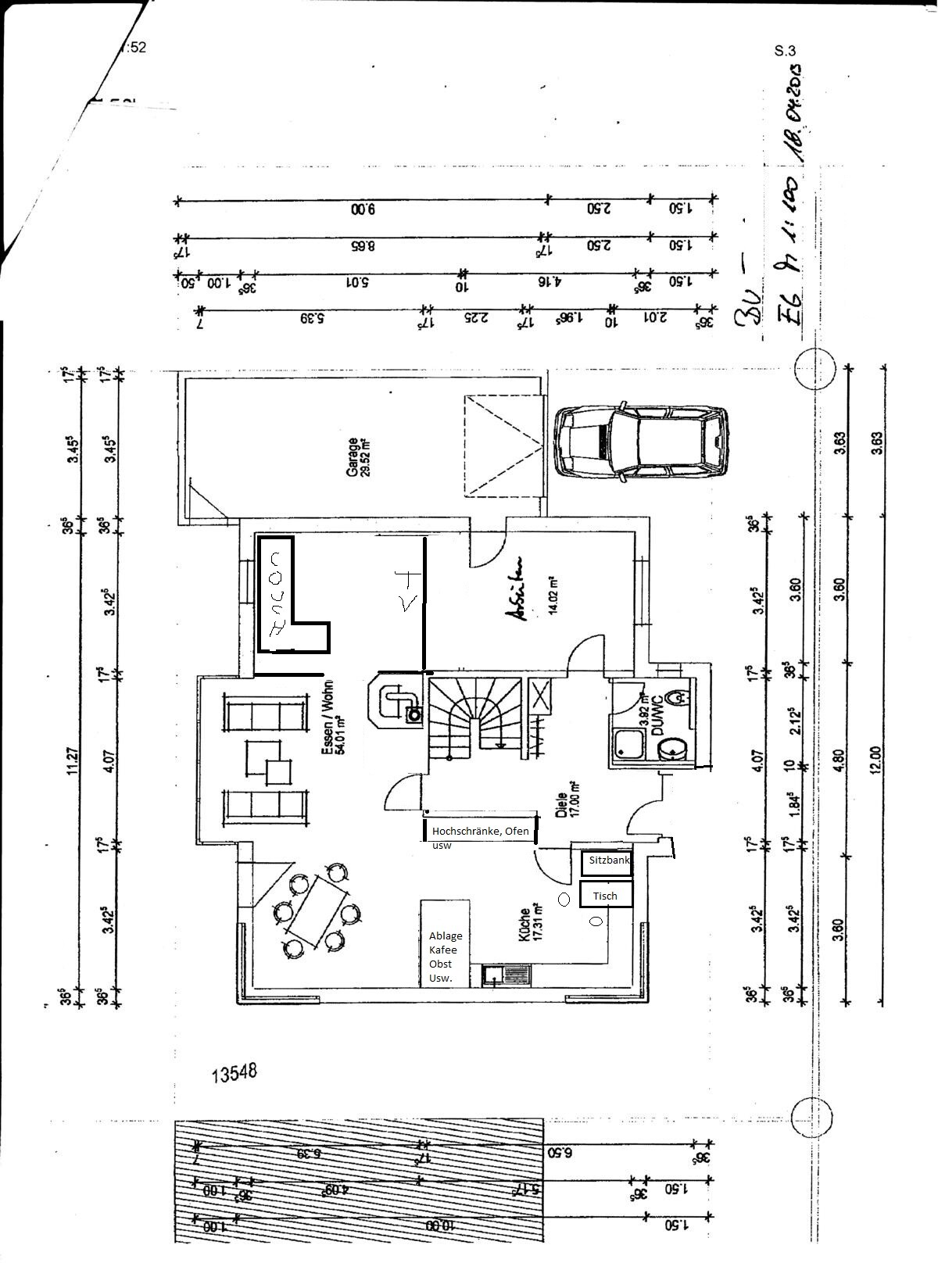
Würde das so schon besser funktionieren (siehe Anhang)? Oder muss das komplett neu?

Grundriss eines Einfamilienhauses mit Garage, Carport, Küche, Essen/Wohnen, Diele und Bad.
 
M

merlin83

so viel Wohnfläche... Aber wenn das 5te Kind da ist (also, wenn es gut läuft ), dann muss man Büro zum Kinderzimmer machen. Für Räume, die man braucht, wird es im Haus eng, dafür hat man (Re-)Präsentationsfläche im Überfluss. Galerie ist nett, aber ihr habt zu viel Ecken, die im normalen Leben mit gängigem Tagesablauf einfach nur verstauben. Bei so großer Wohnfläche könnte man eine funktionellere Küche planen und Flächen einplanen, die man ggf mit Trennwand umfunktionieren kann.
Hallo ypg,

vielen Dank für Deinen Rat.

Würde das so schon besser funktionieren (siehe Anhang)? Oder muss das komplett neu?

Das Arbeits bzw. 3. Kinderzimmer wäre jetzt wohl bei knapp 18 qm. Den TV Bereich könnte ich mir vorstellen, könnte man mit einer Schiebetür schließen.
 
L

Legurit

Also wir haben 187 m² und 4 vollwertige (~16m²) Zimmer im OG und ein Elternschlafzimmer mit Bad-en-Suite (schreibt man das so? auf jeden fall mit kleinem separatem Duschbad nur aus dem Schlafzimmer zugänglich) im EG. Wohn-Ess-Kochbereich haben bei uns 55 m² (irgendwo muss man ja qm einsparen ). Wir haben sowohl im EG als auch im OG noch jeweils einen etwa 8 m² großen Hauswirtschaftsraum. Das Bad im OG ist bei uns allerdings kleiner.

Wenn das euren Ansprüchen entspricht und ihr das Geld dafür habt, finde ich den Grundriss schön. Ändern würde ich noch Ankleide und Schlafzimmer - lieber das Schlafzimmer als gefangenen Raum und die Ankleide als "Brücke" zum Bad. Das Ablauf Ankleide - Bad - Ankleide - Bad etc. wird öfter vorkommen als dass man noch mal ins Schlafzimmer muss. Darüber hinaus stört man dann auch nicht den, der noch im Schlafzimmer nächtigt, während einer sich fertig macht.
Thema is ggf. noch Laufwege Küche - wieso stehen denn da zweimal Stühle am Tresen? Macht das Ganze nicht funktionaler.
 
M

Manu1976

Schonmal in einem Haus mit Galerie gewohnt? Privatsphäre gibt es da nicht. Gerade mit Kinder. Essensgerüche, Gespräche, TV-Geräusche, Kindergeschrei, Kindermusik usw. werden 1a von unten nach oben und umgekehrt getragen. nicht zu vergessen, ihr sitzt gerade mit Gästen gemütlich im Wintergarten trinkt nen Schluck Wein und das evtl. pubertierende Kind muss dann im Schlafanzug, Shirt, mit Handtuch ganz schnell an der Galerie vorbei um ins Bad (oder andersrum) zu kommen.
Ich würde auf die Galerie verzichten und stattdessen irgendwie noch ein Kinderbad einplanen. Galerie mit Kinder ist verschwendeter Platz - meine Meinung.
 
Y

ypg

Küchenwege sind einfach zu lang. Ablage für Backblech neben dem Ofen fehlt zum Ablegen, übergießen dazu legen etc. Wo kommt der Herd hin? Wo ist dann die Arbeitsfläche? Auf jedem Fall funktioniert das Arbeitsdreieck Zubereiten, lagern (Kühlschrank) und spülen nicht. Tresen wird als Musecke hergehalten.
Gruß Yvonne
 
Zuletzt aktualisiert 22.11.2025
Im Forum Grundrissplanung / Grundstücksplanung gibt es 2535 Themen mit insgesamt 87992 Beiträgen


Ähnliche Themen zu Grundriss 200qm mit integriertem Wintergarten und Galerie
Nr.ErgebnisBeiträge
1Kinderzimmer und Schlafzimmer - Welche Größe ist zu empfehlen? - Seite 356
2Grundrissplanung Hanghaus mit 5 Kinderzimmer - Seite 26370
3Grundriss Bungalow 150qm geschlossene Küche, überdachte Terrasse 40
4Pfiffige Schlafzimmer Idee mit Ankleide gesucht 19
5Größe vom Schlafzimmer und Kinderzimmer - Seite 238
6Schallschutztür Schlafzimmer / Kinderzimmer 23
7Grundriss Schlafzimmer, Ankleide und Bad en Suite - Seite 336
8Grundriss Schlafzimmer mit Bad und Ankleide 62
9Grundrissplanung Einfamilienhaus (Stadtvilla) ca.140m² (3 Kinderzimmer) 42
10Grundrissplanung ca. 200qm (3 Kinderzimmer + Schlafen) - Seite 529
11Einfamilienhaus ~190qm, drei Kinderzimmer, ohne Keller - Feedback wäre mega - Seite 219
12Neubau Einfamilienhaus 160-170qm, 3 Kinderzimmer 39
13Grundriss 3 Kinderzimmer Einfamilienhaus - Potenziale? 43
14Grundriss Einfamilienhaus 155m², ohne Keller, 3 Kinderzimmer, 1 Büro 38
15Erstkontakt und Vorstellung unserer Pläne 10
16Wohnen/Essen/Küche: Wie wohnt ihr oder werdet ihr wohnen? - Seite 852
17Grundrissplanung - Wie Schlafzimmers & Ankleide anordnen? 11
18Ankleide/Schlafzimmer Problem - Grundrissdiskussion 25
19Waschmaschine und Trockner in Ankleide? 16
20Wanddicke Kinderzimmer / Bad 35

Oben