ᐅ Feedback gewünscht Einfamilienhaus ca. 135m²
Erstellt am: 03.12.19 08:59
M
Mrs.Alkatraz03.12.19 08:59Hallo zusammen,
ich lese schon eine ganze Weile still mit im Forum und bedanke mich für die vielen hilfreichen Informationen.
Gerne würde ich euer Feedback zu unserem geplanten Grundriss hören.
Danke schon mal.
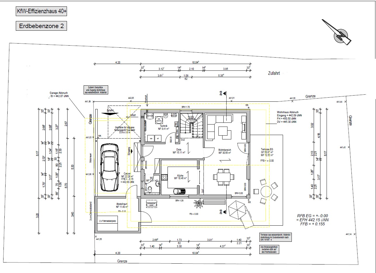
Bebauungsplan/Einschränkungen
Größe des Grundstücks 360m² + Zufahrt
Hang ca. 1 m Höhendifferenz
Anzahl Stellplatz Carport
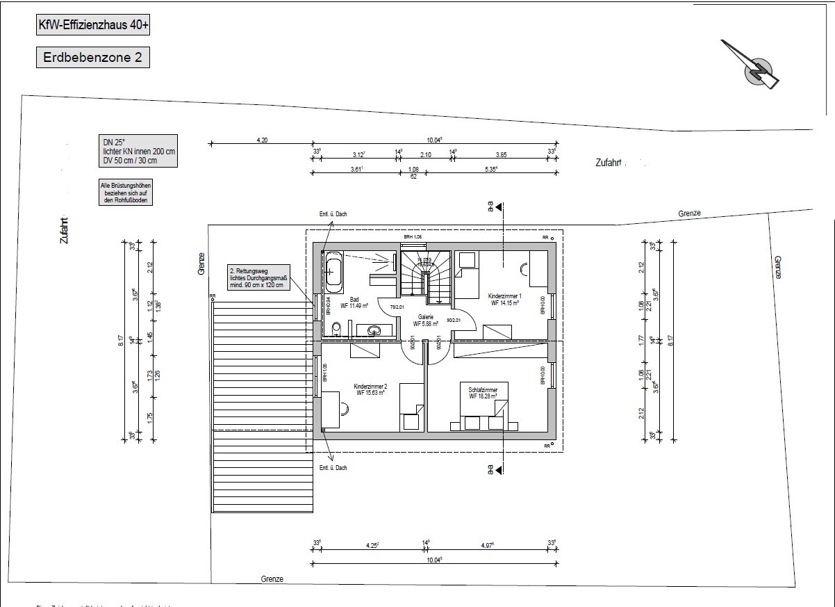
Geschossigkeit 1,5 Geschosse, OG mit 2m Kniestock
Dachform Satteldach
Bebauungsplan nach §34
Anforderungen der Bauherren
Stilrichtung, Dachform, Gebäudetyp Einfamilienhaus mit Satteldach
Keller, Geschosse ohne Keller, 1,5 Geschosse
Anzahl der Personen, Alter 2 Personen, 37 und 34 mit Hund
Büro: Familiennutzung oder Homeoffice? Kein Büro
Schlafgäste pro Jahr. 0
offene oder geschlossene Architektur eher geschlossen, nicht zu offen, abgetrennte Bereiche
konservativ oder moderne Bauweise, eher konservativ mit modernen Elementen
offene Küche, Kochinsel: hier sind wir uns noch unschlüssig, ob wir die Schiebetüre zur Küche wollen, oder ggf. eine weitere Arbeitsfläche, oder Kochinsel
Anzahl Essplätze 4
Kamin: nein
Musik/Stereowand: nein
Balkon, Dachterrasse: nein
Garage, Carport: Carport
Nutzgarten, Treibhaus; nein
weitere Wünsche/Besonderheiten/Tagesablauf, gern auch Begründungen, warum dieses oder das nicht sein soll:
Flur mit Garderobe und Platz zum Kommode oder Schrank stellen, Türen zum Wohnzimmer als Schleuse für den Wauzi.
Hausentwurf
Von wem stammt die Planung:
-Architekt, Grundrissursprung von Hausbaufirma, abgeändert nach unseren Ideen.
Was gefällt besonders? Warum? Aufteilung EG, Ausrichtung, Küche evtl. anders
Was gefällt nicht? Noch unschlüssig ob Küche mit Schiebetüre abgetrennt oder offener.
Im Bad wird noch ein Lichtband auf der Traufseite zwischen Wanne und Dusche geplant.
GGF in den Kinderzimmern noch jeweils ein Fenster auf den Traufseiten.
Preisschätzung lt Architekt/Planer: 340.000 inkl. Baunebenkosten
Persönliches Preislimit fürs Haus, inkl Ausstattung: 375.000
favorisierte Heiztechnik: LWWP ggf. mit Photovoltaik erweiterbar


ich lese schon eine ganze Weile still mit im Forum und bedanke mich für die vielen hilfreichen Informationen.
Gerne würde ich euer Feedback zu unserem geplanten Grundriss hören.
Danke schon mal.
Bebauungsplan/Einschränkungen
Größe des Grundstücks 360m² + Zufahrt
Hang ca. 1 m Höhendifferenz
Anzahl Stellplatz Carport
Geschossigkeit 1,5 Geschosse, OG mit 2m Kniestock
Dachform Satteldach
Bebauungsplan nach §34
Anforderungen der Bauherren
Stilrichtung, Dachform, Gebäudetyp Einfamilienhaus mit Satteldach
Keller, Geschosse ohne Keller, 1,5 Geschosse
Anzahl der Personen, Alter 2 Personen, 37 und 34 mit Hund
Büro: Familiennutzung oder Homeoffice? Kein Büro
Schlafgäste pro Jahr. 0
offene oder geschlossene Architektur eher geschlossen, nicht zu offen, abgetrennte Bereiche
konservativ oder moderne Bauweise, eher konservativ mit modernen Elementen
offene Küche, Kochinsel: hier sind wir uns noch unschlüssig, ob wir die Schiebetüre zur Küche wollen, oder ggf. eine weitere Arbeitsfläche, oder Kochinsel
Anzahl Essplätze 4
Kamin: nein
Musik/Stereowand: nein
Balkon, Dachterrasse: nein
Garage, Carport: Carport
Nutzgarten, Treibhaus; nein
weitere Wünsche/Besonderheiten/Tagesablauf, gern auch Begründungen, warum dieses oder das nicht sein soll:
Flur mit Garderobe und Platz zum Kommode oder Schrank stellen, Türen zum Wohnzimmer als Schleuse für den Wauzi.
Hausentwurf
Von wem stammt die Planung:
-Architekt, Grundrissursprung von Hausbaufirma, abgeändert nach unseren Ideen.
Was gefällt besonders? Warum? Aufteilung EG, Ausrichtung, Küche evtl. anders
Was gefällt nicht? Noch unschlüssig ob Küche mit Schiebetüre abgetrennt oder offener.
Im Bad wird noch ein Lichtband auf der Traufseite zwischen Wanne und Dusche geplant.
GGF in den Kinderzimmern noch jeweils ein Fenster auf den Traufseiten.
Preisschätzung lt Architekt/Planer: 340.000 inkl. Baunebenkosten
Persönliches Preislimit fürs Haus, inkl Ausstattung: 375.000
favorisierte Heiztechnik: LWWP ggf. mit Photovoltaik erweiterbar
Lageplan wäre klasse. Sind Kinder geplant? Hätte ich jetzt aus dem Fragebogen nicht so raus gelesen und dann wären die zwei Kinderzimmer dumm geplant.
U-Küche ist überhaupt nicht meins, aber das ist Geschmackssache.
Wenn Kinder, dann wollt ihr wirklich das Schlafzimmer zwischen beiden Kinderzimmern haben? Und Schlafzimmer im Süden, dafür Kind 2 im NW, so daß das arme Kind erst am Spätnachmittag Sonne bekommt?
U-Küche ist überhaupt nicht meins, aber das ist Geschmackssache.
Wenn Kinder, dann wollt ihr wirklich das Schlafzimmer zwischen beiden Kinderzimmern haben? Und Schlafzimmer im Süden, dafür Kind 2 im NW, so daß das arme Kind erst am Spätnachmittag Sonne bekommt?
M
Mrs.Alkatraz03.12.19 09:31Danke dir für die Antwort.
Kind ist 1 geplant.
Dafür auch das Kinderzimmer mit SO.
Kinderzimmer 2 wird ein Hobby, Sportzimmer.
Wie würdest du die Aufteilung optimieren?
Küche in U-Form wird so wohl auch nicht kommen.
Die Küchenplanung ist noch nicht abgeschlossen.
Kind ist 1 geplant.
Dafür auch das Kinderzimmer mit SO.
Kinderzimmer 2 wird ein Hobby, Sportzimmer.
Wie würdest du die Aufteilung optimieren?
Küche in U-Form wird so wohl auch nicht kommen.
Die Küchenplanung ist noch nicht abgeschlossen.
Viel kann man da so jetzt nicht ändern, weil es gar nicht so groß ist, wie es wirkt.
Man muss sich klarmachen, dass es ein Raumwunder wird, und gerade deshalb mit Abstrichen, auf die zb ich wert legen würde.
Zb der schlechte Zugang zur Küche. Dann zeichne Dir mal reelle Möbel ein und Du wirst sehen, dass der Esstisch bzw die Stühle im Weg stehen. Viele haben eine Raumbreite von 4 Meter plus. Ihr als RBM 3,85... das ist nicht gedacht, um großzügige Laufflächen zu haben. Das ist eher kuschelig.
Mich würde auch der introvertierte Eingang unterm Carport stören, aber funktionieren wird es irgendwie. Dann hat man eben keinen Neuwagen, sondern immer einen Gebrauchten vor der Tür. Man hat es dann auch nicht gerade hell im Flur...
Ich sehe auch lieber einen kurzen Weg von Küche zur Terrasse und zurück.
Hast Du mal Außenansichten? Wie wird das Dach? Ich würde wohl für Euros eher das Haus noch 30cm verlängern, den Eingang nach vorn setzen und oben Abstellfläche generieren und dafür auf 50cm Kniestock verzichten.
Man muss sich klarmachen, dass es ein Raumwunder wird, und gerade deshalb mit Abstrichen, auf die zb ich wert legen würde.
Zb der schlechte Zugang zur Küche. Dann zeichne Dir mal reelle Möbel ein und Du wirst sehen, dass der Esstisch bzw die Stühle im Weg stehen. Viele haben eine Raumbreite von 4 Meter plus. Ihr als RBM 3,85... das ist nicht gedacht, um großzügige Laufflächen zu haben. Das ist eher kuschelig.
Mich würde auch der introvertierte Eingang unterm Carport stören, aber funktionieren wird es irgendwie. Dann hat man eben keinen Neuwagen, sondern immer einen Gebrauchten vor der Tür. Man hat es dann auch nicht gerade hell im Flur...
Ich sehe auch lieber einen kurzen Weg von Küche zur Terrasse und zurück.
Hast Du mal Außenansichten? Wie wird das Dach? Ich würde wohl für Euros eher das Haus noch 30cm verlängern, den Eingang nach vorn setzen und oben Abstellfläche generieren und dafür auf 50cm Kniestock verzichten.
Ich finde die 3.85 RMB im WZ auch zu knapp. Wir haben 4.3 und das finde ich angenehm. Da hat man auch noch ein wenig Platz zum Laufen zwischen Couchtisch und Schrank/TV.
Ansonsten finde ich den Flur auch etwas eng. Könnte die Küche etwas schmaler werden?
Was soll an dem kleinen Haus eigentlich 340.000€ kosten? Es ist schon eher klein, resultiert der hohe Aufpreis aus dem Kfw 40+?
Ansonsten finde ich den Flur auch etwas eng. Könnte die Küche etwas schmaler werden?
Was soll an dem kleinen Haus eigentlich 340.000€ kosten? Es ist schon eher klein, resultiert der hohe Aufpreis aus dem Kfw 40+?
Ähnliche Themen