Hallo zusammen,
sind aktuell in der Neubauplanung und favorisieren aktuell folgenden Grundriss:
Gekauft haben wir ein Fertighaus mit Massivkeller. Das Fertighaus wird abgerissen und EG und DG neu gemauert. Im Zuge dessen
wird die Garage wenige Meter erweitert um die Grundfläche zu vergrößern.
Vielen Dank im Voraus.
Bebauungsplan/Einschränkungen
Größe des Grundstücks 700qm
Hang Ja
Grundflächenzahl Geschossflächenzahl - Es wird auf einem bestehenden Keller gebaut
Anzahl Stellplatz 2
Geschossigkeit 2,5 Vollgeschosse
Dachform - Satteldach oder Flachdach
Stilrichtung - frei
Ausrichtung - Südhang
Maximale Höhen/Begrenzungen - kaum Einschränkungen im Bebauungsplan
weitere Vorgaben
Anforderungen der Bauherren
Stilrichtung, Dachform, Gebäudetyp - Satteldach, unkompliziert, wartungsarm, minimalistisch
Bin selbst im Rollstuhl deswegen muss das Haus barrierefrei sein. Ein Aufzug kommt deswegen vom Keller bis zum DG
Keller, Geschosse - Nutzkeller + EG + DG
Anzahl der Personen, Alter - 5 Personen (Kinder 9|5|5)
Raumbedarf im EG, OG - Im EG sollten alle Räume für die Eltern sein.
Büro: Familiennutzung oder Homeoffice? Homeoffice
Schlafgäste pro Jahr - selten
offene oder geschlossene Architektur - offen
konservativ oder moderne Bauweise - modern
offene Küche, Kochinsel - offen, kann mit Kochinsel muss aber nicht
Anzahl Essplätze 6-8
Kamin - muss nicht
Garage, Carport - Garage besteht bereits und Carport würde dazukommen
weitere Wünsche/Besonderheiten/Tagesablauf, gern auch Begründungen, warum dieses oder das nicht sein soll
Hausentwurf
Von wem stammt die Planung:
-Architekt auf Basis unseren do-it-yourself Grundriss
Was gefällt besonders? Warum? Familienorientiert, Alltagstauglich
Was gefällt nicht? Warum? Wir überlegen noch eine Nische für ein Side-By-Side Kühlschrank dem Büro abzuzwacken, sodass man diesen Bündig in die Wand platzieren kann. Eventuell das gleiche für die schränke im Bad, da das Schlafzimmer sehr groß ausfällt.
favorisierte Heiztechnik: Das ist eine gute Frage hinzu kommt ob man den Keller in mit in die Thermische Hülle packt.
Wenn Ihr verzichten müsst, auf welche Details/Ausbauten
-könnt Ihr verzichten: Eventuell könnte ich das Büro auch in den Keller verschieben. Verzichtet hat meine Frau Ihr begehbaren Schrank für das Büro (wenn das nicht Liebe ist )
Was ist die wichtigste/grundlegende Frage zum Grundriss in 130 Zeichen zusammengefasst?




sind aktuell in der Neubauplanung und favorisieren aktuell folgenden Grundriss:
Gekauft haben wir ein Fertighaus mit Massivkeller. Das Fertighaus wird abgerissen und EG und DG neu gemauert. Im Zuge dessen
wird die Garage wenige Meter erweitert um die Grundfläche zu vergrößern.
Vielen Dank im Voraus.
Bebauungsplan/Einschränkungen
Größe des Grundstücks 700qm
Hang Ja
Grundflächenzahl Geschossflächenzahl - Es wird auf einem bestehenden Keller gebaut
Anzahl Stellplatz 2
Geschossigkeit 2,5 Vollgeschosse
Dachform - Satteldach oder Flachdach
Stilrichtung - frei
Ausrichtung - Südhang
Maximale Höhen/Begrenzungen - kaum Einschränkungen im Bebauungsplan
weitere Vorgaben
Anforderungen der Bauherren
Stilrichtung, Dachform, Gebäudetyp - Satteldach, unkompliziert, wartungsarm, minimalistisch
Bin selbst im Rollstuhl deswegen muss das Haus barrierefrei sein. Ein Aufzug kommt deswegen vom Keller bis zum DG
Keller, Geschosse - Nutzkeller + EG + DG
Anzahl der Personen, Alter - 5 Personen (Kinder 9|5|5)
Raumbedarf im EG, OG - Im EG sollten alle Räume für die Eltern sein.
Büro: Familiennutzung oder Homeoffice? Homeoffice
Schlafgäste pro Jahr - selten
offene oder geschlossene Architektur - offen
konservativ oder moderne Bauweise - modern
offene Küche, Kochinsel - offen, kann mit Kochinsel muss aber nicht
Anzahl Essplätze 6-8
Kamin - muss nicht
Garage, Carport - Garage besteht bereits und Carport würde dazukommen
weitere Wünsche/Besonderheiten/Tagesablauf, gern auch Begründungen, warum dieses oder das nicht sein soll
Hausentwurf
Von wem stammt die Planung:
-Architekt auf Basis unseren do-it-yourself Grundriss
Was gefällt besonders? Warum? Familienorientiert, Alltagstauglich
Was gefällt nicht? Warum? Wir überlegen noch eine Nische für ein Side-By-Side Kühlschrank dem Büro abzuzwacken, sodass man diesen Bündig in die Wand platzieren kann. Eventuell das gleiche für die schränke im Bad, da das Schlafzimmer sehr groß ausfällt.
favorisierte Heiztechnik: Das ist eine gute Frage hinzu kommt ob man den Keller in mit in die Thermische Hülle packt.
Wenn Ihr verzichten müsst, auf welche Details/Ausbauten
-könnt Ihr verzichten: Eventuell könnte ich das Büro auch in den Keller verschieben. Verzichtet hat meine Frau Ihr begehbaren Schrank für das Büro (wenn das nicht Liebe ist )
Was ist die wichtigste/grundlegende Frage zum Grundriss in 130 Zeichen zusammengefasst?
- An welchen Stellen kann man noch optimieren?
- Welche Fenstermaße oder Brüstungshöhen empfehlen?
- Was findet ihr schlecht/würdet anders machen?
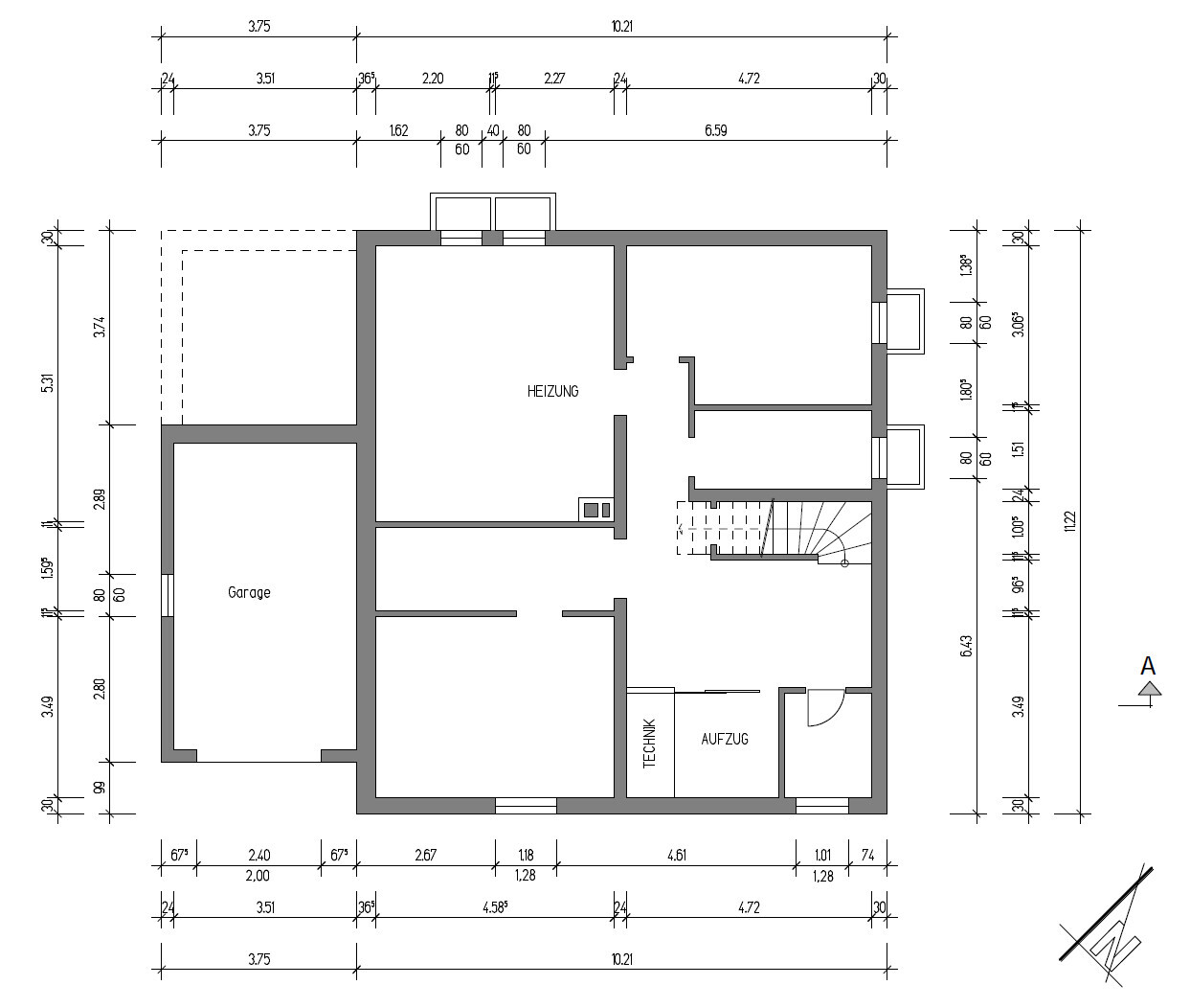
Das Büro im EG macht vieles kaputt. Dadurch ist das Elternbad eher dürftig und die Küche so schlauchig. Du hast im Keller Tageslicht. Wenn der auch trocken ist, würd ich nicht zögern. Liebe hin oder her - vielleicht will die Ehefrau auch mal in der Badewanne ein Stück raus schwimmen und die Küche könnte mehr Tiefe gut gebrauchen für das Wohlfühlgefühl.
Um mal schnell das Laptop zu benutzen kann man im Schlafzimmer auch noch einen kleinen Tisch aufstellen. Selbst der Nachtschrank würde da schon reichen.
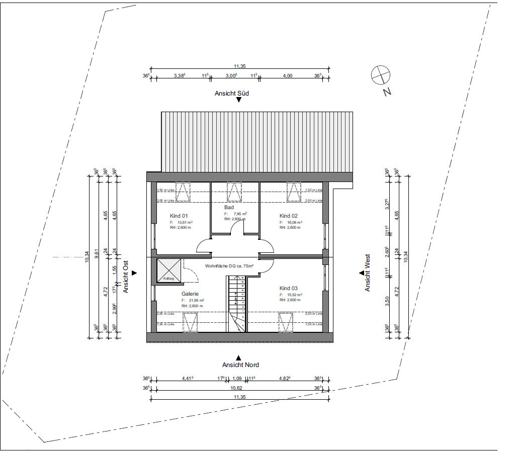
Die Galerie im OG ist nicht so mein Fall. Nach meiner Erfahrung wird so eine Ecke nur ein besserer Staubfänger und niemand nutzt den Platz. Ich würde dort das Bad hinsetzen und die Kinderzimmer radikal vergrößern.
Um mal schnell das Laptop zu benutzen kann man im Schlafzimmer auch noch einen kleinen Tisch aufstellen. Selbst der Nachtschrank würde da schon reichen.
Die Galerie im OG ist nicht so mein Fall. Nach meiner Erfahrung wird so eine Ecke nur ein besserer Staubfänger und niemand nutzt den Platz. Ich würde dort das Bad hinsetzen und die Kinderzimmer radikal vergrößern.
A
Alessandro27.04.20 12:54mir gefällt was ich sehe
Ähnliche Themen