Eure Meinung zum Grundriss für das EG

4,50 Stern(e) 4 Votes
Zuletzt aktualisiert 19.11.2025
Sie befinden sich auf der Seite 3 der Diskussion zum Thema: Eure Meinung zum Grundriss für das EG
>> Zum 1. Beitrag <<

aytex

aytex

Hallo ypg

also bei den Varianten wo die Treppe am Hauswirtschaftsraum grenzt ist das OG eigentlich schon fix, das funktioniert. Je nach dem ob der "Winkel" der Treppe im EG oder im Og ist kann im OG die Raumaufteilung an einer gedachten mittleren Achse gespiegelt werden und es funktioniert. Das hatten wir schon geprüft

Wir haben uns quasi ein Baukastensystem an Grundrissen gebastelt, wonach wir je nach Treppenanordnung den einen oder anderen Grundriss fürs OG anwenden können.

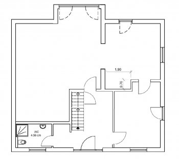
Was haltet hier von dieser Idee? Meine Frau und ich sind grade sehr kreativ unterwegs und haben in kürzester Zeit bereits den 4. Entwurf produziert Nachteil: Dieser ist mit Mehrkosten verbunden, da ein Erker vorgesehen ist :-( ABER: Das Wohnzimmer wäre entzerrt und nicht mehr so schrecklich quadratisch. Die Wand im Wohnzimmer, die an dem Gäste-WC grenzt ist ca. 4m lang, nur mal so als Referenzwert


Freuen uns schon auf eure Meinungen
grundriss-wohnhaus-2d-geschossplan-mit-wc-treppen-eingang.jpg

Grundriss eines Gebäudeteils mit Treppe, WC (4,56 m²) und mehreren Räumen.
 
M

Mecc

Hi Aytex,

also ich würde eher auf den Zugang Hauswirtschaftsraum-Küche verzichten als auf den Zugang Hauswirtschaftsraum-Flur. Wir zumindest haben unsere Waschmaschine und den Trockner dort und einen Berg Wäsche. Der muss zwar nicht die Treppe runter (Wäscheabwurf), aber wieder hoch. Und das ziemlich oft Bei Euch müsste man dann mit dem Korb - ev beide Hände voll- durch dieTür zur Küche, halb durchs Wohnzimmer, durch die nächste Tür, fast bis zum Hauseingang und dann die Treppe hoch. Umständlicher geht es kaum Mal eben aus der Küche oder dem Esszimmer eine Flasche Sprudel oÄ aus dem Hauswirtschaftsraum zu holen, geht auch mit dem Flurzugang fix. Aber das ist natürlich nur meine Meinung. Und die wolltest Du ja auch, hehe. Der Erker gibt Euch eine schöne Möglichkeit, den Esstisch ein bisschen hinein zu rücken, stelle ich mir ganz nett vor. Was soll das den extrakosten?

Viel Glück,Mecc
 
T

Teufelchen1985

Hallo aytex,

nur noch eine Idee:
wenn du die Tür von der Küche zum Hauswirtschaftsraum weglässt, kannst du mehr Küchenschränke unterbringen, evtl. auch die "untere" Wand der Küche komplett mit hohen Schränken vorsehen, und somit auch einige Vorräte in der Küche unterbringen, sodass der Weg von der Küche in den Hauswirtschaftsraum vermutlich gar nicht mehr so häufig zu gehen ist.

Lieben Gruß
Teufelchen
 
Y

ypg

Lustig wäre auch jedes Kaffekränzchen der Frau oder der Schnack von Mann zu Mann, wenn der Ehepartner in der Zeit häusliche Arbeit verrichten will und dauernd durchs Wohnzimmer latschen muss. Die Tür Hauswirtschaftsraum/Flur muss sein.
Überlegt Euch mal, oben die Wäsche zu waschen (dort, wo sie anfällt -> 2. Hauswirtschaftsraum) oder Die Ecke im Hauswirtschaftsraum als Speis zuzumachen. An allen drei Seiten Regale, unten Platz für die Kisten, oben reichlich für Vorräte und Brotbackautomat. Ihr bräuchtet dann kaum noch Küchenschränke
 
Musketier

Musketier

Vielleicht ist es ein individuelles Gefühl, weil die Grundfläche entsprechend groß ist, aber kann es sein, dass die Treppenlänge nicht paßt?

Um bei den Raumgrößen wie Eurem Wohnzimmer nicht erdrückt zu werden, darf die Geschosshöhe nicht zu niedrig sein. Dann wird das mit 13 Stufen aber eher eine Hühnerleiter.
 
Musketier

Musketier

Ich hab noch was vergessen.

Alle Fenster einzeichnen und die Räume maßstabsgerecht möblieren. Nur so können alle Fehler entdeckt werden.
 
Zuletzt aktualisiert 19.11.2025
Im Forum Grundrissplanung / Grundstücksplanung gibt es 2536 Themen mit insgesamt 87979 Beiträgen


Ähnliche Themen zu Eure Meinung zum Grundriss für das EG
Nr.ErgebnisBeiträge
1 2 Vollgeschosse, Durchgang Garage, Hauswirtschaftsraum unter Treppe 25
2Treppe im Flur, Grundriss steht eigentlich schon :o( - Seite 320
3Treppe im Wohnzimmer als Hype - Pro & Contra? - Seite 426
4Grundrissfrage, Garage, Treppe 33
5Grundrissfrage, Treppe, Fenster, Ausrichtung 12
6Neubau Einfamilienhaus, Treppen, unsicher Position der Türen - Einfamilienhaus Satteldach 10
7Mit Erker in die Abstandsflächen - in diesem Fall zulässig? - Seite 330
8Grundriss für 150qm Einfamilienhaus mit Wohnzimmer nach Norden - Seite 321
9Welcher Bodenbelag im Eingang/Flur? Wer hat Erfahrungen? Bilder? 14
10Kleinstmögliches Fenster für Lüftung Hauswirtschaftsraum 22
11Grundriss 170m2 - Hauswirtschaftsraum zu klein? Verbesserungsvorschläge? - Seite 542
12Wohin mit der Treppe? Dachausbau Walmdachbungalow - Seite 319
13Wohnzimmer Grundrissplanungs-Ideen? - Seite 239
14Hauseingang mit Flur oder ohne 15
15Doppelflügeltür / Pendeltür zum Wohnzimmer 13
16Standort Küche und Wohnzimmer - Seite 355
17Stadtvilla mit gerader Treppe, offene moderne Bauweise, 140m² - Seite 218
18Zusätzlicher Hauswirtschaftsraum im OG für Waschmaschine etc. 13
19Reicht der Hauswirtschaftsraum auch als Abstellkammer aus? - Seite 222
20Schallschutztür im Hauswirtschaftsraum notwendig? Erfahrungen? 22

Oben