N
nordanney
@Wastl
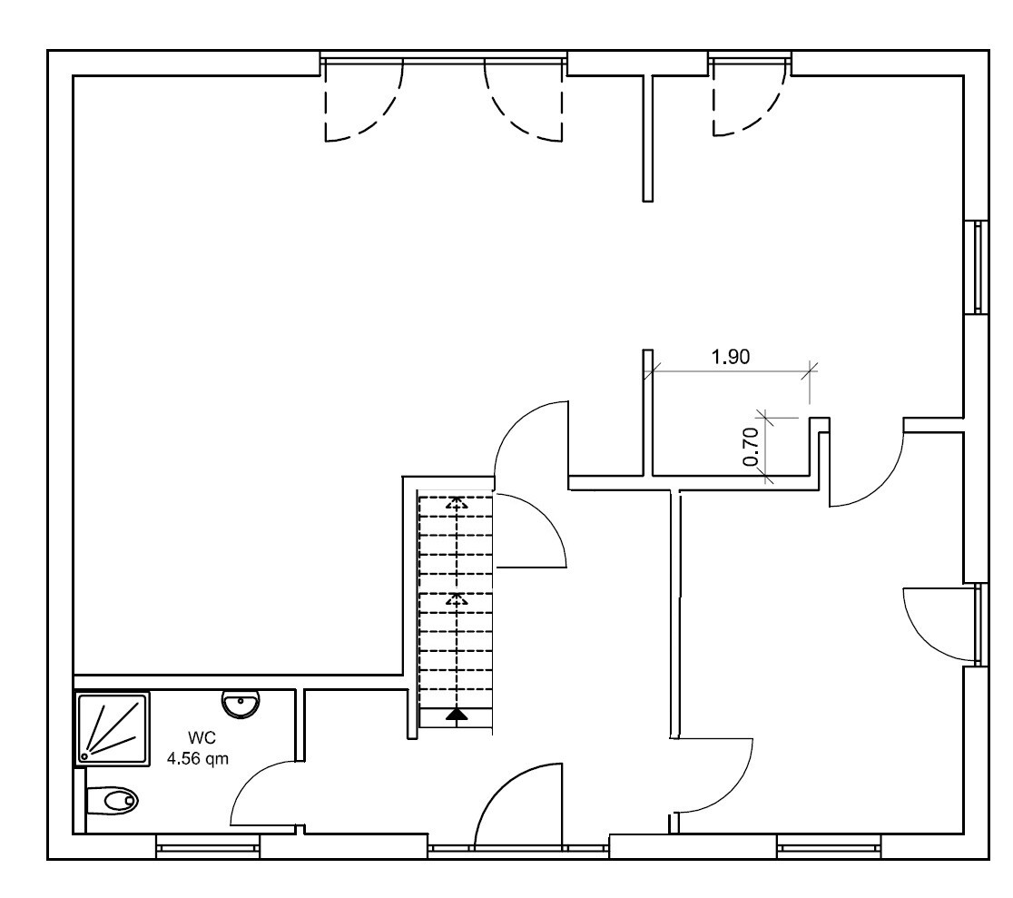
Es ist eine geschlossene Betontreppe, die als Belag (Trittstufen) einen ähnlichen Holzbelag wie das Wohnzimmer bekommt (Eiche geräuchert). Die Setzstufe bleibt in weiß um einen schönen Kontrast zu erhalten. Geländer gibt es in einer Edelstahlkonstruktion (wissen wir aber noch nicht genau), auf jeden Fall nicht gemauert. Eine offene Treppe wäre zu laut im OG, eine Tür haben wir nicht vorgesehen. Im nächsten Jahr, wenn das Haus fertig ist, wissen wir, ob die Entscheidung so richtig war!
@aytex
Im Hauswirtschaftsraum wird es nur Heizung/Elektrik/Waschmaschine/Trockner geben + Waschbecken wenn die Kinder oder der Hund total verdreckt ins Haus möchten
Unser DG wird ebenfalls ausgebaut (mit 80cm Kniestock), dort haben wir noch 34qm (Grundfläche) als Kellerersatzräume vorgesehen. Ansonsten wüssten wir nicht, wohin mir unserem ganzen Krempel...
P.S. 80 Zoll Fernseher würde mir auch gut gefallen
Es ist eine geschlossene Betontreppe, die als Belag (Trittstufen) einen ähnlichen Holzbelag wie das Wohnzimmer bekommt (Eiche geräuchert). Die Setzstufe bleibt in weiß um einen schönen Kontrast zu erhalten. Geländer gibt es in einer Edelstahlkonstruktion (wissen wir aber noch nicht genau), auf jeden Fall nicht gemauert. Eine offene Treppe wäre zu laut im OG, eine Tür haben wir nicht vorgesehen. Im nächsten Jahr, wenn das Haus fertig ist, wissen wir, ob die Entscheidung so richtig war!
@aytex
Im Hauswirtschaftsraum wird es nur Heizung/Elektrik/Waschmaschine/Trockner geben + Waschbecken wenn die Kinder oder der Hund total verdreckt ins Haus möchten
Unser DG wird ebenfalls ausgebaut (mit 80cm Kniestock), dort haben wir noch 34qm (Grundfläche) als Kellerersatzräume vorgesehen. Ansonsten wüssten wir nicht, wohin mir unserem ganzen Krempel...
P.S. 80 Zoll Fernseher würde mir auch gut gefallen


