
MKoni
Hallo, iBeHaElJa:
Meine 1 Antwort war etwas unübersichtlich, sorry.
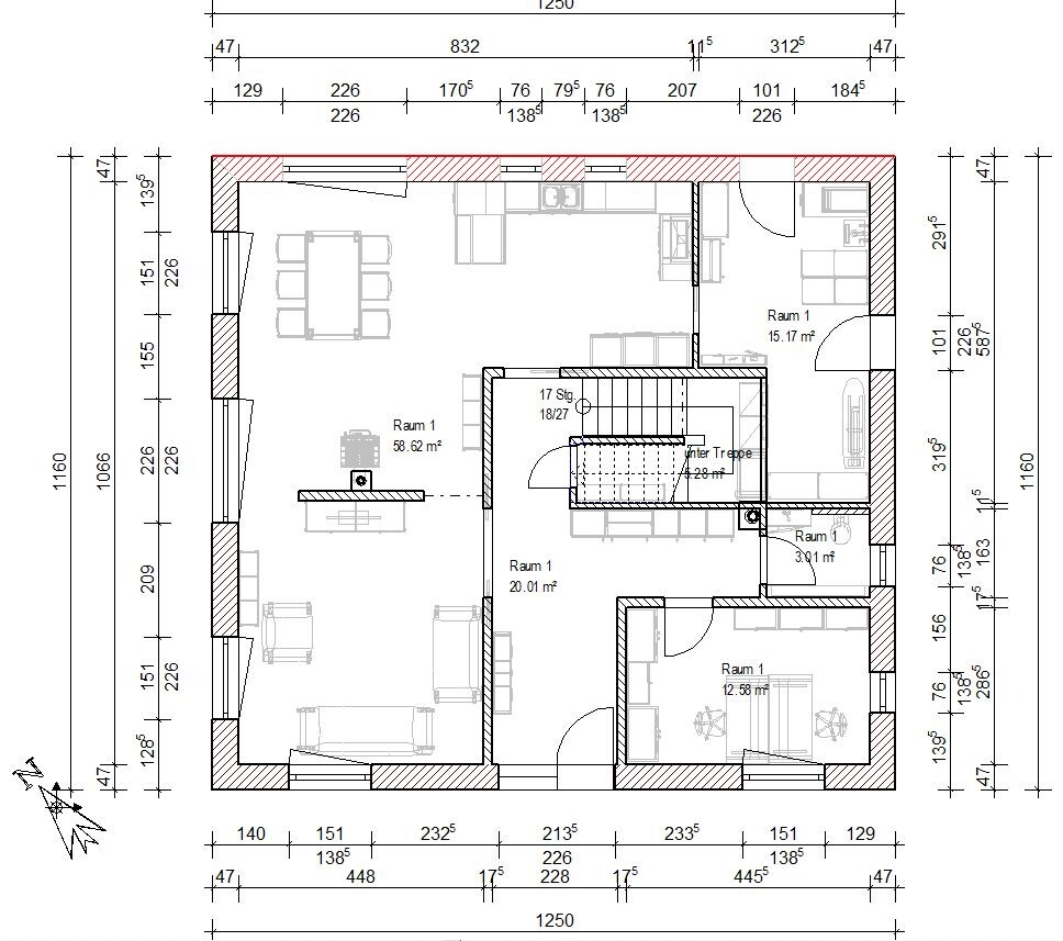
- Flur ggf etwas Dunkel im EG:
= deshalb haben wir die Tür verändert in feststehende Elemente rechts und links und Tür in der Mitte
- 150 cm für die Garderobe ggf. etwas schmal:
= stimmt aber soll halt eine kleine da sein im Flur, in Hauswirtschaftsraum kommt auch was.
- Küche ggf. etwas weit weg vom Eingang - wobei es aus der Garage okay:
= ist direkt so gewollt, wollen direkten Eingang zur Küche vom Hauswirtschaftsraum aus und Zugang zum Raum unter Treppe
- Wäscheniesche finde ich etwas verschwendet:
=auch extra so gemacht mit dem Waschbereich aus dem Hauswirtschaftsraum ausgegrenzt da bedingt durch die 4 Kinder viel Zeit da verbracht wird auch zum bügeln..
- Was ist denn das für eine Eingangstür?:
= siehe oben, haben wir geändert sollte erst 2 Flügel haben
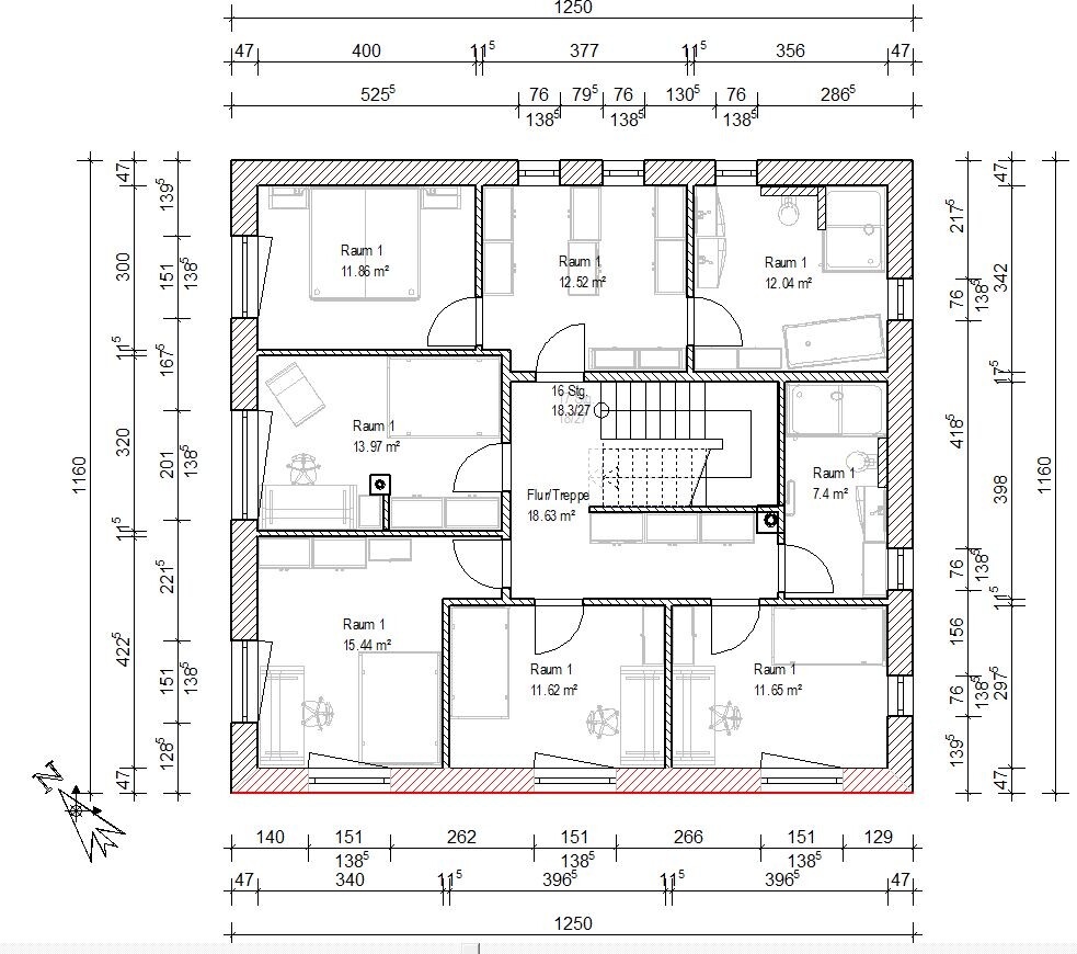
- Stellmöglichkeiten OG in den Kinderzimmer etwas bescheiden:
= stimmt schauen wir was da machen können
- Zugang K2 ungünstig:
=jooooo aber geht
- Bekommt Flur OG noch natürliches Licht irgendwie?:
= aus den zimmern da nicht immer alle Türen zu und über Treppe ins DG kommen Dachfenster
Meine 1 Antwort war etwas unübersichtlich, sorry.
- Flur ggf etwas Dunkel im EG:
= deshalb haben wir die Tür verändert in feststehende Elemente rechts und links und Tür in der Mitte
- 150 cm für die Garderobe ggf. etwas schmal:
= stimmt aber soll halt eine kleine da sein im Flur, in Hauswirtschaftsraum kommt auch was.
- Küche ggf. etwas weit weg vom Eingang - wobei es aus der Garage okay:
= ist direkt so gewollt, wollen direkten Eingang zur Küche vom Hauswirtschaftsraum aus und Zugang zum Raum unter Treppe
- Wäscheniesche finde ich etwas verschwendet:
=auch extra so gemacht mit dem Waschbereich aus dem Hauswirtschaftsraum ausgegrenzt da bedingt durch die 4 Kinder viel Zeit da verbracht wird auch zum bügeln..
- Was ist denn das für eine Eingangstür?:
= siehe oben, haben wir geändert sollte erst 2 Flügel haben
- Stellmöglichkeiten OG in den Kinderzimmer etwas bescheiden:
= stimmt schauen wir was da machen können
- Zugang K2 ungünstig:
=jooooo aber geht
- Bekommt Flur OG noch natürliches Licht irgendwie?:
= aus den zimmern da nicht immer alle Türen zu und über Treppe ins DG kommen Dachfenster