Elektro-Angebot mit KNX - Erfahrungen?

4,80 Stern(e) 13 Votes
Zuletzt aktualisiert 11.01.2026
Sie befinden sich auf der Seite 9 der Diskussion zum Thema: Elektro-Angebot mit KNX - Erfahrungen?
>> Zum 1. Beitrag <<

L

LuckyDuke

Hallo zusammen,

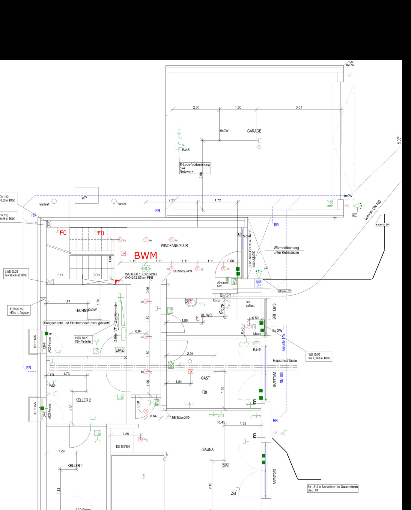
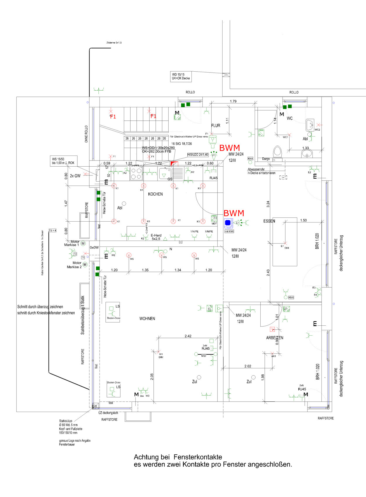
der Elektriker hat den Plan inzwischen zig mal überarbeitet, aber er trifft nie so 100% was ich möchte. Was mich jetzt noch nervt sind die Präsenzmelder und die zugeordneten Lichtgruppen. Insbesondere der Treppenraum und die anschließenden Dielen.

Der Elektriker hat das jetzt so gelöst, dass wenn ich im KG ins Haus komme, geht die Gruppe F0 an. Das ist die komplette Diele und sind die ersten beiden Lichtgruppen des Treppenaufgangs ins EG.

Wenn ich dann im EG ankomme, sieht mich der nächste Melder und F1 geht an, was der Diele im EG sowie den beiden Lichtgruppen des Treppenaufgangs ins OG entspricht.

Im OG schaltet der Bewegungsmelder dann die Gruppe F2 an, die nur die Diele ausleuchtet.

Das Konzept hat allerdings einen gravierenden Nachteil, beim Hinaufgehen folgt alles der oben stehenden Prozedur, beim Heruntergehen hingegen muss ich immer einen Schalter drücken. Das ist doch Quatsch.

Jetzt wollte ich euch mal fragen wie ihr das lösen würdet ohne dass es eine BWM-Orgie wird.

PS: Die Pläne im Anhang. Bei den Lichtgruppen habe ich die im Plan Eingezeichneten teilweise überschrieben, weil das meine Zwischenvorschläge waren und nicht die des Elektriker.

Grundriss eines Hauses mit Küche, Wohnen, Flur, Essen und WC.


Grundriss eines Gebäudeteils mit Räumen BWM, Technik, Sauna, Gast, Keller; Maßlinien


Grundriss eines Wohnhauses mit Schlafzimmer, zwei Kinderräumen, Bad, Flur und Technikbereich.
 
Mycraft

Mycraft

Moderator
Die Pläne sind zu klein geworden. Warum funktioniert die Logik beim heruntergehen nicht und warum muss du einen Schalter drücken?
 
L

LuckyDuke

Weil der Bewegungsmelder aus dem jeweiligen untere Stockwerk einen zu spät sieht.

Die Pläne lassen sich bei mir problemlos anzeigen und vergrößern?

Grüße
Christian
 
M

matte

Weil der Bewegungsmelder aus dem jeweiligen untere Stockwerk einen zu spät sieht.
Wer sagt das? Meine PM im Treppenhaus erkennen mich beim runter gehen immer bei der dritt-/viertletzten Stufe.
Wenn du die PM dann Vorlauf noch ein bisschen näher an die Treppe schiebst, seh ich da kein Problem.

Es gibt ja nirgends eine Legende bei deinen Plänen, aber verstehe ich das richtig, dass du im KG einen Decken-BWM und im EG/OG einen Wand-BWM hast?

Ich würde wohl überall PM an die Decke setzen, aber so platziert, dass ich das Treppenhaus vom Rest (Vorräume im UG/EG und Flur im OG) durch Zonen im PM abtrennen kann.

Ich habe z.b. Merten Argus PM verbaut. bei denen Ist das Sichtfeld in 4 Zonen mit je 90° aufgeteilt. Geschickt platziert (+bisschen abkleben der Zonen) kannst du damit unterschiedliche Leuchten schalten.

Nur mal auf die Schnelle anbei:

Im UG könntest du mit Z4 die Treppe schalten, Z3 schaltet den Flur, Z2 den Eingang.

Im EG schaltet Z1 das Licht zum UG, bzw. könnte das dann auch gleich das Licht in der Diele/Flur UG mitschalten, weil man den eh nur auslöst, wenn man ins UG geht.
Gleiches Spiel mit Z4 für die Treppe zum OG.
Z2/3 wäre für den Flur.

Im OG schaltet Z1/4 das Treppenlicht, Z2/3 das Flurlicht.

Grundriss eines Raums mit zentral rotem BWM; vier blaue Linien zeigen Richtungen 1-4 im Flur.


Grundriss: Innenraum mit Flur, Küche, WC; blaue Wegführung und rote Symbole.


Technischer Grundriss eines Raums mit blauer X-Linie, rotem BWM-Markierung, Flurtext und Notizen.
 
L

LuckyDuke

Wer sagt das? Meine PM im Treppenhaus erkennen mich beim runter gehen immer bei der dritt-/viertletzten Stufe.
Naja wenn das Licht im Treppenraum erst angeht nachdem ich ein paar Stufen gegangen bin ist das meiner Meinung nach Quatsch, das war mein Punkt. Mit der aktuellen Verschaltung vom Elektriker wäre das nämlich so gewesen ..., da der PM oder BWM des jeweiligen Stockwerkes immer nur die Wandleuchtenpaare für den Treppenaufgang triggert. In den BWM steht immer ein F0, F1, F2 ... drin das zeigt an welche Leuchten geschaltet werden.

Ja du hast recht, er hat da Wand-Bewegungsmelder eingeplant auf 1,20 Höhe ..., weiß auch nicht wieso.

Da ich leider keine aktuelle Legende habe, habe ich die Bewegungsmeldersymbole mit BWM in rot beschriftet. Bei den Leuchten dachte ich das sei eine Standardbeschriftung. Es handelt sich jedenfalls bei den roten Kreisen mit Kreuzen drin um Deckenspots und bei den roten Kreuzen an den Wänden um Wandleuchten.

Die "alte" Legende und zusätzlich ein Querschnitt ist jetzt auch noch angehängt.

Die Idee mit den Mehrzonen PM hatte ich auch, aber habe nur solche gefunden, die sich direkt unter dem PM überlappen (wie der von Gira). Aber wenn ich mir deinen Vorschlag anschaue ist das ja eigentlich gar nicht unbedingt Nachteil, weil wenn ich genau unter dem Melder stehe müssen ja alle Bereiche angehen, da ich mich ja für jeden Bereich entscheiden könnte weiterzugehen. Oder meintest du genau das mit abkleben? Also direkt unter dem PM blind machen?

Ich würde aber vllt. im UG bereits die Treppe mitschalten, damit eine bessere Raumtiefe entsteht wenn ich ins Haus komme und nicht in ein dunkles Loch blicke.

Wie würdest du denn die Wandleuchten im Treppenhaus schalten? Immer die beiden über ein Podest verbundenen Paare zusammen? Also wenn ich z.B. ins UG komme, direkt die vier Wandleuchten bis zum EG? Sollte man die Wandleuchtenpaare aber dennoch im Elektroverteiler erst zusammenführen? Dann könnte man bei Bedarf später trotzdem wieder aufteilen.

Könnte man nicht auch immer den kompletten Treppenraum, also alle 4 Treppenaufgänge (4 Paare Wandleuchten) mit der jeweiligen Diele schalten in der ich mich befinde? Dann würden einfache PM oder solche von Busch Jäger mit zwei Zohnen (die für Korridore) genügen oder?

Danke schon mal für Eure Ideen.

Grüße

Übersicht Installationskomponenten: Kommunikation, Sicherheit, KNX, Leuchten, Steckdosen.


Schnitt A-A durch ein zweigeschossiges Haus mit Dachstuhl, Treppenhaus und zwei Etagen
 
Zuletzt aktualisiert 11.01.2026
Im Forum KNX / EIB gibt es 73 Themen mit insgesamt 2451 Beiträgen


Ähnliche Themen zu Elektro-Angebot mit KNX - Erfahrungen?
Nr.ErgebnisBeiträge
1Bewegungsmelder im Flur/Dielenbereich - Seite 427
2Bewegungsmelder und Haustiere bzw. Extraschalter? Erfahrungen? 10
3Bewegungsmelder statt Schalter? 19
4Einstieg Beleuchtungsplanung / Automatisierung 15
5Grundrissplanung: Flur im EG breit genug? 57
6Wie viele Lampen im 7m langen Flur? 13
7Ist KNX Smart-Home die Zukunft? - Seite 77571
8Smarthome- Sinn Unsinn- Möglichkeiten- Pläne und Projekte - Seite 330
9KNX System - Ist dieses Produkt das richtige für mich? - Seite 9239
10Welche Sensoren für was? Inspiration - Seite 276
11Beleuchtung in Diele und Küche: Deckeneinbau-Strahler benötigt? 19
12Decken-Spots Diele oder Küche und Bad 10
13 Elektriker-Rechnung nach 2,5 Jahren - Was sind meine Rechte? 18
14KNX vom Elektriker ohne Programmierung 65
15Abschlagszahlung Elektriker so rechtens? - Seite 223
16Ärger mit dem Elektriker / Toleranzbereich?! - Seite 342
17Was macht der Elektriker während der Rohbauphase? 19
18Baurecht: Elektriker weigert sich weiterzumachen - Seite 378
19Problem mit dem Elektriker - was würdet ihr unternehmen ? 78
20Elektriker Kosteneinschätzung - Neuinstallation 22

Oben