Bebauungsplan/Einschränkungen
Größe des Grundstücks: 566 m2
Hang: Ja
Grundflächenzahl: 0,4
Geschossflächenzahl: 0,7
Baufenster, Baulinie und -grenze
Randbebauung: Nur Garage
Anzahl Stellplatz: 2
Geschossigkeit: Zulässig max 2 Vollgeschosse
Dachform: Satteldach, 22°
Stilrichtung
Ausrichtung: Süd
Maximale Höhen/Begrenzungen: E+1: max. Wandhöhe 6,8m; E+D max. Wandhöhe 4,8m
weitere Vorgaben
Anforderungen der Bauherren
Stilrichtung, Dachform, Gebäudetyp: Einfamilienhaus mit Satteldach
Keller, Geschosse: Kein Keller, 2 Vollgeschosse
Anzahl der Personen, Alter: 4, 33, 33, 2, 0
Raumbedarf im EG, OG
Büro: Familiennutzung oder Homeoffice?: Arbeitszimmer im EG, großer Praxisraum im EG.
Schlafgäste pro Jahr: 0
offene oder geschlossene Architektur: ?
konservativ oder moderne Bauweise: ?
offene Küche, Kochinsel: siehe Grundriss
Anzahl Essplätze: 1
Kamin: Ja
Musik/Stereowand: TV im Wohnzimmer
Balkon, Dachterrasse: Balkon
Garage, Carport: Carport (wenig Platz...)
Nutzgarten, Treibhaus: Nein
weitere Wünsche/Besonderheiten/Tagesablauf, gern auch Begründungen, warum dieses oder das nicht sein soll
Hausentwurf
Von wem stammt die Planung: Von mir (nicht schlagen!!)
Was gefällt besonders? Warum? Wohnen auf einer Ebene (im OG).
Was gefällt nicht? Warum? Wege vom Wohnbereich in den Garten.
Preisschätzung lt Architekt/Planer: ?
Persönliches Preislimit fürs Haus, inkl Ausstattung: 300.000
favorisierte Heiztechnik: Gasbrennwerttherme und Solarthermie auf dem Dach, Fußbodenheizung, (wasserführender) Kaminofen
Wenn Ihr verzichten müsst, auf welche Details/Ausbauten
-könnt Ihr verzichten: schwierig
Warum ist der Entwurf so geworden, wie er jetzt ist? ZB
Spinnerei aus Langeweile, professionelle Beratung fand noch nicht statt.
Was ist die wichtigste/grundlegende Frage zum Grundriss in 130 Zeichen zusammengefasst?
Welche Selbstverständlichkeiten habe ich aus mangelndem Fachwissen völlig falsch bzw. unzureichend berücksichtigt?
Außerdem: Kann ich das Haus überhaupt so "eingraben", dass ich aus dem OG in den oberen Teil des Gartens komme oder gibt das der Hang gar nicht her (--> siehe
"Bebauungsplan.jpg").
Die blaue Linie in den 3D-Ansichten sollen die Baugrenzen sein.


Größe des Grundstücks: 566 m2
Hang: Ja
Grundflächenzahl: 0,4
Geschossflächenzahl: 0,7
Baufenster, Baulinie und -grenze
Randbebauung: Nur Garage
Anzahl Stellplatz: 2
Geschossigkeit: Zulässig max 2 Vollgeschosse
Dachform: Satteldach, 22°
Stilrichtung
Ausrichtung: Süd
Maximale Höhen/Begrenzungen: E+1: max. Wandhöhe 6,8m; E+D max. Wandhöhe 4,8m
weitere Vorgaben
Anforderungen der Bauherren
Stilrichtung, Dachform, Gebäudetyp: Einfamilienhaus mit Satteldach
Keller, Geschosse: Kein Keller, 2 Vollgeschosse
Anzahl der Personen, Alter: 4, 33, 33, 2, 0
Raumbedarf im EG, OG
Büro: Familiennutzung oder Homeoffice?: Arbeitszimmer im EG, großer Praxisraum im EG.
Schlafgäste pro Jahr: 0
offene oder geschlossene Architektur: ?
konservativ oder moderne Bauweise: ?
offene Küche, Kochinsel: siehe Grundriss
Anzahl Essplätze: 1
Kamin: Ja
Musik/Stereowand: TV im Wohnzimmer
Balkon, Dachterrasse: Balkon
Garage, Carport: Carport (wenig Platz...)
Nutzgarten, Treibhaus: Nein
weitere Wünsche/Besonderheiten/Tagesablauf, gern auch Begründungen, warum dieses oder das nicht sein soll
Hausentwurf
Von wem stammt die Planung: Von mir (nicht schlagen!!)
Was gefällt besonders? Warum? Wohnen auf einer Ebene (im OG).
Was gefällt nicht? Warum? Wege vom Wohnbereich in den Garten.
Preisschätzung lt Architekt/Planer: ?
Persönliches Preislimit fürs Haus, inkl Ausstattung: 300.000
favorisierte Heiztechnik: Gasbrennwerttherme und Solarthermie auf dem Dach, Fußbodenheizung, (wasserführender) Kaminofen
Wenn Ihr verzichten müsst, auf welche Details/Ausbauten
-könnt Ihr verzichten: schwierig
Warum ist der Entwurf so geworden, wie er jetzt ist? ZB
Spinnerei aus Langeweile, professionelle Beratung fand noch nicht statt.
Was ist die wichtigste/grundlegende Frage zum Grundriss in 130 Zeichen zusammengefasst?
Welche Selbstverständlichkeiten habe ich aus mangelndem Fachwissen völlig falsch bzw. unzureichend berücksichtigt?
Außerdem: Kann ich das Haus überhaupt so "eingraben", dass ich aus dem OG in den oberen Teil des Gartens komme oder gibt das der Hang gar nicht her (--> siehe
"Bebauungsplan.jpg").
Die blaue Linie in den 3D-Ansichten sollen die Baugrenzen sein.
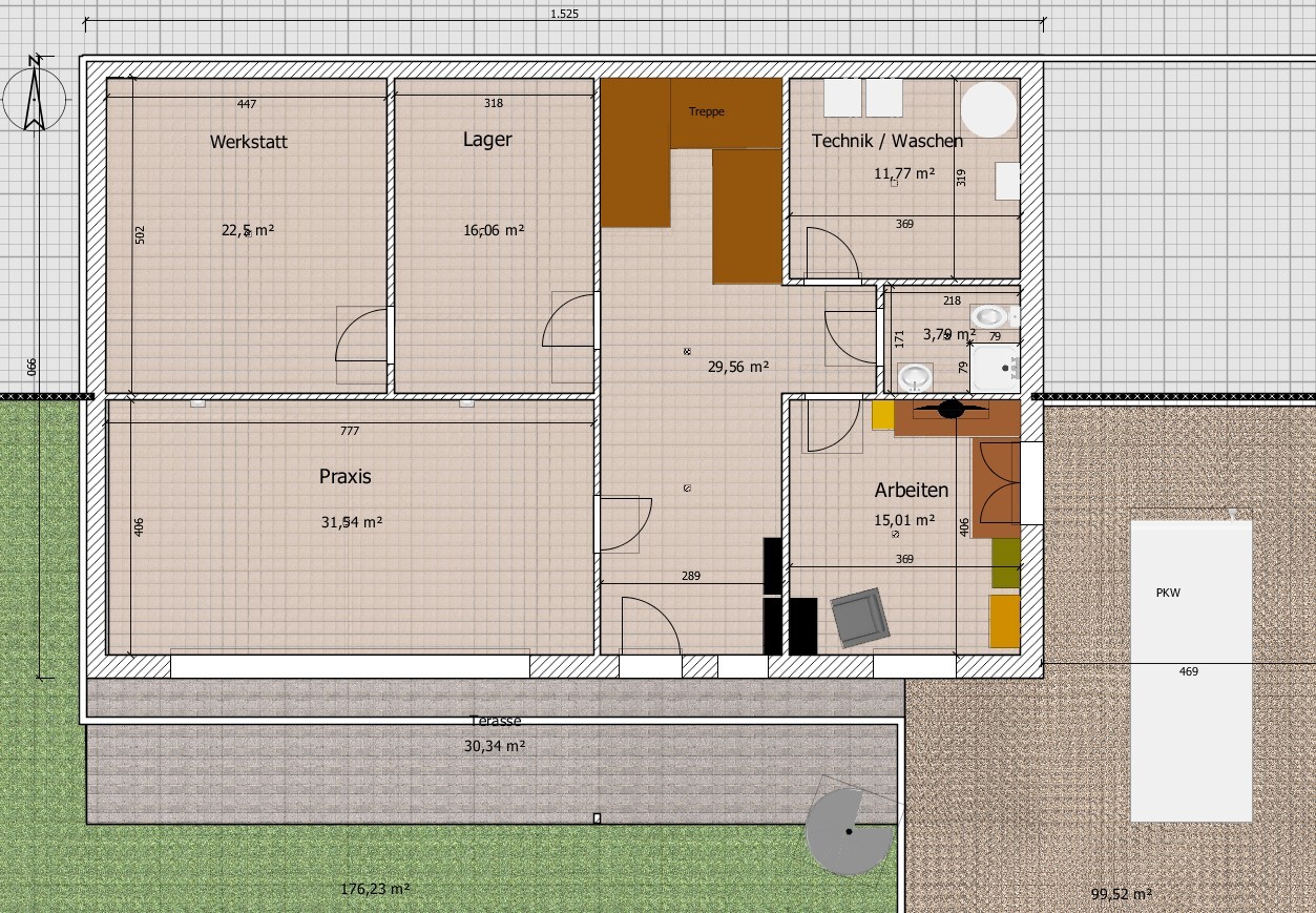
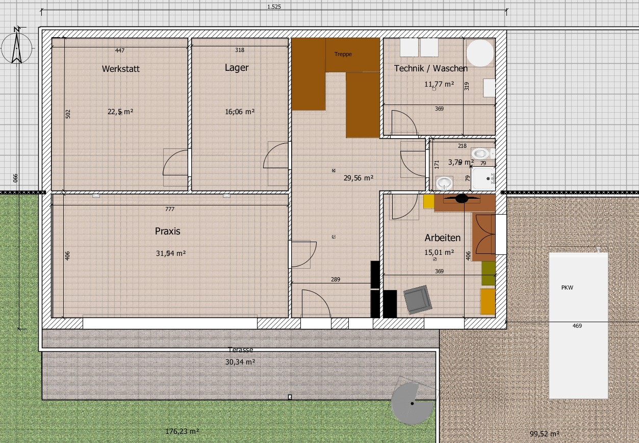
Ich verstehe die Treppe - aber das Hirn, aus dem die kostenlosen Gespinste stammen, versteht sie offenbar nicht. Und mein Hirn fragt sich, wozu man ein 3D-Planungstool benutzt, wenn man das grundsätzliche Nichtfunktionieren der Treppe dennoch nicht erkennt. Daß diese ins Wohnzimmer mündet, wird dabei geradezu zu Petitesse.
Was soll in der Praxis praktiziert werden ?
Durch das Lager in die Werkstatt zu gehen, erscheint mir verkehrt herum.
Als gemalte Wunschliste an Katja mag die Planung taugen; die Räume werden meist in budgetadäquater Verkleinerung noch funktionieren ;-)
https://www.instagram.com/11antgmxde/
https://www.linkedin.com/company/bauen-jetzt/
Was soll in der Praxis praktiziert werden ?
Durch das Lager in die Werkstatt zu gehen, erscheint mir verkehrt herum.
Als gemalte Wunschliste an Katja mag die Planung taugen; die Räume werden meist in budgetadäquater Verkleinerung noch funktionieren ;-)
https://www.instagram.com/11antgmxde/
https://www.linkedin.com/company/bauen-jetzt/
Ähnliche Themen