Einfamilienhaus-Optimierung und -Planung (180qm + DG ohne Keller)

4,80 Stern(e) 4 Votes
Zuletzt aktualisiert 20.11.2025
Sie befinden sich auf der Seite 23 der Diskussion zum Thema: Einfamilienhaus-Optimierung und -Planung (180qm + DG ohne Keller)
>> Zum 1. Beitrag <<

P

phil12345

Ich möchte einmal den Grundriss von @kaho674 von Beitrag #46 aufgreifen.

Zimmerliste begonnen mit OG: Elternschlaf, Ankleide, Elternbad, 2x Kinderzimmer gerne zu Süd, Kinderbad.
EG: großes Wohnen/Essen/Kochen zu Südgarten. 1 Homeoffice / Gäste, 1 Bad, 1 Hauswirtschaftsraum, 1 Eingang

Das OG sieht im Ursprung wie folgt aus:


Grundriss eines Hauses mit Wohnzimmer, Küche und Flur


Hier würde ich sehr gerne die Tür vom Flur zum Elternschlafzimmer entfernen und gegen eine Tür von Ankleide zu Elternschlaf austauschen. Der Vorschlag der dickeren Wand von Elternschlaf zu Kinderzimmer ist gut und da gehe ich mit. Der Rest kann so bleiben.

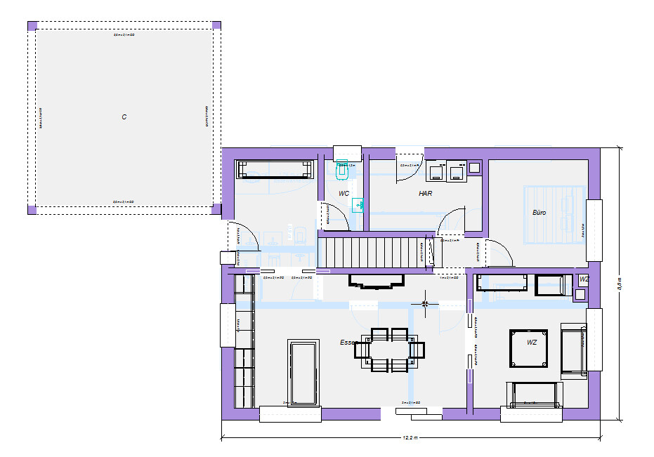
Das UG sieht im Ursprung so aus:


Grundriss eines Wohnhauses mit Büro, WZ, Essen, HAR, WC, Treppenhaus und Terrasse


Hier stört mich der lange Weg von der Küche zum Hauswirtschaftsraum / Speise. Ich würde somit Bad und Hauswirtschaftsraum tauschen. Ergibt auch für mich Sinn in Kombination mit Gäste/Büro. Die Trennwand von Essen zu Wohnen würde ich entfernen und stattdessen zwischen Küche und Essen ziehen. Die Terrassentür würde ich größer gestalten, falls möglich.

Die Laufwege von oben führen jedoch immer durch Küche und Essen, wenn man zum Wohnen oder HO möchte.
 
H

haydee

Das mit den Laufwegen finde ich nicht schlimm.
Würde evtl die große Schiebetüre zwischen Essen und Wohnen lassen. Dadurch kann das Wohnzimmer separiert werden
 
P

phil12345

Ich würde lieber die Küche separieren können, weil wir doch sehr gerne zusammensitzen (Wohnzimmer oder Esszimmer) und so unaufgeräumte Küche „zuschieben“ können.

Sind die Laufwege Hauswirtschaftsraum-Küche, Wohnzimmer-Bad und Eingang-Wohnen durch Küche wirklich weniger schlimm als es aussieht? So müsste ich meine Einkauefe und Konserven jedes Mal durch Eingang, Küche, Esszimmer zum Hauswirtschaftsraum schleppen und umgekehrt, wenn ich damit arbeiten möchte? Einen direkten Weg von Hauswirtschaftsraum zu Garage (wo Bier gerne dunkel und kühl lagert) haben wir hier durch das fiktive Carport nicht. OG ist absolut Bombe. Nun braucht es nur noch ein EG....
 
W

Würfel*

Finde den Grundriss auch echt gelungen.

Würde ebenfalls die Schiebetür zwischen Essen und Wohnen lassen. Dann hast Du im WZ einen Rückzugsort. Wenn du die Tür zwischen Küche und Essen machst, musst Du ja beim Reinkommen als allererstes durch die Küche, um Wohn-Esszimmer und Büro zu erreichen. Das ist vom Gefühl her befremdlich. Wenn das aber ein "Allraum" ist, ist es ganz normal, dass man da durch muss. Bei ganz vielen kleineren Häusern und Doppelhaushälfte liegt die Treppe am Essbereich an - allerdings offen. Denk Dir mal die Wand an der Treppe weg, dann hast Du genau die gleiche Situation. Alternativ lässt Du die Trennung komplett weg und hast einen großen Allraum: Koch - Ess- WZ. Ich würde eine richtige Insel aus der Kücheninsel machen und die ganze planuntere Seite großzügig verglasen - bodentief.

Tausch Hauswirtschaftsraum und Gäste-WC finde ich sehr gut. Ich würde wohl noch eine Tür vom Esszimmer zu diesem Miniflur Richtung Büro machen, wenn das WC dahin kommt.

OG ist mit Deinem Änderungswunsch top.
 
H

haydee

Die Küche ist groß. Das meiste lagerst du dort.
Du kannst Bad und Hauswirtschaftsraum tauschen.
Wichtig ist wenig Türen. Die drei Schritte mehr stören nicht.

Bei Kindern ist der Allraum super
Bei Teenagern hat man gerne mal seine Ruhe und möchte Samstag um 22 Uhr im Schlabberlook auf dem Sofa Sitzen
Du willst Fußball schauen deine Frau quatschten
 
P

phil12345

Wir diskutieren gerade das EG. (Sowas kann ganz gut Familienstreitereien auslösen wie ich merke)

Die Bauherrin hätte gerne einen Flur, damit wir nicht immer durch die Küche müssen.

Ich hätte gerne den Hauswirtschaftsraum direkt verbunden als Schleuse mit der Garage.

Könnte mir bitte jemand eine Idee skizzieren, wie wir dies realisieren können? Das OG passt soweit, aber ich fange wieder an, sämtliche Räume zu schieben.
 
Zuletzt aktualisiert 20.11.2025
Im Forum Grundrissplanung / Grundstücksplanung gibt es 2535 Themen mit insgesamt 87977 Beiträgen


Ähnliche Themen zu Einfamilienhaus-Optimierung und -Planung (180qm + DG ohne Keller)
Nr.ErgebnisBeiträge
1Eure Meinung zum Grundriss für das EG - Seite 228
2alternativer Grundriss Bungalow 140m² 84
3Grundriss-Planung, 2 Vollgeschosse, ca. 130-140 qm ohne Keller - Seite 12192
4Grundriss für 150qm Einfamilienhaus mit Wohnzimmer nach Norden - Seite 321
5Grundriss Einfamilienhaus ohne Keller, 3 Kinderzimmer und Büro 18
6Wie findet ihr diesen Grundriss? - Seite 211
7Feedback zu Grundriss Einfamilienhaus erwünscht 18
8Anregung - Kritik Grundriss Einfamilienhaus 320qm 29
9Gestaltung Grundriss. Was sind eure Meinungen / Vorschläge? 15
10Meinung zum Grundriss / Zwei verbesserungswürdige Punkte. 17
11Grundriss Einfamilienhaus - Beurteilung 27
12Grundriss - Anregungen & Kritik erwünscht! - Seite 226
13Grundriss - Eure Meinungen, Ideen und Vorschläge 31
14Grundriss 142 m² Eure Meinung ist gefragt? :) 18
15Grundriss Erstskizze - Verbesserungswürdig? - Seite 542
16Doppelhaushälfte - Verbesserungen im Grundriss 15
17Grundriss Satteldachhaus 172 qm - Bitte um eure Meinungen 23
18Grundriss 2-geschossige Stadtvilla - Änderungsvorschläge/Ideen 12
19Grundriss Einfamilienhaus 170qm Tipps und meinungen 21
20Stadtvilla Grundriss 185m² - Bitte um Feedback! - Seite 13155

Oben