Bebauungsplan/Einschränkungen
Größe des Grundstücks 512m²
Hang Ja
Grundflächenzahl 0,4
Geschossflächenzahl N/A
Baufenster, Baulinie und -grenze Siehe Übersicht
Randbebauung N/A
Anzahl Stellplatz 3
Geschossigkeit 2
Dachform SD
Stilrichtung N/A
Ausrichtung Garten zum Westen
Maximale Höhen/Begrenzungen: 9m Firsthöhe ab bestimmtem Geländepunkt auf Grundstück
weitere Vorgaben
Anforderungen der Bauherren
Stilrichtung, Dachform, Gebäudetyp: Einfamilienhaus 2 Vollgeschosse Satteldach
Keller, Geschosse: Keller Ja, 2 Vollgeschosse
Anzahl der Personen, Alter: aktuell 3, bald 4, geplant 5 -> Personen: 2x Ü30, 1x 1, 1x Bauch, 1x geplant
Raumbedarf im EG, OG:
EG: Küche (wenn möglich mit Speisekammer), Essen, Wohnen, Toilette, Hauswirtschaftsraum.
OG: 3 Kinderzimmer, 1 Abstellraum.
EG oder OG: Elternbereich mit eigenem Bad, Büro
Büro: Familiennutzung oder Homeoffice?: Homeoffice
Schlafgäste pro Jahr: ~40 Nächte pro Jahr besuch (3x Eltern und Geschwister wohnen alle weit weg...)
offene oder geschlossene Architektur: Offen?
konservativ oder moderne Bauweise: ???
offene Küche, Kochinsel: offene Küche mit Kochinsel gewünscht
Anzahl Essplätze: 8
Kamin: Nein
Musik/Stereowand: Ja beim Fernseher
Balkon, Dachterrasse: Nein
Garage, Carport: Ja, 1 Garage im Haus und entweder eine weitere Garage oder Carport neben dem Haus
Nutzgarten, Treibhaus: Nein
weitere Wünsche/Besonderheiten/Tagesablauf, gern auch Begründungen, warum dieses oder das nicht sein soll: N/A
Hausentwurf
Von wem stammt die Planung: Architekt
Was gefällt besonders? Warum? Uns Gefällt fast alles am Grundriss sehr gut, besonders die Möglichkeit wenn die Kinder klein sind im OG das Büro zu beziehen und das Büro solange ins EG zu packen, wenn die Kinder aber etwas älter sind, dann ins EG ziehen zu können.
Was gefällt nicht? Warum? Uns fallen nur noch Kleinigkeiten auf, die wir noch einarbeiten lassen würden. Da jetzt über Weihnachten aber nichts mehr überarbeitet wird, öffnet uns gerne die Augen
Preisschätzung laut Architekt/Planer: 790.000€ mit Nebenkosten/Photovoltaik/Küche/Einfahrt/Terrasse ohne Ausbau Einliegerwohnung
Persönliches Preislimit fürs Haus, inkl. Ausstattung: 800.000
favorisierte Heiztechnik: Luft-Wasser-Wärmepumpe
Wenn Ihr verzichten müsst, auf welche Details/Ausbauten
-könnt Ihr verzichten: Keller (Sollten wir aber nicht aufgrund der Hanglage), Einliegerwohnung (Gästezimmer würde ansonsten auch ausreichen)
-könnt Ihr nicht verzichten: 2 Duschbäder für Eltern/Kinder, gerade Treppe
Warum ist der Entwurf so geworden, wie er jetzt ist? ZB
Wir wollten zuerst sehr gerne einfach ohne Keller bauen um unser Budget nicht ausreizen zu müssen. Die ersten Planungen hatten dann aber sehr steile Einfahrten oder die Einfahrt war auf der Südseite. Da wir aber seit vielen Monaten hier immer sehr viel mitlesen, sind wir aufgrund der leichten Hanglage dazu gekommen, dass wir einen Vermesser beauftragen sollte um klarheit bei der Planung zu haben. Und ja, was soll ich sagen, unser Grundstück ist dann Opfer der 11ant'schen Kellerregel geworden 😱. Dementsprechend haben wir weiter geplant, etwas kleiner aber diesmal mit Keller. Da wir den Platz im Keller nicht wirklich benötigen, haben wir dort nun eine zum Ausbau vorbereitete Einliegerwohnung drin, wo wir erstmal nur das Bad machen lassen würden und den Rest dann selbst ausbauen würden und um bereits einen Stellplatz zu haben die Garage ins Haus gelegt. Wir haben viel Überlegt ob wir einen richtigen Flur haben möchten. Letztendlich haben wir es in der aktuellen Planung aber wieder offen, da die Planungen mit Flur sehr eng für die Küche und das Esszimmer geworden wären.
Die Möbelpositionen sind in dem Grundriss auch nur Beispiele und wir würden vermutlich noch ein bisschen was ändern, z.B. Die Küche eher im L Laufen lassen mit durchgang durch Schrank in die Speisekammer oder im Wohnzimmer die Couch eventuell eher hinten in die Ecke und ein entsprechendes Fenster mit Brüstungshöhe etwas vorziehen. Auch soll die Terrasse nur in Richtung Westseite gehen und jeweils eine Tür aus der Küche und vom Essbereich rausgehen. In Richtung Süden vom Essbereich aus würde dann nur ein Festverglastes Fenster sein.
Da wir nun aber langsam in Richtung Vertragsunterschrift gehen, würde ich gerne mal euer Feedback hören und ob es Sinn macht noch die ein oder andere Sache zu ändern und in das Angebot kalkulieren zu lassen oder wir den Grundriss von neu denken sollten.
Vielen Dank bereits für das Feedback!
UG:

EG:

OG:

DG:

Ansicht Nord:

Ansicht Ost:

Ansicht Süd:

Ansicht West:
Größe des Grundstücks 512m²
Hang Ja
Grundflächenzahl 0,4
Geschossflächenzahl N/A
Baufenster, Baulinie und -grenze Siehe Übersicht
Randbebauung N/A
Anzahl Stellplatz 3
Geschossigkeit 2
Dachform SD
Stilrichtung N/A
Ausrichtung Garten zum Westen
Maximale Höhen/Begrenzungen: 9m Firsthöhe ab bestimmtem Geländepunkt auf Grundstück
weitere Vorgaben
Anforderungen der Bauherren
Stilrichtung, Dachform, Gebäudetyp: Einfamilienhaus 2 Vollgeschosse Satteldach
Keller, Geschosse: Keller Ja, 2 Vollgeschosse
Anzahl der Personen, Alter: aktuell 3, bald 4, geplant 5 -> Personen: 2x Ü30, 1x 1, 1x Bauch, 1x geplant
Raumbedarf im EG, OG:
EG: Küche (wenn möglich mit Speisekammer), Essen, Wohnen, Toilette, Hauswirtschaftsraum.
OG: 3 Kinderzimmer, 1 Abstellraum.
EG oder OG: Elternbereich mit eigenem Bad, Büro
Büro: Familiennutzung oder Homeoffice?: Homeoffice
Schlafgäste pro Jahr: ~40 Nächte pro Jahr besuch (3x Eltern und Geschwister wohnen alle weit weg...)
offene oder geschlossene Architektur: Offen?
konservativ oder moderne Bauweise: ???
offene Küche, Kochinsel: offene Küche mit Kochinsel gewünscht
Anzahl Essplätze: 8
Kamin: Nein
Musik/Stereowand: Ja beim Fernseher
Balkon, Dachterrasse: Nein
Garage, Carport: Ja, 1 Garage im Haus und entweder eine weitere Garage oder Carport neben dem Haus
Nutzgarten, Treibhaus: Nein
weitere Wünsche/Besonderheiten/Tagesablauf, gern auch Begründungen, warum dieses oder das nicht sein soll: N/A
Hausentwurf
Von wem stammt die Planung: Architekt
Was gefällt besonders? Warum? Uns Gefällt fast alles am Grundriss sehr gut, besonders die Möglichkeit wenn die Kinder klein sind im OG das Büro zu beziehen und das Büro solange ins EG zu packen, wenn die Kinder aber etwas älter sind, dann ins EG ziehen zu können.
Was gefällt nicht? Warum? Uns fallen nur noch Kleinigkeiten auf, die wir noch einarbeiten lassen würden. Da jetzt über Weihnachten aber nichts mehr überarbeitet wird, öffnet uns gerne die Augen
Preisschätzung laut Architekt/Planer: 790.000€ mit Nebenkosten/Photovoltaik/Küche/Einfahrt/Terrasse ohne Ausbau Einliegerwohnung
Persönliches Preislimit fürs Haus, inkl. Ausstattung: 800.000
favorisierte Heiztechnik: Luft-Wasser-Wärmepumpe
Wenn Ihr verzichten müsst, auf welche Details/Ausbauten
-könnt Ihr verzichten: Keller (Sollten wir aber nicht aufgrund der Hanglage), Einliegerwohnung (Gästezimmer würde ansonsten auch ausreichen)
-könnt Ihr nicht verzichten: 2 Duschbäder für Eltern/Kinder, gerade Treppe
Warum ist der Entwurf so geworden, wie er jetzt ist? ZB
Wir wollten zuerst sehr gerne einfach ohne Keller bauen um unser Budget nicht ausreizen zu müssen. Die ersten Planungen hatten dann aber sehr steile Einfahrten oder die Einfahrt war auf der Südseite. Da wir aber seit vielen Monaten hier immer sehr viel mitlesen, sind wir aufgrund der leichten Hanglage dazu gekommen, dass wir einen Vermesser beauftragen sollte um klarheit bei der Planung zu haben. Und ja, was soll ich sagen, unser Grundstück ist dann Opfer der 11ant'schen Kellerregel geworden 😱. Dementsprechend haben wir weiter geplant, etwas kleiner aber diesmal mit Keller. Da wir den Platz im Keller nicht wirklich benötigen, haben wir dort nun eine zum Ausbau vorbereitete Einliegerwohnung drin, wo wir erstmal nur das Bad machen lassen würden und den Rest dann selbst ausbauen würden und um bereits einen Stellplatz zu haben die Garage ins Haus gelegt. Wir haben viel Überlegt ob wir einen richtigen Flur haben möchten. Letztendlich haben wir es in der aktuellen Planung aber wieder offen, da die Planungen mit Flur sehr eng für die Küche und das Esszimmer geworden wären.
Die Möbelpositionen sind in dem Grundriss auch nur Beispiele und wir würden vermutlich noch ein bisschen was ändern, z.B. Die Küche eher im L Laufen lassen mit durchgang durch Schrank in die Speisekammer oder im Wohnzimmer die Couch eventuell eher hinten in die Ecke und ein entsprechendes Fenster mit Brüstungshöhe etwas vorziehen. Auch soll die Terrasse nur in Richtung Westseite gehen und jeweils eine Tür aus der Küche und vom Essbereich rausgehen. In Richtung Süden vom Essbereich aus würde dann nur ein Festverglastes Fenster sein.
Da wir nun aber langsam in Richtung Vertragsunterschrift gehen, würde ich gerne mal euer Feedback hören und ob es Sinn macht noch die ein oder andere Sache zu ändern und in das Angebot kalkulieren zu lassen oder wir den Grundriss von neu denken sollten.
Vielen Dank bereits für das Feedback!
UG:
EG:
OG:
DG:
Ansicht Nord:
Ansicht Ost:
Ansicht Süd:
Ansicht West:
huhxkux schrieb:
Ich würde hier zwar in Frage stellen ob man eine 2. Tür in den Hauswirtschaftsraum benötigtDu kannst auch die in der Küche weglassen. Eine vernünftige Tür vom Flur aus gewährleistet ua den Wäschetransport. Speis-Rür wäre schmaler.huhxkux schrieb:
Walk-In Dusche nicht mehr möglich sein wird.Die ist noch möglich.M
MachsSelbst28.12.25 21:23Nee du bist bei wesentlich mehr, denn es wird in der Regel ein Überstand von 1 bis 2m für jede Hausseite mehr ausgebaggert. Beim Keller als Arbeitsraum an der Außewand, bei der Bodenplatte einfach als Arbeitsfläche für Gerüst, Baumaschinen, usw.
So kommt es dann, dass man für ein Haus 10x10x1m nicht 100m³ ausbuddelt, sondern 12x12. Eher 14x14, also 196m². Und daraus werden dann gelockert knapp 400m²...
So kommt es dann, dass man für ein Haus 10x10x1m nicht 100m³ ausbuddelt, sondern 12x12. Eher 14x14, also 196m². Und daraus werden dann gelockert knapp 400m²...
Danke für die konkrete Nachfrage, ob mir etwas besser gefallen würde. Das ist aber zu viel des Lobes, da ich ganz weit weg bin von einem ambitionierten Laien in Sachen Grundriss. Ich möchte bei diesen Themen ausschließlich Ideen und Gedanken einwerfen, die mir auffallen. Und das nur aus privaten Erfahrungen.
Ich bin eher ein wenig im Thema Haustechnik. Insofern: wenn ihr gut euch etwas entscheidet, trotz der hiesigen "Hinweise", dann ist das total gut und richtig. Ihr baut ja für euch, nicht für andere. Mir geht es nur um die Vermeidung blinder Flecken.
Ich bin eher ein wenig im Thema Haustechnik. Insofern: wenn ihr gut euch etwas entscheidet, trotz der hiesigen "Hinweise", dann ist das total gut und richtig. Ihr baut ja für euch, nicht für andere. Mir geht es nur um die Vermeidung blinder Flecken.
MachsSelbst schrieb:
Nee du bist bei wesentlich mehr, denn es wird in der Regel ein Überstand von 1 bis 2m für jede Hausseite mehr ausgebaggert. Beim Keller als Arbeitsraum an der Außewand, bei der Bodenplatte einfach als Arbeitsfläche für Gerüst, Baumaschinen, usw.
So kommt es dann, dass man für ein Haus 10x10x1m nicht 100m³ ausbuddelt, sondern 12x12. Eher 14x14, also 196m². Und daraus werden dann gelockert knapp 400m²...Aber der Überstand muss dann ja am Ende auch wieder befüllt werden oder muss dies mit besonderem Material getan werden und kann hierzu nicht der vorhandene Aushub verwendet werden?So nach nun etwas Zeit und vielen Gesprächen und unterschiedlichen Varianten mit unserem Architekten, hier mal ein Update bezüglich der aktuellen Planung:
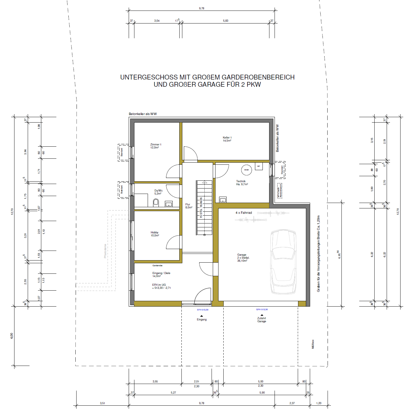
Zuerst das UG:
Hier haben wir die Einliegerwohnung entfernt und dafür einen großen Garderobenbereich geschaffen. Den Keller haben wir etwas vergrößert und dann trotzdem noch 2 kleiner Zimmer und ein WC mit kleiner Dusche unten. Wir haben das WC nicht ganz nah an den Eingang geplant, da wir lieber noch ein Zimmer mit richtigem Fenster haben wollten als den Platz für ein kleines Bad zu "verschwenden". Wir denken aber die 3m extra Weg sind zu verkraften.
Bezüglich unseres "Problems" mit den 2 Stellplätzen, hat der Architekt nun vorgeschlagen anstatt ein Carport + teure Abstützarbeiten oder eine Fertiggarage neben dem Haus, wodurch dann die Versorgungsleitungen durch die Garage gelegt werden müssten, eine große Garage mit etwas überstand und planen. Wir haben dies kalkulieren lassen und tatsächlich sind am Ende alle 3 Optionen in etwa Preisgleich und wir finden, die mit der großen Garage und dafür etwas weniger Stauraum in der Garage am besten geeignet, wobei wir hier noch Diskutieren ob wir die Garage an der Außenwand noch um etwa 1,5m erweitern und dann eine kleine Abstellnische (2x1,5m) in der Garage erhalten um Sachen wie Dachbox, Fahrradträger und Reifen ungestört abzustellen.

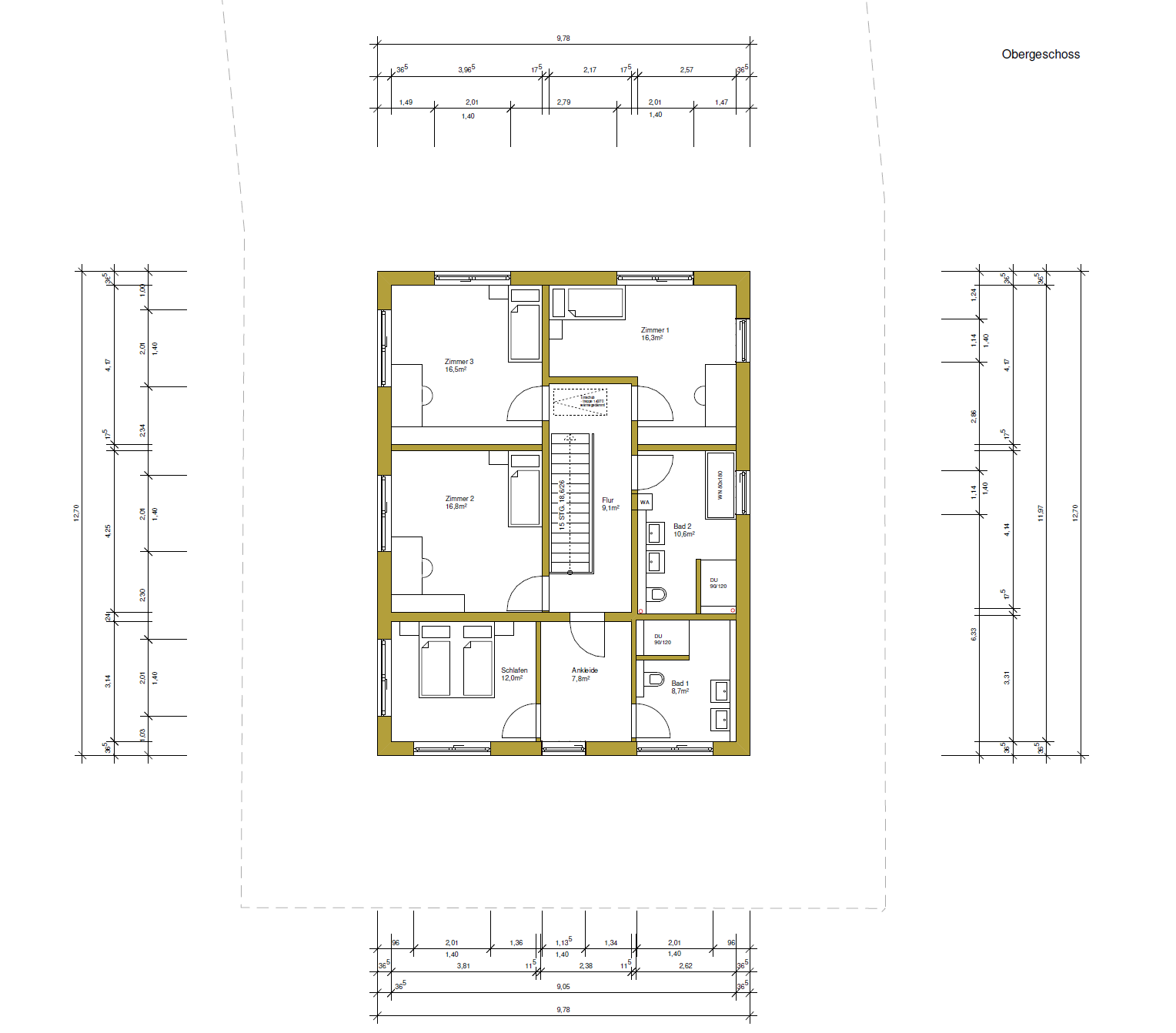
Dann zum Obergeschoss. Hier wollten wir das Bad etwas verkleinern und haben auch nochmal die Funktion des Abstellraums hinterfragt, da wir als alternatives Büro nun ja auch noch das "Hobby" Zimmer im UG hätten und zum Abstellen natürlich auch ein paar Sachen hoch auch den Spitzboden legen können. Durch den Platzgewinn, konnten wir dann den Elternbereich wieder nach oben ziehen, wodurch wir im Erdgeschoss etwas mehr Platz haben. Hier sind wir uns nun aber unsicher ob das Bad nun zu Eng ist und vor allem glauben wir, dass 1,2m als Duschwand vermutlich nicht ausreichend lang ist um ohne Tür auszukommen.
Wir hatten auch versucht die Treppe ein stück nach unten zu ziehen , dies hat aber in den Varianten dann einfach nie gut mit den 3 Zimmern funktioniert.

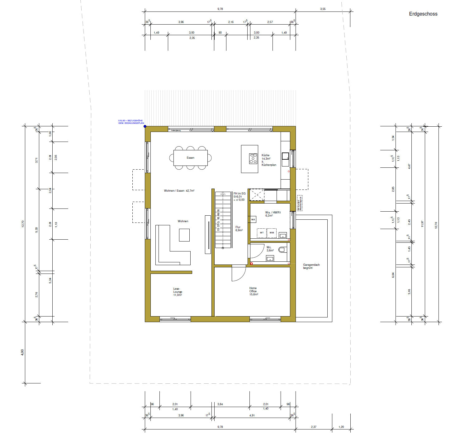
Im EG haben wir uns durch die Thematik oben nun erstmal damit abgefunden, dass die Treppe dort endet wo sie endet. Ansonsten hat der Architekt die Planung vom Küchenstudio in den Grundriss übernommen und so wie es aussieht, sollte uns die größe der Küche erstmal ausreichen. Die Speisekammer ist nun auch Waschküche wobei wir hier keine weitere Tür platztechnisch einbauen wollten. Wir denken allerdings das die 80cm Schiebetür ausreichend breit ist und dies sowieso der direkte Weg nach draußen zum aufhängen ist. Die Anordnung wird unserer Meinung auch eher sein, dass wir links den Waschbereich haben und rechts den Speisekammer Bereich, aber dies sind noch details. vor allem solange wir mit dem Bad im OG noch nicht zu 100% zufrieden sind und sich so die Position des Wäscheschachts noch verändern könnte. Das WC soll noch ein kleines Fenster bekommen, ist uns ansonsten aber von der Größe her ausreichend für das EG. Das Wohnzimmer haben wir etwas verlängert, sodass wir etwas mehr Platz zwischen Essbereich und Couch haben, wo wir dann vor allem in den nächsten Jahren Platz für ein bisschen Spielbereich für die Kinder haben. Zusätzlich haben wir noch einen etwas abgetrennten aber trotzdem offenen Bereich hinter dem Wohnzimmer eingeplant, den wir als gemütliche Ecke zum lesen oder einfach etas zurückziehen und entspannen geplant haben.

Zuerst das UG:
Hier haben wir die Einliegerwohnung entfernt und dafür einen großen Garderobenbereich geschaffen. Den Keller haben wir etwas vergrößert und dann trotzdem noch 2 kleiner Zimmer und ein WC mit kleiner Dusche unten. Wir haben das WC nicht ganz nah an den Eingang geplant, da wir lieber noch ein Zimmer mit richtigem Fenster haben wollten als den Platz für ein kleines Bad zu "verschwenden". Wir denken aber die 3m extra Weg sind zu verkraften.
Bezüglich unseres "Problems" mit den 2 Stellplätzen, hat der Architekt nun vorgeschlagen anstatt ein Carport + teure Abstützarbeiten oder eine Fertiggarage neben dem Haus, wodurch dann die Versorgungsleitungen durch die Garage gelegt werden müssten, eine große Garage mit etwas überstand und planen. Wir haben dies kalkulieren lassen und tatsächlich sind am Ende alle 3 Optionen in etwa Preisgleich und wir finden, die mit der großen Garage und dafür etwas weniger Stauraum in der Garage am besten geeignet, wobei wir hier noch Diskutieren ob wir die Garage an der Außenwand noch um etwa 1,5m erweitern und dann eine kleine Abstellnische (2x1,5m) in der Garage erhalten um Sachen wie Dachbox, Fahrradträger und Reifen ungestört abzustellen.
Dann zum Obergeschoss. Hier wollten wir das Bad etwas verkleinern und haben auch nochmal die Funktion des Abstellraums hinterfragt, da wir als alternatives Büro nun ja auch noch das "Hobby" Zimmer im UG hätten und zum Abstellen natürlich auch ein paar Sachen hoch auch den Spitzboden legen können. Durch den Platzgewinn, konnten wir dann den Elternbereich wieder nach oben ziehen, wodurch wir im Erdgeschoss etwas mehr Platz haben. Hier sind wir uns nun aber unsicher ob das Bad nun zu Eng ist und vor allem glauben wir, dass 1,2m als Duschwand vermutlich nicht ausreichend lang ist um ohne Tür auszukommen.
Wir hatten auch versucht die Treppe ein stück nach unten zu ziehen , dies hat aber in den Varianten dann einfach nie gut mit den 3 Zimmern funktioniert.
Im EG haben wir uns durch die Thematik oben nun erstmal damit abgefunden, dass die Treppe dort endet wo sie endet. Ansonsten hat der Architekt die Planung vom Küchenstudio in den Grundriss übernommen und so wie es aussieht, sollte uns die größe der Küche erstmal ausreichen. Die Speisekammer ist nun auch Waschküche wobei wir hier keine weitere Tür platztechnisch einbauen wollten. Wir denken allerdings das die 80cm Schiebetür ausreichend breit ist und dies sowieso der direkte Weg nach draußen zum aufhängen ist. Die Anordnung wird unserer Meinung auch eher sein, dass wir links den Waschbereich haben und rechts den Speisekammer Bereich, aber dies sind noch details. vor allem solange wir mit dem Bad im OG noch nicht zu 100% zufrieden sind und sich so die Position des Wäscheschachts noch verändern könnte. Das WC soll noch ein kleines Fenster bekommen, ist uns ansonsten aber von der Größe her ausreichend für das EG. Das Wohnzimmer haben wir etwas verlängert, sodass wir etwas mehr Platz zwischen Essbereich und Couch haben, wo wir dann vor allem in den nächsten Jahren Platz für ein bisschen Spielbereich für die Kinder haben. Zusätzlich haben wir noch einen etwas abgetrennten aber trotzdem offenen Bereich hinter dem Wohnzimmer eingeplant, den wir als gemütliche Ecke zum lesen oder einfach etas zurückziehen und entspannen geplant haben.
N
nordanney07.01.26 20:29huhxkux schrieb:
glauben wir, dass 1,2m als Duschwand vermutlich nicht ausreichend langDas wird entspannt reichen. Aus Erfahrung - außer Ihr plantscht wie im Schwimmbad, aber dann ist keine Wand lang genug.Ähnliche Themen