Bebauungsplan/Einschränkungen
Größe des Grundstücks 512m²
Hang Ja
Grundflächenzahl 0,4
Geschossflächenzahl N/A
Baufenster, Baulinie und -grenze Siehe Übersicht
Randbebauung N/A
Anzahl Stellplatz 3
Geschossigkeit 2
Dachform SD
Stilrichtung N/A
Ausrichtung Garten zum Westen
Maximale Höhen/Begrenzungen: 9m Firsthöhe ab bestimmtem Geländepunkt auf Grundstück
weitere Vorgaben
Anforderungen der Bauherren
Stilrichtung, Dachform, Gebäudetyp: Einfamilienhaus 2 Vollgeschosse Satteldach
Keller, Geschosse: Keller Ja, 2 Vollgeschosse
Anzahl der Personen, Alter: aktuell 3, bald 4, geplant 5 -> Personen: 2x Ü30, 1x 1, 1x Bauch, 1x geplant
Raumbedarf im EG, OG:
EG: Küche (wenn möglich mit Speisekammer), Essen, Wohnen, Toilette, Hauswirtschaftsraum.
OG: 3 Kinderzimmer, 1 Abstellraum.
EG oder OG: Elternbereich mit eigenem Bad, Büro
Büro: Familiennutzung oder Homeoffice?: Homeoffice
Schlafgäste pro Jahr: ~40 Nächte pro Jahr besuch (3x Eltern und Geschwister wohnen alle weit weg...)
offene oder geschlossene Architektur: Offen?
konservativ oder moderne Bauweise: ???
offene Küche, Kochinsel: offene Küche mit Kochinsel gewünscht
Anzahl Essplätze: 8
Kamin: Nein
Musik/Stereowand: Ja beim Fernseher
Balkon, Dachterrasse: Nein
Garage, Carport: Ja, 1 Garage im Haus und entweder eine weitere Garage oder Carport neben dem Haus
Nutzgarten, Treibhaus: Nein
weitere Wünsche/Besonderheiten/Tagesablauf, gern auch Begründungen, warum dieses oder das nicht sein soll: N/A
Hausentwurf
Von wem stammt die Planung: Architekt
Was gefällt besonders? Warum? Uns Gefällt fast alles am Grundriss sehr gut, besonders die Möglichkeit wenn die Kinder klein sind im OG das Büro zu beziehen und das Büro solange ins EG zu packen, wenn die Kinder aber etwas älter sind, dann ins EG ziehen zu können.
Was gefällt nicht? Warum? Uns fallen nur noch Kleinigkeiten auf, die wir noch einarbeiten lassen würden. Da jetzt über Weihnachten aber nichts mehr überarbeitet wird, öffnet uns gerne die Augen
Preisschätzung laut Architekt/Planer: 790.000€ mit Nebenkosten/Photovoltaik/Küche/Einfahrt/Terrasse ohne Ausbau Einliegerwohnung
Persönliches Preislimit fürs Haus, inkl. Ausstattung: 800.000
favorisierte Heiztechnik: Luft-Wasser-Wärmepumpe
Wenn Ihr verzichten müsst, auf welche Details/Ausbauten
-könnt Ihr verzichten: Keller (Sollten wir aber nicht aufgrund der Hanglage), Einliegerwohnung (Gästezimmer würde ansonsten auch ausreichen)
-könnt Ihr nicht verzichten: 2 Duschbäder für Eltern/Kinder, gerade Treppe
Warum ist der Entwurf so geworden, wie er jetzt ist? ZB
Wir wollten zuerst sehr gerne einfach ohne Keller bauen um unser Budget nicht ausreizen zu müssen. Die ersten Planungen hatten dann aber sehr steile Einfahrten oder die Einfahrt war auf der Südseite. Da wir aber seit vielen Monaten hier immer sehr viel mitlesen, sind wir aufgrund der leichten Hanglage dazu gekommen, dass wir einen Vermesser beauftragen sollte um klarheit bei der Planung zu haben. Und ja, was soll ich sagen, unser Grundstück ist dann Opfer der 11ant'schen Kellerregel geworden 😱. Dementsprechend haben wir weiter geplant, etwas kleiner aber diesmal mit Keller. Da wir den Platz im Keller nicht wirklich benötigen, haben wir dort nun eine zum Ausbau vorbereitete Einliegerwohnung drin, wo wir erstmal nur das Bad machen lassen würden und den Rest dann selbst ausbauen würden und um bereits einen Stellplatz zu haben die Garage ins Haus gelegt. Wir haben viel Überlegt ob wir einen richtigen Flur haben möchten. Letztendlich haben wir es in der aktuellen Planung aber wieder offen, da die Planungen mit Flur sehr eng für die Küche und das Esszimmer geworden wären.
Die Möbelpositionen sind in dem Grundriss auch nur Beispiele und wir würden vermutlich noch ein bisschen was ändern, z.B. Die Küche eher im L Laufen lassen mit durchgang durch Schrank in die Speisekammer oder im Wohnzimmer die Couch eventuell eher hinten in die Ecke und ein entsprechendes Fenster mit Brüstungshöhe etwas vorziehen. Auch soll die Terrasse nur in Richtung Westseite gehen und jeweils eine Tür aus der Küche und vom Essbereich rausgehen. In Richtung Süden vom Essbereich aus würde dann nur ein Festverglastes Fenster sein.
Da wir nun aber langsam in Richtung Vertragsunterschrift gehen, würde ich gerne mal euer Feedback hören und ob es Sinn macht noch die ein oder andere Sache zu ändern und in das Angebot kalkulieren zu lassen oder wir den Grundriss von neu denken sollten.
Vielen Dank bereits für das Feedback!
UG:

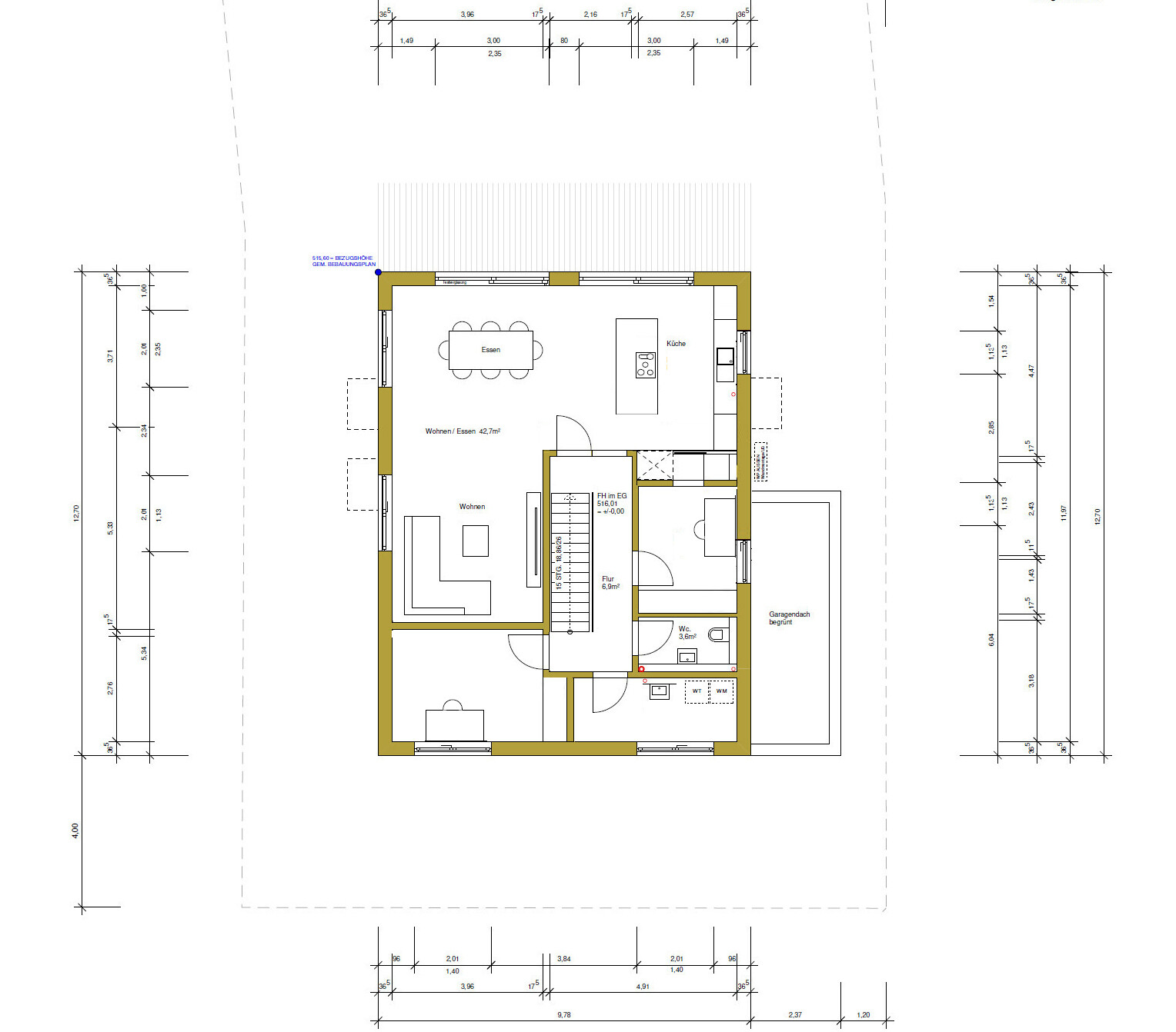
EG:

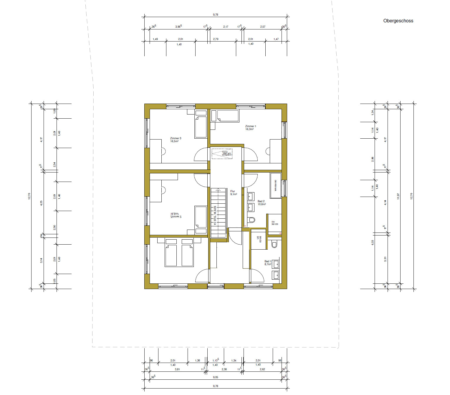
OG:

DG:

Ansicht Nord:

Ansicht Ost:

Ansicht Süd:

Ansicht West:
Größe des Grundstücks 512m²
Hang Ja
Grundflächenzahl 0,4
Geschossflächenzahl N/A
Baufenster, Baulinie und -grenze Siehe Übersicht
Randbebauung N/A
Anzahl Stellplatz 3
Geschossigkeit 2
Dachform SD
Stilrichtung N/A
Ausrichtung Garten zum Westen
Maximale Höhen/Begrenzungen: 9m Firsthöhe ab bestimmtem Geländepunkt auf Grundstück
weitere Vorgaben
Anforderungen der Bauherren
Stilrichtung, Dachform, Gebäudetyp: Einfamilienhaus 2 Vollgeschosse Satteldach
Keller, Geschosse: Keller Ja, 2 Vollgeschosse
Anzahl der Personen, Alter: aktuell 3, bald 4, geplant 5 -> Personen: 2x Ü30, 1x 1, 1x Bauch, 1x geplant
Raumbedarf im EG, OG:
EG: Küche (wenn möglich mit Speisekammer), Essen, Wohnen, Toilette, Hauswirtschaftsraum.
OG: 3 Kinderzimmer, 1 Abstellraum.
EG oder OG: Elternbereich mit eigenem Bad, Büro
Büro: Familiennutzung oder Homeoffice?: Homeoffice
Schlafgäste pro Jahr: ~40 Nächte pro Jahr besuch (3x Eltern und Geschwister wohnen alle weit weg...)
offene oder geschlossene Architektur: Offen?
konservativ oder moderne Bauweise: ???
offene Küche, Kochinsel: offene Küche mit Kochinsel gewünscht
Anzahl Essplätze: 8
Kamin: Nein
Musik/Stereowand: Ja beim Fernseher
Balkon, Dachterrasse: Nein
Garage, Carport: Ja, 1 Garage im Haus und entweder eine weitere Garage oder Carport neben dem Haus
Nutzgarten, Treibhaus: Nein
weitere Wünsche/Besonderheiten/Tagesablauf, gern auch Begründungen, warum dieses oder das nicht sein soll: N/A
Hausentwurf
Von wem stammt die Planung: Architekt
Was gefällt besonders? Warum? Uns Gefällt fast alles am Grundriss sehr gut, besonders die Möglichkeit wenn die Kinder klein sind im OG das Büro zu beziehen und das Büro solange ins EG zu packen, wenn die Kinder aber etwas älter sind, dann ins EG ziehen zu können.
Was gefällt nicht? Warum? Uns fallen nur noch Kleinigkeiten auf, die wir noch einarbeiten lassen würden. Da jetzt über Weihnachten aber nichts mehr überarbeitet wird, öffnet uns gerne die Augen
Preisschätzung laut Architekt/Planer: 790.000€ mit Nebenkosten/Photovoltaik/Küche/Einfahrt/Terrasse ohne Ausbau Einliegerwohnung
Persönliches Preislimit fürs Haus, inkl. Ausstattung: 800.000
favorisierte Heiztechnik: Luft-Wasser-Wärmepumpe
Wenn Ihr verzichten müsst, auf welche Details/Ausbauten
-könnt Ihr verzichten: Keller (Sollten wir aber nicht aufgrund der Hanglage), Einliegerwohnung (Gästezimmer würde ansonsten auch ausreichen)
-könnt Ihr nicht verzichten: 2 Duschbäder für Eltern/Kinder, gerade Treppe
Warum ist der Entwurf so geworden, wie er jetzt ist? ZB
Wir wollten zuerst sehr gerne einfach ohne Keller bauen um unser Budget nicht ausreizen zu müssen. Die ersten Planungen hatten dann aber sehr steile Einfahrten oder die Einfahrt war auf der Südseite. Da wir aber seit vielen Monaten hier immer sehr viel mitlesen, sind wir aufgrund der leichten Hanglage dazu gekommen, dass wir einen Vermesser beauftragen sollte um klarheit bei der Planung zu haben. Und ja, was soll ich sagen, unser Grundstück ist dann Opfer der 11ant'schen Kellerregel geworden 😱. Dementsprechend haben wir weiter geplant, etwas kleiner aber diesmal mit Keller. Da wir den Platz im Keller nicht wirklich benötigen, haben wir dort nun eine zum Ausbau vorbereitete Einliegerwohnung drin, wo wir erstmal nur das Bad machen lassen würden und den Rest dann selbst ausbauen würden und um bereits einen Stellplatz zu haben die Garage ins Haus gelegt. Wir haben viel Überlegt ob wir einen richtigen Flur haben möchten. Letztendlich haben wir es in der aktuellen Planung aber wieder offen, da die Planungen mit Flur sehr eng für die Küche und das Esszimmer geworden wären.
Die Möbelpositionen sind in dem Grundriss auch nur Beispiele und wir würden vermutlich noch ein bisschen was ändern, z.B. Die Küche eher im L Laufen lassen mit durchgang durch Schrank in die Speisekammer oder im Wohnzimmer die Couch eventuell eher hinten in die Ecke und ein entsprechendes Fenster mit Brüstungshöhe etwas vorziehen. Auch soll die Terrasse nur in Richtung Westseite gehen und jeweils eine Tür aus der Küche und vom Essbereich rausgehen. In Richtung Süden vom Essbereich aus würde dann nur ein Festverglastes Fenster sein.
Da wir nun aber langsam in Richtung Vertragsunterschrift gehen, würde ich gerne mal euer Feedback hören und ob es Sinn macht noch die ein oder andere Sache zu ändern und in das Angebot kalkulieren zu lassen oder wir den Grundriss von neu denken sollten.
Vielen Dank bereits für das Feedback!
UG:
EG:
OG:
DG:
Ansicht Nord:
Ansicht Ost:
Ansicht Süd:
Ansicht West:
Grundriss angucken und so weiter werde ich wohl leider erst Freitag oder am Wochenende zu kommen. Daher nur kurz:
Den wieder zu verwenden ist an vielen Stellen riskant, da kann es dann später schnell zu Absackungen kommen, tragfähig ist der nicht.
Den so zu verdichten, dass der wieder tragfähig wird ist... dürfte so sein wie Zahnpasta zurück in eine Tube drücken wollen. Geht, dauert aber lange und ist unnötig kompliziert und somit teuer. Entsorgen und durch tragfähiges Material ersetzen ist da meinem Eindruck nach trotz der damit verbundenen Kosten oft noch günstiger.
huhxkux schrieb:Mit dem Aushub gibt es ein Problem: Der ist echt weich. Also so richtig weich. (Weil aus 1m³ dann 1,8m³ geworden sind.)
Aber der Überstand muss dann ja am Ende auch wieder befüllt werden oder muss dies mit besonderem Material getan werden und kann hierzu nicht der vorhandene Aushub verwendet werden?
Den wieder zu verwenden ist an vielen Stellen riskant, da kann es dann später schnell zu Absackungen kommen, tragfähig ist der nicht.
Den so zu verdichten, dass der wieder tragfähig wird ist... dürfte so sein wie Zahnpasta zurück in eine Tube drücken wollen. Geht, dauert aber lange und ist unnötig kompliziert und somit teuer. Entsorgen und durch tragfähiges Material ersetzen ist da meinem Eindruck nach trotz der damit verbundenen Kosten oft noch günstiger.
M
MachsSelbst08.01.26 12:19Das gilt umso mehr, als dass du um dein Haus dann ja sicherlich einen Traufstreifen, Eingangspodest(e), Terrasse, Wege, Zufahrt usw. anlegen möchtest. Im Grunde macht es also auch ohne die Notwendigkeit beim Bau Sinn, das Schotterpolster 1-2m um die Bodenplatte überstehen zu lassen...
Mein Haus hat 100m² Grundfläche und wir haben direkt für die spätere Terrasse, Zufahrt, usw. mitschottern lassen.
Gut, wir konnten die 200m³ Aushub tatsächlich gut verteilen, mussten sogar noch 100m³ vom Nachbarn anfahren lassen, weil wir wirklich tief unter der Straße lagen...
Aber machen musst du das ohnehin. Sowohl für die Terrasse und vor allem für die Zufahrt empfiehlt sich eine frostfreie Gründung bis auf 80-120cm, je nach Region. Dann ist es in der Regel billiger, wenn das gleich der Tiefbauer macht, der ohnehin den Schotter für die Gründung ankarrt und die Erde abfährt.
Mein Haus hat 100m² Grundfläche und wir haben direkt für die spätere Terrasse, Zufahrt, usw. mitschottern lassen.
Gut, wir konnten die 200m³ Aushub tatsächlich gut verteilen, mussten sogar noch 100m³ vom Nachbarn anfahren lassen, weil wir wirklich tief unter der Straße lagen...
Aber machen musst du das ohnehin. Sowohl für die Terrasse und vor allem für die Zufahrt empfiehlt sich eine frostfreie Gründung bis auf 80-120cm, je nach Region. Dann ist es in der Regel billiger, wenn das gleich der Tiefbauer macht, der ohnehin den Schotter für die Gründung ankarrt und die Erde abfährt.
Mit 3 Kindern würde ich die Treppe auch niemals offen im Wohnraum haben wollen. Daher habe ich versucht, die Treppe nach unten zu schieben, damit sie planoben in einem Flur enden kann. Die Leseecke finde ich überflüssig, ist wohl auch eher aus der Not heraus entstanden. Hier würde ich ein Home Office platzieren. Statt der SPK kann man auch ein zweites kleines Büro anlegen. Alternativ diesen Raum verkleinern, WC hochschieben und mehr Platz im Hauswirtschaftsraum schaffen. Küche ist in meinem Plan auch größer, das tut ihr gut bei 5 Leuten.
Das OG hat sich durch die verschobene Treppe auch geändert (1 Treppenstufe überbaut). Ihr hättet ein etwas größeres Schlafzimmer und eine größere Ankleide. Bäder haben kaum verloren. Fenster sind noch nicht angepasst.


Das OG hat sich durch die verschobene Treppe auch geändert (1 Treppenstufe überbaut). Ihr hättet ein etwas größeres Schlafzimmer und eine größere Ankleide. Bäder haben kaum verloren. Fenster sind noch nicht angepasst.
Ähnliche Themen