ᐅ Grundriss Einfamilienhaus, 200m2, 2 Vollgeschosse, Garage, ohne Keller
Erstellt am: 22.02.23 21:04
H
hausbauer_93H
hausbauer_9322.02.23 21:04Wir bitten um euer Feedback zu unserem großzügigen Grundriss.
Bebauungsplan/Einschränkungen
Grundsätzlich haben wir keine bekannten bzw. einschränkenden Einschränkungen, unsere Gemeinde ist SEHR flexibel!
Größe des Grundstücks: 3.700m2
Hang: nein
Grundflächenzahl: nicht bekannt
Geschossflächenzahl: keine Vorgaben
Baufenster, Baulinie und -grenze: keine Vorgaben
Randbebauung: 3m
Anzahl Stellplatz: keine Vorgaben
Geschossigkeit: keine Vorgaben
Dachform: keine Vorgaben
Stilrichtung: keine Vorgaben
Ausrichtung: keine Vorgaben
Maximale Höhen/Begrenzungen: keine Vorgaben
weitere Vorgaben: keine
Anforderungen der Bauherren
Stilrichtung, Dachform, Gebäudetyp: Einfamilienhaus, flaches Pultdach (Dachboden nicht nutzbar, wollen wir auch nicht)
Keller, Geschosse: kein Keller, 2 Vollgeschosse
Anzahl der Personen, Alter: 2 Erwachsene, geplant 2 Kinder
Raumbedarf im
Schlafgäste pro Jahr: für ca. 14 Nächte im Jahr im Büro je 2 Personen
offene oder geschlossene Architektur: halboffen
konservativ oder moderne Bauweise: modern
offene Küche, Kochinsel: offene Küche
Anzahl Essplätze: 6-8
Kamin: kleiner Ofen, vllt. Schwedenofen
Musik/Stereowand: nein
Balkon, Dachterrasse: nein
Garage, Carport: Garage
Nutzgarten, Treibhaus: Garten
Hausentwurf
Von wem stammt die Planung:
Do-it-yourself und dann Architekt
Was gefällt besonders? Warum?
Statisch ist es ein sehr guter Grundriss, da tragende Wände übereinander. Gleich große Kinderzimmer, jeweils 1 Fenster. Kinderzimmer nicht neben Elternzimmer. Wohnzimmer abgetrennt. Da die Südseite nicht verbaubar ist, gefällt uns besonders die Fensterfront. Die große Küche.
Was gefällt nicht? Warum?
Preisschätzung lt Architekt/Planer: gibt nur eine mündliche Aussage, schlüsselfertig (noch nicht final definiert) ca. 3.500€ pro m2 Wohnfläche
Persönliches Preislimit fürs Haus, inkl Ausstattung: 850.000€
favorisierte Heiztechnik: Erdwärme
Wenn Ihr verzichten müsst, auf welche Details/Ausbauten
-könnt Ihr verzichten: Maximal auf das Elternbad. Dann müsste aber in das WC unten eine Dusche rein. Das würde wiederum sehr viel ändern.
-könnt Ihr nicht verzichten: Büro und Hobbyraum. Angeschlossene Garage, alle anderen Räume
Warum ist der Entwurf so geworden, wie er jetzt ist?
Wir haben ihn per Hand entworfen und ein Planer hat ihn mit uns umgesetzt. Ist sozusagen der erste Entwurf. Die Wünsche wurden umgesetzt. Haben uns vorher sehr viel mit Grundrissen befasst. Wir haben uns gut überlegt, welche Räume wir brauchen und wir brauchen definitiv jeden.
Was ist die wichtigste/grundlegende Frage zum Grundriss in 130 Zeichen zusammengefasst?
Habt ihr Verbesserungen? Ist er praxistauglich? Was würdet ihr anders machen?
Vielen Dank.





Bebauungsplan/Einschränkungen
Grundsätzlich haben wir keine bekannten bzw. einschränkenden Einschränkungen, unsere Gemeinde ist SEHR flexibel!
Größe des Grundstücks: 3.700m2
Hang: nein
Grundflächenzahl: nicht bekannt
Geschossflächenzahl: keine Vorgaben
Baufenster, Baulinie und -grenze: keine Vorgaben
Randbebauung: 3m
Anzahl Stellplatz: keine Vorgaben
Geschossigkeit: keine Vorgaben
Dachform: keine Vorgaben
Stilrichtung: keine Vorgaben
Ausrichtung: keine Vorgaben
Maximale Höhen/Begrenzungen: keine Vorgaben
weitere Vorgaben: keine
Anforderungen der Bauherren
Stilrichtung, Dachform, Gebäudetyp: Einfamilienhaus, flaches Pultdach (Dachboden nicht nutzbar, wollen wir auch nicht)
Keller, Geschosse: kein Keller, 2 Vollgeschosse
Anzahl der Personen, Alter: 2 Erwachsene, geplant 2 Kinder
Raumbedarf im
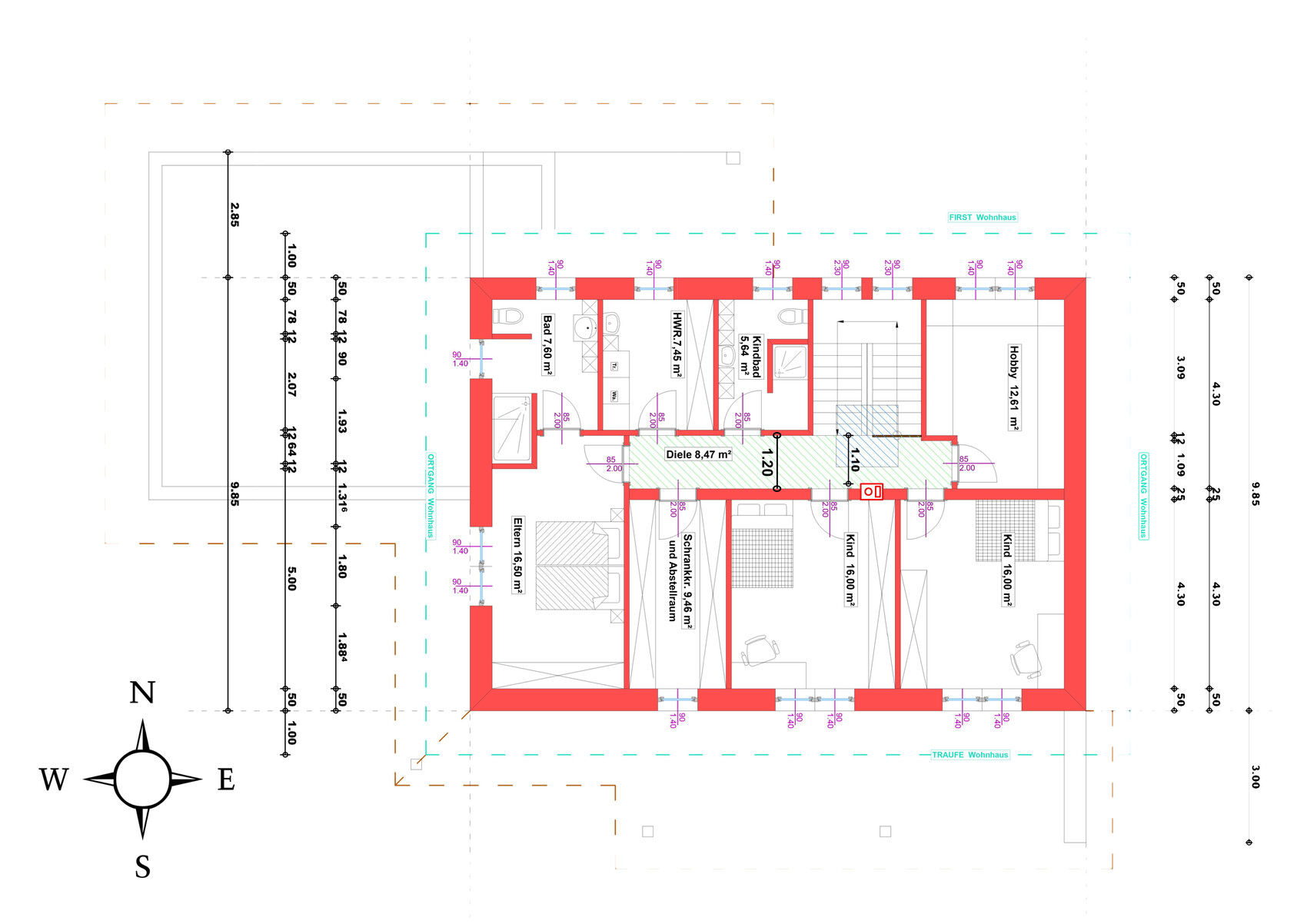
- EG: Küche, Essen, Wohnzimmer, Büro, Technikraum
- OG: 2 Kinderzimmer mit Kinderbad, Eltern mit Elternbad, Hobbyraum, Hauswirtschaftsraum
Schlafgäste pro Jahr: für ca. 14 Nächte im Jahr im Büro je 2 Personen
offene oder geschlossene Architektur: halboffen
konservativ oder moderne Bauweise: modern
offene Küche, Kochinsel: offene Küche
Anzahl Essplätze: 6-8
Kamin: kleiner Ofen, vllt. Schwedenofen
Musik/Stereowand: nein
Balkon, Dachterrasse: nein
Garage, Carport: Garage
Nutzgarten, Treibhaus: Garten
Hausentwurf
Von wem stammt die Planung:
Do-it-yourself und dann Architekt
Was gefällt besonders? Warum?
Statisch ist es ein sehr guter Grundriss, da tragende Wände übereinander. Gleich große Kinderzimmer, jeweils 1 Fenster. Kinderzimmer nicht neben Elternzimmer. Wohnzimmer abgetrennt. Da die Südseite nicht verbaubar ist, gefällt uns besonders die Fensterfront. Die große Küche.
Was gefällt nicht? Warum?
- Die Wege sind möglicherweise weit. zB vom Wohnzimmer auf die Toilette. Oder von der Küche ins OG.
- Das Elternschlafzimmer und die Ankleidewand. Wir hatten schon die schränke zwischen Bett und Bad, aber da passt maximal ein Eckschrank hin.
- Das Kinderbad ist auch noch nicht ideal von der Aufteilung finden wir.
- Platzierung vom Ofen.
Preisschätzung lt Architekt/Planer: gibt nur eine mündliche Aussage, schlüsselfertig (noch nicht final definiert) ca. 3.500€ pro m2 Wohnfläche
Persönliches Preislimit fürs Haus, inkl Ausstattung: 850.000€
favorisierte Heiztechnik: Erdwärme
Wenn Ihr verzichten müsst, auf welche Details/Ausbauten
-könnt Ihr verzichten: Maximal auf das Elternbad. Dann müsste aber in das WC unten eine Dusche rein. Das würde wiederum sehr viel ändern.
-könnt Ihr nicht verzichten: Büro und Hobbyraum. Angeschlossene Garage, alle anderen Räume
Warum ist der Entwurf so geworden, wie er jetzt ist?
Wir haben ihn per Hand entworfen und ein Planer hat ihn mit uns umgesetzt. Ist sozusagen der erste Entwurf. Die Wünsche wurden umgesetzt. Haben uns vorher sehr viel mit Grundrissen befasst. Wir haben uns gut überlegt, welche Räume wir brauchen und wir brauchen definitiv jeden.
Was ist die wichtigste/grundlegende Frage zum Grundriss in 130 Zeichen zusammengefasst?
Habt ihr Verbesserungen? Ist er praxistauglich? Was würdet ihr anders machen?
Vielen Dank.
K
K a t j a22.02.23 21:44Nunja, warum nicht?!
Das Kinderbad muss tatsächlich noch besser werden. Aber das sollte man hinbekommen.
Ansonsten seh ich keine massiven Schnitzer, warum man da nicht wohnen könnte aber...:
Das Haus ist leider nicht besonders einladend. Eine einsame Tür führt in den Wohnraum und dort liegt versteckt ein schmaler Durchgang zum Chillraum. Der Flur im EG ist lang und schmal - hier würde ich auf jeden Fall auf die Abstellkammer unter der Treppe verzichten und diese öffnen, um Licht und Freiheit rein zu lassen. Gäste-WC und Garderobe einen Tick kleiner. Bei so viel Fläche fehlt mir wieder die Badewanne.
Insgesamt seh ich auch nicht, was die Hütte derart teuer macht, mal abgesehen von der galaktischen Küche. Da sollten dann schon auch Parkett, Smarthome ect. dabei sein.
Das Kinderbad muss tatsächlich noch besser werden. Aber das sollte man hinbekommen.
Ansonsten seh ich keine massiven Schnitzer, warum man da nicht wohnen könnte aber...:
Das Haus ist leider nicht besonders einladend. Eine einsame Tür führt in den Wohnraum und dort liegt versteckt ein schmaler Durchgang zum Chillraum. Der Flur im EG ist lang und schmal - hier würde ich auf jeden Fall auf die Abstellkammer unter der Treppe verzichten und diese öffnen, um Licht und Freiheit rein zu lassen. Gäste-WC und Garderobe einen Tick kleiner. Bei so viel Fläche fehlt mir wieder die Badewanne.
Insgesamt seh ich auch nicht, was die Hütte derart teuer macht, mal abgesehen von der galaktischen Küche. Da sollten dann schon auch Parkett, Smarthome ect. dabei sein.
X
xMisterDx22.02.23 23:35Hmm. Wenn ihr die Kohlen habt?
Ich lehne mich mal aus dem Fenster und behaupte, was ihr auf 200m² plant, kriegen wir auch auf 155 hin...
Gäste-WC. Fast 5m² für nen Lokus und ein Waschbecken? Rest ist Tanzsaal? Ähnlich beim 12m² HAR. Warum ein zweiter HAR im OG? Dann sind wir schon bei fast 20m² HAR. Euer Wohnzimmer ist kleiner.
Ne riesige Küche, die ich aber nicht verstehe. Soll der Tresen auch der Esstisch sein? Im Alltag prima. Bei Feiern willst du die Gäste direkt am Kochfeld sitzen haben? Im Fett-/Wasserdunst?
Dann ein winziges Elternbad mit 7m², damit ein Kinderbad reinpasst...
Kann man machen. Aber ihr holt aus eurem Geld wenig raus, jeder m² kostet mindestens 2.500 EUR.
Ich lehne mich mal aus dem Fenster und behaupte, was ihr auf 200m² plant, kriegen wir auch auf 155 hin...
Gäste-WC. Fast 5m² für nen Lokus und ein Waschbecken? Rest ist Tanzsaal? Ähnlich beim 12m² HAR. Warum ein zweiter HAR im OG? Dann sind wir schon bei fast 20m² HAR. Euer Wohnzimmer ist kleiner.
Ne riesige Küche, die ich aber nicht verstehe. Soll der Tresen auch der Esstisch sein? Im Alltag prima. Bei Feiern willst du die Gäste direkt am Kochfeld sitzen haben? Im Fett-/Wasserdunst?
Dann ein winziges Elternbad mit 7m², damit ein Kinderbad reinpasst...
Kann man machen. Aber ihr holt aus eurem Geld wenig raus, jeder m² kostet mindestens 2.500 EUR.
Ich finde es leider auch nicht gerade attraktiv und würde wohl erstmal ein paar Wände rausreißen, wenn ich das Haus beziehen müsste und zwar die Mittelwand vom Flur. Der Flur gibt ein Gefühl einer Mietwohnung aus den 80ern, im welchen Stockwerk auch immer.
Hat der Architekt etwas zu der Treppe gesagt, die gefühlt mehr Mörtel oder Beton um sich hat als alle Treppendiskussionen hier von 10 Jahren? Man läuft im EG und OG gegen Wände, Treppenauge ist auch vermauert, so dass man keine Möbel nach oben oder unten transportieren kann.
Die Südseite bekommt keine Sonne durch die schönen Panoramafenster… im Winter allerdings schon etwas.
Und die Insel ist auch etwas zu much: die kann man ja noch nicht einmal übergreifen… das eine ist zu wenig, das andere zu viel. Das Dach modern, innen altbacken.
Hat der Architekt etwas zu der Treppe gesagt, die gefühlt mehr Mörtel oder Beton um sich hat als alle Treppendiskussionen hier von 10 Jahren? Man läuft im EG und OG gegen Wände, Treppenauge ist auch vermauert, so dass man keine Möbel nach oben oder unten transportieren kann.
Die Südseite bekommt keine Sonne durch die schönen Panoramafenster… im Winter allerdings schon etwas.
hausbauer_93 schrieb:Sehe ich innen überhaupt nicht.
konservativ oder moderne Bauweise: modern
Und die Insel ist auch etwas zu much: die kann man ja noch nicht einmal übergreifen… das eine ist zu wenig, das andere zu viel. Das Dach modern, innen altbacken.
H
hanghaus202323.02.23 08:24Habe ich die Antwort zum Budget übersehen? Wie breit ist das Haus?
K
K a t j a23.02.23 08:42hanghaus2023 schrieb:
Habe ich die Antwort zum Budget übersehen? Wie breit ist das Haus?3.500€ pro m2 Wohnfläche Persönliches Preislimit fürs Haus, inkl Ausstattung: 850.000€Ähnliche Themen