ᐅ Grundriss, Hausanordnung EFW 150m2, Keller + Einliegerwohnung - Feedback erwünscht
Erstellt am: 29.12.24 00:08
N
njAiiiiH
hanghaus202331.12.24 09:46Du hast doch da wo gebaut wird keinen Hang. Dann ist der Keller immer nur Kosten. Wenn das ein Wohngeschoss werden soll, dann besonders hohe, Wie wir schon festgestellt haben. Daher mein Vorschlag ohne Keller. Wenn Du unbedingt den Entwurf retten willst, dann wird es teuer.
Das Haus mit 12*12 funktioniert. Ich sehe zum Nachbar keinen Abstand verletzt. Die 7,5 m Baulast sind doch eingezeichnet.
Bau ein schickes Haus ohne Keller und schon bist Du unter 3000 Euro/m2. Du kannst doch in die Höhe gehen. Ein Flachdach mit Staffelgeschoss geht da bestimmt auch. Da ist halt der Architekt gefragt. Ihr habt den mMn viel zu sehr in der Entwicklung eines guten Entwurfs eingeengt.
Das Haus mit 12*12 funktioniert. Ich sehe zum Nachbar keinen Abstand verletzt. Die 7,5 m Baulast sind doch eingezeichnet.
Bau ein schickes Haus ohne Keller und schon bist Du unter 3000 Euro/m2. Du kannst doch in die Höhe gehen. Ein Flachdach mit Staffelgeschoss geht da bestimmt auch. Da ist halt der Architekt gefragt. Ihr habt den mMn viel zu sehr in der Entwicklung eines guten Entwurfs eingeengt.
H
hanghaus202331.12.24 12:30@K a t j a Die Idee finde ich sehr gut. Das geht mMn auch so noch sehr komfortabel.

Der Einliegerwohnung und dem Elternbereich tut der etwas größere Bereich gut. Der Wohn- und Kinderbereich darf gern etwas kleiner sein.
Der Versatz soll eine Steinbreite sein.
Dann sieht Deine Optik auch in der Realität so aus.
Ich würde eventuell noch die Terrasse etwas einrücken, damit mind 50% überdacht sind.
Der Einliegerwohnung und dem Elternbereich tut der etwas größere Bereich gut. Der Wohn- und Kinderbereich darf gern etwas kleiner sein.
Der Versatz soll eine Steinbreite sein.
Dann sieht Deine Optik auch in der Realität so aus.
Ich würde eventuell noch die Terrasse etwas einrücken, damit mind 50% überdacht sind.
njAiiii schrieb:
Wenn ich das richtig interpretiere, ist der Allraum jetzt um Souterrain, wo bisher die große Kritik gegen die Einliegerwohnung kam. Damit geht die beste SW-Seite an Schlafzimmer und Büro. Das wollen wir nicht.Die beste Seite ist relativ. . aber egalnjAiiii schrieb:
Auch hier nochmal ein Dankeschön, dass du den Bleistift virtuell anlegst.
..
Optisch gefällt uns der Entwurf leider gar nicht.Dann versuche doch einfach mal, die Ideen, die in beiden Vorschlägen hinterstecken, zu erkennen und gedanklich umzusetzen.Die Idee mit der vorgelagerten Einliegerwohnung hatten Katja und ich unabhängig voneinander. Es hat nämlich Vorteile für alles, nicht nur für Senioren, sondern auch grundsätzlich unabhängig für eine Einliegerwohnung. Die Optik ist bei Katja (fast) immer die Stadtvillenoptik, allerdings täuscht auch das Programm etwas - genauso wie bei meinem Tool.
Wenn etwas nicht gefällt, dann kann man ja versuchen, das ein oder andere Gute am Grundriss in einen anderen Baukörper einzubringen. Es sind letztendlich nur Vorschläge, um die Gedanken mal in andere Richtungen zu lenken und nicht am bestehenden Entwurf iwie festzuhalten, was ja nicht sein muss. Es ist alles erst einmal nur Plan und Entwurf.
Skizze verstehe ich. Ich überschlage darauf ja nur grob. Split Level Ansatz verstehe ich auch vom Konzept.
Das Nachbargebäude endet bei 86.74 und steht komplett raus. Es ist auch mit 3 Stufen angehoben.
Ich versuche morgen mal selbst was zu skizzieren. Mein Grundgedanke dabei ist eher die NOS Flanke zu nutzen und den Garten hinter der Garage einzubinden.
Noch als Gedanken. Wohnt jemand von Euch mit Ausrichtung NW? Das ist genauso dunkel bis 16 Uhr. Im Winter kommt da zum Teil nie die Sonne an. Zudem ist die gesamte Wohnung zur Straße exponiert. Der Blick ins Grüne beschränkt sich auch. Mit dieser Anordnung sehe ich mehr Nach- als Vorteile, auch wenn der Grundriss der Einliegerwohnung deutlich schöner ausfällt.
hanghaus2023 schrieb:Der N ist auf 87.50, der O auf ungefähr 86.70, S auf 86.30 und W auf 86.9.
Du hast doch da wo gebaut wird keinen Hang.
Das Nachbargebäude endet bei 86.74 und steht komplett raus. Es ist auch mit 3 Stufen angehoben.
hanghaus2023 schrieb:Ja, passt. War schon spät gestern.
Das Haus mit 12*12 funktioniert. Ich sehe zum Nachbar keinen Abstand verletzt. Die 7,5 m Baulast sind doch eingezeichnet.
hanghaus2023 schrieb:Puh, leicht gesagt im Nachhinein. Ich weiß nicht, wer hier alles Architekt ist. Bis auf 1-2 Ausnahmen wird der Entwurf als "Murksplanung" abgetan. Und Schuld daran seien unsere Anforderungen? Da erwarte ich mir doch die nötige beratende Komponente des Architekten.
Da ist halt der Architekt gefragt. Ihr habt den mMn viel zu sehr in der Entwicklung eines guten Entwurfs eingeengt.
hanghaus2023 schrieb:Die Einliegerwohnung braucht nicht > 50m2. Wir haben in unmittelbarer Umgebung Personen, die sich im Alter bewusst verkleinert haben. Da sind die EG Wohnungen alle 35-50m2. Alles andere darüber hinaus ist Komfort.
@K a t j a Die Idee finde ich sehr gut. Das geht mMn auch so noch sehr komfortabel.
Der Einliegerwohnung und dem Elternbereich tut der etwas größere Bereich gut. Der Wohn- und Kinderbereich darf gern etwas kleiner sein.
hanghaus2023 schrieb:Optisch OK, aber wer soll das zahlen?
Der Versatz soll eine Steinbreite sein.
ypg schrieb:
Dann versuche doch einfach mal, die Ideen, die in beiden Vorschlägen hinterstecken, zu erkennen und gedanklich umzusetzen.
Ich versuche morgen mal selbst was zu skizzieren. Mein Grundgedanke dabei ist eher die NOS Flanke zu nutzen und den Garten hinter der Garage einzubinden.
Noch als Gedanken. Wohnt jemand von Euch mit Ausrichtung NW? Das ist genauso dunkel bis 16 Uhr. Im Winter kommt da zum Teil nie die Sonne an. Zudem ist die gesamte Wohnung zur Straße exponiert. Der Blick ins Grüne beschränkt sich auch. Mit dieser Anordnung sehe ich mehr Nach- als Vorteile, auch wenn der Grundriss der Einliegerwohnung deutlich schöner ausfällt.
Yvonne hat mich irgendwie noch auf diese Idee gebracht mit Ihrer Ansicht aus #45.








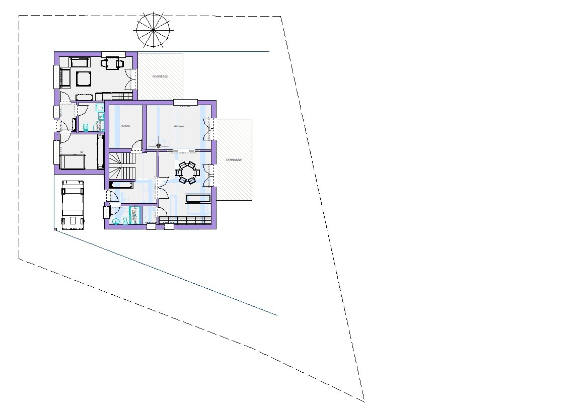
Ich hoffe der TE jammert jetzt nicht gleich als erstes, dass er kein Krüppelwalmdach mag oder die Fenster nicht schön genug sind. Die Haupthütte hat genau Eure 10,90m x 9,40m. Einzig die Fläche für die Technik musste mit ins EG. Ansonsten sehr ähnlich. Falls das Büro wieder an die gleiche Stelle soll, müsste sich das Haus eventuelll noch etwas strecken. Aber das sollte auch gehen, denke ich. Ich würde ja im Dach die Reserve aktivieren, sofern die Stadt das zulässt. Ich bin jetzt nicht mehr ganz sicher, was die Höhen betrifft. Abgebildet sind die 45° Standard bei 2m Kniestock im OG.
Kern der Idee ist die Anordnung der Einliegerwohnung im Osten als Anbau auf einem frei wählbaren Höhenlevel. Dort ist sie auch wirklich auf Zwergengröße zusammengeschrumpft und man könnte sie vermutlich auch noch nachträglich bauen. Das kostet Euch etwas Garten, da das Objekt zentraler steht, aber Ihr habt die wichtige Süd- und Westsonne im Haus und der Einlieger hat auch noch Südsonne mit eigenem Gartenzugang. Das ganze ohne jegliche Abgrabungen oder Löcher, in die man plumpsen oder wo die Sintflut sich drin sammeln könnte.
Ich hoffe der TE jammert jetzt nicht gleich als erstes, dass er kein Krüppelwalmdach mag oder die Fenster nicht schön genug sind. Die Haupthütte hat genau Eure 10,90m x 9,40m. Einzig die Fläche für die Technik musste mit ins EG. Ansonsten sehr ähnlich. Falls das Büro wieder an die gleiche Stelle soll, müsste sich das Haus eventuelll noch etwas strecken. Aber das sollte auch gehen, denke ich. Ich würde ja im Dach die Reserve aktivieren, sofern die Stadt das zulässt. Ich bin jetzt nicht mehr ganz sicher, was die Höhen betrifft. Abgebildet sind die 45° Standard bei 2m Kniestock im OG.
Kern der Idee ist die Anordnung der Einliegerwohnung im Osten als Anbau auf einem frei wählbaren Höhenlevel. Dort ist sie auch wirklich auf Zwergengröße zusammengeschrumpft und man könnte sie vermutlich auch noch nachträglich bauen. Das kostet Euch etwas Garten, da das Objekt zentraler steht, aber Ihr habt die wichtige Süd- und Westsonne im Haus und der Einlieger hat auch noch Südsonne mit eigenem Gartenzugang. Das ganze ohne jegliche Abgrabungen oder Löcher, in die man plumpsen oder wo die Sintflut sich drin sammeln könnte.
njAiiii schrieb:
Alles andere darüber hinaus ist Komfort.Ja, ein Haus mit Einliegerwohnung ist nun mal Komfort. Und wenn man 150qm, was an sich nicht größenwahnsinnig ist, mit einer zusätzlichen ansprechenden Wohnung ausstattet, dann ist das entsprechend des Wohnkomforts.Ich denke nicht, dass Ihr als Vermieter davon profitiert, ein Wohnloch anzubauen.
njAiiii schrieb:
Wir haben in unmittelbarer Umgebung Personen, die sich im Alter bewusst verkleinert haben. Da sind die EG Wohnungen alle 35-50m2.Was mich hier interessiert: habt Ihr jetzt alle möglichen Häuser mit Einliegerwohnungen inspiziert? Oder magst Du nur dran glauben, was man Euch erzählt?njAiiii schrieb:
Wohnt jemand von Euch mit Ausrichtung NW?Mein nächstes Haus hätte zumindest eine NW-Terrasse. Das bedeutet aber nicht, dass Ihr sie auch haben wollt. Und es bedeutet nicht, dass wir mit unserer derzeitigen Ausrichtung unzufrieden sind.Es ist doch alles eine Symbiose aus den Möglichkeiten, die man hat.
Auch die Diskussion mit dem Wechsel von Küche und Wohnzimmer: das liegt halt an dem alten Entwurf sehr nahe, dass man das so ändert. Es gibt aber auch genug Häuser, die haben mit der Terrasse eine völlige Nordausrichtung - und auch diese Ausrichtung hat ihren berechtigten Stellenwert, denn die hat dann ganz klar andere Vorzüge.
njAiiii schrieb:
Das ist genauso dunkel bis 16 Uhr. Im Winter kommt da zum Teil nie die Sonne an.Muss ja auch nicht. Ihr wohnt in einer Wohnung? Ihr hängt eigentlich oft auf dem sofa und genießt die Sonne darauf?Wenn man Garten hat, dann macht man bei gutem Wetter ganz andere Dinge als auf dem Sofa sitzen und rauszuschauen.
Wir haben ein Nord-Badezimmer. Das ist hell genug, weil es ein Fenster hat und im Sommer geht die Sonne im NO auf und im NW unter, sodass dort, wenn wir es benutzen, auch noch Sonneneinstrahlung durch das Nordfenster haben.
Ich verlinke mal einen Beitrag von mir anderswo
ypg schrieb:
Bei uns hat mittlerweile jeder auf seiner Südterrasse eine Verschattung.
Man muss auch wiederholt mal ganz klar sagen, dass Südterrassen abends keine Sonne haben.
Terrassen auch nicht dazu da sind, im eigenen Garten in der Sonne zu aalen wie im Urlaub. 1. hat man dazu gern seinen Rasengarten bzw Plätzchen an anderer Gartenecke. 2. im Alltag man gar nicht die Sonne haben will, weil sie einfach beim Tageswerk stört.
Ich trenne beim Planen gerne Fenster und Terrassennutzung: Fenster gern im Süden, damit man von Okt bis Ostern Licht und Wärme in die Bude bekommt, die Terrasse gern im Westen bzw. Nord, um dort abends im Alltag im Sommer noch Sonnenstrahlen abzubekommen.
Da muss jeder mal selbst schauen, wie er seinen Alltag und Tag gestaltet.
Wer öfter Kaffeebesuch der Großeltern einplant, sollte eine Terrasse haben, die sich etwas schattiger verhält. Wer Tagesfreizeit hat und gern in der Sonne brät, hat den Liegestuhl woanders als den Essplatz zum Grillen.
Wenn ich nochmal bauen sollte, dann würde ich zwar eine kleine Südterrasse einplanen, Augenmerk aber eher auf West/Nordwest haben.
West hat halt wiederum den Nachteil des Windes, aber auch da kann man mit Bepflanzung und Elementen gegensteuern. Ich kenne auch keinen, der sich nicht seine Terrasse am Einfamilienhaus noch bepflanzen hat, damit es gemütlicher wird.njAiiii schrieb:
Zudem ist die gesamte Wohnung zur Straße exponiert. Der Blick ins Grüne beschränkt sich auch. Mit dieser Anordnung sehe ich mehr Nach- als Vorteile, auch wenn der Grundriss der Einliegerwohnung deutlich schöner ausfällt.Naja, man kann ja Grünes pflanzen. Dafür ist man ja selbst verantwortlich. Gleiches gilt im Übrigen zu den Nachbarn, da kümmert man sich um grüne Grenzbepflanzungen, Hecken und anderes, damit man sich nicht a der Auffahrt des anderen stört.Was siehst Du für Nachteile? Normalerweise steht statt einer Einliegerwohnung die Hälfte der Räume an der Straßenseite. Ich finde, Du verknotest Dich zu oft mit der Argumentation.
Zu dem Hang kann ich übrigens wenig sagen: mal scheint es, dass ein Keller sinnvoll, ist, dann aber wiederum nicht. 1,20 sind kein Grund für einen Keller.
K a t j a schrieb:
Ich hoffe der TE jammert jetzt nicht gleich als erstes, dass er kein Krüppelwalmdach magIch habe auch einen kleinen Schock bekommen. Allerdings finde ich den Ansatz wiederum mit der Einliegerwohnung-Lage interessant, aber da wäre ich persönlich wohl auch etwas zu geizig mit dem Grundstück.Ähnliche Themen