ᐅ Grundriss für 150qm Einfamilienhaus mit Wohnzimmer nach Norden
Erstellt am: 13.09.17 21:19
Herr Stein13.09.17 21:19
Hallo Zusammen,
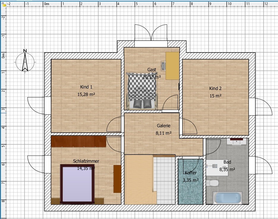
mittlerweile haben wir ein Grundstück in Aussicht und uns nähere Gedanken zum Grundriss gemacht. Ich habe schon mehrere Varianten erstellt, die sich alle in Details unterscheiden. Hochgeladen ist die aktuelle Version unserer Überlegungen und ein Versuch den Grundriss auf etwas kleinerer Fläche hinzubekommen. Leider fällt mir bei der Verkleinerung im OG nichts anderes ein, als die Türen etwas zurückzusetzen, sodass die Räume "Warzen" bekommen. Vielleicht gibt es dafür ja noch andere Vorschläge.
Weil es schlecht zu sehen ist: Die Treppe in der normalen Variante ist viertelgewendelt und geht im OG nach Norden raus. Die Treppe in der kleineren Variante ist halbgewendelt und geht nach Osten raus.
Bebauungsplan/Einschränkungen: kein Bebauungsplan, d.h. gemäß Nachbarschaftsbebauung
Größe des Grundstücks: 800qm
Hang: nein
Grundflächenzahl: keine Vorgabe
Geschossflächenzahl: keine Vorgabe
Geschossigkeit: 1,5
Dachform: Satteldach
Ausrichtung: Wohnzimmer nach Norden
Anforderungen der Bauherren
Keller: kein Keller
Anzahl der Personen, Alter: Zwei Erwachsene, zwei Kita-Kinder
Raumbedarf im EG, OG: so, wie im Grundriss
Büro: Homeoffice
Schlafgäste pro Jahr: 30 Nächte p.a.
offene oder geschlossene Architektur: eher geschlossen
konservativ oder moderne Bauweise: eher konservativ
offene Küche, Kochinsel: nein
Anzahl Essplätze: 4 in der Küche, 6-8 im Wohnzimmer
Kamin: nein
Musik/Stereowand: nein
Balkon, Dachterrasse: nein
Garage, Carport: noch keine Überlegungen dazu
Nutzgarten, Treibhaus: nein
weitere Wünsche/Besonderheiten/Tagesablauf, gern auch Begründungen, warum dieses oder das nicht sein soll: Wohnzimmer nach Norden ist gewünscht, da wir Anschluss an Terrasse möchten und diese nicht in der knalligen Sonne sein soll. Im Süden Arbeitszimmer passt auch, da das tagsüber benutzt wird.
Hausentwurf
Von wem stammt die Planung: Eigene Planung als Mix vieler Grundrisse aus Katalogen
Was gefällt besonders? Warum?: Platz im Wohnzimmer für Familienfeiern (zwei Tische zusammenstellen...) , Küche und Wohnzimmer an Terrasse angeschlossen
Was gefällt nicht? Warum?: Haus könnte etwas zu groß sein, für das Preislimit -> Verkleinerung ohne große Abstriche möglich?
Persönliches Preislimit fürs Haus, inkl Ausstattung: 300.000 EUR
favorisierte Heiztechnik: Gas + das notwendigste für Energieeinsparverordnung 2017
Wenn Ihr verzichten müsst, auf welche Details/Ausbauten
-könnt Ihr verzichten: Gästezimmer im OG könnte notfalls auch in das Arbeitszimmer integriert werden
Was ist die wichtigste/grundlegende Frage zum Grundriss in 130 Zeichen zusammengefasst?:
Könnte man den Grundriss noch verkleinern, ohne größere Abstriche zu machen?
P.S.: Die Badausstattung ist erst mal nur lieblos platziert, damit man es als Bad erkennt. Soweit sind die Planungen noch nicht.

mittlerweile haben wir ein Grundstück in Aussicht und uns nähere Gedanken zum Grundriss gemacht. Ich habe schon mehrere Varianten erstellt, die sich alle in Details unterscheiden. Hochgeladen ist die aktuelle Version unserer Überlegungen und ein Versuch den Grundriss auf etwas kleinerer Fläche hinzubekommen. Leider fällt mir bei der Verkleinerung im OG nichts anderes ein, als die Türen etwas zurückzusetzen, sodass die Räume "Warzen" bekommen. Vielleicht gibt es dafür ja noch andere Vorschläge.
Weil es schlecht zu sehen ist: Die Treppe in der normalen Variante ist viertelgewendelt und geht im OG nach Norden raus. Die Treppe in der kleineren Variante ist halbgewendelt und geht nach Osten raus.
Bebauungsplan/Einschränkungen: kein Bebauungsplan, d.h. gemäß Nachbarschaftsbebauung
Größe des Grundstücks: 800qm
Hang: nein
Grundflächenzahl: keine Vorgabe
Geschossflächenzahl: keine Vorgabe
Geschossigkeit: 1,5
Dachform: Satteldach
Ausrichtung: Wohnzimmer nach Norden
Anforderungen der Bauherren
Keller: kein Keller
Anzahl der Personen, Alter: Zwei Erwachsene, zwei Kita-Kinder
Raumbedarf im EG, OG: so, wie im Grundriss
Büro: Homeoffice
Schlafgäste pro Jahr: 30 Nächte p.a.
offene oder geschlossene Architektur: eher geschlossen
konservativ oder moderne Bauweise: eher konservativ
offene Küche, Kochinsel: nein
Anzahl Essplätze: 4 in der Küche, 6-8 im Wohnzimmer
Kamin: nein
Musik/Stereowand: nein
Balkon, Dachterrasse: nein
Garage, Carport: noch keine Überlegungen dazu
Nutzgarten, Treibhaus: nein
weitere Wünsche/Besonderheiten/Tagesablauf, gern auch Begründungen, warum dieses oder das nicht sein soll: Wohnzimmer nach Norden ist gewünscht, da wir Anschluss an Terrasse möchten und diese nicht in der knalligen Sonne sein soll. Im Süden Arbeitszimmer passt auch, da das tagsüber benutzt wird.
Hausentwurf
Von wem stammt die Planung: Eigene Planung als Mix vieler Grundrisse aus Katalogen
Was gefällt besonders? Warum?: Platz im Wohnzimmer für Familienfeiern (zwei Tische zusammenstellen...) , Küche und Wohnzimmer an Terrasse angeschlossen
Was gefällt nicht? Warum?: Haus könnte etwas zu groß sein, für das Preislimit -> Verkleinerung ohne große Abstriche möglich?
Persönliches Preislimit fürs Haus, inkl Ausstattung: 300.000 EUR
favorisierte Heiztechnik: Gas + das notwendigste für Energieeinsparverordnung 2017
Wenn Ihr verzichten müsst, auf welche Details/Ausbauten
-könnt Ihr verzichten: Gästezimmer im OG könnte notfalls auch in das Arbeitszimmer integriert werden
Was ist die wichtigste/grundlegende Frage zum Grundriss in 130 Zeichen zusammengefasst?:
Könnte man den Grundriss noch verkleinern, ohne größere Abstriche zu machen?
P.S.: Die Badausstattung ist erst mal nur lieblos platziert, damit man es als Bad erkennt. Soweit sind die Planungen noch nicht.
Maria1613.09.17 22:10
Hallo, ich kann zwar den Wunsch nach einer Nordausrichtung der Terrasse verstehen- aber nicht, warum sich dem der ganze Grundriss unterordnen muss. Schön, dass das Büro tagsüber genutzt wird, aber die Haupt-LEBENS-Räume, in denen sich die Familie regelmäßig zusammen aufhalten wird, nur über Nordfenster zu belichten, ist einfach viel zu wenig Tageslicht für diese Räume!!
Warum genau kann denn nicht das Büro ins Eck der Küche und der restliche Wohnraum wenigstens ein bisschen Süd- und Westausrichtung abbekommen?! (was mir persönlich immer noch zu unausgewogen wäre, wenn das Gäste-WC besser liegt als die Wohnräume...)
Warum genau kann denn nicht das Büro ins Eck der Küche und der restliche Wohnraum wenigstens ein bisschen Süd- und Westausrichtung abbekommen?! (was mir persönlich immer noch zu unausgewogen wäre, wenn das Gäste-WC besser liegt als die Wohnräume...)
hanse98713.09.17 23:28
Ist dies in der Küche auch ein Essplatz oder wo wird hauptsächlich gegessen? Ein Essplatz sollte reichen.
Für mich wäre der Laufweg von Küche zum Esstisch neben der Couch zu weit. Da ist ja der Weg über die Terrasse fast kürzer.
Für mich wäre der Laufweg von Küche zum Esstisch neben der Couch zu weit. Da ist ja der Weg über die Terrasse fast kürzer.
Wastl14.09.17 07:42
Die Aussensicht wird etwas gewöhnungsbedürftig sein. Im Süden ist im OG gar kein Fenster, im Osten nur im OG, im Westen 1 Fenster im EG und 2 im OG - keine Ahnung ob das schön wird,...
Gerade im Herbst / Winter / Frühling wird es im Wohnzimmer nicht sonderlich hell werden. Da wäre ein Fenster Richtung Westen schon ganz gut.
Gerade im Herbst / Winter / Frühling wird es im Wohnzimmer nicht sonderlich hell werden. Da wäre ein Fenster Richtung Westen schon ganz gut.
Herr Stein14.09.17 08:55
Danke für die bisherigen Rückmeldungen.
: Nach Norden raus ist der Garten und damit auch der schönste Blick. Aber ich werde noch mal einen zweiten Versuch starten, wo die Räume ganz anders gelagert sind. Dann müsste wahrscheinlich der Westen herhalten, denn Süden ist die Straßenseite und des fände ich nicht attraktiv.
: Ja, da sind zwei Essplätze vorgesehen. Einer in der Küche und einer im Wohnzimmer. Haben wir bisher auch so. Der im Wohnzimmer wird immer genutzt, wenn Gäste da sind und bei Familienfeiern wird noch der Tisch aus der Küche rangestellt. Zwei Tische müsste wir also sowieso irgendwo lagern...
: Die Außensicht ist etwas anders als man es sich anhand der Bilder vielleicht vorstellt. Nach Süden und Norden sind die Schrägen vom Satteldach. Deswegen sind im OG die meisten Fenster nach Osten und Westen ausgerichtet. Nur im Gästezimmer unterbricht der Erker das Satteldach im OG und hat deswegen ein extra Fenster. Eine Bildersuche nach Helma Einfamilienhaus Berlin zeigt, wie wir uns das gedacht haben...
: Nach Norden raus ist der Garten und damit auch der schönste Blick. Aber ich werde noch mal einen zweiten Versuch starten, wo die Räume ganz anders gelagert sind. Dann müsste wahrscheinlich der Westen herhalten, denn Süden ist die Straßenseite und des fände ich nicht attraktiv.
: Ja, da sind zwei Essplätze vorgesehen. Einer in der Küche und einer im Wohnzimmer. Haben wir bisher auch so. Der im Wohnzimmer wird immer genutzt, wenn Gäste da sind und bei Familienfeiern wird noch der Tisch aus der Küche rangestellt. Zwei Tische müsste wir also sowieso irgendwo lagern...
: Die Außensicht ist etwas anders als man es sich anhand der Bilder vielleicht vorstellt. Nach Süden und Norden sind die Schrägen vom Satteldach. Deswegen sind im OG die meisten Fenster nach Osten und Westen ausgerichtet. Nur im Gästezimmer unterbricht der Erker das Satteldach im OG und hat deswegen ein extra Fenster. Eine Bildersuche nach Helma Einfamilienhaus Berlin zeigt, wie wir uns das gedacht haben...
Climbee14.09.17 10:00
Ich geh jetzt mal gar nicht auf Nordausrichtung etc. Ein (wer lieber in Südrichtung auf der Schüssel sitzt als auf der Couch, den muss ich nicht verstehen...), aber im letzten Beitrag ist wieder so ein Satz, den liest man hier öfter und ich werde mir dann jedes Mal die Haare raufen:
"Haben wir bisher auch so"
Gerne auch in den Alternativen: machen wir jetzt auch so; das geht schon, tut es jetzt auch; etc.
In meinen Augen der völlig falsche Ansatz. Was ich jetzt habe ist i.d.R. eine Mietsituation in der ich mich mit vorgelegten Gegebenheiten arrangieren muss.
Jetzt baut ihr ein Haus, EUER Haus.
Kreiert das Optimum, euren Traum und macht dann ggf. Abstriche wo nötig.
Hört euch Erfahrungen an und wägt sie ab: z.B. ist bei 35 Grad ist eine Nordterrasse cool, keine Frage... Im Frühjahr/Herbst sieht die Sache anders aus... Und dann stellt sich die Frage: krieg ich Sonne auf die Nordterrasse? NEIN. Krieg ich Schatten auf eine Südterrasse? ja!
Das gleiche mit dem Wohnzimmer: im Sommer ist ein schattiges Wohnzimmer sicher angenehm, aber 3/4 des Restjahres lebe ich dafür im dunklen Loch? Wenn ich da Sonne/Licht will, muss ich zum Sch... gehen? Naja... Kann man machen....
Was ich sagen will, es gibt so ein paar Grundregeln in der Planung. Die haben über Jahre ihre Gültigkeit behalten, sämtlichen Trends zum Trotz. Scheint sich bewährt zu haben. Nicht immer kann man alle durchsetzen, aber man sollte sich schon klar machen, dass die meisten durchaus ihre Berechtigung haben.
Zur Sonnenphobie: in den neuen Häusern ist eine entsprechende Verschattung Pflicht, sonst kocht man im Sommer wirklich. Das dürfte also nicht das Problem sein. Andererseits hilft der Sonneneinfall im Winter beim Heizen. Ist doch dumm, das nicht zu nutzen?
Darüber hinaus wissen wir doch alle, dass genügend Sonnenlicht essenziell für die Gesundheit und das Wohlbefinden ist. Das ist schon etwas, was ich bei der Planung berücksichtigen würde.
Zwei Essplätze in unmittelbarer Nähe kostet Platz und macht welchen Sinn?
30 Schlafgäste im Jahr, also gehe ich von einem gästefreundlichen Haushalt aus. D.h. am Tisch werden öfter mehr Leute als nur Familie sitzen. Will ich dann jedes Mal einen Zweittisch aus dem Keller holen und mir so eine Behelfssituation schaffen, die nichts Halbes und nichts Ganzes ist? Wäre es nicht sinnvoller, gleich EINEN etwas umfangreicheren Essplatz zu schaffen, der ohne große Umbaumaßnahmen auch ein paar Gäste aufnehmen kann?
Just my 2 Cents...
"Haben wir bisher auch so"
Gerne auch in den Alternativen: machen wir jetzt auch so; das geht schon, tut es jetzt auch; etc.
In meinen Augen der völlig falsche Ansatz. Was ich jetzt habe ist i.d.R. eine Mietsituation in der ich mich mit vorgelegten Gegebenheiten arrangieren muss.
Jetzt baut ihr ein Haus, EUER Haus.
Kreiert das Optimum, euren Traum und macht dann ggf. Abstriche wo nötig.
Hört euch Erfahrungen an und wägt sie ab: z.B. ist bei 35 Grad ist eine Nordterrasse cool, keine Frage... Im Frühjahr/Herbst sieht die Sache anders aus... Und dann stellt sich die Frage: krieg ich Sonne auf die Nordterrasse? NEIN. Krieg ich Schatten auf eine Südterrasse? ja!
Das gleiche mit dem Wohnzimmer: im Sommer ist ein schattiges Wohnzimmer sicher angenehm, aber 3/4 des Restjahres lebe ich dafür im dunklen Loch? Wenn ich da Sonne/Licht will, muss ich zum Sch... gehen? Naja... Kann man machen....
Was ich sagen will, es gibt so ein paar Grundregeln in der Planung. Die haben über Jahre ihre Gültigkeit behalten, sämtlichen Trends zum Trotz. Scheint sich bewährt zu haben. Nicht immer kann man alle durchsetzen, aber man sollte sich schon klar machen, dass die meisten durchaus ihre Berechtigung haben.
Zur Sonnenphobie: in den neuen Häusern ist eine entsprechende Verschattung Pflicht, sonst kocht man im Sommer wirklich. Das dürfte also nicht das Problem sein. Andererseits hilft der Sonneneinfall im Winter beim Heizen. Ist doch dumm, das nicht zu nutzen?
Darüber hinaus wissen wir doch alle, dass genügend Sonnenlicht essenziell für die Gesundheit und das Wohlbefinden ist. Das ist schon etwas, was ich bei der Planung berücksichtigen würde.
Zwei Essplätze in unmittelbarer Nähe kostet Platz und macht welchen Sinn?
30 Schlafgäste im Jahr, also gehe ich von einem gästefreundlichen Haushalt aus. D.h. am Tisch werden öfter mehr Leute als nur Familie sitzen. Will ich dann jedes Mal einen Zweittisch aus dem Keller holen und mir so eine Behelfssituation schaffen, die nichts Halbes und nichts Ganzes ist? Wäre es nicht sinnvoller, gleich EINEN etwas umfangreicheren Essplatz zu schaffen, der ohne große Umbaumaßnahmen auch ein paar Gäste aufnehmen kann?
Just my 2 Cents...
Ähnliche Themen