ᐅ Grundriss Einfamilienhaus mit Keller
Erstellt am: 27.09.15 11:35
Hallo liebes Hausbauforum ;-)
Wir planen seit einiger Zeit den Bau unseres Einfamilienhauses und nach einigem Hin und Her scheint es, als ob es nun endlich klappen könnte.
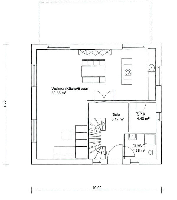
Wir haben unsere Wünsche in so weit der Baufirma kommunizieren können, dass nachfolgender Grundriss entstanden ist. Da es unser erstes Haus ist (und im Idealfall auch das letzte) sind wir nun für jedweden Vorschlag offen, was daran unpraktisch ist bzw. was man besser machen kann. Die Baufirma bietet da bisher nicht allzu viel Feedback, die bauen vermutlich einfach was man ihnen sagt.
Generell: Wie man sieht ein eher konservatives "Standard"-Einfamilienhaus. Der Keller resultiert aus der begrenzten Grundstücksfläche und dem Bedarf an einem nicht allzu kleinen Arbeitszimmer, dass auch als Gästezimmer und Rückzugsort fungieren kann gepaart mit dem Bedarf an Stauraum ;-). Da das Grundstück zum Garten hin etwas abschüssig ist wollen wir versuchen, eine Seite etwas herausschauen zu lassen und ein halbwegs großes Fenster unterzubringen.
Kinder sind 2 angedacht, eins davon gibt mit seinem Geschrei aber auch schon gerne seinen Senf dazu.
Im großen Wohnzimmer brauchen wir irgendwo eine Ecke, wo man eine schöne Leinwand für Beamer-Filmabende und entsprechend auch ein paar Sitzmöglichkeiten unterbringen kann. Mal sehen ob das klappt...
wie gesagt, wir sind für jeden Input dankbar und wenn noch Fragen offen sind: nur her damit! Generell denke ich, dass das Haus auch gerne etwas "länglicher" sein könnte um weniger Garten zu verschenken. Meint ihr das wäre sinnvoll machbar?




Wir planen seit einiger Zeit den Bau unseres Einfamilienhauses und nach einigem Hin und Her scheint es, als ob es nun endlich klappen könnte.
Wir haben unsere Wünsche in so weit der Baufirma kommunizieren können, dass nachfolgender Grundriss entstanden ist. Da es unser erstes Haus ist (und im Idealfall auch das letzte) sind wir nun für jedweden Vorschlag offen, was daran unpraktisch ist bzw. was man besser machen kann. Die Baufirma bietet da bisher nicht allzu viel Feedback, die bauen vermutlich einfach was man ihnen sagt.
Generell: Wie man sieht ein eher konservatives "Standard"-Einfamilienhaus. Der Keller resultiert aus der begrenzten Grundstücksfläche und dem Bedarf an einem nicht allzu kleinen Arbeitszimmer, dass auch als Gästezimmer und Rückzugsort fungieren kann gepaart mit dem Bedarf an Stauraum ;-). Da das Grundstück zum Garten hin etwas abschüssig ist wollen wir versuchen, eine Seite etwas herausschauen zu lassen und ein halbwegs großes Fenster unterzubringen.
Kinder sind 2 angedacht, eins davon gibt mit seinem Geschrei aber auch schon gerne seinen Senf dazu.
Im großen Wohnzimmer brauchen wir irgendwo eine Ecke, wo man eine schöne Leinwand für Beamer-Filmabende und entsprechend auch ein paar Sitzmöglichkeiten unterbringen kann. Mal sehen ob das klappt...
wie gesagt, wir sind für jeden Input dankbar und wenn noch Fragen offen sind: nur her damit! Generell denke ich, dass das Haus auch gerne etwas "länglicher" sein könnte um weniger Garten zu verschenken. Meint ihr das wäre sinnvoll machbar?
- Maße bitte!
- wieso die Dusche im EG? Ohne die Dusche könnte man das WC so gestalten, dass man einen brauchbaren Eingangsbereich hätte mit Garderobe und so... wenn es nur um eine zweite Dusche geht, bringt die im Keller unter.
- Schönes Grundstück, ich würde dem Haus noch mehr Fenster in den Garten gönnen
- Finde im OG diese Nische neben der Treppe immer sehr Schade (meistens staubt die einfach voll mit nem Oma-Sessel drin oder so)
- Überlegt euch, ob ihr wirklich im Keller waschen wollt
- Was hat das Haus für einen Kniestock? Das Bad sieht etwas so aus als gäbe es gar keinen
- Wie rum steht das Haus auf dem Grundstück? Das Rechteck passt nicht wirklich zum quadratischen Haus
- "begrenzten Grundstücksfläche" - das sieht auf dem Lageplan nicht begrenzt aus.. .wie groß ist denn das?
- wieso die Dusche im EG? Ohne die Dusche könnte man das WC so gestalten, dass man einen brauchbaren Eingangsbereich hätte mit Garderobe und so... wenn es nur um eine zweite Dusche geht, bringt die im Keller unter.
- Schönes Grundstück, ich würde dem Haus noch mehr Fenster in den Garten gönnen
- Finde im OG diese Nische neben der Treppe immer sehr Schade (meistens staubt die einfach voll mit nem Oma-Sessel drin oder so)
- Überlegt euch, ob ihr wirklich im Keller waschen wollt
- Was hat das Haus für einen Kniestock? Das Bad sieht etwas so aus als gäbe es gar keinen
- Wie rum steht das Haus auf dem Grundstück? Das Rechteck passt nicht wirklich zum quadratischen Haus
- "begrenzten Grundstücksfläche" - das sieht auf dem Lageplan nicht begrenzt aus.. .wie groß ist denn das?
Danke für die schnelle Antwort!
- wieso die Dusche im EG? Ohne die Dusche könnte man das WC so gestalten, dass man einen brauchbaren Eingangsbereich hätte mit Garderobe und so... wenn es nur um eine zweite Dusche geht, bringt die im Keller unter.
- Schönes Grundstück, ich würde dem Haus noch mehr Fenster in den Garten gönnen
- Finde im OG diese Nische neben der Treppe immer sehr Schade (meistens staubt die einfach voll mit nem Oma-Sessel drin oder so)
- Überlegt euch, ob ihr wirklich im Keller waschen wollt
- Was hat das Haus für einen Kniestock? Das Bad sieht etwas so aus als gäbe es gar keinen
- Wie rum steht das Haus auf dem Grundstück? Das Rechteck passt nicht wirklich zum quadratischen Haus
- "begrenzten Grundstücksfläche" - das sieht auf dem Lageplan nicht begrenzt aus.. .wie groß ist denn das?
BeHaElJa schrieb:Wovon genau?
- Maße bitte!
- wieso die Dusche im EG? Ohne die Dusche könnte man das WC so gestalten, dass man einen brauchbaren Eingangsbereich hätte mit Garderobe und so... wenn es nur um eine zweite Dusche geht, bringt die im Keller unter.
- Da benötigen wir laut Baufirma dann eine extra Hebeanlage. Außerdem war angedacht im Idealfall so lange in dem Haus zu bleiben bis mich dort jemand rausträgt, sprich im Alter die Option zu haben im Erdgeschoss zu schlafen wäre schon nett.
- Schönes Grundstück, ich würde dem Haus noch mehr Fenster in den Garten gönnen
- klingt gut!
- Finde im OG diese Nische neben der Treppe immer sehr Schade (meistens staubt die einfach voll mit nem Oma-Sessel drin oder so)
- stimmt! Ich weiß nur leider momentan nicht, wie groß der Dachboden wird und wo die Ausklapptreppe hin kommt.
- Überlegt euch, ob ihr wirklich im Keller waschen wollt
- wir würden in jedem Fall die Wäsche im Keller aufhängen wollen. Da wäre es doch gut, wenn sie auch dort Gewaschen wird.
- Was hat das Haus für einen Kniestock? Das Bad sieht etwas so aus als gäbe es gar keinen
- guter Einwand! Gesagt hatten wir, dass er mindestens 1m bis 1,50m sein sollte. würde mich wundern wenn er höher ist. Sagen wir mal Informationen zu bekommen ist bei der Firma etwas mühselig, aber Bauträgerbindung...
- Wie rum steht das Haus auf dem Grundstück? Das Rechteck passt nicht wirklich zum quadratischen Haus
- Mea Culpa. So rechteckig hätte ich es eigentlich gerne drauf stehen, quadratich kam dann als Entwurf bei uns an... Der Eingang ist Richtung Norden (ok, der Carport muss weiter nach links! 🤨
- "begrenzten Grundstücksfläche" - das sieht auf dem Lageplan nicht begrenzt aus.. .wie groß ist denn das?
- noch etwas schwammig, sind aber zwischen 530 und 560m²
- Maße von allen Zimmern bzw. Mauern, damit man Stellbreiten, Möblierung etc. bewerten kann.
- Welche Deckenhöhe ist geplant? Welche Treppenmaße? Alles Dinge dir ihr vor dem Unterschreiben klären solltet.
- Wo willst du dann schlafen? In der Speisekammer? 😉 - nee ist schon klar, was vom Wohnzimmer abtrennen.
- Wenn ihr schon solche Informationen nicht bekommt, denkt drüber nach mit wem anders zu bauen...
- Wenn euch der Grundriss nicht gefällt bittet um Überarbeitung. Ihr solltet nicht in einem Haus leben müssen, das euch nicht gefällt - dafür zahlt ihr dafür zu viel.
- okay, Grundstück wirkt auf der Zeichnung etwas größer ;-)
- Welche Deckenhöhe ist geplant? Welche Treppenmaße? Alles Dinge dir ihr vor dem Unterschreiben klären solltet.
- Wo willst du dann schlafen? In der Speisekammer? 😉 - nee ist schon klar, was vom Wohnzimmer abtrennen.
- Wenn ihr schon solche Informationen nicht bekommt, denkt drüber nach mit wem anders zu bauen...
- Wenn euch der Grundriss nicht gefällt bittet um Überarbeitung. Ihr solltet nicht in einem Haus leben müssen, das euch nicht gefällt - dafür zahlt ihr dafür zu viel.
- okay, Grundstück wirkt auf der Zeichnung etwas größer ;-)
Ich würde die Dusche auch im Keller unterbringen, wenn ihr da das Gästezimmer macht. Zur Info: es gibt mittlerweile komplette Duschen, wo das Hebewerk bereits inbegriffen ist.
Außerdem, wenn ihr für die Dusche ein Hebewerk braucht, dann auch für die Waschmaschine und das Waschbecken im Hauswirtschaftsraum und evtl. sogar für die Heizungsanlage/Lüftungsanlage
Würde versuchen, die Treppe nur einmal zu wendeln. Oben ist es unnötig und der Platzbedarf ist der Gleiche.
Der Eingang wird eng. Würde das Gäste-WC nicht größer als die Speisekammer machen, wie schon von BeHaElja vorgeschlagen. Unser Gästebad im EG hat die Innenmaße 1,80x1,80 und es reicht.
Die Nische im Flur, neben der Treppe würde ich lassen. Sonst wird der Flur zu mickrig. Würde aber noch ein Dachfenster zur besseren Belichtung einplanen.
Den Hobbyraum im Keller, braucht ihr den? Ihr habt ja zum feiern ein großes Wohnzimmer. Würde überlegen, aus diesem Raum 2 zu machen.
Außerdem, wenn ihr für die Dusche ein Hebewerk braucht, dann auch für die Waschmaschine und das Waschbecken im Hauswirtschaftsraum und evtl. sogar für die Heizungsanlage/Lüftungsanlage
Würde versuchen, die Treppe nur einmal zu wendeln. Oben ist es unnötig und der Platzbedarf ist der Gleiche.
Der Eingang wird eng. Würde das Gäste-WC nicht größer als die Speisekammer machen, wie schon von BeHaElja vorgeschlagen. Unser Gästebad im EG hat die Innenmaße 1,80x1,80 und es reicht.
Die Nische im Flur, neben der Treppe würde ich lassen. Sonst wird der Flur zu mickrig. Würde aber noch ein Dachfenster zur besseren Belichtung einplanen.
BeHaElJa schrieb:???? Die Badewanne ist doch nach innen gerückt und man sieht die 2m -Linie!
Was hat das Haus für einen Kniestock? Das Bad sieht etwas so aus als gäbe es gar keinen
Den Hobbyraum im Keller, braucht ihr den? Ihr habt ja zum feiern ein großes Wohnzimmer. Würde überlegen, aus diesem Raum 2 zu machen.
Ähnliche Themen