
macpet
Hallo Die Bauherren 2014,
Ok, das sehe ich ein. Ob der Posten da reicht, weiß ich nicht. Aber zumindest klingt es plausibler.
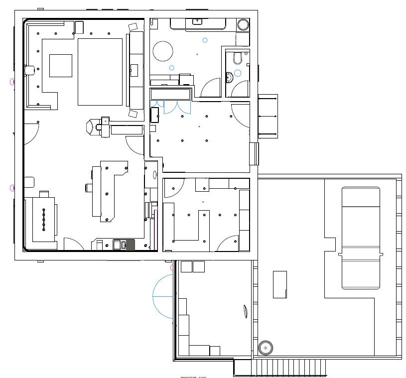
Was die Planung angeht: Ich verstehe Dich voll und ganz. Auch wir haben vorher viel Zeit damit verbracht, uns klarzumachen, was wir wollen und was nicht. Nur bei dem schon sehr konkreten Grundriss habe ich das Gefühl, dass ihr schon viel zu sehr ins Detail geht, wo einfach noch einige Grundlagen fehlen. Viele machen dann einfach auch den Fehler, sich zu sehr auf das zu versteifen, was Sie da so zu Papier (oder in den PC) gebracht haben und keine neuen und vielleicht besseren Ideen mehr zulassen zu wollen.
Ich finde man kann gar nicht zu sehr ins Detail gehen, um wirklich wichtige Dinge nicht zu vergessen. Details weglassen geht immer und jetzt sind Sie halt schon drin. Für bessere Ideen bin ich immer zu haben und bin nicht Beratungsresistent. Ich bin halt immer wieder die aktuelle Wohnsituation durchgegangen und habe hier viel bemängelt. Was man am Papier hat kann man halt nicht mehr so leicht vergessen. Ein Beispiel: Man möchte einen Komposthaufen und rechnet nicht mit einer braunen Tonne. Dann kann man den Komposthaufen aber nicht an die Örtlichkeiten anpassen und ein Platz für 2 Mülltonnen ist auf einmal nicht mehr da. Da plane ich doch lieber 2 Mülltonnen, gut belüftet in der Garage und für Tiere unzugänglich und falls nur 1 zum Einsatz kommt freue ich mich über den übrigen Platz. Eine Garage für 2 Autos. Wer braucht das schon im alter? Aber vielleicht freuen sich die Kinder oder die nächsten Besitzer oder wer auch immer und wer braucht überhaupt ein Auto. Und den Entwurf zu ändern oder etwas ganz neues zu machen, kann nicht mehr so lange dauern wie der erste Entwurf. Jetzt sind viele Teile vorhanden.
Danke soweit.
Ok, das sehe ich ein. Ob der Posten da reicht, weiß ich nicht. Aber zumindest klingt es plausibler.
Was die Planung angeht: Ich verstehe Dich voll und ganz. Auch wir haben vorher viel Zeit damit verbracht, uns klarzumachen, was wir wollen und was nicht. Nur bei dem schon sehr konkreten Grundriss habe ich das Gefühl, dass ihr schon viel zu sehr ins Detail geht, wo einfach noch einige Grundlagen fehlen. Viele machen dann einfach auch den Fehler, sich zu sehr auf das zu versteifen, was Sie da so zu Papier (oder in den PC) gebracht haben und keine neuen und vielleicht besseren Ideen mehr zulassen zu wollen.
Ich finde man kann gar nicht zu sehr ins Detail gehen, um wirklich wichtige Dinge nicht zu vergessen. Details weglassen geht immer und jetzt sind Sie halt schon drin. Für bessere Ideen bin ich immer zu haben und bin nicht Beratungsresistent. Ich bin halt immer wieder die aktuelle Wohnsituation durchgegangen und habe hier viel bemängelt. Was man am Papier hat kann man halt nicht mehr so leicht vergessen. Ein Beispiel: Man möchte einen Komposthaufen und rechnet nicht mit einer braunen Tonne. Dann kann man den Komposthaufen aber nicht an die Örtlichkeiten anpassen und ein Platz für 2 Mülltonnen ist auf einmal nicht mehr da. Da plane ich doch lieber 2 Mülltonnen, gut belüftet in der Garage und für Tiere unzugänglich und falls nur 1 zum Einsatz kommt freue ich mich über den übrigen Platz. Eine Garage für 2 Autos. Wer braucht das schon im alter? Aber vielleicht freuen sich die Kinder oder die nächsten Besitzer oder wer auch immer und wer braucht überhaupt ein Auto. Und den Entwurf zu ändern oder etwas ganz neues zu machen, kann nicht mehr so lange dauern wie der erste Entwurf. Jetzt sind viele Teile vorhanden.
Danke soweit.