Wow, so viele Beiträge

Ich war doch nur 2 Stunden weg

also, ich versuche das mal für mich zu sortieren zw. zu bewerten:
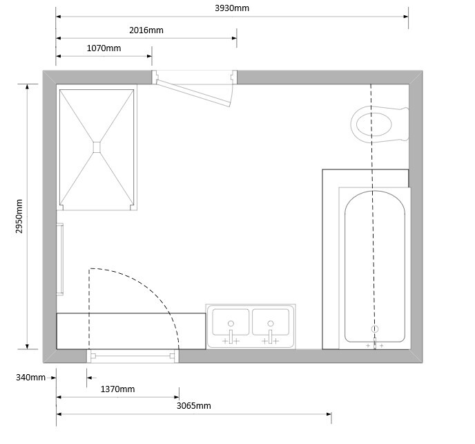
Grundsätzlich finde ich die Idee gut, die Badewanne unter der Dachschräge zu platzieren, da oberhalb der Wanne die einschränkte Höhe durch die Schräge nicht stört. Der Kniestock ist mit 1,57m außerdem recht hoch - ein Podest würde dem Raum hier möglicherweise etwas Struktur geben und die Wanne in den Mittelpunkt rücken, ohne dass die Höhe ein Problem wird - eine Podesthöhe von ca. 15 - 20 cm ist sicherlich ausreichend.
Die Wanne soll ja - aufgrund ihrer Ausführung - links und rechts ein wenig Abstand zur Wand haben, und mit der Rückseite an der Vorwand bzw. dem Kniestock stehen. Daher kommt der Vorschlag von dir,
@ypg, leider nicht in Frage.
Die Dachschräge hat übrigens einen Winkel von 45°.
@Myrna_Loy
Ohne Tür frier ich immer - Stichwort Dampfsäule. Es gibt so schöne Glasduschen, die sich gut reinigen lassen. Eine unten offene Glaswand spritzt nur Wasser direkt vor die Tür und wenn man reingeht schiebt man sich mit der Schulter an 140 cm Glasfläche vorbei... ? Das wäre mir zu eng.
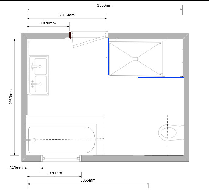
Bezüglich des Frierens unter der Dusche, wenn eine Tür fehlt, haben wir tatsächlich keine Erfahrung und haben uns auch wenig Gedanken dazu gemacht...Könnte dies tatsächlich ein Problem sein? Dann wäre eine kleinere Dusche (z.B. 90 x 100 oder 90 x 120) incl Tür sicher sinnvoller. Das mit dem Vorbeischieben verstehe ich leider nicht ganz

Über die Dusche unter der Dachschräge haben wir auch kurz nachgedacht, dass haben wir dann aber verworfen, da wir den Platz hinter der Tür nicht sinnvoll anderweitig nutzen konnten.
Würde man die Dusche wie eingezeichnet links oben platzieren, könnte man am "Ausgang" noch einen Handtuch-Heizkörper an der Wand anbringen.
Das Fenster geht übrigens nach "links" auf, habe das im aktualisierten Plan nochmal nachgetragen.
Die einfachste Möglichkeit, die Toilette unterzubringen, wäre vermutlich auch am Kniestock, da sich der Spülkasten und die Verbindung zum Fallrohr hier am einfachsten realisieren lassen. Alternativ schaffe ich einen Vorsprung an der Wand planoben.
Vielen Dank für die tollen Beiträge!!
Moritz