W

Warning: Undefined array key "username" in /www/htdocs/w01d981c/backend.hausbau-forum.de/frontend/index.php on line 357
Mein Konto
Hausbau - Ratgeber
Bauherrenhilfe
- Bauherrenhilfe vor Vertragsabschluss
-- Warum einen unabhängigen Baubetreuer?
-- Vertragsgrundlagen
-- Bausumme
-- Zahlungsplan zur Kostenkontrolle
-- Pflichten des Bauherren vor Vertragsabschluss
-- Unterlagen beim Hausbau vor Vertragsabschluss
- Bauherrenhilfe nach Vertragsabschluss
-- Bauantrag bei Behörden
-- Bau-Genehmigungsverfahren bei Baubehörden
-- Bauspezifische Versicherungen
-- Bauzeitenplan
-- Baubeginn - die Letzten Pflichten der Bauherrschaft
- Bauherrenhilfe während der Bauzeit
- Gewährleistungsansprüche
- Bauabnahme
Baufinanzierung
- Baufinanzierung - Allgemeine Fragen
- Kreditarten
- Kredit-Konditionen
- Bausparen
- Staatliche Förderungen
- Verkehrswert
- Haushaltsrechnung und Bonität
Hausbau Planung
- Haustypen
- Hausbau Vorbereitungsarbeiten
- Das Baugrundstück
- Baugrund beim Hausbau
- Baurecht
- Gebäudeschutz
- Erdarbeiten und Wasserhaltung
- Stützmauern
- Einfriedung
- Untergeschoss
- Kanalisation
- Tragende Elemente
- Nichttragende Innenwände
- Fundation / Fundament
- Deckenkonstruktionen
- Dächer
- Kaminanlagen
- Treppen Rampen Leitern
- Dachbeläge und Spengler
- Fenster
- Sonnen und Wetterschutz
- Aussenputze
- Einbauten, Küchen, Türen
- Bodenbeläge und Unterlagsböden
- Parkett
- Gips, Wand, Decke
Haustechnik und Energie
- Heiztechnik
- Lüftung und Klimatechnik
- Sanitärtechnik
- Elektrotechnik
- Erneuerbare Energie
Whirlpools / Jacuzzi
Hausbau Magazin
- Baufinanzierung trotz Krise?
- Das Blockhaus
- Moderne Dämmstoffe im Vergleich
- Erker Vor- und Nachteile
- Glasflächen beim Hausbau
- Günstig ein Haus Bauen
- Mediterraner Hausbaustil
- Mehrgenerationenhaus
- Moderne Architektur
- Gartengestaltung leicht gemacht
- Traditioneller Ziegelbau
- Villa als höchster Traum
- Im Eigenheim Ruhestand geniessen
- Altbau sanieren
- Kauf einer Holzgarage
- Immobilienmakler
- Arbeitshandschuhe für den Winter
- Zuhause verschönern
- Outdoor-Plissees
- Schlafzimmer planen
- Terrassenüberdachung
- Wohngebäudeversicherung
- Zaunarten und Eigenschaften
- Hauseingang gestalten
- Der perfekte Grundriss
- Sparsamer heizen im Altbau
- Einfamilienhaus smart finanzieren
- Planung einer PV-Anlage
- Neues Haus
- Immobilienfinanzierung
- Installation einer Photovoltaikanlage
- Asbest erkennen und entfernen
- Sauna im Fokus - Wellness zuhause
- Erfolgreich vermieten
- Die perfekte Winterbekleidung
- Das Niedrigenergiehaus
- Der April und seine Stürme
- Architektonische Vielfalt
- Ökologisch und nachhaltig bauen
- Das perfekte Schlafzimmer
- Nachhaltige Energieversorgung
- Zukunftsorientiert bauen
- Nachhaltigkeit beim Hausbau
- Tiny Houses
- Wärmepumpen als nachhaltige Heizvariante
- Maßgeschneiderten Kleiderschrank
- Der richtige Baukredit
- Ratgeber für erfolgreichen Hausbau
- Haus als Altersvorsorge
Do-it-yourself Anleitungen
- Verlegeanleitung für Bodenbeläge und Parkett
- Bodenbeläge und Parkett reinigen und pflegen
- Malerarbeiten am Haus
- Garten Tipps
- Umzug und Reinigung

ᐅ Badumbau / Komplettsanierung - Layoutoptimierung


Erstellt am: 22.03.2021 19:55

LeBruece 22.03.2021 19:55
Hallo zusammen,

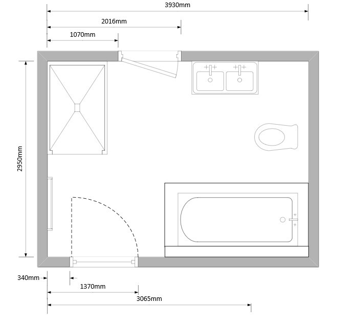
wir planen in unserem Einfamilienhaus derzeit den Umbau des Badezimmers im 1. Obergeschoss. Hierbei wird es sich um eine Komplettsanierung handeln, d.h. incl. neuer Fußbodenheizung, Estrich, usw.
Derzeit beschäftigen wir uns intensiv mit dem Layout des künftigen Bades, haben aber bisher das Gefühl, dass der aktuelle Stand noch nicht ganz "rund" ist. Ich würde mich freuen, wenn ihr uns bei der Verbesserung des Layouts unter die Arme greifen könnt. Hierzu erstmal ein paar Randbedingungen / Gegebenheiten:

-Maße des Raumes: 2,95 x 3,93 m; Deckenhöhe 2,45. Planrechts befindet sich eine Dachschräge, der Kniestock hat eine Höhe von 1,57 m
-Es sind (zumindest nehmen wir das bisher an 🙂 ) 2 Fallrohre vorhanden, planrechts im Bereich der Dusche sowie planlinks im Bereich der Toilette hinter dem Kniestock. Da sowieso alles (Bodenbelag, Wandverkleidung, alte Heizkörper) entfernt werden, ist auch das zeitgleiche Versetzten von Frisch- / Abwasserleitungen möglich, muss also beim Layout nicht besonders berücksichtigt werden. Tür und Fenster sind allerdings fix und lassen sich nicht umsetzen

Folgendes würden wir gerne in unserem Bad unterbringen / "Wunschliste":
- Bodengleiche Dusche (gerne im Stile "Geberit Setaplano". Alternativ ist auch eine geflieste Variante machbar, aber diese gefällt uns optisch sehr gut. Die Variante im Layout hat eine Größe von 90x140cm
- Badewanne - hier hatten wir in Richtung Villeroy & Boch Oberon 2.0 Vorwand-Badewanne gedacht. Für eine freistehende Badewanne fehlt uns (so denken wir) der Platz, und eine "geflieste" Badewanne gefällt uns nicht unbedingt. Die Villeroy & Boch ist ein sehr schöner Kompromiss
- waschtisch mit 1 oder 2 Plätzen. Aktuell sind wir zu dritt im Haushalt, da würde ein Becken locker reichen. Aber man weiß ja nie 🙂
- Toilette - wäre wohl am leichtesten am Kniestock planrechts unterzubringen, da hier die Unterbringung des Unterputz-Spülkastens am natürlichsten wirkt

Dies sind unsere derzeitigen Schwierigkeiten mit dem Layout:
- Grundsätzlich wirkt es nicht wie aus einem Guss, sondern als wenn alle benötigten Einrichtungen einfach reingeworfen wurden - wenn ihr versteht was wir meinen 🙂
- Hinter der Wand planlinks befindet sich ein Kinderzimmer - die Dusche als lautesten "Einrichtungsgegenstand direkt an dieser Wand zu platzieren ist ggf. nicht sinnvoll
- Die Duschabtrennung würden wir gerne mit einer Glasscheibe an der rechten Seite der Dusche realisieren (nach "unten" offen), allerdings ist das die Richtung in die derzeit die Tür öffnet. Wir sind nicht sicher, ob das vernünftig aussieht.
- Wir haben noch keine Schränke für Handtücher, Hygieneartikel etc untergebracht.

Vielleicht hat der ein oder andere ja einen guten Hinweis bzgl. einem oder mehreren der oberen Punkte. Wenn irgendetwas unklar ist, einfach raus damit 🙂
VIelen Dank schon einmal für eure Unterstützung!!
Viele Grüße
Lena & Moritz

icandoit 22.03.2021 22:32
Ist das gestrichelte die 2 m Linie?

ypg 22.03.2021 22:56
LeBruece schrieb:

2 Fallrohre vorhanden, planrechts im Bereich der Dusche sowie planlinks im Bereich der Toilette hinter dem Kniestock.
Verwechselst Du jetzt links mit rechts?

Ich würde wohl Toi und Wanne tauschen. Toi kann man zur Tür mit ner ein Meter hohen Schamwand abgrenzen, Wanne kann man dann mit Podesten in Szene setzen und in der Position vermitteln. Podest unten rechts harmoniert dann auch mit dem Waschtisch, eventuell auch den Waschtisch mit Platte ganz nach planrechts verlaufen lassen bzw. in das Podest integrieren mit Regal, Ablage oÄ.

icandoit 23.03.2021 00:24
Ich greife mal die Idee von auf









ypg 23.03.2021 01:04
Nein, das sind nicht meine Ideen! 😱
Wanne parallel unter die Schräge...

icandoit 23.03.2021 08:32
Meinst Du so:




Dann eventuell so?




Oder so:


villeroy & bochbadewanneduschekniestocktürwaschtischtoilettepodest