Hi zusammen,
erstmal vielen Dank für das schnelle Feedback. Ich habe in meinem Beitrag 1 - 2 kleinere Fehler gemacht, die ich nochmal korrigieren muss.
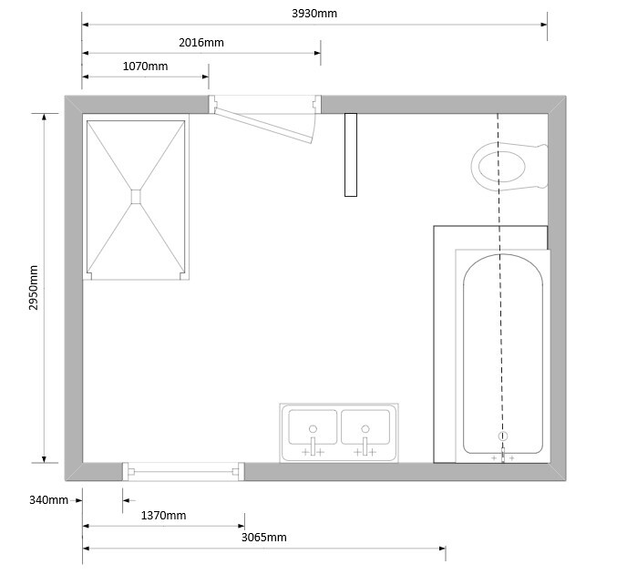
- es gibt nur ein Fallrohr, dieses befindet sich planrechts hinter dem Kniestock
- die gestrichelte Linie war der Beginn der Dachschräge. Im angehängten Bild habe ich diese auf die 2m-Linie verschoben
@ypg:
Wanne kann man dann mit Podesten in Szene setzen und in der Position vermitteln. Podest unten rechts harmoniert dann auch mit dem Waschtisch, eventuell auch den Waschtisch mit Platte ganz nach planrechts verlaufen lassen bzw. in das Podest integrieren mit Regal, Ablage oÄ.
Hast du zufällig ein Beispielbild, wie sowas aussehen könnte? Die Idee mit dem Podest finde ich gut, das hebt die Wanne sehr schön hervor hervor. Für den Übergang zum waschtisch fehlt mir gerade die Phantasie

. Hatte auch überlegt, im Kniestock ggf. noch ein "Ablagefach" einzubauen, wie bei dem Bild im Anhang.
Habe versucht, deine Ideen mal in einen neuen Entwurf zu übernehmen.
@icandoit: Die Idee, den Waschtisch unter die Fensterbank zu verlängern, finde ich auch nicht schlecht. Darunter könnte man ggf. offene Fächer für Handtücher usw. vorsehen. In dem Fall würde eine lange "Arbeitsplatte" mit 2 aufgesetzten Waschbecken wohl am meisten Sinn machen, oder?
Ist es grundsätzlich besser, den Anschlag der Tür zu drehen, sodass beim Öffnen die Toilette verdeckt ist und man auf der rechten Seite einen Blick auf die schöne Dusche + Glaswand hat?
VIelen Dank für eure Unterstützung!!
Moritz