Abweichung vom Bebauungsplan in Neubaugebiet möglich

4,20 Stern(e) 5 Votes
Zuletzt aktualisiert 06.10.2025
Sie befinden sich auf der Seite 14 der Diskussion zum Thema: Abweichung vom Bebauungsplan in Neubaugebiet möglich
>> Zum 1. Beitrag <<

Y

ypg

„Ist denn die Info zum Norden und Westen überhaupt bei Dir angekommen?“ Hm der Thread ist mittlerweile recht komplex, was genau meinst du jetzt?
Dass mehr Platz im Westen zu mehr Sonne im Norden führt?
Naja, eine Resonanz einfach darauf, ob Du verstehst, dass auch im Norden die Sonne scheint, hätte genügt.

Also noch mal meine Frage: was hab ich gewonnen wenn ich es drehe?
@11ant hat es schon ganz gut ausgedrückt.

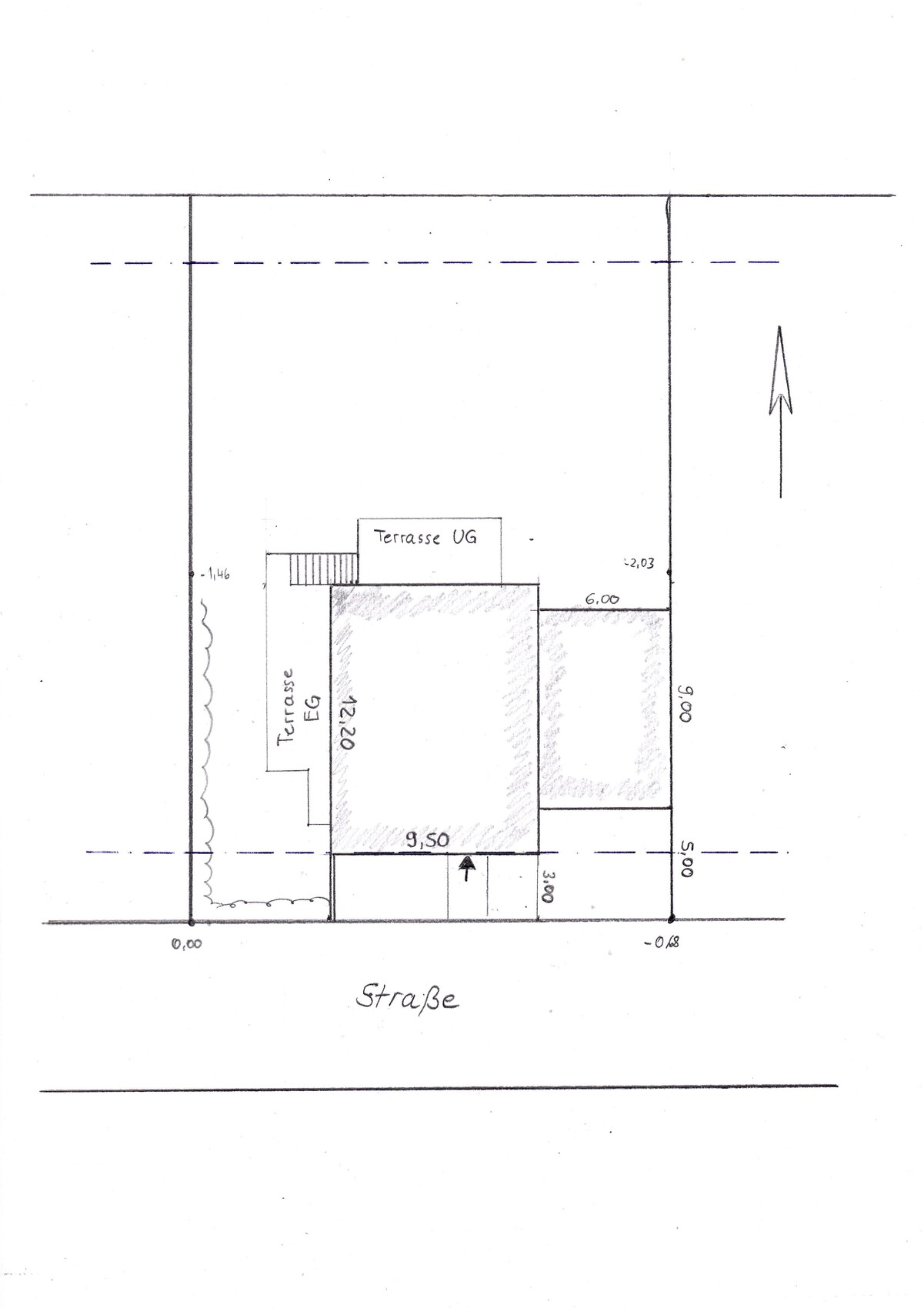
Zu mehr mag ich mich gar nicht äussern, weil ich Dein Problem im Eingangspost, was Du erfragt hast, als Laie nicht greifen kann. Auch der von Dir eingestellte Plan ist für mich nicht greifbar, teilweise gar nicht zu lesen, als Laie schwierig deut- und interpretierbar - Escroda hat fundierteres Wissen.

Ich fühle mich mehr für die Gesamtkomposition von Haus und Garten sowie Grundrisse zuständig. Aber auch Gartengestaltung. Dabei würde ich beispielsweise auch einen direkten Zugang von Garage und Haus sausen lassen, wenn es mit anderen Faktoren nicht gut zusammenpasst.

Um mich etwas mehr aus dem Fenster lehnen zu können, fehlen mir Fotos vom Grundstück und der Nachbarbebauung, auch ein Plan dazu wäre hilfreich. Hier im ganzen Thread muss man ja die wenigen Infos zusammensuchen, wofür ich eigentlich nicht bereit bin, weil sie eh nicht vollständig sind und man irgendwie alles nur zusammenrät. das fängt schon beim Familienbedarf an.
 
J

Jana33

Die Straße ist im Süden (unten im Plan), der große Abstand der mich stört (oben im Plan ) ist Norden.
Is ja jetzt egal ob es ein Drehen / Zurückdrehen oder was auch immer ist….wenn man die Firstrichtung des gezeigten Plans ändert….
Und danke aber auch fürs übersetzen…
„Welche Optionen ergäben sich denn theoretisch für euch, mit einem um 90° gedrehten Haus so weit wie möglich nach vorne auf's Grundstück zu kommen.“
Das wäre überhaupt kein Problem, wir müssten zur Strasse hin lediglich die 7,30m/2 (H halbe) = 3,65 m Abstand halten , auch im Osten z.B. dann, und 1H Abstand (ca 7,30) dann im Norden und Westen, dann platziert sich das Haus so weit vorne wie möglich. Ergibt maximal viel Garten (im Norden und Westen) mit Westsonneneinfall.
Ausnahme brauch ich trotzdem fürs Auffüllen.( Zwischen Straße und Terrasse derzeit nur auffüllen erlaubt, dann komme ich nicht zur Tür rein wenn die zB im Osten wäre).
Ich kenne einfach niemanden der freiwillig seinen ganzen Garten in den Norden verlegt.
 
J

Jana33

Um mich etwas mehr aus dem Fenster lehnen zu können, fehlen mir Fotos vom Grundstück und der Nachbarbebauung, auch ein Plan dazu wäre hilfreich. Hier im ganzen Thread muss man ja die wenigen Infos zusammensuchen, wofür ich eigentlich nicht bereit bin, weil sie eh nicht vollständig sind und man irgendwie alles nur zusammenrät. das fängt schon beim Familienbedarf an.
ich stelle wenn ich daheim bin mal eine 3D Zeichnung rein....da erkennt man es vielleicht besser dann....
 
Y

ypg

Ich kenne einfach niemanden der freiwillig seinen ganzen Garten in den Norden verlegt.
Weil die wenigstens verstehen, dass Lage der Fenster und damit der Lichteinfall im Haus etwas anderes ist als die Lage des Gartens. Haben wir hier schon sehr oft gehabt, dass ein jemand nicht verstanden hat, dass ein Wohnzimmerfenster nicht gleichbedeutend die Terrassenlage anzeigt.
Bei einem Standardhaus mit Standardlage muss man darüber auch nicht nachdenken.
 
77.willo

77.willo

Zum Nordgarten. Wir haben einen reinen Nordgarten und dazu noch ein 11 m hohes Haus. Trotzdem haben wir von Mai bis September genug Sonne im Garten, so dass wir den ganz normal bepflanzt haben und auch so gut wie jeden Abend nach der Arbeit die Terrasse genutzt haben. Wir haben am Wochenende auch dauernd auf der Terrasse gefrühstückt, allerdings nicht in direkter Sonne. Gerade im Sommer steht die Sonne so hoch das der Schattenstreifen am Vormittag sehr schmal ist und am Nachmittag nicht mehr vorhanden ist. An eurer Stelle würde ich den Abstand von Haus und Nordgrenze so groß wie möglich gestalten, dann werdet ihr im hinteren Teil des Gartens keinen Unterschied merken. Wir reden ja von einem Einfamilienhaus und nicht von einem Mittelgebirge.

Immerhin wäre euer Südgarten ja auch der Nordgarten des Hauses gegenüber, usw....
 
E

Escroda

Kurze Zuwegung, Garagenzugang über Abstellraum möglich, bodentiefe Fenster vom UG in den Garten, Terrasse EG zum Garten hin als Balkon (oder unterbauen, oder UG vergrößern), keine Grundrissveränderung nötig, keine Befreiungen nötig.

Skizzenhafter Grundrissplan eines Grundstücks mit Terrasse und Straßenausschnitt.

Und jetzt kommst Du ...
 
Zuletzt aktualisiert 06.10.2025
Im Forum Bauland / Baurecht / Baugenehmigung / Verträge gibt es 3155 Themen mit insgesamt 42834 Beiträgen


Ähnliche Themen zu Abweichung vom Bebauungsplan in Neubaugebiet möglich
Nr.ErgebnisBeiträge
1200m2 Einfamilienhaus für 4-5 Personen ohne Keller auf schmalem Grundstück - Seite 467
2Grundstück nehmen oder warten und Risiko in kauf nehmen? - Seite 222
3Grundriss mit Garage auf Grundstück realisierbar? - Seite 429
4Grundrissplanung Einfamilienhaus ca. 170 m² auf schmalem 750m² Grundstück - Seite 559
5Grundstück in Hanglage: erste Grundrissidee & bitte um Feedback 63
6Platzierung auf dem Grundstück - Seite 543
7Hausplatzierung - schmales - langes Grundstück - Seite 317
8Schwieriger Grundriss Grundstück und Denkmal - §34 - Seite 10128
9Was haltet Ihr von diesem Grundstück? - Seite 211
10Grundriss Einfamilienhaus mit Doppelgarage und Terrasse 19
11Hausplatzierung auf Grundstück, Ideen gesucht 23
12Welche Rollläden bei verschlossenem Fenster, nur Verglasung? - Seite 213
13 Küchenplanung mit tiefen Fenster 43
14Erbpacht-Grundstück die einzigste Lösung? - Seite 353
15Grundriss Einfamilienhaus geplant, Fenster gefallen uns - Seite 243
16Küchenplanung mit Insel und bodentiefe Fenster 12
17Fenster / Türen / Garderobe 13
18Platzierung Haus und Garage auf Grundstück 12
19schwieriges Grundstück -Lärmschutzverordnung? - Seite 216
20Einfamilienhaus, Eingeschossigkeit, Kniestock, Fenster OG - Seite 230

Oben