160qm zweigeschossiges Einfamilienhaus - Zweiter Versuch

4,80 Stern(e) 4 Votes
Zuletzt aktualisiert 25.11.2025
Sie befinden sich auf der Seite 3 der Diskussion zum Thema: 160qm zweigeschossiges Einfamilienhaus - Zweiter Versuch
>> Zum 1. Beitrag <<

M

morgenstern

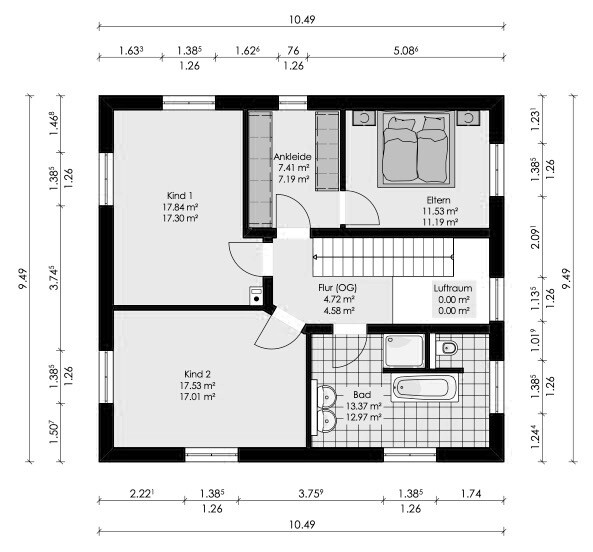
Hier mal die Entwürfe von Anbieter F:
Er hat leider das Wohnzimmer deutlich kleiner gemacht, die ursprüngliche Breite würde einen Stahlträger bedingen, der das Angebot nochmal teurer macht (Anbieter F ist eh schon der teurere von beiden).

Bei der EG Treppe fällt die Tür zum Kellerabgang weg, ebenso die Mauer rund um die Treppe.

Von Anbieter G haben wir noch keine Pläne, allerdings die mündliche Zusage, dass er von der Statik her keine Wand dicker machen muss, wie von uns geplant.

Wir lassen jetzt mal beide Angebote/Bauleistungsbeschreibungen von einem Sachverständigen prüfen und dann werden wir sehen, wer rein von den Zahlen her günstiger ist.

Grundriss des Kellergeschosses: zwei Kellerräume, HWR/Technik, Flur und Treppe.


Grundriss EG: Wohnzimmer/Essen, Küche, Arbeitszimmer, Diele; Dusche/WC; Terrasse


Grundriss des Obergeschosses mit Elternzimmer, zwei Kinderzimmer, Ankleide, Flur und Bad.
 
P

parcus

Wenn das im EG wegfällt, zählt der Treppenraum im UG zur beheizten Gebäudehülle und müsste entsprechend gedämmt werden,...

Seltsam zu sehen, wie viele Leute noch eine Treppe in einen unbeheizten Keller vorsehen, oder gar Garagen im Haus planen.
 
M

morgenstern

Dann ist der Keller anscheinend eh schon ausreichend gedämmt, da das von keinen Anbieter angesprochen wurde. Kann das sein bei KFW 55 oder auf was muss ich da achten?
 
P

parcus

Davon ist in der Zeichnung nichts zu sehen. Wo ist die Dämmung an der Wand, die Randdämmung, Hinweis zu dem Ud-Wert der Türen,...
Du siehst es spätentens im Wärmeschutznachweis, denn da muss jede Wärmebrücke nachgewiesen sein,
was ein sehr großer Aufwand ist. Der optimierte Wärmebrückenzuschlag mit Gleichwertigkeitsnachweis kann so nicht gegeben sein.
 
M

morgenstern

Danke für den Hinweis, ich werde das mal ansprechen.
Übermorgen geht's erst mal zum Treppenbauer, dann werde ich sehen ob die Treppe so geht oder vielleicht doch zu steil ist.
 
kbt09

kbt09

Schon in deinen Zeichnungen sah die Treppe und der Platz davor nicht gerade üppig aus. In der Zeichnung von Anbieter F sieht das noch enger aus. Habt ihr euch mal das Steigungsmaß der Treppe geben lassen und mal versucht eine ähnliche Treppe wg. Bequemlichkeit etc. zu nutzen?
 
Zuletzt aktualisiert 25.11.2025
Im Forum Grundrissplanung / Grundstücksplanung gibt es 2536 Themen mit insgesamt 88016 Beiträgen


Ähnliche Themen zu 160qm zweigeschossiges Einfamilienhaus - Zweiter Versuch
Nr.ErgebnisBeiträge
1Bungalow geplant auf vorhandenem Keller: Ideen? - Seite 220
2Einfamilienhaus 2 Stockwerke ohne Keller -Grundriss -Kosten -Umsetzbarkeit? 24
3Häuser ohne Keller: Stauraum Hobby-Keller? 49
4Grundriss Einfamilienhaus, ca. 200qm ohne Keller - Einschätzung - Seite 19172
5Mit oder ohne Keller Bauen - Erfahrungen - Seite 249
6Grundrissfrage, Treppe, Fenster, Ausrichtung 12
7Grundriss Einfamilienhaus mit Keller 19
8Einfamilienhaus mit kleiner Grundfläche, DG und Keller, Zustimmung Nachbar - Seite 531
9Ohne Keller gebaut & bereut? - Seite 477
10Eigenentwurf Grundriss Bungalow mit Keller 10
11Grundrissplanung Keller, EG + DG 12
12Grundriss 180qm plus Keller - 12,40mx9,04m 21
13Grundriss Einfamilienhaus, ~180m², Keller mit Satteldach - Seite 681
14Planung/Grundriss Einfamilienhaus (ca. 140 qm, Keller, EG, DG) - Seite 230
15Jetzt der finale Grundriss - 189qm ohne Keller; Stadtvilla - Seite 424
16Grundrisse für Einfamilienhaus, ca. 140m², ohne Keller 78
17Baumangel - Treppe nicht in Ordnung - Seite 212
18Haus mit Keller oder ohne? - Seite 349
19Baukosten in BW für Einfamilienhaus mit 200m2 Keller und Doppelgarage - Seite 438
20Grundrissplanung für Einfamilienhaus mit Keller auf Hanggrundstück 23

Oben