Wohin mit Terrasse/Wohnräumen wenn Straße auf Westseite liegt?

4,80 Stern(e) 4 Votes
Zuletzt aktualisiert 18.11.2025
Sie befinden sich auf der Seite 4 der Diskussion zum Thema: Wohin mit Terrasse/Wohnräumen wenn Straße auf Westseite liegt?
>> Zum 1. Beitrag <<

I

infors

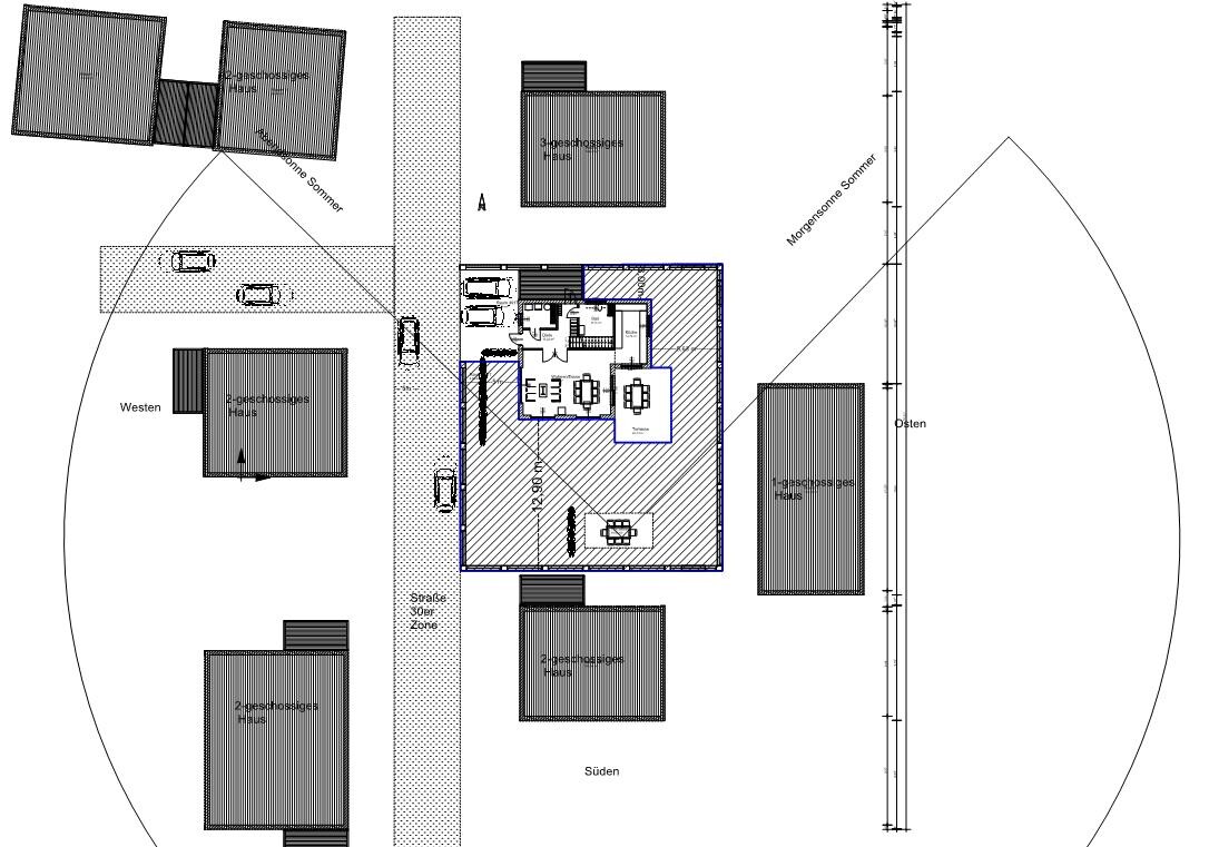
Vielen lieben Dank für eure so wertvollen Ideen. Ich habe eine aktualisierte Grafik mit der ungefähren Raumanordnung wegen dem Sichtschutz mal angehängt wie wir es uns nun vorstellen könnten. So sicher sind wir uns aber immer noch nicht...

Es gibt zwei Arten von 30er Zonen: Straßen, die lediglich ein Baugebiet erschließen, und als Abkürzung / Ampelumfahrung für Berufspendler nicht zu gebrauchen sind (und die nicht zu einem Supermarkt führen), sind die ruhige Sorte.
Es handelt sich um eine Straße, die lediglich in ein Neubaugebiet reinführt. Es liegt auch ein Verkehrsgutachten zur Verkehrsbelastung zu dem Neubaugebiet vor. Es sollen pro Tag (kalkuliert) min. 196 und Max. 391 PKW Fahrten durchgeführt werden.

Und bei niedrigen Einfriedungen haben die Schnellfahrer Angst, daß Ihr ihre Kennzeichen gut sehen könnt, und halten sich dann an die Fahrlärmbegrenzung.
Kann ich nachvollziehen. Allerdings bleibt die Einsicht in den Garten.

... außerdem passt hier doch auch wundervoll eine breite Terrasse auf Südseite, die von Westen auch noch Sonne bekommt. An die Westseite dann eine eher schmalere Terrasse mit einer Abendsonnenbank
Die Westseite ist uns zu nah an der Straße vom Gefühl, selbst für eine einzelne Bank. Da würden wir lieber eine weitere kleinere Terrasse anlegen für die Abendsonne. In der aktualisierten Grafik habe ich eine Idee von uns eingebunden. Wir könnten unten im südlichen Teil des Gartens doch eine 2te etwas kleinere Terrasse anlegen mit Platz zum Grillen und Sitzmöglichkeiten. Falls wir Abendsonne wünschen, so könnten wir einfach umziehen. Oder ist das aus eurer Sicht Blödsinn?

Wir hatten auch überlegt eine größere Terrasse auf die Südseite mit Markise einzuplanen. Wäre ja schön Morgens, Mittags und Nachmittags Sonne abzubekommen. Nur Abends würde Sie uns dann fehlen.

Oder so. Hier ist die Haupt-Terrasse näher an der Küche.
Pfeile zeigen mögliche Sichtachsen an.
Für den abendlichen Sundowner legt man sich eh meist eine zusätzliche Sitzfläche in einer anderen Ecke des Gartens zu, von der aus man sein Haus sehen kann
Na das war ja auch deine Idee. Eine weitere Ecke zum späteren Wechsel der Abendsonne. Finden wir auch gut.

Manche bauen sich ja die die WZ-Front übers Eck. Luxhaus hatte mal ein paar Entwürfe dazu mit dem Tango. Leider sind die Kataloge fast alle aus dem Netz verschwunden. Ich hab noch einen zu Hause. Einmal spiegeln und es passt. Ich find das gar nicht so schlecht.
Den Grundriss fand ich auch nicht schlecht. Dreht man deinen Grundriss so wie du es geschrieben hast, so hätten wir zumindest keine Aufenthaltsräume zur Straße hin, sprich es kann uns keiner ins Haus schauen. Was mich an deinem Grundriss nur etwas stört ist die Sache, dass man absolut gar keine Abendsonne ins Haus bekommt oder sehe ich das falsch? Und wir sind doch Sonnenmenschen...

Ab davon würde ich immer versuchen, dass die Terrasse so wenig wie möglich an die Straße grenzt oder deren Lärm ungehindert darauf purzelt. Also allein im Süden ist schon sehr bedenklich. Da brauchts schon nen ganz schönen Wald, damit es dahinter kuschelig wird.
Tja, das ist wirklich die Frage. Zum Faktor Verkehr habe ich ja weiter oben bereits etwas geschrieben. Ich kann nur nicht so wirklich sagen, ob die Prognose hoch oder niedrig ist in Bezug zum Verkehrslärm bzw. der Straßennutzung per PKW.

Ist es eine Durchgangsstraße? Wenn es rein der Erschließung im Wohngebiet dient, fahren dort vlt. 50 Autos am Tag vorbei???
50 wäre also ein ca. Wert, bei dem der Verkehrslärm nicht so sehr stören würde? Dann liegen wir ja doch weit über dem bei den Prognosen des Verkehrsgutachtens. Eine Durchgangsstraße ist die 30er Straße vor dem Grundstück nicht. Lediglich die einzige Straße ins Baugebiet.

Tja, wenn dahinter nicht dann das nächste Feld mit weiteren 50 Autos usw. erschlossen wird... Also mich würden auch die Fußgänger nerven, die auf meinen Kaffeetisch schauen. Und spielende Kinder auf der Straße sind zwar nett, aber es ist auch schön, wenn man mal Ruhe hat.
Weitere Flächen für noch mehr Neubauten kann es bei uns nicht geben. Es gibt keine weiteren Freiflächen für weitere Grundstücke. Das mit den Fußgängern fänden wir auch nicht so gut. Falls es noch Ideen zum Sichtschutz gibt immer her damit...

Das ist allerdings ein großer Pluspunkt dieser Variante: daß man damit die Terrasse auch um einen "halben Himmelsrichtungs-Schritt" aus der Firstrichtung / Hausachse drehen kann.
Ironie? Halber Schritt klingt nicht viel. Wobei der Grundriss 1:1 eh keine Fenster im Westen zulassen würde.

Grundriss eines Hauses mit Wohn-/Essbereich, Küche, Bad, Diele, Terrasse und Garage.

Lageplan eines Gebäudekomplexes: Zentral blau umrandetes Haus mit Innenraum, umliegende Häuser.
 
11ant

11ant

Ironie? Halber Schritt klingt nicht viel.
Nein, keine Ironie. Ich meinte: durch die 45°-Drehung innerhalb des Grundrisses hat man statt sonst nur zwischen trauf- und giebelseitig vorgelagerter Terrasse nun doppelt so viele Ausrichtungsmöglichkeiten dank halb so großer möglicher Teilschritte zwischen den Alternativen.

Wie Du ja selbst sagst:

Die Westseite ist uns zu nah an der Straße vom Gefühl, selbst für eine einzelne Bank. Da würden wir lieber eine weitere kleinere Terrasse anlegen für die Abendsonne. [...] Wir könnten unten im südlichen Teil des Gartens doch eine 2te etwas kleinere Terrasse anlegen mit Platz zum Grillen und Sitzmöglichkeiten. Falls wir Abendsonne wünschen, so könnten wir einfach umziehen. [...]Wir hatten auch überlegt eine größere Terrasse auf die Südseite mit Markise einzuplanen. Wäre ja schön Morgens, Mittags und Nachmittags Sonne abzubekommen. Nur Abends würde Sie uns dann fehlen.
Das klingt ja, als ließe sich die optimale Zahl der Terrassen von drei oder zwei auf zwei oder eine reduzieren, wenn die Ausrichtung der Hausseite an die sie sich anlehnen, nicht um 90° sondern 45° variierbar wäre.

Ist die nach außen öffnende Haustür "ernst gemeint" ?
 
C

Curly

ich würde die Terrasse in den Südwesten setzen, evtl. dort einen Wandrücksprung planen, so wie auf deiner Zeichnung im Südosten. Morgens sitzt man meiner Meinung nach eher nicht draußen (außer im Hochsommer). Um die Terrasse dann z.B. eine Fargesia Rufa pflanzen, die sieht auch in der prallen Sonne super aus und rollt keine Blätter. Außerdem wird sie nur ca. 1,20m hoch.

LG
Sabine
 
I

infors

Nein, keine Ironie. Ich meinte: durch die 45°-Drehung innerhalb des Grundrisses hat man statt sonst nur zwischen trauf- und giebelseitig vorgelagerter Terrasse nun doppelt so viele Ausrichtungsmöglichkeiten dank halb so großer möglicher Teilschritte zwischen den Alternativen.
Bin mir nicht so ganz sicher wie das mit den 45 Grad gemeint ist. Ich lade mal noch ein Bild hoch. Ist das die Idee die bei euch dahintersteckt? Ich glaub ich verstehe nicht so richtig was ihr mit 45 Grad drehen meint...


ich würde die Terrasse in den Südwesten setzen, evtl. dort einen Wandrücksprung planen, so wie auf deiner Zeichnung im Südosten. Morgens sitzt man meiner Meinung nach eher nicht draußen (außer im Hochsommer). Um die Terrasse dann z.B. eine Fargesia Rufa pflanzen, die sieht auch in der prallen Sonne super aus und rollt keine Blätter. Außerdem wird sie nur ca. 1,20m hoch.
Das mit dem Wandrücksprung ist im Westen ist eine Idee. Ein bisschen mehr Distanz zur Straße würde man dadurch bekommen. Nur macht es aus meiner Sicht nicht wirklich Sinn die Terrasse dorthinzusehen um Westsonne zu bekommen, wenn man sich in den Westen noch eine Pflanze hinsetze, die die untergehende Sonne samt Strahlen nicht mehr durchläßt. Dann hätten wir doch auch nichts mehr von der Westsonne. Oder sehe ich da etwas falsch?

Grundriss eines Hauses: Wohn-/Essbereich, Küche, Bad, Heizung, Eingang, Außenparkplätze.
 
Y

ypg

Bei letzterem Anblick gruselst mich

Aber ob nun gerade oder schräg: die Ostsonne bekommt Ihr auch im Süden, und da man abends länger sitzt als morgens früh die Muße hat, den Sonnenaufgang zu beobachten, würde ich die Einbuchtung im Westen machen und grundsätzlich dort mehr Fokus reinsetzen.

Aber bevor Du jetzt ins Detail gehen magst: der Grundriss muss eh überarbeitet werden - ihr habt überhaupt keine Abstell- und Verstaumöglichkeiten im EG -> kein Platz für Getränkekisten, Leergut, Werk- und Putzzeug sowie Wischeimer und Staubsauger. Oben werdet Ihr wohl kaum Ausgleich geplant haben?
Wie auch immer: Hauswirtschaftsraum ist zu klein, Bad zu gross... kann man aber gut tauschen
Tür im Carport wird mit Pkw nicht funktionieren, und mal überlegen, wo man die Sonne IM Haus geniessen wird
 
Zuletzt aktualisiert 18.11.2025
Im Forum Grundrissplanung / Grundstücksplanung gibt es 2536 Themen mit insgesamt 87965 Beiträgen


Ähnliche Themen zu Wohin mit Terrasse/Wohnräumen wenn Straße auf Westseite liegt?
Nr.ErgebnisBeiträge
1Grundriss Einfamilienhaus mit Doppelgarage und Terrasse - Seite 219
2Grundriss Bungalow 150qm geschlossene Küche, überdachte Terrasse - Seite 440
3Sichtschutz / Windschutz an Terrasse / Straße - Ideen? 26
4Idee für schönen Sichtschutz für Terrasse vor Doppelhaus gesucht 10
5Grundriss Stadtvilla mit Walmdach ca. 170 qm - Seite 561
6Grundriss: Ein Leben im Traum- oder Albtraumhaus? 20
7Grundriss über 200qm - Was haltet die Experten davon? 13
8Meinung zum Grundriss eines geplanten Bauhauses - Seite 323
9Meinungen f. Grundriss Einfamilienhaus ca. 160qm - Seite 429
10Meinungen zu Einfamilienhaus Grundriss 132 m² 16
11Meinungen zum Grundriss Bungalow - Seite 442
12Grundriss mit Garage auf Grundstück realisierbar? - Seite 329
13Grundriss Halboffene Küche mit großem Essbereich - Detailfragen - Seite 212
14Entwurf Grundriss Bungalow - Eure Meinungen bitte! - Seite 214
15Grundriss mit KG auf Hanggrundstück 32
16Mal wieder Grundriss - Fertighaus kurz vor Bauantrag - Seite 322
17Grundriss - Haus mit 2WE zur Vermietung - Seite 334
18Grundriss Bungalow 140 qm 26
19Winkelbungalow, Terrasse ganz oder halb überdachen? 57
20Grundriss Einfamilienhaus ca. 180 m² 11

Oben