Vorschläge zum Grundriss

4,70 Stern(e) 6 Votes
Zuletzt aktualisiert 04.10.2025
Sie befinden sich auf der Seite 8 der Diskussion zum Thema: Vorschläge zum Grundriss
>> Zum 1. Beitrag <<

RobsonMKK

RobsonMKK

Hallo,

ich habe noch mal ein wenig geschoben und gemacht.
Leider bietet mir mein Programm nach einer Änderung nicht mehr die Möglichkeit zu bemaßen, daher etwas spärlich per Hand, ich hoffe das reicht erst mal aus.

Mir geht es in erster Linie um die Machbarkeit im OG, besonders für das Bad. Aber ich fange mal von unten nach oben an, also Keller zuerst:

Grundriss eines Hauses mit Hobby, Spielzimmer, Waschküche/HWR, Toilette, Flur, Werkstatt, Abstellraum


Wir haben nun 3 Kellerfenster drin (ich hatte die Bauleistungsbeschreibung nicht, wusste als nicht was inkludiert ist). Die Fenster haben eine Größe von 62,5x100 cm (Brüstungshöhe 1,52). Dazu haben wir im Angebot noch eine Erhöhung von 2,25 auf 2,645 lichte Höhe.
Weiters ist geplant das im Flur, Spielzimmer und Hobbyraum eine Fußbodenheizung verbaut wird, der Rest bleibt unbeheizt.
Die Seite mit Werkstatt und Abstellraum ist erst mal nur als fixe Idee. In den HAR kommt neben Heizung und Stromkasten noch ein 19 Zoll Schrank für die Netzwerk und SAT Verkabelung. Dazu sollen noch weitere Sachen wie Laserdrucker eventuell hier mit rein.
Die Toilette im Hauswirtschaftsraum ist aktuell auch noch eine lose Idee, hier werden wir wahrscheinlich erst mal nur die An-/Abflüsse legen lassen.

Als nächste kommt das EG (als Attachement auch noch mit Position auf dem Grundstück und einer Idee zur Terrassennutzung):

Grundriss eines Hauses: Küche links, Diele zentral, Wohnzimmer, Arbeitszimmer rechts, Treppe, Garten.


Hier habe ich aktuelle keine Abmessungen drin, es wäre einfach zu unübersichtlich geworden.
Was ich sagen möchte, ich habe lange über die Größe der Speis nachgedacht. Und die Größe soll nun bei 1,50-1,55 m liegen (x ca. 2,50 m). Dazu bekommt die Speis ein kleines Fenster (welches im ursprünglichen Gästebad gewesen wäre (1,125 x 0,625).
Damit ergibt sich für das Bad eine Breite von 1,60-1,65 m. Reicht das für ein Duschbad aus?

Für das Wohnzimmer: Ich habe hier erst mal die Möbel rein genommen die wir aktuell im Besitz haben, passt soweit erst mal und soll punktuell erweitert werden.
Die äußeren Fenster zur Terrasse sollen starre Elemente werden (1,125 x 2,395), die Tür in der Mitte soll eine große Doppelflügeltür sein (2,25 x 2,395). Zur Seite raus geht noch eine Tür, gleiche Größe wie die starren Elemente. Ich denke so sollte das Wohnzimmer genug Licht bekommen.

Thema Küche werden wir demnächst angehen und uns ausführlichst beraten lassen.

Die Garderobennische hat aktuell eine Tiefe von 55 cm.


Kommen wir nun zu meinen "schweren" Obergeschoss...nach wie vor bleiben wir bei den 4 Zimmern. Ich habe es neulich bei einer Besichtigung das ganze umgebaut auf 3 Schlafzimmer gesehen, und das sah wirklich nicht gut aus.
Also, hier der Grundriss, bitte verzeiht die unorthodoxe Bemaßung:

Grundriss eines Hauses: Verena/Gast, Elternzimmer, Zimmer 6, Kind 1–2 und Bad.


Die zwei Meter Linie habe ich eingezeichnet, passt das mit der Toilette oder sollte man das anders machen?
Im Originalplan ist die Toilette direkt unter der Schräge.
Die Dusche hat eine Größe von 1 x 1 Meter.

Was habe ich noch geändert: das Zimmer meiner Frau ist etwas "geschrumpft", um knapp 60 cm in der Tiefe. Damit habe ich den Raum gewonnen die Wand zwischen Bad und Schlafzimmer zu ändern (und somit Platz für den Schrank hinter der Tür bekommen).


Nach wie vor bin ich für Vorschläge offen
Angehängt wie schon gesagt noch der Plan mit dem Grundstück (in der Ecke beim Nordpfeil ist eigentlich eine Kurve).
Den Schnitt (leider ohne Keller da aus dem Mustervertrag) habe ich auch mit angefügt.

Danke und viele Grüße
Robin

Schnitt durch ein zweigeschossiges Haus mit Treppen, Türen und Dachtragwerk.


Grundriss eines Hauses: Wohn- und Essbereich, Küche, Arbeitszimmer, Diele, Terrasse, Garten und Garage.
 
kbt09

kbt09

Die Treppe sieht sehr kurz aus ... da sollte man schon so 220 cm rechnen.

Bei der Lage:



würde ich die Küche da hin setzen, wo du den Wohnbereich geplant hast und den Wohnbereich dorthin, wo der Küchenraum ist. Dann hat man abends im Sommer die Küche an der Grillterrasse und überhaupt wird der Raum großzügiger wirken. Denn jetzt baust du quasi kleine Abschnitte in den großen Raum und wer reinkommt muss erst mal das Sofa umkurven.

Auf die Speisekammer würde ich komplett verzichten. bzw. nur eine kleine Abstellmöglichkeit für Staubsauger/Wischer planen. Was man gerade ständig braucht, kann in einem Schrank in der Küche verschwinden und Vorräte etc. können im Keller gelagert werden.
 
kbt09

kbt09

... und, dann habe ich gerade festgestellt, dass ich damals im März auch einen Planversuch gemacht habe.

Außenmaße Haus 20 cm schmaler, dafür einen größeren Erker. Zufahrt von Nord .. hier ist aktuell nur 1 Garage, könnte aber auch Doppelgarage werden. Oder es könnte ein Carport zwischen Haus und Garage gebaut werden.

Kniestock liegt bei 140 cm ... der ist glaube ich bei dir etwas niedriger.

Ob die Dachflächenfenster notwendig sind .. ich habe sie einfach mal gesetzt

Eingang von Nord.

Prüfe es doch mal.

Schnitt A-A durch ein zweigeschossiges Wohnhaus mit Treppenaufgang und Dachgaube.


Draufsicht auf Hausdach mit Grünfläche, mehreren Dachfenstern und Anbau


3D-Grundriss eines Hauses: Schlafzimmer, Büro mit Tischen, Bad, Flur, Garten.


Vogelperspektive: 3D-Floorplan eines Hauses mit Schlafzimmer, Wohnzimmer, Flur und Garten.


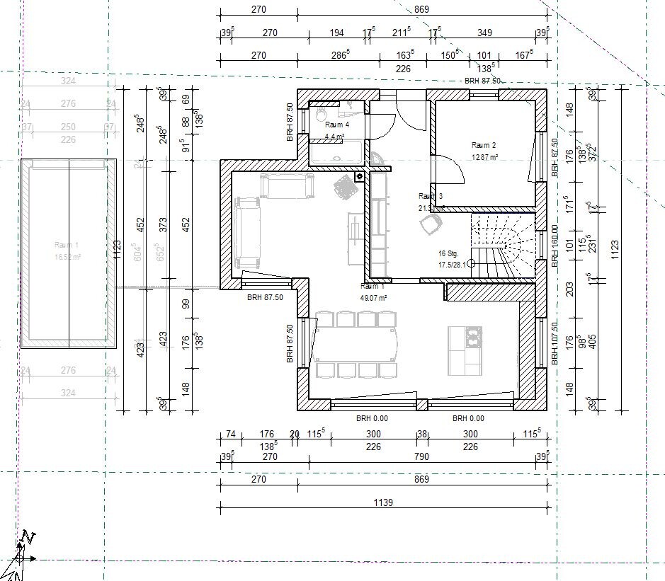
Architekturlayout: Grundriss eines Gebäudes mit Raum 1 bis 6, Treppen, Türen und Maßen.


3D-Grundriss eines Hauses mit Wohnzimmer, Esstisch, Küche, Treppe und Schlafzimmer


Detaillierter Grundriss eines Hauses mit Räumen 1-4, Treppen und Esstisch, Maßangaben.
 
RobsonMKK

RobsonMKK

Die Treppe sieht sehr kurz aus ... da sollte man schon so 220 cm rechnen.
Die Treppe ist 2,25 x 2,25 m
Sollte also passen, oder?

würde ich die Küche da hin setzen, wo du den Wohnbereich geplant hast und den Wohnbereich dorthin, wo der Küchenraum ist. Dann hat man abends im Sommer die Küche an der Grillterrasse und überhaupt wird der Raum großzügiger wirken. Denn jetzt baust du quasi kleine Abschnitte in den großen Raum und wer reinkommt muss erst mal das Sofa umkurven.
Vorschlag zur Kenntnis genommen ich merke immer wieder das hier die Idee der Küche direkt an der Terrasse sehr beliebt ist, allerdings kenne ich von niemanden im Freundes- und Familienkreis so, und habe es auch noch nicht vermisst. Und ich muss gestehen, wir nutzen heute den Balkon den wir an der Küche haben schon eher zu selten zum draußen essen, eher um mal später noch draußen zu sitzen und ein Getränk zu genießen. Und so übermäßig weit sind die Wege ja auch nicht.

Zum Sofa: das kann auch noch um 90° gedreht werden, wobei man dann den für die Zukunft geplanten Kamin im Rücken hätte.

Auf die Speisekammer würde ich komplett verzichten. bzw. nur eine kleine Abstellmöglichkeit für Staubsauger/Wischer planen.
So viel mehr kommt da ja gar nicht rein:
  • Staubsauger
  • Gefrierschrank (in der Küche nicht geplant)
  • Getränke
  • ein paar kleinere Vorräte
  • Altpapier & gelber Sack

Vielen Dank auch für die Mühe die in deinem Vorschlag steckt. Was mit da aber im EG nicht gefällt, ist die Abschottung des Wohnbereichs, das wirkt irgendwie befremdlich auf mich.
Das Obergeschoss muss ich sagen hat seinen Reiz, wobei es auch sehr verwinkelt wirkt.
Was mir aber irgendwie wirklich nicht zusagt ist der längere Erker, das hat, verzeih mir, etwas von einem Rüssel
 
Y

ypg

Na, da hat doch die damalige Diskussion etwas gefruchtet
Ich habe im OG geändert: Breite der Fenster, damit auch noch unter die Schrägen Licht kommt. Mein Ratschlag: Breite von 2 Metern mit Brüstung.
Außerdem die Mittelwand der Kinderzimmern: Einbauschränke für beide und Vermittlung gleicher Raumgrößen.
Anschläge der Türen.

Das Bad ist sicherlich auch veränderungswürdig

Grundriss eines Hauses mit Verena/Gast, Bad, Eltern, Zimmer 6 sowie Kind 1 und Kind 2.
 
RobsonMKK

RobsonMKK

Das Bad ist sicherlich auch veränderungswürdig
Das ist ja der "wunde" Punkt

Und die Diskussion hat einiges gebracht, natürlich geht man in sich und fängt an zu machen zu tun und zu schieben.
Ich muss sagen, bis auf das Bad sind wir eigentlich schon sehr zufrieden. Insbesondere bin ich dankbar für deinen damaligen Tipp mit der Positionierung des Hauses, so gefällt es uns aktuell richtig gut.

Bezüglich deiner Idee mit den Fenster: werde ich mal ansprechen. Die Idee ist gut, kommt aber natürlich auf den Preis am Ende an.
Was ich im OG auch vergessen hatte zu erwähnen, es kommt im Flur noch ein Doppelflügelfenster rein um hier natürliches Licht zu haben.
 
Zuletzt aktualisiert 04.10.2025
Im Forum Grundrissplanung / Grundstücksplanung gibt es 2509 Themen mit insgesamt 87147 Beiträgen


Ähnliche Themen zu Vorschläge zum Grundriss
Nr.ErgebnisBeiträge
1Neubau Einfamilienhaus ca. 190m², Doppelgarage ohne Keller, Erstentwurf 21
2Grundrissentwurf für 220m² Einfamilienhaus - Seite 72488
3Einfamilienhaus 220qm mit Keller auf 700qm Grundstück 41
4Teures Grundstück + Einfamilienhaus 155 qm + Keller KFW40+, finanzierbar? - Seite 260
5Nicht-bodentiefe Fenster im Wohnzimmer unmodern? Welche Vorhänge? - Seite 217
6Grundriss-Entwurf: Einfamilienhaus; mit Keller; 800qm Grundstück 10
7Einfamilienhaus 160m2 mit Keller, 500m2 Grundstück 108
8Neubauplanung - Einfamilienhaus 160 qm ohne Keller - Grundriss, Kosten usw.. 29
9Grundrissfrage, Treppe, Fenster, Ausrichtung 12
10Fenster / Türen / Garderobe 13
11Wohnzimmer: Wie Sofa, TV und Schränke stellen? - Seite 432
12Erster Entwurf Einfamilienhaus 150m² mit Keller 38
13Grundriss Einfamilienhaus, 140 qm mit Keller 40
14Grundriss für 150qm Einfamilienhaus mit Wohnzimmer nach Norden 21
15Neubau einer ca. 8x11 Doppelhaushälfte, Einschätzung Grundriss und Fenster - Seite 235
16Grundriss Einfamilienhaus ca. 200qm Doppelgarage Keller - Seite 232
17Finanzierung Bauvorhaben Einfamilienhaus 140qm + Keller (Bayern) - Seite 334
18Grundrissplanung Stadtvilla Doppelgarage | Keller | KFW40+ | 205m² - Seite 326
19Grundriss-Review Einfamilienhaus mit Keller auf leichter Hanglage 35
20Grundriss für schmale Doppelhaushälfte - Keller + 2 VG+ DG ohne Kniestock - Seite 453

Oben