Vorschläge zum Grundriss

4,70 Stern(e) 6 Votes
Zuletzt aktualisiert 22.11.2025
Sie befinden sich auf der Seite 4 der Diskussion zum Thema: Vorschläge zum Grundriss
>> Zum 1. Beitrag <<

RobsonMKK

RobsonMKK

So, lange war es ruhig, ich hatte viel um die Ohren und habe mir dazu einige Gedanken gemacht.
Natürlich ist mir sehr an der Meinung gelegen, sonst hätte ich es mir hier ja auch sparen können, aber ich bin wohl mit einem zu "defensiven" Verhalten an das Thema ran gegangen. Also noch mal von vorn, jetzt auch mit neuen Grundrissen und der Küche.
Badezimmer muss ich noch einzeichnen. Neues Tool, da muss ich mich noch etwas vertraut machen.

Die Maße in der Küche passen nicht zu 100%.
Auch bei den restlichen Maßen am Haus können kleine Abweichungen sein.

ist das so gedacht? Oder wie?
Ja, so ähnlich. Die Garage soll auf die planuntere Grenze gesetzt werde und direkt an das Haus anschließen.

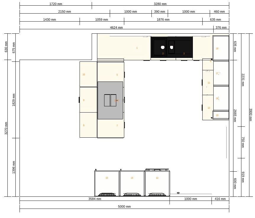
Grundriss einer Küchenraumplanung mit Insel, Spüle, Kochfeld und Schränken, Maßlinien


Grundriss eines Hauses: Verena, Eltern, Kind 1, Kind 2, Bad, Flur; Maße in cm.


Grundriss eines Hauses mit sechs Räumen: Hobby 1, Hobby 2, Waschküche, HAR, Vorraum, Lager.


Grundriss eines Hauses mit Küche, Wohn/Ess, Flur, Arbeitszimmer, Abstell, Duschbad und Garage
 
Y

ypg

Es ist natürlich nicht schön, wenn man in einen Raum reinkommt und dann Möbel im Weg stehen bzw man die Seitenflächen von Schränken im Verkehrsweg stehen oder man darauf zugeht. Hier bei der Küche .
Besser ist es, die Küchentür nach planlinks zu verschieben und die Schränke in die Küche zu integrieren.
Bei den gedachten Ausgängen zum Garten mal möblieren, ansonsten könnte es zu Kollisionen der Türen zu den Möbelstücken geben.
Flur empfinde ich als zu groß - gerade im Bezug zur Treppe, die würde ich als Podesttreppe ausführen. Und die 2,24 sind das absolute Mindestmaß für eine "Raumspartreppe" in einer Doppelhaushälfte oder RH.
Auch Bad mal möblieren. Die blauen Flächen sollen wohl die Raumhöhen unter 2 Meter darstellen? Das kann eng werden.
Toilettenräume sollten wegen der verlegten Technik eher übereinander geplant werden.
Mit welchen Wandstärken wurde denn gezeichnet?

Grundsätzlich stelle ich die ganze Hausausrichtung in Frage. Im Osten und Süden sind keine Fenster - man bedenke, wann die Sonne zwischen September und April untergeht, da kommt im Haus kaum ein Sonnenstrahl an, der zum einen das Haus indirekt erwärmt und zum anderen der Seele einfach gut tut.
Im Keller sind Fenster dazu da, auch mal zu lüften, diese Antwort stand ja noch aus
 
P

Peanuts74

Dann mach man erst mal Deine Hausaufgaben und stell einen Entwurf rein, der auch zu diskutieren ist. Vermaßung und _Aktualität_

Zu wenigen Punkten: wozu eine Dusche im EG, wenn der Gast das Familienbad benutzen soll? Und darf der Gast auch mal älter und anspruchsvoller werden? Ich würd mir kein Bad mehr teilen wollen, zumindest nicht in einem 4-Personenhaushalt.
Wenn ihr im EG Barrierefreiheit plant, dann wohl deshalb, um ggf im EG ein Schlafzimmer einzurichten : funktioniert aber auf 12qm mit einem Raum, in dem 3 Wände durch Türen und Fenster verbaut sind, keine Schrankfläche zur Verfügung steht, nicht!
Und wer wird Euer Putzzeug tagtäglich aus dem Keller holen?

So ein Thread gibt mir Grund, darüber nachzudenken, ob ich meine Erfahrungen überhaupt noch mitteilen werde .

Für mich kommt es auch immer darauf an, wer zu Besuch kommt.
Selbstverständlich dürfte mein Cousin mit Frau unser Bad mit benutzen, wenn es "geschäftliche Gäste" sind, dann eher nicht.
Und 2 Duschen, egal wo sie Letzt endlich sind, halte auch ich immer von Vorteil, wenn es z.B. mal schnell gehen muss und mal parallel duschen will.
Die Speisekammer ist natürlich suboptimal, dann würde ich lieber Bad und Küche vergrößern. Auch der schon angesprochene große Flur bietet noch Optimierungspotential.
 
C

Caspar2020

Kellerfenster sind immer noch nicht gewünscht, auch nicht in der Waschküche, oder wie kommt die Feuchtigkeit aus dem Keller?

Sag mal was wo die 1m, bzw. 2m Linie im OG ist. Weil rauslesen konnte ich das zumindest nirgendwo.
 
RobsonMKK

RobsonMKK

Es ist natürlich nicht schön, wenn man in einen Raum reinkommt und dann Möbel im Weg stehen bzw man die Seitenflächen von Schränken im Verkehrsweg stehen oder man darauf zugeht. Hier bei der Küche .
Besser ist es, die Küchentür nach planlinks zu verschieben und die Schränke in die Küche zu integrieren.
Bin ich voll und ganz bei dir. Die Küche ist tatsächlich ein "erster Schuss" gewesen. Die drei großen Schränke (für Herd/Mirco-Kombo, Kühlschrank und "anderer" großer Schrank).
Hier werden wir bei Zeiten mal mit einem Küchen-Profi reden und uns mal ein paar Möglichkeiten aufzeigen lassen. Der seitliche Zugang ist ja erst mal veränderbar.

Bei den gedachten Ausgängen zum Garten mal möblieren, ansonsten könnte es zu Kollisionen der Türen zu den Möbelstücken geben.
Ja, so der Plan. Wobei uns tatsächlich das "mehr Licht" inzwischen gut gefällt.

Flur empfinde ich als zu groß - gerade im Bezug zur Treppe, die würde ich als Podesttreppe ausführen. Und die 2,24 sind das absolute Mindestmaß für eine "Raumspartreppe" in einer Doppelhaushälfte oder RH.
Okay...darüber habe ich mir ehrlich gesagt noch gar nicht so große Gedanken gemacht. Ich war jetzt 2 mal in dem Haus drin und empfand die Treppe immer als ausreichen. Wir sind am Samstag wieder darin, dann werde ich noch mal genau darauf achten.

Auch Bad mal möblieren. Die blauen Flächen sollen wohl die Raumhöhen unter 2 Meter darstellen? Das kann eng werden.
Toilettenräume sollten wegen der verlegten Technik eher übereinander geplant werden.
Mit welchen Wandstärken wurde denn gezeichnet?
Sag mal was wo die 1m, bzw. 2m Linie im OG ist. Weil rauslesen konnte ich das zumindest nirgendwo.
Die 2 m Linie ist etwa beim blauen Bereich. Ich würde gerne den Plan mit den Badmöbeln anhängen, darauf sieht man aber nicht da ich die Decke nicht transparent bekomme. Eventuell versuche ich es noch mal mit einem Schnitt in 3D.
Da wir das Bad so wie wir es planen kennen, wissen wir das es eigentlich passen soll, aber auch hier werde ich am Samstag noch mal genau schauen.
Das mit dem übereinander liegen weiß ich...aber ich habe partout keine Idee wie ich es anders planen soll. Wobei ein Abkofferung im Arbeitszimmer keine Beinbruch ist.

Grundsätzlich stelle ich die ganze Hausausrichtung in Frage. Im Osten und Süden sind keine Fenster - man bedenke, wann die Sonne zwischen September und April untergeht, da kommt im Haus kaum ein Sonnenstrahl an, der zum einen das Haus indirekt erwärmt und zum anderen der Seele einfach gut tut.
Ich habe es nicht so mit dem "wo geht die Sonne auf", Asche auf mein Haupt ops: ich habe noch mal die Alternative mit angehängt.
Übrigens wird es über der Treppe noch ein Doppelflügelfenster geben.

Im Keller sind Fenster dazu da, auch mal zu lüften, diese Antwort stand ja noch aus
Kellerfenster sind immer noch nicht gewünscht, auch nicht in der Waschküche, oder wie kommt die Feuchtigkeit aus dem Keller?
Hier habe ich absolut noch keine Idee deswegen habe ich auch noch nichts eingezeichnet.
Es wird definitiv das ein oder andere Fenster geben. (Vermutlich ein kleineres in der Waschküche und 2 im Hobby-Bereich)

Lageplan eines Grundstücks mit Gebäudegrundriss und Grundstücksgrenze in farbiger Darstellung
 
Zuletzt aktualisiert 22.11.2025
Im Forum Grundrissplanung / Grundstücksplanung gibt es 2535 Themen mit insgesamt 87982 Beiträgen


Ähnliche Themen zu Vorschläge zum Grundriss
Nr.ErgebnisBeiträge
1Grundrissfrage, Treppe, Fenster, Ausrichtung 12
2Einfamilienhaus mit Satteldach, ohne Keller - Feedback erwünscht - Seite 9190
3Einfamilienhaus mit Keller und Doppelgarage 9,2x11m Grundriss-Plan optimieren 20
4160m2 Einfamilienhaus in Holzständerbauweise am Nordhang mit Keller - Seite 2100
5Grundriss Einfamilienhaus ~165m² plus Keller - Seite 7165
6Grundriss-Entwurf: Einfamilienhaus mit Keller; 560qm Grundstück 65
7Grundriss Einfamilienhaus 136m² mit Garage & Keller 17
8Grundrissplanung Stadtvilla Neubau mit Keller - Seite 336
9Treppe im Flur, Grundriss steht eigentlich schon :o( - Seite 320
10Welche Schränke würdet ihr für den Keller empfehlen? - Seite 248
11Grundriss Einfamilienhaus, ca. 200qm ohne Keller - Einschätzung - Seite 19172
12Grundriss Einfamilienhaus mit Keller 19
13Grundriss 180qm plus Keller - 12,40mx9,04m 21
14Grundrissfrage, Garage, Treppe - Seite 533
15Grundriss Einfamilienhaus, ~180m², Keller mit Satteldach - Seite 681
16Grundrisse für Einfamilienhaus, ca. 140m², ohne Keller - Seite 1378
17Werkplanung Einfamilienhaus 180qm Flachdach mit Keller & Doppelgarage - Seite 2142
18Treppe im Wohnzimmer als Hype - Pro & Contra? - Seite 426
19Optimierungsbedarf? Einfamilienhaus mit 130 m² + Keller 26
20Einfamilienhaus (2Etagen+Wohn-Keller+ausgebautes Dach) etwa 200qm -Änderungen - Seite 7162

Oben