ᐅ Vorentwurf Grundriss Einfamilienhaus mit Doppelgarage, Feedback
Erstellt am: 01.07.25 15:43
V
vineyard9V
vineyard901.07.25 15:43Hallo zusammen.
Meine Frau und ich planen derzeit mit unserer Architektin unser Haus und haben nun einen Vorentwurf für den Grundriss zudem wir gerne euer Feedback hätten.
Gebaut wird in einem Neubaugebiet mit folgenden Daten.
Bebauungsplan/Einschränkungen
Größe des Grundstücks: 619 m2
Grundflächenzahl: 0,35
Geschossflächenzahl: 0,6
Baufenster, Baulinie und -grenze: Baugrenze 2,50 Meter
Randbebauung: Max. 9 Meter
Anzahl Stellplatz: 1,5,
Garage: Doppelgarage, weitere Stellplätze im Hof vor Garage
Geschossigkeit: 2 Geschosse mit Wandhöhe 6,50 Meter traufseitig
Dachform: Generell keine Einschränkungen der Dachform.
Stilrichtung: Klassisch, geradlinig
Bauparzelle: P06
Sonstiges: Das Baugebiet liegt insgesamt auf einem Plateau mit abfallenden Gelände in Richtung Süden und Westen, wodurch sich ein Blick in ein Flusstal ergibt.
Anforderungen der Bauherren
Stilrichtung, Dachform, Gebäudetyp: Klassisches Einfamilienhaus mit Satteldach und Keller
Geschosse: Vollunterkellert, zwei Vollgeschosse
Anzahl der Personen, Alter: Ehepaar (Mitte 30), ein Kind (Säugling), weiteres Kind geplant
Raumbedarf im EG, OG: Gewünscht ist eine Wohnfläche zwischen 180 und 210 m2
Büro: Familiennutzung oder Homeoffice?
Genutzt als Homeoffice, aber auch private Nutzung durch Familienmitglieder
Schlafgäste pro Jahr:
Noch nicht absehbar, Gästezimmer wird durch Großeltern und Freunde regelmäßig genutzt werden
offene oder geschlossene Architektur:
Offen, aber dennoch mit abgegrenzten Bereichen.
konservativ oder moderne Bauweise: Konservativ (vermutlich)
offene Küche, Kochinsel: Offene Küche mit Kochinsel, angrenzende Speisekammer
Anzahl Essplätze: 6-8
Kamin: Ja, ggf. auch als Raumteiler
Musik/Stereowand: Nicht vorhanden, Wohnwand
Balkon, Dachterrasse: Nein, aber große Terrasse mit Ausrichtung Süden/Westen und Überdachung
Garage, Carport: Doppelgarage mit Stauraum, Zugang durch Schmutzschleuse ins Haus
weitere Wünsche/Besonderheiten/Tagesablauf, gern auch Begründungen, warum dieses oder das nicht sein soll:
Abgegrenzter Flur für Schallschutz in Schlafräumen, offener Wohn- Essbereich, Schmutzschleuse als Zugang zu Garage, Elternschlafzimmer mit Ausrichtung nach Norden, zwei Kinderzimmer
Hausentwurf
Von wem stammt die Planung: Architekt
Was gefällt besonders? Warum?: Erker mit Blick ins schöne Tal, Gartenausrichtung vor dem Haus
Was gefällt nicht? Warum?:
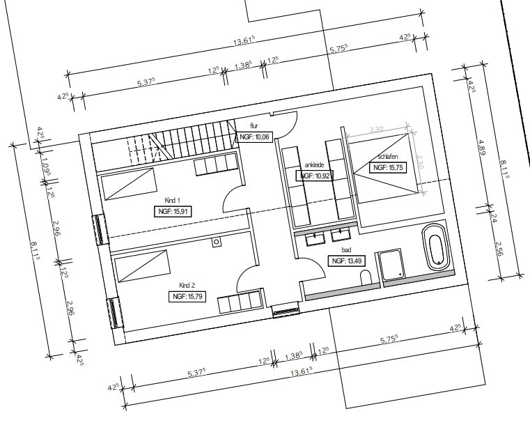
Form der Kinderzimmer, lang und schmal und ggf. zu wenig Licht
Gang im OG recht schmal - kann das ein Problem geben? Insbesondere beim Thema Transport von Möbeln. usw. Haus ist grundsätzlich eher lang und schmal
Preisschätzung laut Architekt/Planer: Noch offen
Persönliches Preislimit fürs Haus, inkl. Ausstattung: 700.000€
favorisierte Heiztechnik: Wärmepumpe, evtl. in Kombination mit Nahwärme
Den aktuellen Entwurf findet ihr im Anhang, noch ein paar Ergänzungen von unserer Seite zum aktuellen Stand.
Im OG planen wir abweichend zum Entwurf eine Betondecke und zusätzlich wird die Raumhöhe an das EG angeglichen.
Zudem sind wir in Diskussion über die Größe der Kinderzimmer, im vorherigen Stand war das Haus um ca 0,5m schmaler. Damit sinkt natürlich auch die Breite der Kinderzimmer um jeweils 0,25m auf knapp 3m und eine Fläche von ca 16 m^2. Die alten Entwürfe von EG und OG sind ebenfalls im Anhang.
Reicht die Breite von knapp 3m für ein Kinderzimmer aus? Denn der halbe Meter mehr Hausbreite macht natürlich schon einiges aus an Fläche, Kosten und Abstand zum Nachbarn.
Wir freuen uns über eure Einschätzung und konstruktive Kritik zum Entwurf.
Vielen Dank und beste Grüße.








Meine Frau und ich planen derzeit mit unserer Architektin unser Haus und haben nun einen Vorentwurf für den Grundriss zudem wir gerne euer Feedback hätten.
Gebaut wird in einem Neubaugebiet mit folgenden Daten.
Bebauungsplan/Einschränkungen
Größe des Grundstücks: 619 m2
Grundflächenzahl: 0,35
Geschossflächenzahl: 0,6
Baufenster, Baulinie und -grenze: Baugrenze 2,50 Meter
Randbebauung: Max. 9 Meter
Anzahl Stellplatz: 1,5,
Garage: Doppelgarage, weitere Stellplätze im Hof vor Garage
Geschossigkeit: 2 Geschosse mit Wandhöhe 6,50 Meter traufseitig
Dachform: Generell keine Einschränkungen der Dachform.
Stilrichtung: Klassisch, geradlinig
Bauparzelle: P06
Sonstiges: Das Baugebiet liegt insgesamt auf einem Plateau mit abfallenden Gelände in Richtung Süden und Westen, wodurch sich ein Blick in ein Flusstal ergibt.
Anforderungen der Bauherren
Stilrichtung, Dachform, Gebäudetyp: Klassisches Einfamilienhaus mit Satteldach und Keller
Geschosse: Vollunterkellert, zwei Vollgeschosse
Anzahl der Personen, Alter: Ehepaar (Mitte 30), ein Kind (Säugling), weiteres Kind geplant
Raumbedarf im EG, OG: Gewünscht ist eine Wohnfläche zwischen 180 und 210 m2
Büro: Familiennutzung oder Homeoffice?
Genutzt als Homeoffice, aber auch private Nutzung durch Familienmitglieder
Schlafgäste pro Jahr:
Noch nicht absehbar, Gästezimmer wird durch Großeltern und Freunde regelmäßig genutzt werden
offene oder geschlossene Architektur:
Offen, aber dennoch mit abgegrenzten Bereichen.
konservativ oder moderne Bauweise: Konservativ (vermutlich)
offene Küche, Kochinsel: Offene Küche mit Kochinsel, angrenzende Speisekammer
Anzahl Essplätze: 6-8
Kamin: Ja, ggf. auch als Raumteiler
Musik/Stereowand: Nicht vorhanden, Wohnwand
Balkon, Dachterrasse: Nein, aber große Terrasse mit Ausrichtung Süden/Westen und Überdachung
Garage, Carport: Doppelgarage mit Stauraum, Zugang durch Schmutzschleuse ins Haus
weitere Wünsche/Besonderheiten/Tagesablauf, gern auch Begründungen, warum dieses oder das nicht sein soll:
Abgegrenzter Flur für Schallschutz in Schlafräumen, offener Wohn- Essbereich, Schmutzschleuse als Zugang zu Garage, Elternschlafzimmer mit Ausrichtung nach Norden, zwei Kinderzimmer
Hausentwurf
Von wem stammt die Planung: Architekt
Was gefällt besonders? Warum?: Erker mit Blick ins schöne Tal, Gartenausrichtung vor dem Haus
Was gefällt nicht? Warum?:
Form der Kinderzimmer, lang und schmal und ggf. zu wenig Licht
Gang im OG recht schmal - kann das ein Problem geben? Insbesondere beim Thema Transport von Möbeln. usw. Haus ist grundsätzlich eher lang und schmal
Preisschätzung laut Architekt/Planer: Noch offen
Persönliches Preislimit fürs Haus, inkl. Ausstattung: 700.000€
favorisierte Heiztechnik: Wärmepumpe, evtl. in Kombination mit Nahwärme
Den aktuellen Entwurf findet ihr im Anhang, noch ein paar Ergänzungen von unserer Seite zum aktuellen Stand.
Im OG planen wir abweichend zum Entwurf eine Betondecke und zusätzlich wird die Raumhöhe an das EG angeglichen.
Zudem sind wir in Diskussion über die Größe der Kinderzimmer, im vorherigen Stand war das Haus um ca 0,5m schmaler. Damit sinkt natürlich auch die Breite der Kinderzimmer um jeweils 0,25m auf knapp 3m und eine Fläche von ca 16 m^2. Die alten Entwürfe von EG und OG sind ebenfalls im Anhang.
Reicht die Breite von knapp 3m für ein Kinderzimmer aus? Denn der halbe Meter mehr Hausbreite macht natürlich schon einiges aus an Fläche, Kosten und Abstand zum Nachbarn.
Wir freuen uns über eure Einschätzung und konstruktive Kritik zum Entwurf.
Vielen Dank und beste Grüße.
W
wiltshire01.07.25 16:44Das ist ein frischer Entwurf mit netten Eigenheiten, die erfreulicherweise nicht die Platzökonomie in den Vordergrund stellen.
Deine Wünsche scheinen gut untergebracht zu sein. Den Brauraum finde ich spannend. Klingt nach einem netten Hobby.
Gäste finden einen Schlafplatz, der für ein bis zwei Nächte taugt und nocht zum längeren Verweilen einläd. Wenn es das Ziel ist allzu lange Besuche zu vermeiden, ist das gut gelöst.
Welchen Sport macht ihr im Keller - reicht der Platz in diesem Durchgangsbereich?
OK, ihr wollt eine Ankleide - das liegt seit Jahren hoch im Kurs. Vielleicht kann jemand mit einer solchen ja Erfahrungen teilen. Was der Architekt dort einzeichnet ist m.E. untauglich, da viel zu wenig Bewegungsspielraum ist. Diese "Ankleide" ist nichts anderes als ein Schrankraum, wenn auf beiden Seiten durchgehend Schränke sein sollen.
Mir wäre der Weg vom Bett zum Bad zu lang.
Deine Wünsche scheinen gut untergebracht zu sein. Den Brauraum finde ich spannend. Klingt nach einem netten Hobby.
Gäste finden einen Schlafplatz, der für ein bis zwei Nächte taugt und nocht zum längeren Verweilen einläd. Wenn es das Ziel ist allzu lange Besuche zu vermeiden, ist das gut gelöst.
Welchen Sport macht ihr im Keller - reicht der Platz in diesem Durchgangsbereich?
OK, ihr wollt eine Ankleide - das liegt seit Jahren hoch im Kurs. Vielleicht kann jemand mit einer solchen ja Erfahrungen teilen. Was der Architekt dort einzeichnet ist m.E. untauglich, da viel zu wenig Bewegungsspielraum ist. Diese "Ankleide" ist nichts anderes als ein Schrankraum, wenn auf beiden Seiten durchgehend Schränke sein sollen.
Mir wäre der Weg vom Bett zum Bad zu lang.
vineyard9 schrieb:Objektiv gesehen reicht das natürlich. Wir hatten das in unserem Reihenhaus, in dem die Kinder aufwuchsen, bis sie 17 und 19 waren. Breiter wäre schön gewesen. Bei einem selbst geplanten Neubau würde ich das nicht machen.
Reicht die Breite von knapp 3m für ein Kinderzimmer aus?
vineyard9 schrieb:Dann passt die Einzeichnung des Sofas nicht. So sitzt Du mit dem Rücken zum Ausblick.
Erker mit Blick ins schöne Tal, Gartenausrichtung vor dem Haus
vineyard9 schrieb:Die Kinderzimmer brauchen eine gute Beleuchtung, durchs Fenster wird es nicht superhell. Das geht aber.
lang und schmal und ggf. zu wenig Licht
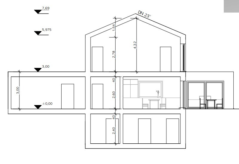
Ich bekomme das Haus derzeit gedanklich nicht in den Lageplan mit den Höhen bzw. Hang. Auch weiß ich nicht, wie der Hang sich dann mit der Terrasse und dem Keller macht. Gibt es eine Zeichnung mit den Höhenmassen?
Schnitt?
Ich finde es nachvollziehbar, dass man .mit. dem Hang baut, also wie der Bauvorschlag, sodass man minimal Aufwand mit dem Hang hat und den Keller gleich in die richtige Position bringt. Das ist hier nicht der Fall und gegen das Grundstück, sofern ich denke, dass es so ist.
zu Deinen Ängsten: 130cm und sogar mehr ist nicht schmal! Ich hätte jetzt laut Deinen Angaben 90-100 erwartet.
Und ob ein Kinderzimmer 2,90 oder 3,20 hat, ist auch egal. Damals waren Räume 2,20 - war nicht schön, aber ging. Ich finde allerdings, dass oben mit den Fenstern gegeizt wird. Und das eine Kind hat da auch wenig Möglichkeiten.
Diese Schleuse, also dieser Anbau ist unterirdisch in meinen Augen. Auch dieser Flugzeugflügel ist nicht nur übertrieben gewaltig, sondern unpraktisch.
Der Entwurf stammt von Euch? Der ist vom Architekten nur abgezeichnet, nehme ich an?
Der ist in vielen Bereichen unklug in Funktion und baulicher Durchführung.
Schnitt?
Ich finde es nachvollziehbar, dass man .mit. dem Hang baut, also wie der Bauvorschlag, sodass man minimal Aufwand mit dem Hang hat und den Keller gleich in die richtige Position bringt. Das ist hier nicht der Fall und gegen das Grundstück, sofern ich denke, dass es so ist.
zu Deinen Ängsten: 130cm und sogar mehr ist nicht schmal! Ich hätte jetzt laut Deinen Angaben 90-100 erwartet.
Und ob ein Kinderzimmer 2,90 oder 3,20 hat, ist auch egal. Damals waren Räume 2,20 - war nicht schön, aber ging. Ich finde allerdings, dass oben mit den Fenstern gegeizt wird. Und das eine Kind hat da auch wenig Möglichkeiten.
Diese Schleuse, also dieser Anbau ist unterirdisch in meinen Augen. Auch dieser Flugzeugflügel ist nicht nur übertrieben gewaltig, sondern unpraktisch.
Der Entwurf stammt von Euch? Der ist vom Architekten nur abgezeichnet, nehme ich an?
Der ist in vielen Bereichen unklug in Funktion und baulicher Durchführung.
Also, auch nach intensiveren Blicken sehe ich immer mehr Fragezeichen und einiger Fehler, die ich wohl nicht vom Fachmann erwarte.
Die Speis ist gefühlt meilenweit vom Eingang entfernt, trotz Nähe. Insel ist eine Barriere.
Türen sind alle sehr willkürlich, mal mehr mal weniger breit
Technik ist auf der hinteren Grundstücksseite
Fensterpositionen wurden vergessen
Treppe ist natürlich sehr unvorteilhaft gelöst, aber das kann Absicht sein.
Hang ist für den Keller nicht genutzt.
Waschtische sehr dunkel gelegen, Töilette nicht privat, Entwässerung kann spannend sein
Die Speis ist gefühlt meilenweit vom Eingang entfernt, trotz Nähe. Insel ist eine Barriere.
Türen sind alle sehr willkürlich, mal mehr mal weniger breit
Technik ist auf der hinteren Grundstücksseite
Fensterpositionen wurden vergessen
Treppe ist natürlich sehr unvorteilhaft gelöst, aber das kann Absicht sein.
Hang ist für den Keller nicht genutzt.
Waschtische sehr dunkel gelegen, Töilette nicht privat, Entwässerung kann spannend sein
Ähnliche Themen