Bebauungsplan/Einschränkungen
Größe des Grundstücks - 1493 m²
Hang - nein
Grundflächenzahl - 0,4
Geschossflächenzahl - 0,8
Baufenster, Baulinie und -grenze - offene Bauweise, Einzel-Doppelhäuser zulässig, Bayrische Bauordnung
Randbebauung - nein
Anzahl Stellplatz - 2 in Doppelgarage
Geschossigkeit - 2 Vollgeschosse
Dachform - Versetztes Pultdach, DN 15°
Stilrichtung - modern?
Ausrichtung - Nordwestlich
Maximale Höhen/Begrenzungen - nicht bekannt
weitere Vorgaben: Alles nach Bebauungsplan zulässig
der Bebauungsplan ist noch nicht öffentlich, daher verzichte ich auf ein Bild der Lage im Bebauungsplan, jedoch sieht man auf dem Google Earth Bild unser Grundstück in grün.
Anforderungen der Bauherren
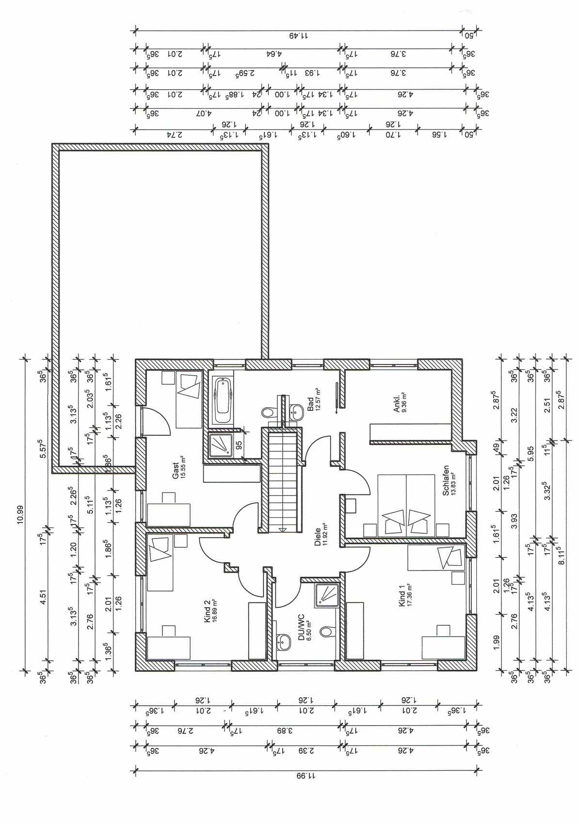
Stilrichtung, Dachform, Gebäudetyp
Keller, Geschosse - 2 ohne Keller
Anzahl der Personen, Alter - 2 Erw. ca 30, 1 Kind 1 Jahr
Raumbedarf im EG, OG - nicht definiert
Büro: Familiennutzung oder Homeoffice? - nein
Schlafgäste pro Jahr - unwichtig?
offene oder geschlossene Architektur - geschlossen
konservativ oder moderne Bauweise - modern
offene Küche, Kochinsel - ja, ggf.
Anzahl Essplätze - 8
Kamin - Nein, aber Schlot soll vorbereitet werden
Musik/Stereowand - evtl.
Balkon, Dachterrasse - nur Terrasse unten
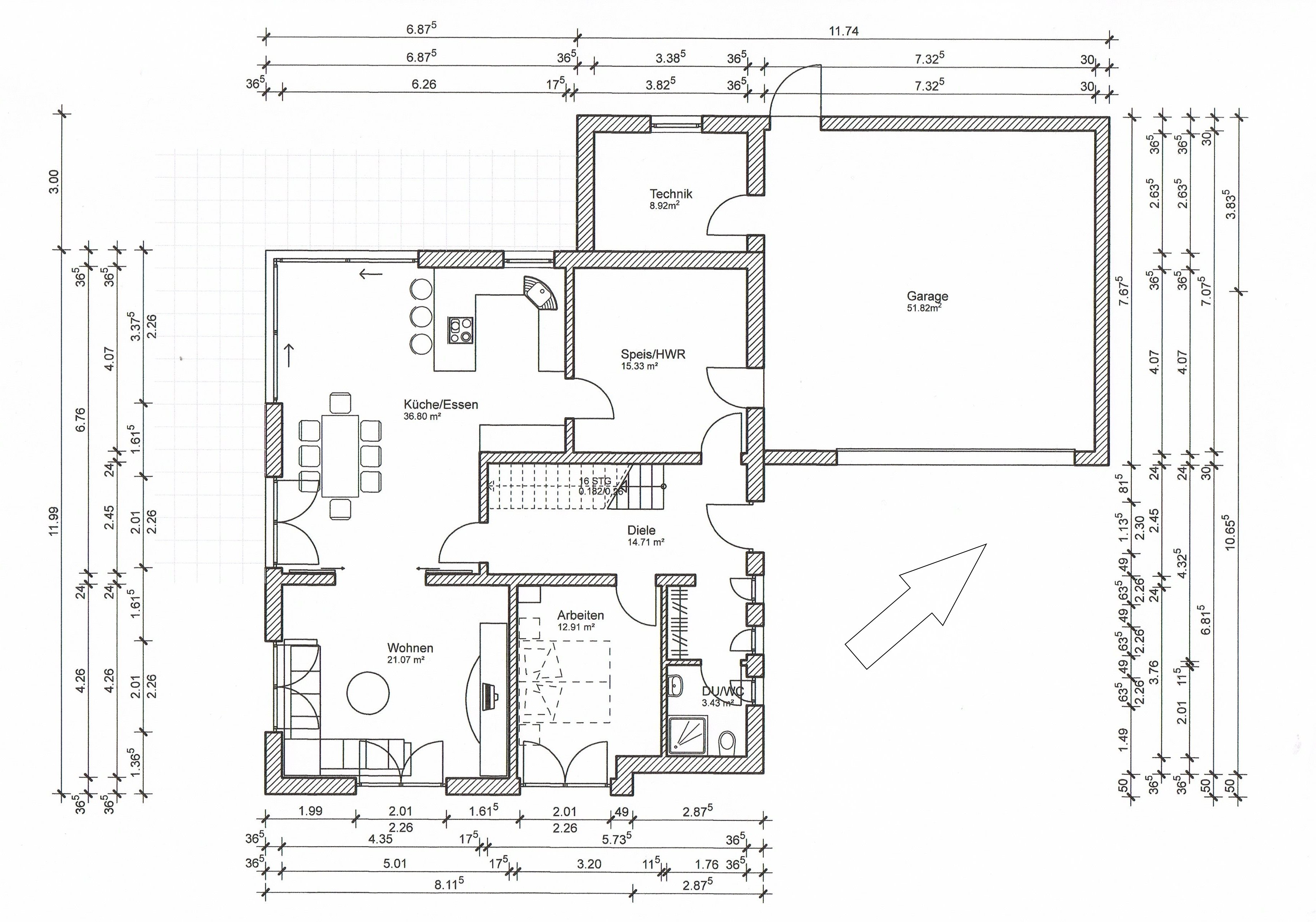
Garage, Carport - große Doppelgarage
Nutzgarten, Treibhaus - nein
Hausentwurf
Von wem stammt die Planung:
-Do-it-Yourself mit Freund als Bauzeichner
Was gefällt besonders? Warum? Eigener Grundriss, Durchgang von Garage in Haus (trocken rein kommen, EInkäufe in Speis verstauen),
Was gefällt nicht? Warum? aktuell sind wir zufrieden
Preisschätzung lt Architekt/Planer:380€ je m³ umbauter Raum = ca 275.000€ ohne Garage
Persönliches Preislimit fürs Haus, inkl Ausstattung: 350.000€ inkl. Garage
favorisierte Heiztechnik: Wärmepumpe(Ringgrabenkollektor) , Photovoltaik, Kontrollierte-Wohnraumlüftung, KNX, ggf. Alarmanlage
Wenn Ihr verzichten müsst, auf welche Details/Ausbauten
-könnt Ihr verzichten: noch keine Gedanken drüber gemach
-könnt Ihr nicht verzichten:
Warum ist der Entwurf so geworden, wie er jetzt ist?
Eigener Entwurf anhand von vielen Beispielen und eigenen Gedanken.
Was ist die wichtigste/grundlegende Frage zum Grundriss in 130 Zeichen zusammengefasst?
Haben wir grobe Planungsfehler, Unnütze Aufteilungen, Fehlkonstruktionen etc.
Uns ist es wichtig, dass wir keine Fehler/Probleme einplanen, welche sich anschließend nicht beheben lassen.
Danke für eure Meinungen
Gruß
Marco




Größe des Grundstücks - 1493 m²
Hang - nein
Grundflächenzahl - 0,4
Geschossflächenzahl - 0,8
Baufenster, Baulinie und -grenze - offene Bauweise, Einzel-Doppelhäuser zulässig, Bayrische Bauordnung
Randbebauung - nein
Anzahl Stellplatz - 2 in Doppelgarage
Geschossigkeit - 2 Vollgeschosse
Dachform - Versetztes Pultdach, DN 15°
Stilrichtung - modern?
Ausrichtung - Nordwestlich
Maximale Höhen/Begrenzungen - nicht bekannt
weitere Vorgaben: Alles nach Bebauungsplan zulässig
der Bebauungsplan ist noch nicht öffentlich, daher verzichte ich auf ein Bild der Lage im Bebauungsplan, jedoch sieht man auf dem Google Earth Bild unser Grundstück in grün.
Anforderungen der Bauherren
Stilrichtung, Dachform, Gebäudetyp
Keller, Geschosse - 2 ohne Keller
Anzahl der Personen, Alter - 2 Erw. ca 30, 1 Kind 1 Jahr
Raumbedarf im EG, OG - nicht definiert
Büro: Familiennutzung oder Homeoffice? - nein
Schlafgäste pro Jahr - unwichtig?
offene oder geschlossene Architektur - geschlossen
konservativ oder moderne Bauweise - modern
offene Küche, Kochinsel - ja, ggf.
Anzahl Essplätze - 8
Kamin - Nein, aber Schlot soll vorbereitet werden
Musik/Stereowand - evtl.
Balkon, Dachterrasse - nur Terrasse unten
Garage, Carport - große Doppelgarage
Nutzgarten, Treibhaus - nein
Hausentwurf
Von wem stammt die Planung:
-Do-it-Yourself mit Freund als Bauzeichner
Was gefällt besonders? Warum? Eigener Grundriss, Durchgang von Garage in Haus (trocken rein kommen, EInkäufe in Speis verstauen),
Was gefällt nicht? Warum? aktuell sind wir zufrieden
Preisschätzung lt Architekt/Planer:380€ je m³ umbauter Raum = ca 275.000€ ohne Garage
Persönliches Preislimit fürs Haus, inkl Ausstattung: 350.000€ inkl. Garage
favorisierte Heiztechnik: Wärmepumpe(Ringgrabenkollektor) , Photovoltaik, Kontrollierte-Wohnraumlüftung, KNX, ggf. Alarmanlage
Wenn Ihr verzichten müsst, auf welche Details/Ausbauten
-könnt Ihr verzichten: noch keine Gedanken drüber gemach
-könnt Ihr nicht verzichten:
Warum ist der Entwurf so geworden, wie er jetzt ist?
Eigener Entwurf anhand von vielen Beispielen und eigenen Gedanken.
Was ist die wichtigste/grundlegende Frage zum Grundriss in 130 Zeichen zusammengefasst?
Haben wir grobe Planungsfehler, Unnütze Aufteilungen, Fehlkonstruktionen etc.
Uns ist es wichtig, dass wir keine Fehler/Probleme einplanen, welche sich anschließend nicht beheben lassen.
Danke für eure Meinungen
Gruß
Marco
ZeroDown schrieb:
Haben wir grobe Planungsfehler, Unnütze Aufteilungen, Fehlkonstruktionen etc.Nein und ja. Das ist schon´mal ein deutlich weniger ungelenker Entwurf als womit hier viele Häuslebauer ihre Threads eröffnen. Der Plan ist ordentlich, in den Dimensionen sind keine bösen Patzer. Versorgungs- und Entwässerungsplanung sind nicht die Lieblingsthemen dieses Bauzeichners. Den Technikraum und den Hauswirtschaftsraum / Speisekammer daneben halte ich für zusammengenommen etwas großzügig bemessen und würde dreist wagen zu sagen, den Technikraum könne man da integrieren. Die Tanzfläche zwischen Küche und Essplatz hätte ich lieber im Wohnzimmer mehr. Meine Murks-Hitliste sieht auf Platz 1 das Gästezimmer und auf Platz 2 das zweite Kinderzimmer.Gut gefällt mir an der einen Seite die Kante im Grundriss, da wo die beiden Dachflächen sich treffen - das vermisse ich an der anderen Seite. Einen Pluspunkt bekommt von mir das Fensterband, versetzte Pultdächer mit Blindstirn finde ich komisch. Mal´ die Umrisse ´mal ins Luftbild, und tu´ einen Nordpfeil zu den Grundrissen.
https://www.instagram.com/11antgmxde/
https://www.linkedin.com/company/bauen-jetzt/
Danke dir erst mal habe mit schlimmeren gerechnet!
Ich habe ehrlich gesagt etwas Angst um die "Optik" dieses Raumes gehabt, wenn ich Wasseruhr, Elektroverteilung, Telefon, Heizung, WW-Speicher, Kontrollierte-Wohnraumlüftung integriere, daher der "kleine Raum" an die Garage/Haus angebaut.
Weiterer Punkt:
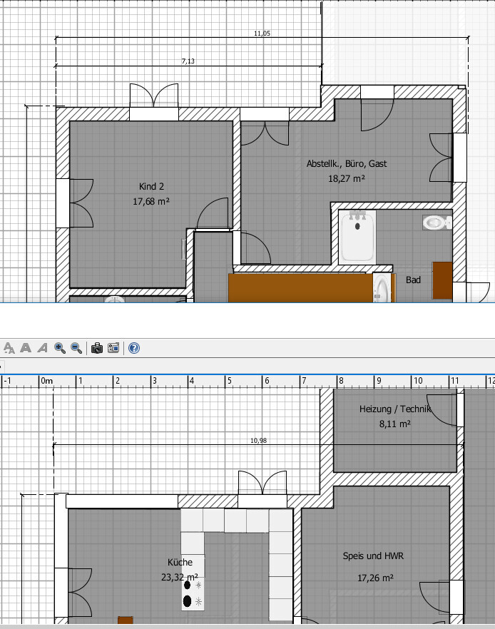
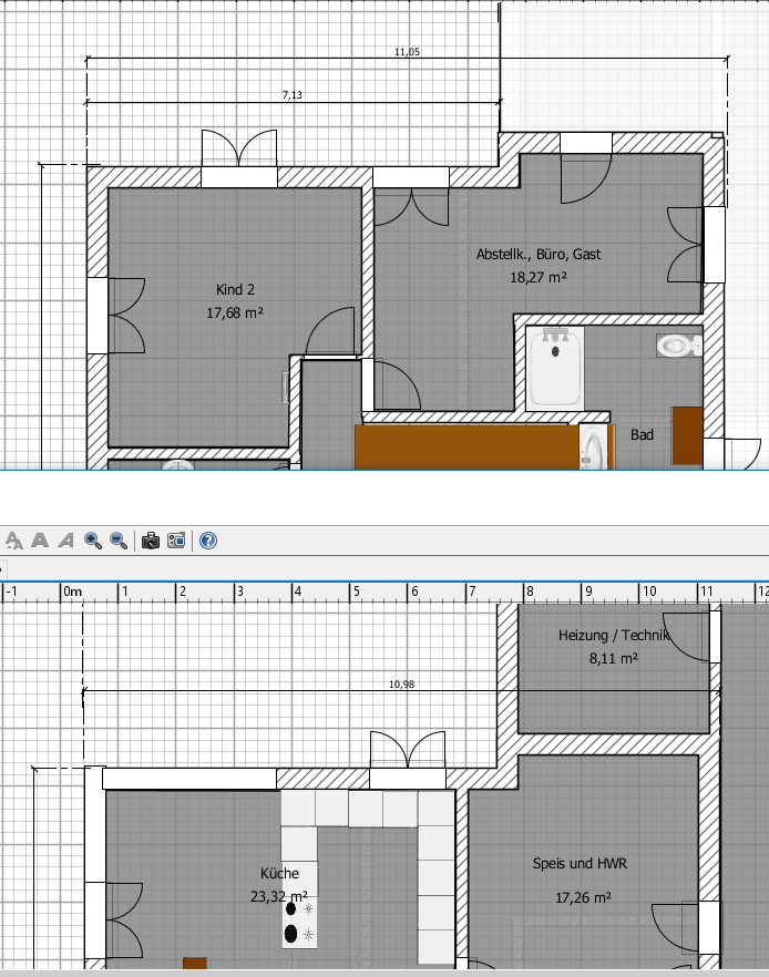
Wir wollten die Kinderzimmer noch etwas aufpeppen: Jeweils das angrenzende Schlafzimmer und Gästezimmer soll eine Decke bekommen und die Kinderzimmer komplett ohne. Dadurch wollen wir ein "kleines" Spieleparadies einbauen. Die Raumhöhe wird niedrig, aber mal schauen, ob das was wird. Dann hätten wir auch durch die beiden Fenster ein Licht da oben. Zugang mit Leiter + Geländer

11ant schrieb:Da muss ich eine schützende Hand drüber geben, wenn die Vorgabe noch nicht klar ist, wo wir das Grundstück entwässern, wäre es unnötige/doppelte Arbeit. Dies muss ich noch mit der Gemeinde abklären, wenn dann der Bebauungsplan auf offiziell ist.
... Versorgungs- und Entwässerungsplanung sind nicht die Lieblingsthemen dieses Bauzeichners....
11ant schrieb:Also das ist teilweise auf meine Frau gewachsen. Zitat: "Wenn ich schon keinen Keller bekomme, dann brauche ich einen großen Hauswirtschaftsraum". Also haben wir hier versucht so groß wie möglich zu planen, auch eine Speis, welche von der Garage und Küche zugänglich ist.
Den Technikraum und den Hauswirtschaftsraum / Speisekammer daneben halte ich für zusammengenommen etwas großzügig bemessen und würde dreist wagen zu sagen, den Technikraum könne man da integrieren.
Ich habe ehrlich gesagt etwas Angst um die "Optik" dieses Raumes gehabt, wenn ich Wasseruhr, Elektroverteilung, Telefon, Heizung, WW-Speicher, Kontrollierte-Wohnraumlüftung integriere, daher der "kleine Raum" an die Garage/Haus angebaut.
11ant schrieb:Ja, guter Punkt! Wir haben hier großzügich geplant, weil wir auch mal einen zweiten großen Tisch bei einer Feier stellen wollen.
Die Tanzfläche zwischen Küche und Essplatz hätte ich lieber im Wohnzimmer mehr.
11ant schrieb:Wegen der Raumaufteilung? Wenn ja, dann stimme ich dir zu, das ist mir auch ein Dorn im Auge, aber ich habe noch keine schöne Lösung gefunden. Außerdem wird das zu 98% ein Abstellraum werden, weil wir keinen Keller haben
Meine Murks-Hitliste sieht auf Platz 1 das Gästezimmer
11ant schrieb:Warum, wegen den 2 Türen? Das haben wir eliminiert, da wusste er nicht, wo er diese hin setzen soll und wir haben uns für die obere entschieden, die linke fällt weg.
...Platz 2 das zweite Kinderzimmer.
11ant schrieb:Danke, das wollte ich haben, damit das Haus nicht so "wuchtig" auf den ersten Blick wirkt. Ich hatte es in der Ursprünglichen Version auch hinten am Haus (Garage), aber das ist jetzt entfallen... ich denke noch mal drüber nach!
Gut gefällt mir an der einen Seite die Kante im Grundriss, da wo die beiden Dachflächen sich treffen - das vermisse ich an der anderen Seite.
11ant schrieb:Danke, auch hier war ursprünglich "ohne" geplant, aber ich denke das ist für die Helligkeit so besser.
Einen Pluspunkt bekommt von mir das Fensterband, versetzte Pultdächer mit Blindstirn finde ich komisch.
11ant schrieb:Muss ich nachreichen, wenn wir wieder zusammen sitzen.
Mal´ die Umrisse ´mal ins Luftbild, und tu´ einen Nordpfeil zu den Grundrissen.
Weiterer Punkt:
Wir wollten die Kinderzimmer noch etwas aufpeppen: Jeweils das angrenzende Schlafzimmer und Gästezimmer soll eine Decke bekommen und die Kinderzimmer komplett ohne. Dadurch wollen wir ein "kleines" Spieleparadies einbauen. Die Raumhöhe wird niedrig, aber mal schauen, ob das was wird. Dann hätten wir auch durch die beiden Fenster ein Licht da oben. Zugang mit Leiter + Geländer
Entwässerung: ich meinte, die Fallrohre des Hauptbades gingen durch die Diele und das Kinderbad könnte näher über der Küche liegen und solche Dinge.
Im Gästezimmer könnte man das Bett nicht einmal um 90° drehen, so möblierungsfeindlich ist dort der Grundriss. Auch beim zweiten Kinderzimmer entsteht eine verbesserungswürdige Erschließungssituation.
Hier werden noch viele Äxte an Deinen Plan angelegt werden, insofern sind das teilweise Details, die erst an weiteren Entwürfen dann mit der Feile bearbeitet würden. Kleinigkeiten habe ich daher gar nicht erst kritisiert, aus zwei Gründen: erstens können die sich in späteren Versionen längst erledigt haben, und zweitens sind es leicht heilbare Flecken, die man kaum sieht.
Von mir das alles erst mal nur als eröffnendes Feedback, da kommen sicher noch Beiträge mit ganz anderen Perspektiven.
https://www.instagram.com/11antgmxde/
https://www.linkedin.com/company/bauen-jetzt/
Im Gästezimmer könnte man das Bett nicht einmal um 90° drehen, so möblierungsfeindlich ist dort der Grundriss. Auch beim zweiten Kinderzimmer entsteht eine verbesserungswürdige Erschließungssituation.
Hier werden noch viele Äxte an Deinen Plan angelegt werden, insofern sind das teilweise Details, die erst an weiteren Entwürfen dann mit der Feile bearbeitet würden. Kleinigkeiten habe ich daher gar nicht erst kritisiert, aus zwei Gründen: erstens können die sich in späteren Versionen längst erledigt haben, und zweitens sind es leicht heilbare Flecken, die man kaum sieht.
Von mir das alles erst mal nur als eröffnendes Feedback, da kommen sicher noch Beiträge mit ganz anderen Perspektiven.
https://www.instagram.com/11antgmxde/
https://www.linkedin.com/company/bauen-jetzt/
Ähnliche Themen