Hausbau - Ratgeber
Bauherrenhilfe
- Bauherrenhilfe vor Vertragsabschluss
-- Warum einen unabhängigen Baubetreuer?
-- Vertragsgrundlagen
-- Bausumme
-- Zahlungsplan zur Kostenkontrolle
-- Pflichten des Bauherren vor Vertragsabschluss
-- Unterlagen beim Hausbau vor Vertragsabschluss
- Bauherrenhilfe nach Vertragsabschluss
-- Bauantrag bei Behörden
-- Bau-Genehmigungsverfahren bei Baubehörden
-- Bauspezifische Versicherungen
-- Bauzeitenplan
-- Baubeginn - die Letzten Pflichten der Bauherrschaft
- Bauherrenhilfe während der Bauzeit
- Gewährleistungsansprüche
- Bauabnahme
Baufinanzierung
- Baufinanzierung - Allgemeine Fragen
- Kreditarten
- Kredit-Konditionen
- Bausparen
- Staatliche Förderungen
- Verkehrswert
- Haushaltsrechnung und Bonität
Hausbau Planung
- Haustypen
- Hausbau Vorbereitungsarbeiten
- Das Baugrundstück
- Baugrund beim Hausbau
- Baurecht
- Gebäudeschutz
- Erdarbeiten und Wasserhaltung
- Stützmauern
- Einfriedung
- Untergeschoss
- Kanalisation
- Tragende Elemente
- Nichttragende Innenwände
- Fundation / Fundament
- Deckenkonstruktionen
- Dächer
- Kaminanlagen
- Treppen Rampen Leitern
- Dachbeläge und Spengler
- Fenster
- Sonnen und Wetterschutz
- Aussenputze
- Einbauten, Küchen, Türen
- Bodenbeläge und Unterlagsböden
- Parkett
- Gips, Wand, Decke
Haustechnik und Energie
- Heiztechnik
- Lüftung und Klimatechnik
- Sanitärtechnik
- Elektrotechnik
- Erneuerbare Energie
Whirlpools / Jacuzzi
Hausbau Magazin
- Baufinanzierung trotz Krise?
- Das Blockhaus
- Moderne Dämmstoffe im Vergleich
- Erker Vor- und Nachteile
- Glasflächen beim Hausbau
- Günstig ein Haus Bauen
- Mediterraner Hausbaustil
- Mehrgenerationenhaus
- Moderne Architektur
- Gartengestaltung leicht gemacht
- Traditioneller Ziegelbau
- Villa als höchster Traum
- Im Eigenheim Ruhestand geniessen
- Altbau sanieren
- Kauf einer Holzgarage
- Immobilienmakler
- Arbeitshandschuhe für den Winter
- Zuhause verschönern
- Outdoor-Plissees
- Schlafzimmer planen
- Terrassenüberdachung
- Wohngebäudeversicherung
- Girokonto für Bauherren finden
- Hauseingang gestalten
- Zaunarten und Eigenschaften
- Der perfekte Grundriss
- Sparsamer heizen im Altbau
- Einfamilienhaus smart finanzieren
- Planung einer PV-Anlage
- Neues Haus
- Immobilienfinanzierung
- Installation einer Photovoltaikanlage
- Asbest erkennen und entfernen
- Gartenpflege im Frühling – worauf achten
- Sauna im Fokus - Wellness zuhause
- Erfolgreich vermieten
- Die perfekte Winterbekleidung
- Das Niedrigenergiehaus
- Der April und seine Stürme
- Architektonische Vielfalt
- Ökologisch und nachhaltig bauen
- Das perfekte Schlafzimmer
- Nachhaltige Energieversorgung
- Zukunftsorientiert bauen
- Nachhaltigkeit beim Hausbau
- Tiny Houses
- Wärmepumpen als nachhaltige Heizvariante
- Maßgeschneiderten Kleiderschrank
- Der richtige Baukredit
- Ratgeber für erfolgreichen Hausbau
- Haus als Altersvorsorge
Do-it-yourself Anleitungen
- Verlegeanleitung für Bodenbeläge und Parkett
- Bodenbeläge und Parkett reinigen und pflegen
- Malerarbeiten am Haus
- Garten Tipps
- Umzug und Reinigung

ᐅ Neubau Stadtvilla mit Einliegerwohnung und Doppelgarage

Erstellt am: 23.12.16 16:15
G
google80
google8023.12.16 16:15
Hallo liebe Hausbau-Forum-Gemeinde,

zunächst einmal ein dickes Lob an das Forum und an die User. Wir freuen uns über Eure Meinung zu unserem Bauvorhaben (Haupthaus verputzt + Einliegerwohnung (wird vermietet) + Doppelgarage) mit folgenden Daten freuen:

Bebauungsplan/Einschränkungen
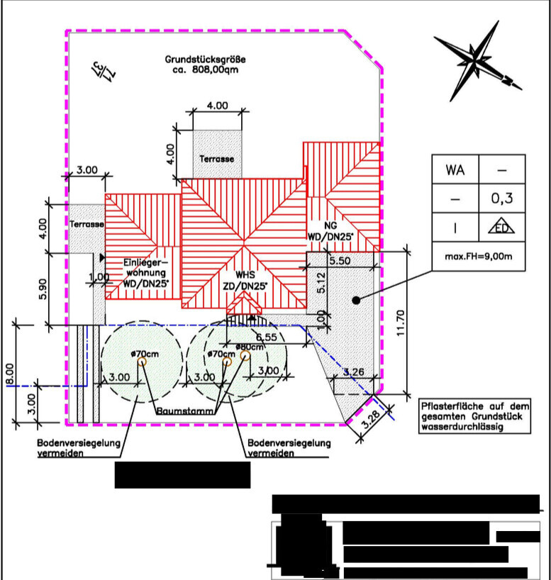
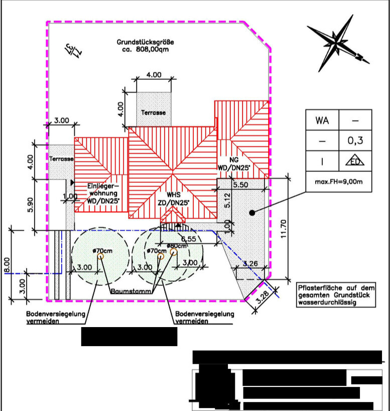
Größe des Grundstücks: 808 m²
Hang: Nein
Grundflächenzahl: 0,3 (+25 %)
Geschossflächenzahl
Baufenster, Baulinie und -grenze: Ja, siehe Flächenplan (blaue Linie)
Randbebauung: Ja (Garage 9 x 6 m)
Anzahl Stellplatz:
Geschossigkeit: 1,5
Dachform: mind. 25 Grad
Stilrichtung: keine
Ausrichtung: keine
Maximale Höhen/Begrenzungen: 9 m
weitere Vorgaben: Keine Bodenversiegelung im Umkreis von 3 m um eingezeichnete Eichen (3 Stück)

Anforderungen der Bauherren
Stilrichtung, Dachform, Gebäudetyp: Stadtvilla mit Walmdach
Keller, Geschosse: Kein Keller,
Anzahl der Personen, Alter: Drei (inkl. Mieter), zwischen 20 und 40 Jahre
Raumbedarf im EG, OG: Einliegerwohnung 45 m², Haupthaus EG und OG je 90 m²
Büro: Wird als Gästezimmer genutzt
Schlafgäste pro Jahr: 12-24
offene oder geschlossene Architektur
konservativ oder moderne Bauweise: Moderne Stadtvilla
offene Küche, Kochinsel: Ja mit Kochinsel und 3 Glaselementen (1 feststehendes und 2 verschiebbare, um bei Bedarf eine geschlossene Küche zu haben)
Anzahl Essplätze: Küche und Wohnzimmer (analog Einliegerwohnung)
Kamin: vorbereitet
Musik/Stereowand: Teufel 5.1 Anlage
Balkon, Dachterrasse: nein
Garage, Carport: Doppelgarage abschließbar
Nutzgarten, Treibhaus: Nutzgarten
weitere Wünsche/Besonderheiten/Tagesablauf, gern auch Begründungen, warum dieses oder das nicht sein soll

Hausentwurf
Von wem stammt die Planung: Eigene Planung mit Zeichnung vom Architekten übernommen
Was gefällt besonders? Warum?:
Da keine 2 Geschosse zulässig sind (was jedoch gewünscht ist), wurde unter anderem eine Einliegerwohnung mit eingeplant (kostengünstig in der Herstellung im Vergleich zu Gebrauchtimmobilien, Steuervorteil und zur Aufbesserung der Rente - bin bereits im Besitz von Renditeobjekten). Des Weiteren finde ich die Anordnung der Räumlichkeiten durchdacht, wobei hier noch das Fenster im Hauswirtschaftsraum sich ändern kann (bewusst Oberlicht, um Stellfläche für Hausanschlüsse zu haben).

Was gefällt nicht? Warum?
Das Dach ohne Überstand der Garage (bedingt durch die Max. bebaubare Breite - Realisierung würde Wohnraum verkleinern mit Auswirkung auf Neuplanung aller Räumlichkeiten).
Die Treppe im Haupthaus, wobei jede Variante (siehe https://www.hausbau-forum.de/threads/grundrissplanung-unbedingt-vor-Beitrag-Erstellung-lesen.11714/) bereits geprüft wurde und uns die aktuelle Version noch am besten von allen gefällt.

Preisschätzung lt Architekt/Planer: 290 TEUR

Persönliches Preislimit fürs Haus, inkl Ausstattung: 320 TEUR
favorisierte Heiztechnik: Gas

Wenn Ihr verzichten müsst, auf welche Details/Ausbauten
-könnt Ihr verzichten: Kamin, 3-teilige Glaselemente in der Küche, hochwertige Außenanlagen (Geld soll ins Objekt fließen)
-könnt Ihr nicht verzichten: Garage mit Dach sowie Einliegerwohnung

Warum ist der Entwurf so geworden, wie er jetzt ist? Bedingt durch die eingetragenen Bäume, der Ausrichtung des Grundstücks sowie die Ideen von Musterhauspark und dem gewollten Lichteinfall in jedem Raum. Die Einliegerwohnung hat bewusst keine Fenster zu unserem Grundstück, damit der Mieter trotz angrenzendem Gebäude gefüllt weit weg ist. Deshalb bekommt dieser auch eine separate Zufahrt.


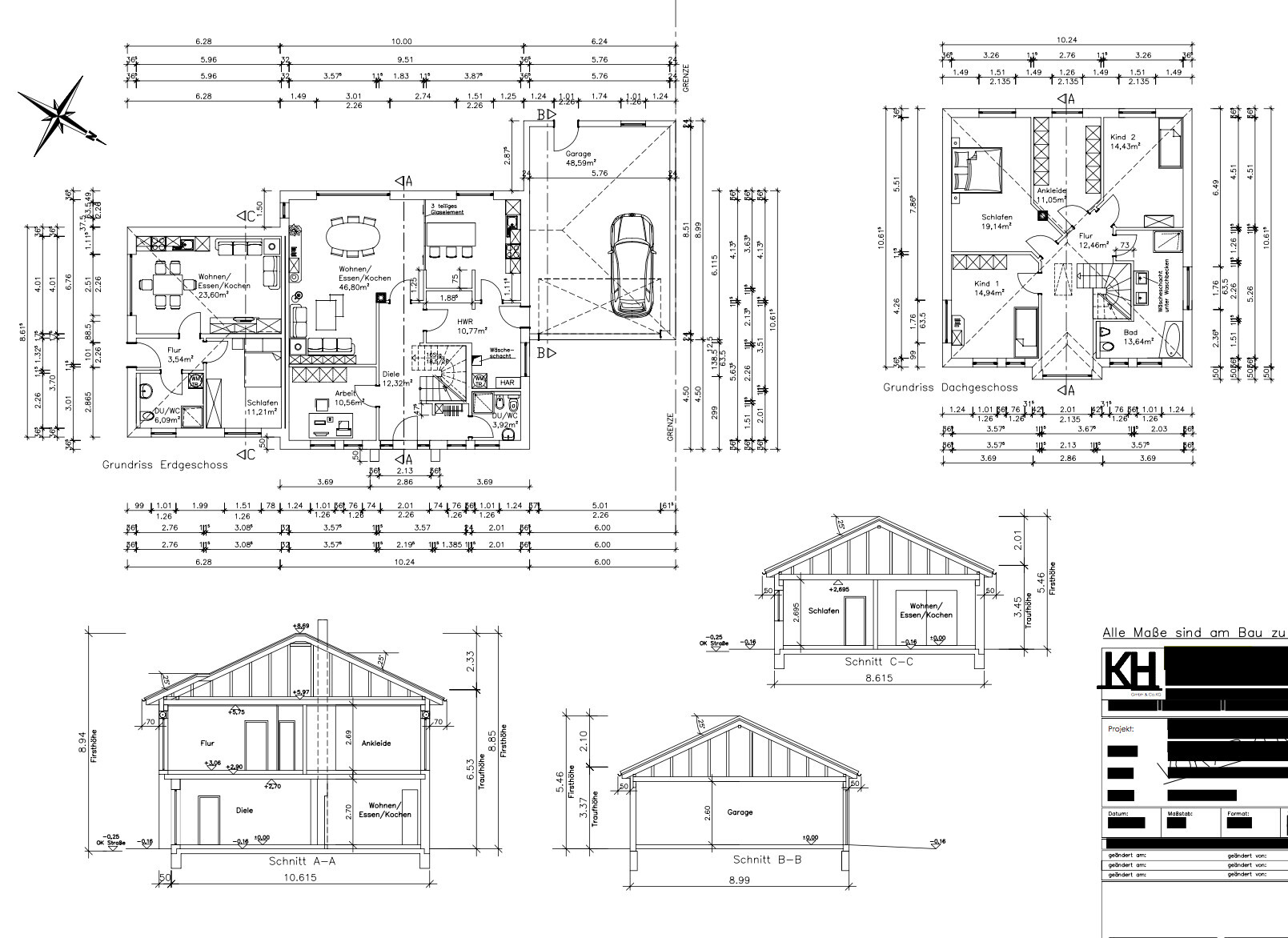
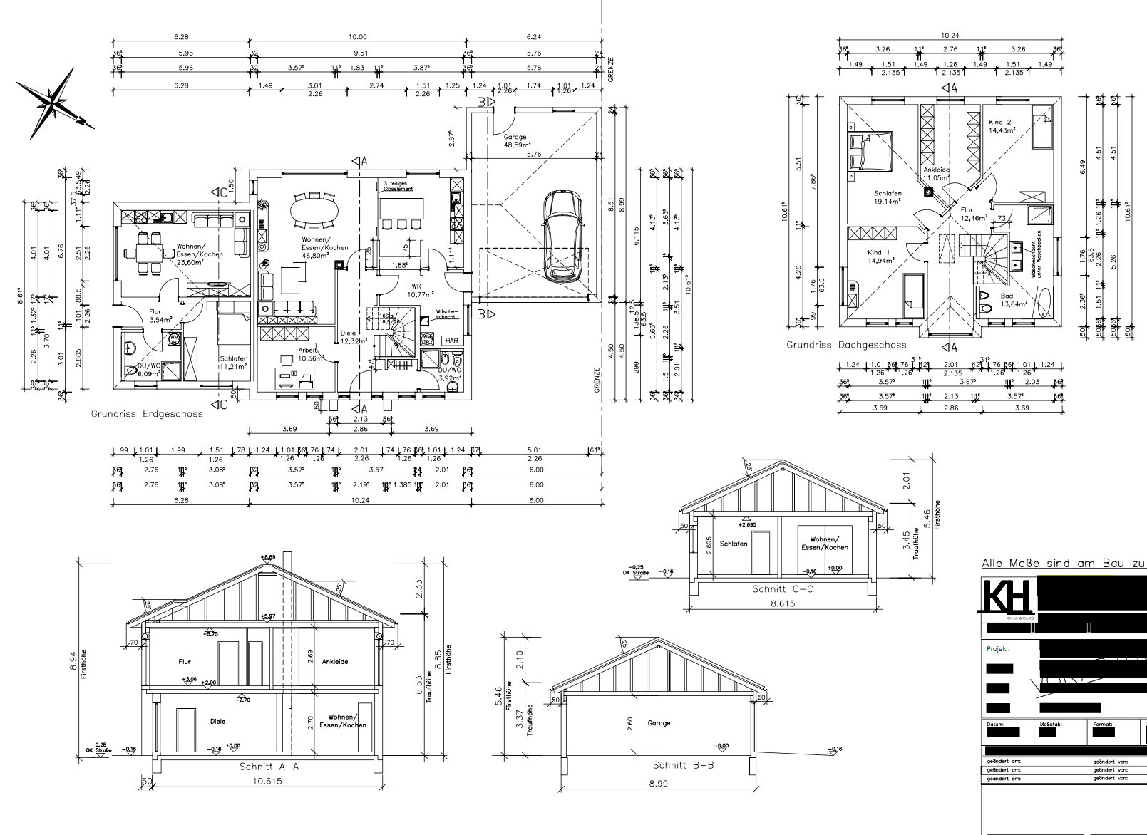
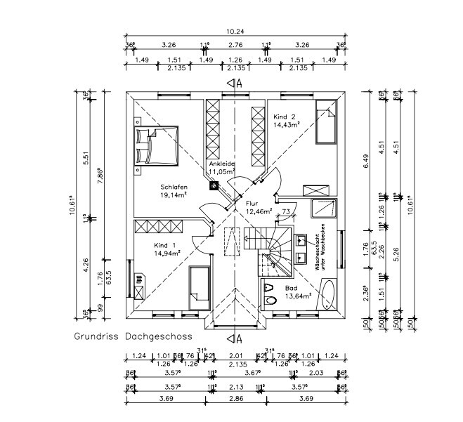
Dachgeschoss-Grundriss: Schlafzimmer, zwei Kinderzimmer, Ankleide, Bad, Flur, Treppenhaus

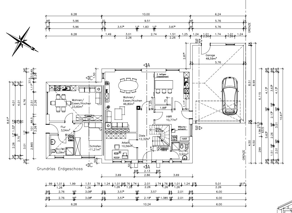
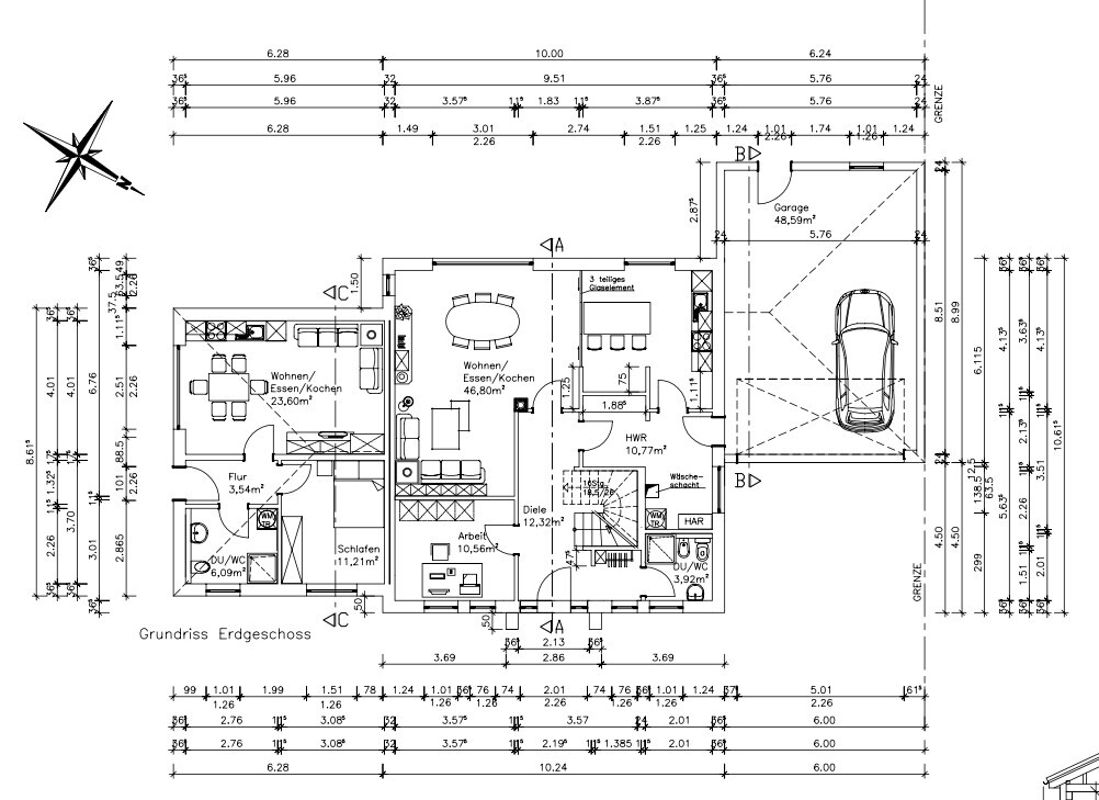
Grundriss Erdgeschoss: offener Wohn/Ess/Kochbereich, Schlafen, Bad, Garage.

Architekturplan eines Einfamilienhauses: Grundrisse Erdgeschoss, Dachgeschoss und Schnitte.

Lageplan eines Hauses mit Terrassen, Grundstücksgrenze, Bäumen, Maßangaben und Kompass.

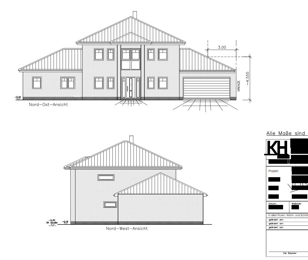
Zweigeschossiges Wohnhaus mit zentraler Tür und Garage rechts; Front- und Seitenansicht Bauzeichnung

Architektenzeichnung: zweigeschossiges Haus mit Satteldach und Anbau, zwei Ansichten.

Jpgs zugefügt durch Moderation, ypg
tomtom7923.12.16 17:26
Die Ecken oben sind Verschwendung von Fläche ohne nutzen.

Hauswirtschaftsraum sehr klein und keine Fläche die wirklich nutzbar ist.

Und bitte die Daten als jpg hochladen.
Y
ypg
23.12.16 17:29
Sind in der Hauptwohnung nun 2 oder 4 Personen (2 Erwachsene + 2 Kinder) geplant?

Die Einliegerwohnung hat gar keine Abstellfläche, noch eine Garderobe. Wo kommen bloss Staubsauger und Schuhe hin?
C
Curly
23.12.16 17:47
der geschätzte Preis kommt mir zu niedrig vor. Soll der inkl. Einliegerwohnung und Garage sein?

Gruß
Sabine
tomtom7923.12.16 17:54
@Curry 320k ohne Einliegerwohnung wäre realistisch inklusive Baunebenkosten.
S
Steffen80
23.12.16 18:57
1420 EUR pro qm inkl. Garage und Einliegerwohnung? Träum weiter

PS: Wenn der Architekt 290 schätzt..werden es 400 zzgl. Baunebenkosten!
einliegerwohnungdoppelgaragedachformküchehaupthausstadtvillakellergeschossemieterkochinsel